Информационная система
«Ёшкин Кот»

Скачать базу одним архивом
Скачать обновления
История создания базы
Карта сайта

Скачать Типовой проект 409-28-39 Альбом III. Часть 1. Чертежи стальных конструкций. Скоростной напор ветра 27 кгс/кв. м

Дата актуализации: 10.08.2017

Типовой проект 409-28-39

Альбом III. Часть 1. Чертежи стальных конструкций. Скоростной напор ветра 27 кгс/кв. м

Обозначение: Типовой проект 409-28-39
Обозначение англ: 409-28-39
Статус:действует
Название рус.:Альбом III. Часть 1. Чертежи стальных конструкций. Скоростной напор ветра 27 кгс/кв. м
Дата добавления в базу:01.09.2013
Дата актуализации:05.05.2017
Оглавление:Бетоносмесительный цех
   Общие данные
   Таблица расчетных нагрузок
   Техническая спецификация стали для варианта стен из керамзитобетонных панелей
   Ведомость металлоконструкций по видам профилей для варианта стен из керамзитобетонных панелей
   Техническая спецификация стали для варианта стен из асбестобетонных панелей
   Ведомость металлоконструкций по видам профилей для варианта стен из асбестобетонных панелей
   Техническая спецификация металла на лестницы и площадки
   План анкерных болтов. Таблица расчетных нагрузок на фундаменты
   Расчетные схемы постоянных нагрузок по осям "А", "Б" и "В"
   Расчетные схемы временных нагрузок по осям "А", "Б" и "В"
   Расчетные схемы постоянных нагрузок по осям "1", "2" и "3"
   Расчетные схемы временных нагрузок по осям "1", "2" и "3"
   Таблицы расчетных усилий в стержнях
   Планы проемов и отверстий на отм. 17.000; 14.400; 10.800; 8.800; 7.800. Вариант с применением электронной системы управления
   Планы проемов и отверстий на отм. 17.000; 14.400; 10.800; 8.800; 7.800. Вариант с применением релейно-контактной системы управления
   Планы проемов и отверстий на отм. 0.000; 4.800. Вариант с применением электронной и релейно-контактной системы управления. Узлы 1, 2, 3
   Планы на отм. 23.100; 17.100; 8.800
   Планы на отм. 14.400; 13.448
   Планы на отм. 0.000; 4.800; 7.800; 10.800. вариант с применением электронной системы управления
   Планы на отм. 0.000; 4.800; 7.800; 10.800. вариант с применением релейно-контактной системы управления
   Планы на отм. - 1.650; - 2.040; - 3.400; - 4.300 для варианта выдачи бетонной смеси раздаточными бункерами
   Планы на отм. - 2.800; - 4.300 для варианта выдачи бетонной смеси конвейерами
   Планы на отм. - 2.430; - 3.800. Съемный щит. Узел 4
   Разрезы 1-1, 2-2
   Разрезы 3-3, 6-6
   Разрезы 4-4, 5-5
   Лестница. Узлы 28, 29, 30
   Лестница. Ведомость элементов
   Схемы столиков для варианта стен из керамзитобетонных панелей
   Схемы фахверка для варианта стен из асбестоцементных панелей
   Схемы фахверка для внутренних стен
   Узлы 18; 31 - 35. Спецификация элементов фахверка
   Ведомость элементов каркаса
   План фланцев расходных бункеров. Узлы 9 - 12
   Узлы 5, 6
   Узлы 7, 8
   Узлы 14, 15, 17, 21
   Узлы 16, 19, 20, 22, 36, 37, 38
   Узлы 13; 23 - 27
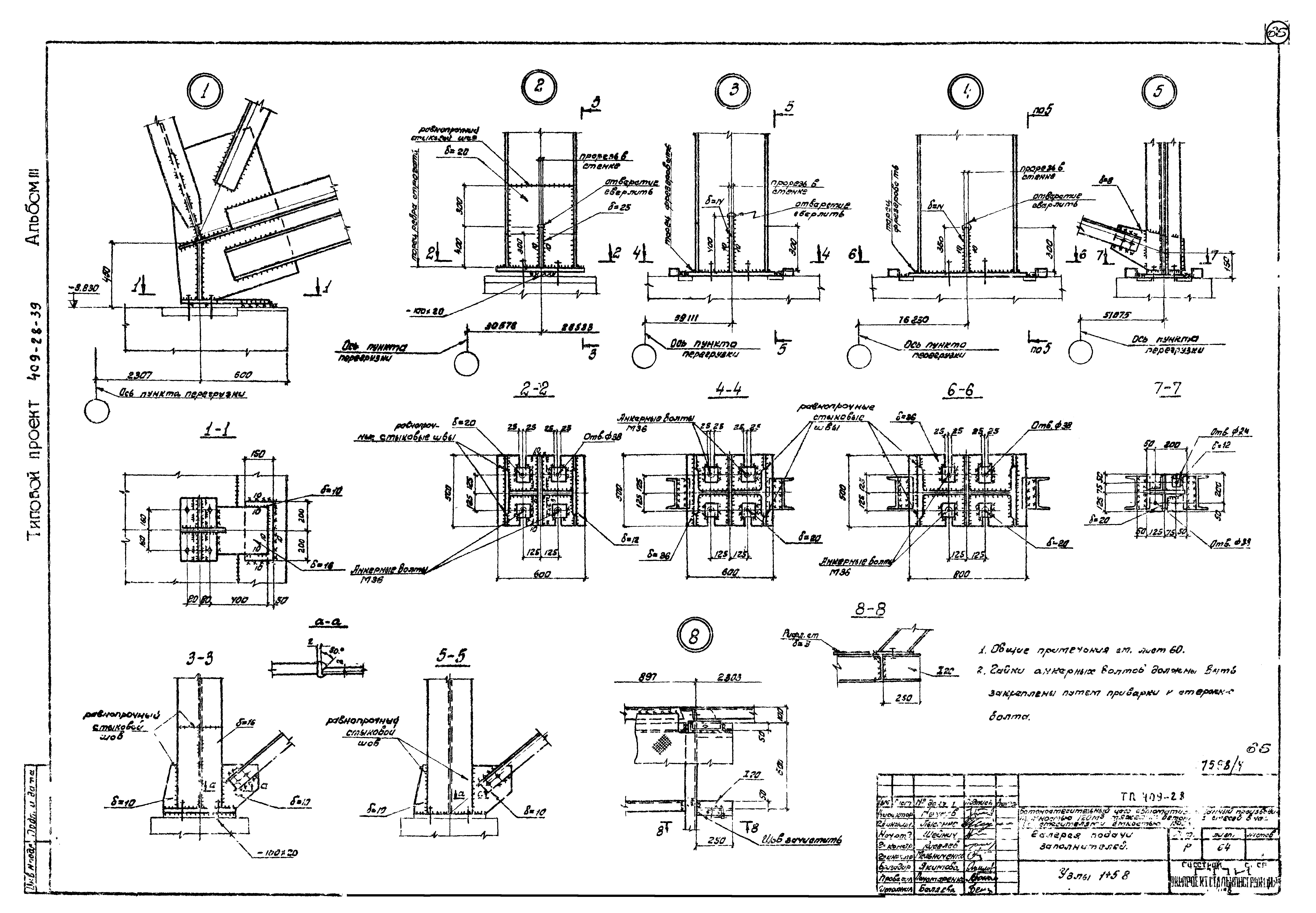
Галерея подачи заполнителей
   План анкерных болтов. Таблица расчетных нагрузок на фундаменты
   Схема галереи. Вариант I: стены - керамзитобетонные панели, покрытие - ж/б плиты
   Схема галереи. Вариант II: стены - асбестоцементные панели, покрытие - асбестоцементные плиты
   Башня натяжного устройства. Ведомость элементов. Узлы 6, 7
   Схема фахверка для варианта стен из асбестоцементных панелей. Узлы 9 - 14
   Узлы 1 - 5; 8
Разработан: Гипростроммаш
Утверждён:23.09.1979 Госстрой СССР (Государственный комитет Совета Министров СССР по делам строительства) (USSR Gosstroy 43)
Расположен в:Техническая документация Строительство Справочные документы Типовые строительные конструкции, изделия и узлы Общероссийский строительный каталог Промышленные предприятия, здания и сооружения Предприятия, здания и сооружения промышленности и электроэнергетики Строительная индустрия и промышленность строительных материалов Производство строительных материалов и изделий Производство бетона, раствора и асфальта
Типовой проект 409-28-39Типовой проект 409-28-39Типовой проект 409-28-39Типовой проект 409-28-39Типовой проект 409-28-39Типовой проект 409-28-39Типовой проект 409-28-39Типовой проект 409-28-39Типовой проект 409-28-39Типовой проект 409-28-39Типовой проект 409-28-39Типовой проект 409-28-39Типовой проект 409-28-39Типовой проект 409-28-39Типовой проект 409-28-39Типовой проект 409-28-39Типовой проект 409-28-39Типовой проект 409-28-39Типовой проект 409-28-39Типовой проект 409-28-39Типовой проект 409-28-39Типовой проект 409-28-39Типовой проект 409-28-39Типовой проект 409-28-39Типовой проект 409-28-39Типовой проект 409-28-39Типовой проект 409-28-39Типовой проект 409-28-39Типовой проект 409-28-39Типовой проект 409-28-39Типовой проект 409-28-39Типовой проект 409-28-39Типовой проект 409-28-39Типовой проект 409-28-39Типовой проект 409-28-39Типовой проект 409-28-39Типовой проект 409-28-39Типовой проект 409-28-39Типовой проект 409-28-39Типовой проект 409-28-39Типовой проект 409-28-39Типовой проект 409-28-39Типовой проект 409-28-39Типовой проект 409-28-39Типовой проект 409-28-39Типовой проект 409-28-39Типовой проект 409-28-39Типовой проект 409-28-39Типовой проект 409-28-39Типовой проект 409-28-39Типовой проект 409-28-39Типовой проект 409-28-39Типовой проект 409-28-39Типовой проект 409-28-39Типовой проект 409-28-39Типовой проект 409-28-39Типовой проект 409-28-39Типовой проект 409-28-39Типовой проект 409-28-39Типовой проект 409-28-39Типовой проект 409-28-39Типовой проект 409-28-39Типовой проект 409-28-39Типовой проект 409-28-39Типовой проект 409-28-39Типовой проект 409-28-39Типовой проект 409-28-39

© 2013 Ёшкин Кот :-) Карта сайта