Информационная система
«Ёшкин Кот»

Скачать базу одним архивом
Скачать обновления
История создания базы
Карта сайта

Скачать Типовой проект 409-28-38 Альбом XI. Часть 3. Чертежи нестандартизированного оборудования

Дата актуализации: 10.08.2017

Типовой проект 409-28-38

Альбом XI. Часть 3. Чертежи нестандартизированного оборудования

Обозначение: Типовой проект 409-28-38
Обозначение англ: 409-28-38
Статус:действует
Название рус.:Альбом XI. Часть 3. Чертежи нестандартизированного оборудования
Дата добавления в базу:01.09.2013
Дата актуализации:05.05.2017
Оглавление:Перечень чертежей
2930/12.000 Рама под улавливатель цемента
2930/12.000СБ Рама под улавливатель цемента
2930/12.000ВС Ведомость спецификаций
2930/12.000ВП Ведомость покупных изделий
2930/12.010 Рама
2930/12.010СБ Рама
2930/12.014 Связь
2930/12.015 Балка
2930/13.000 Рама под циклон
2930/13.000СБ Рама под циклон
2930/13.000ВС Ведомость спецификаций
2930/13.000ВП Ведомость покупных изделий
2930/13.010 Рама
2930/13.010СБ Рама
2930/13.014 Связь
2930/13.015 Связь
2930/15.000 Течки от распределителя цемента
2930/15.000СБ Течки от распределителя цемента
2930/15.000ВС Ведомость спецификаций
2930/15.000ВП Ведомость покупных изделий
2930/15.010 Течка левая
2930/15.010СБ Течка левая
2930/15.020 Течка
2930/15.020СБ Течка
2930/15.030 Патрубок
2930/15.030СБ Патрубок
2930/15.011 Пластина
2930/15.012 Полухомут
2930/15.021 Патрубок
2930/15.022 Патрубок
2930/15.023 Патрубок
2930/15.024 Кольцо
2930/15.025 Пластина
2930/16.000 Течка от распределителя цемента
2930/16.000СБ Течка от распределителя цемента
2930/16.000ВС Ведомость спецификаций
2930/16.000ВП Ведомость покупных изделий
2930/16.010 Течка левая
2930/16.010СБ Течка левая
2930/16.020 Течка
2930/16.020СБ Течка
2930/16.030 Патрубок
2930/16.030СБ Патрубок
2930/16.011 Пластина
2930/16.012 Полухомут
2930/16.021 Конус
2930/16.022 Переходник
2930/16.023 Патрубок
2930/16.024 Кольцо
2930/16.025 Кольцо
2930/16.026 Пластина
2930/16.027 Пластина
2930/16.031 Патрубок
2930/16.032 Фланец
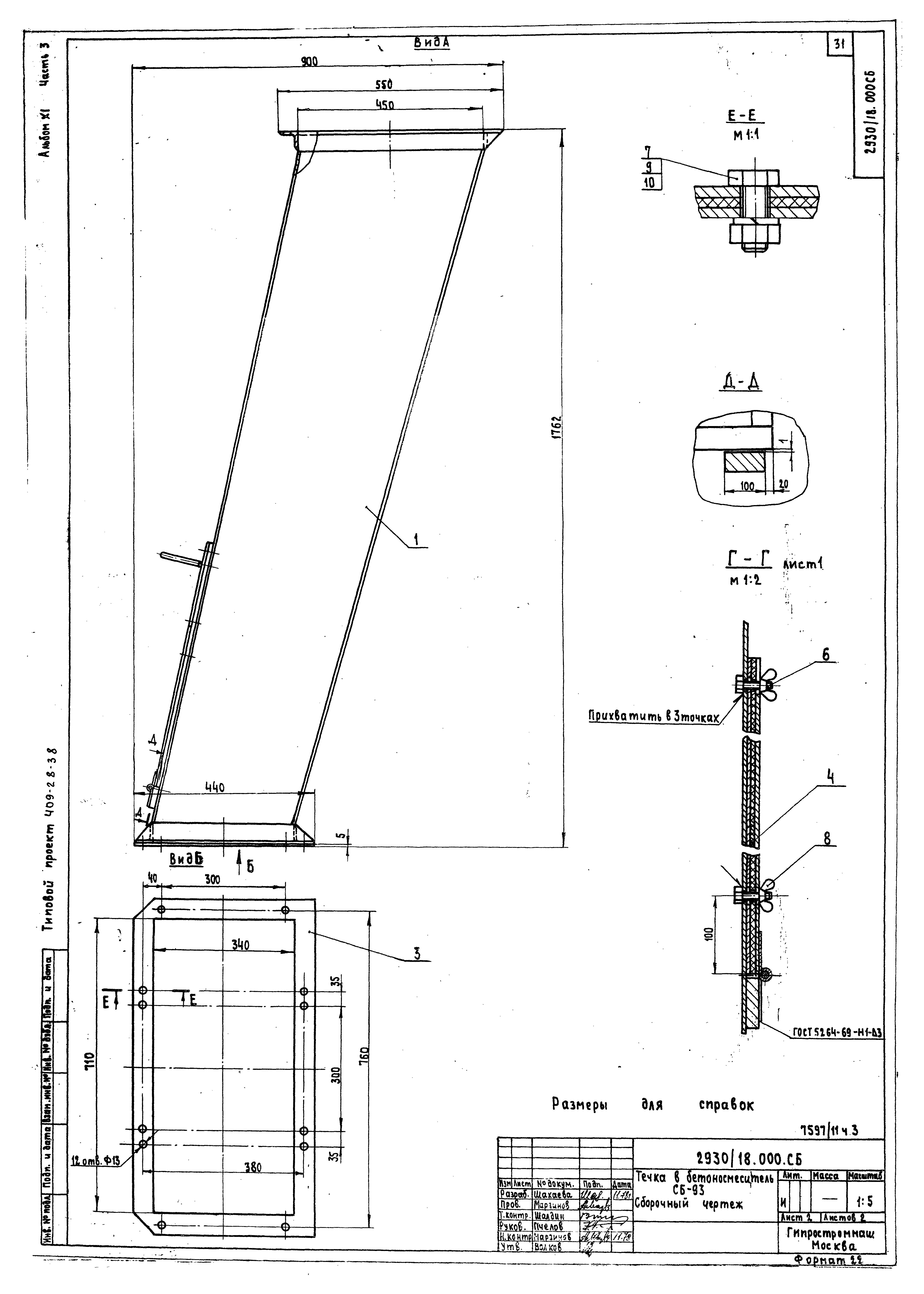
2930/18.000 Течка в бетоносмеситель СБ-93
2930/18.000СБ Течка в бетоносмеситель СБ-93
2930/18.000ВС Ведомость спецификаций
2930/18.000ВП Ведомость покупных изделий
2930/18.010 Течка
2930/18.010СБ Течка
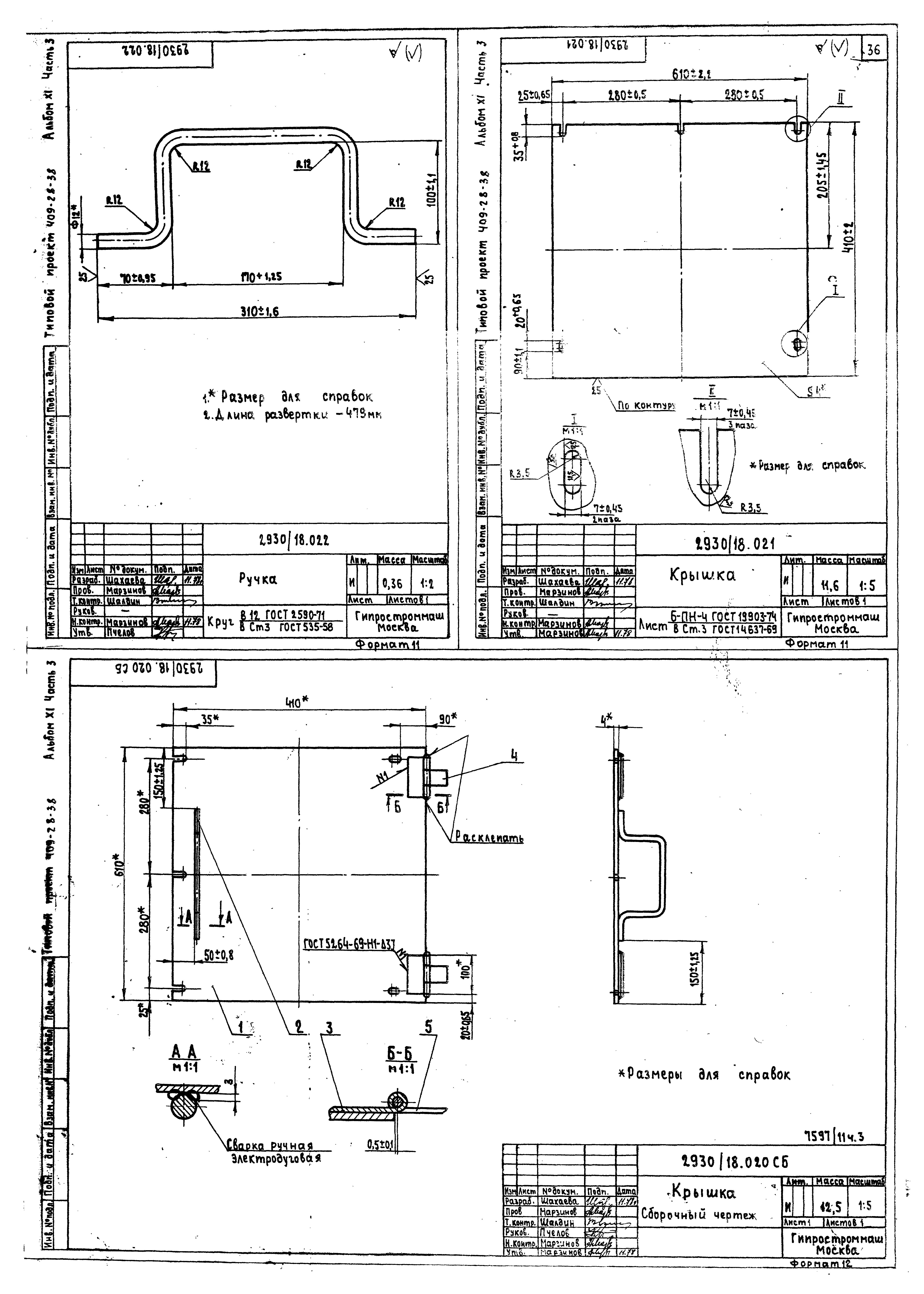
2930/18.020 Крышка
2930/18.020СБ Крышка
2930/18.001 Прокладка
2930/18.002 Прокладка
2930/18.011 Стенка
2930/18.012 Стенка
2930/18.013 Стенка
2930/18.014 Связь
2930/18.021 Крышка
2930/18.022 Ручка
2930/18.023 Петля
2930/18.024 Петля
2930/20.000 Воронка выдачи бетона
2930/20.000СБ Воронка выдачи бетона
2930/20.000ВС Ведомость спецификаций
2930/20.000ВП Ведомость покупных изделий
2930/20.010 Воронка
2930/20.010СБ Воронка
2930/20.020 Кронштейн
2930/20.020СБ Кронштейн
2930/20.001 Стенка
2930/20.002 Стенка
2930/20.003 Стенка
2930/20.005 Боковина
2930/20.011 Ребро
2930/20.012 Боковина
2930/20.013 Основание
2930/25.000 Рама под циферблатные указатели
2930/25.000СБ Рама под циферблатные указатели
2930/25.000ВС Ведомость спецификаций
2930/25.000ВП Ведомость покупных изделий
2930/25.010 Стойка
2930/25.010СБ Стойка
2930/25.020 Опора правая
2930/25.020СБ Опора правая
2930/25.030 Опора левая
2930/25.030СБ Опора левая
2930/25.040 Коробка клеммная
2930/25.040СБ Коробка клеммная
2930/25.050 Корпус
2930/25.050СБ Корпус
2930/25.060 Концевое соединение КС-В
2930/25.060СБ Концевое соединение КС-В
2930/25.070 Ввод трубы "1"
2930/25.070СБ Ввод трубы "1"
2930/25.001 Болт фундаментный
2930/25.011 Стойка
2930/25.012 Перемычка
2930/25.013 Пята
2930/25.014 Перемычка
2930/25.021 Стойка
2930/25.041 Крышка
2930/25.042 Прокладка
2930/25.051 Платик
2930/25.052 Бобышка
2930/25.053 Обечайка
2930/25.054 Пояс
2930/25.055 Дно
2930/25.061 Корпус
2930/25.062 Штуцер
2930/25.063 Шайба
2930/25.064 Прокладка
2930/25.071 Втулка
2930/26.000 Установка бесконтактных датчиков
2930/26.000СБ Установка бесконтактных датчиков
2930/26.000СХ1 Схема установки бесконтактных датчиков на распределителе цемента У5690.01.000
2930/26.000СХ2 Схема установки бесконтактных датчиков на поворотной воронке У5640.04.000
2930/26.000СХ3 Схема установки бесконтактных датчиков на двухрукавной течке с перекидным клапаном 2637/4
2930/26.000СХ4 Схема установки бесконтактных датчиков на воронке сборной с течками У5640.02.000.123
2930/26.000СХ5 Схема установки бесконтактных датчиков на установке двухходового переключателя
2930/26.000СХ6 Схема установки бесконтактных датчиков на бетоносмесителе принудительного действия СБ-93
2930/26.000СХ7 Схема установки бесконтактных датчиков на течке двухрукавной 2930/4
2930/26.000ВС Ведомость спецификаций
2930/26.000ВП Ведомость покупных изделий
2930/26.000ВМ Ведомость материалов
2930/26.010 Основание
2930/26.010СБ Основание
2930/26.020 Флажок
2930/26.020СБ Флажок
2930/26.030 Соединение концевое
2930/26.030СБ Соединение концевое
2930/26.040 Упор
2930/26.040СБ Упор
2930/26.050 Кожух
2930/26.050СБ Кожух
2930/26.060 Скоба в сборе
2930/26.060СБ Скоба в сборе
2930/26.070 Кожух
2930/26.070СБ Кожух
2930/26.001 Платик
2930/26.002 Прокладка
2930/26.003 Планка отгибная
2930/26.004 Планка отгибная
2930/26.005 Пружина
2930/26.007 Винт
2930/26.011 Плита
2930/26.012 Штырь
2930/26.013 Стойка
2930/26.021 Направляющая
2930/26.022 Скоба
2930/26.023 Втулка
2930/26.031 Корпус
2930/26.032 Штуцер
2930/26.033 Шайба
2930/26.034 Прокладка
2930/26.041 Пластина
2930/26.042 Ось
2930/26.043 Опора
2930/26.051 Обечайка
2930/26.052 Крышка
2930/26.053 Стенка
2930/26.054 Обечайка
2930/26.061 Планка
2930/26.062 Скоба
2930/27.000 Установка бесконтактного датчика
2930/27.000СБ Установка бесконтактного датчика
2930/27.000СХ1 Схема установки бесконтактного датчика на воронке поворотной У5640.04.000
2930/27.000СХ2 Схема установки бесконтактного датчика наличия материала на ленте транспортера 2931/1
2930/27.000ВМ Ведомость материалов
2930/27.000ВП Ведомость покупных изделий
2930/27.000ВМ Ведомость материалов
2930/27.010 Основание
2930/27.010СБ Основание
2930/27.020 Основание
2930/27.020СБ Основание
2930/27.001 Скоба
2930/27.002 Заглушка
2930/27.003 Шайба
2930/27.011 Плита
2930/30.000 Шкаф аппаратный
2930/30.000СБ Шкаф аппаратный
2930/30.000ВС Ведомость спецификаций
2930/30.000ВП Ведомость покупных изделий
2930/30.000ВМ Ведомость материалов
2930/30.010 Каркас
2930/30.010СБ Каркас
2930/30.020 Дверь
2930/30.020СБ Дверь
2930/30.030 Петля
2930/30.030СБ Петля
2930/30.040 Ось
2930/30.040СБ Ось
2930/30.001 Дно
2930/30.003 Пластина II-9
2930/30.004 Таблица прижимная
2930/30.005 Щеколда
2930/30.006 Ось
2930/30.011 Крышка
2930/30.012 Рама
2930/30.013 Остов каркаса
2930/30.014 Стенка передняя
2930/30.015 Упор
2930/30.016 Планка
2930/30.021 Остов двери
2930/30.022 Обойма
2930/30.023 Обойма
2930/30.024 Планка
2930/30.025 Втулка
2930/30.031 Петля
2930/30.041 Стержень
2930/30.042 Шайба
2930/31.000 Рама под вентилятор Ц10-28 №4
2930/31.000СБ Рама под вентилятор Ц10-28 №4
2930/31.000 Балка
Разработан: Гипростроммаш
Утверждён:23.09.1979 Госстрой СССР (Государственный комитет Совета Министров СССР по делам строительства) (USSR Gosstroy 43)
Расположен в:Техническая документация Строительство Справочные документы Типовые строительные конструкции, изделия и узлы Общероссийский строительный каталог Промышленные предприятия, здания и сооружения Предприятия, здания и сооружения промышленности и электроэнергетики Строительная индустрия и промышленность строительных материалов Производство строительных материалов и изделий Производство бетона, раствора и асфальта
Типовой проект 409-28-38Типовой проект 409-28-38Типовой проект 409-28-38Типовой проект 409-28-38Типовой проект 409-28-38Типовой проект 409-28-38Типовой проект 409-28-38Типовой проект 409-28-38Типовой проект 409-28-38Типовой проект 409-28-38Типовой проект 409-28-38Типовой проект 409-28-38Типовой проект 409-28-38Типовой проект 409-28-38Типовой проект 409-28-38Типовой проект 409-28-38Типовой проект 409-28-38Типовой проект 409-28-38Типовой проект 409-28-38Типовой проект 409-28-38Типовой проект 409-28-38Типовой проект 409-28-38Типовой проект 409-28-38Типовой проект 409-28-38Типовой проект 409-28-38Типовой проект 409-28-38Типовой проект 409-28-38Типовой проект 409-28-38Типовой проект 409-28-38Типовой проект 409-28-38Типовой проект 409-28-38Типовой проект 409-28-38Типовой проект 409-28-38Типовой проект 409-28-38Типовой проект 409-28-38Типовой проект 409-28-38Типовой проект 409-28-38Типовой проект 409-28-38Типовой проект 409-28-38Типовой проект 409-28-38Типовой проект 409-28-38Типовой проект 409-28-38Типовой проект 409-28-38Типовой проект 409-28-38Типовой проект 409-28-38Типовой проект 409-28-38Типовой проект 409-28-38Типовой проект 409-28-38Типовой проект 409-28-38Типовой проект 409-28-38Типовой проект 409-28-38Типовой проект 409-28-38Типовой проект 409-28-38Типовой проект 409-28-38Типовой проект 409-28-38Типовой проект 409-28-38Типовой проект 409-28-38Типовой проект 409-28-38Типовой проект 409-28-38Типовой проект 409-28-38Типовой проект 409-28-38Типовой проект 409-28-38Типовой проект 409-28-38Типовой проект 409-28-38Типовой проект 409-28-38Типовой проект 409-28-38Типовой проект 409-28-38Типовой проект 409-28-38Типовой проект 409-28-38Типовой проект 409-28-38Типовой проект 409-28-38Типовой проект 409-28-38Типовой проект 409-28-38Типовой проект 409-28-38Типовой проект 409-28-38Типовой проект 409-28-38Типовой проект 409-28-38Типовой проект 409-28-38Типовой проект 409-28-38Типовой проект 409-28-38Типовой проект 409-28-38Типовой проект 409-28-38Типовой проект 409-28-38Типовой проект 409-28-38Типовой проект 409-28-38Типовой проект 409-28-38Типовой проект 409-28-38Типовой проект 409-28-38Типовой проект 409-28-38Типовой проект 409-28-38Типовой проект 409-28-38Типовой проект 409-28-38Типовой проект 409-28-38Типовой проект 409-28-38Типовой проект 409-28-38Типовой проект 409-28-38Типовой проект 409-28-38Типовой проект 409-28-38Типовой проект 409-28-38Типовой проект 409-28-38Типовой проект 409-28-38Типовой проект 409-28-38Типовой проект 409-28-38Типовой проект 409-28-38Типовой проект 409-28-38Типовой проект 409-28-38Типовой проект 409-28-38

© 2013 Ёшкин Кот :-) Карта сайта