Скачать Типовой проект 903-4-168.90 Альбом 2. Технология производства. Автоматизация технологии производства. Силовое электрооборудование. Электрическое освещение. Связь и сигнализация. Отопление и вентиляция. Водоснабжение и канализацияДата актуализации: 10.08.2017 Типовой проект 903-4-168.90
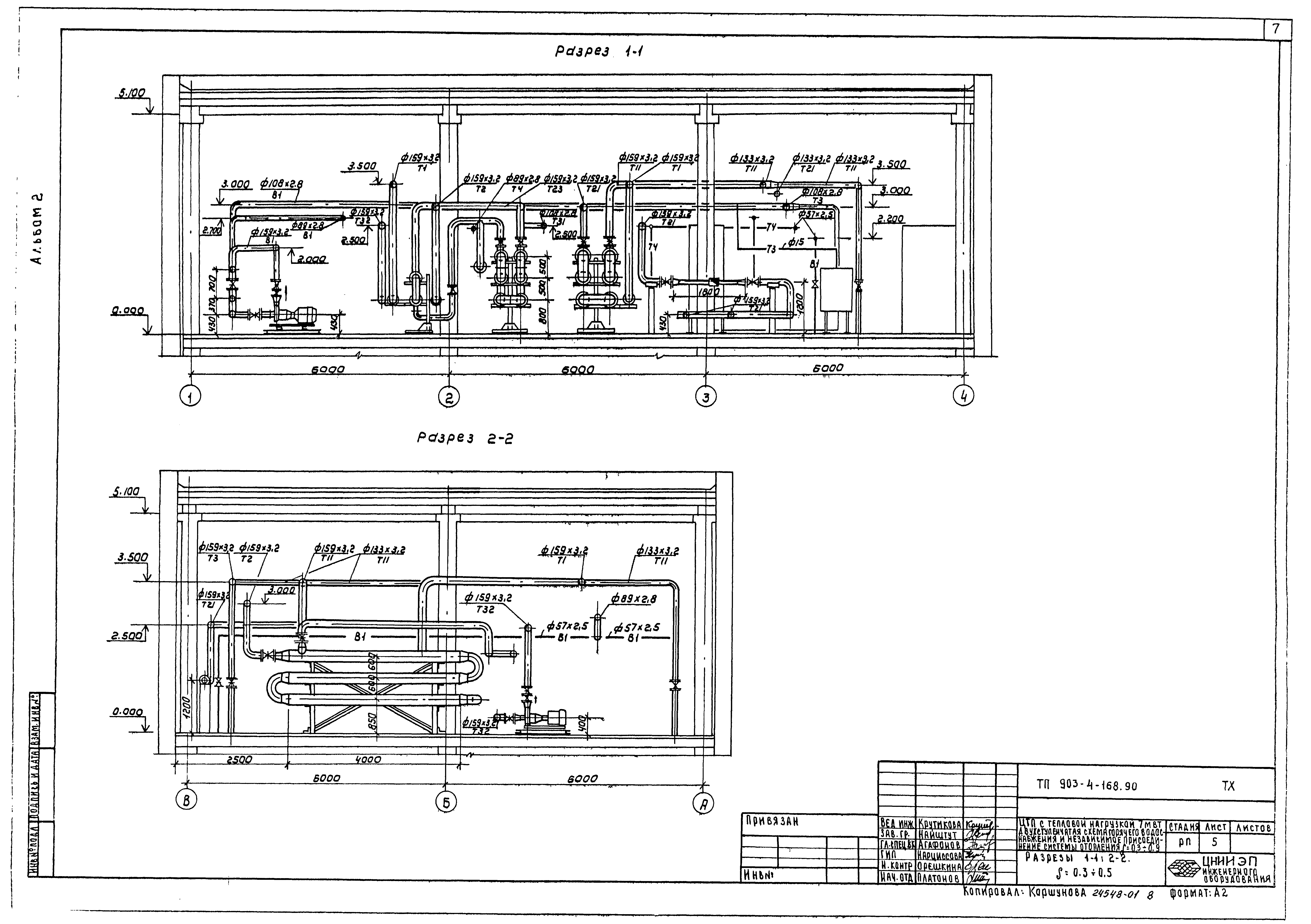
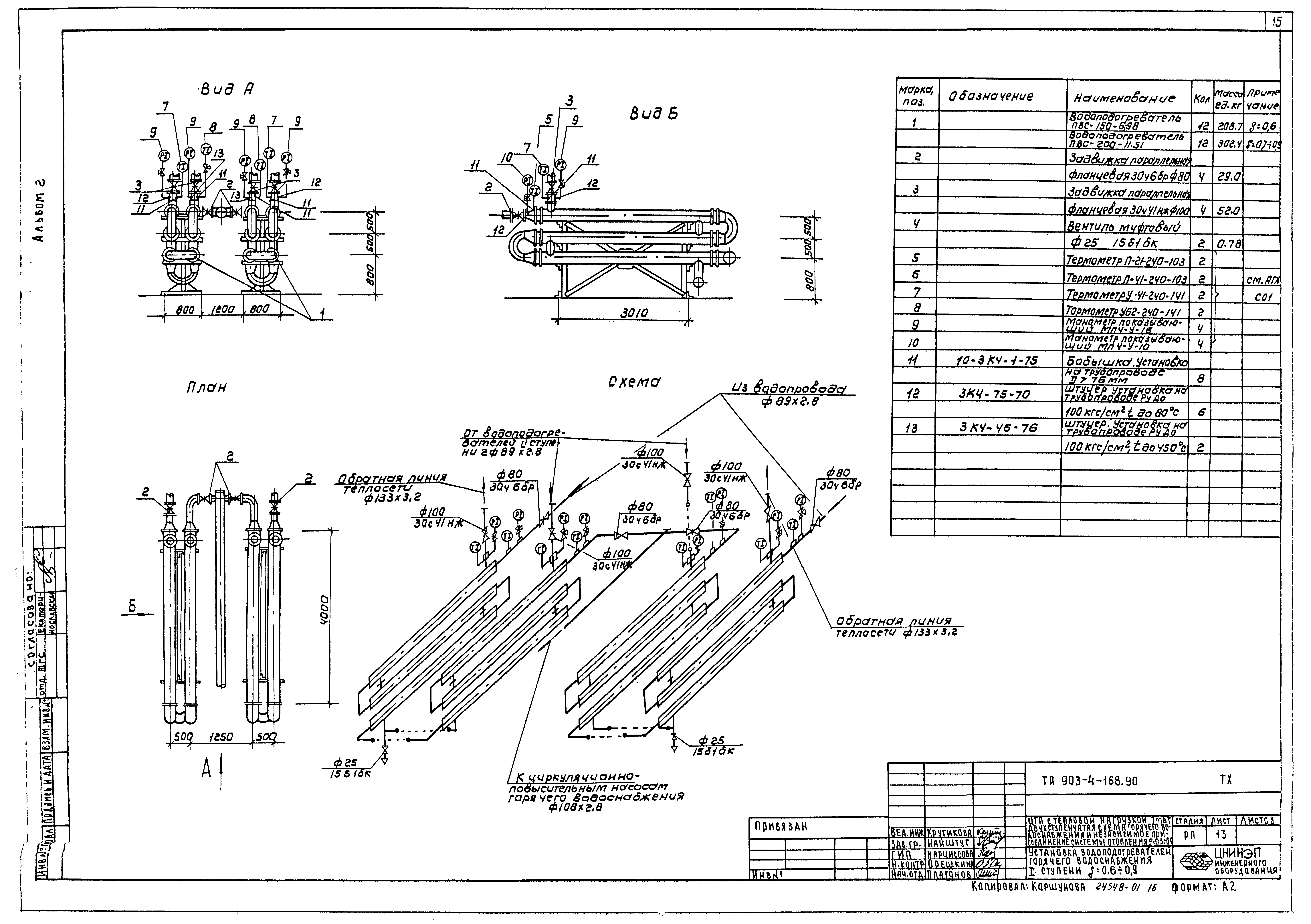
Альбом 2. Технология производства. Автоматизация технологии производства. Силовое электрооборудование. Электрическое освещение. Связь и сигнализация. Отопление и вентиляция. Водоснабжение и канализацияОбозначение: | Типовой проект 903-4-168.90 | Обозначение англ: | 903-4-168.90 | Статус: | не определен законодательством | Название рус.: | Альбом 2. Технология производства. Автоматизация технологии производства. Силовое электрооборудование. Электрическое освещение. Связь и сигнализация. Отопление и вентиляция. Водоснабжение и канализация | Дата добавления в базу: | 01.09.2013 | Дата актуализации: | 05.05.2017 | Дата введения: | 01.03.1991 | Оглавление: | Технология производства Общие данные Технологическая схема теплоснабжения и водоснабжения Принципиальная схема установки силикатной обработки воды План на отм. 0.000, р = 0,3 - 0,5 Разрезы 1-1, 2-2, р = 0,3 - 0,5 Схемы трубопроводов, р = 0,3 - 0,5 План на отм. 0.000, р = 0,6 - 0,9 Разрезы 1-1, 2-2, р = 0,6 - 0,9 Схемы трубопроводов в осях 1 - 3, р = 0,6 - 0,9 Схемы трубопроводов в осях 3 - 4, р = 0,6 - 0,9 Установка водоподогревателей горячего водоснабжения I ступени, р = 0,3 - 0,5 Установка водоподогревателей горячего водоснабжения II ступени, р = 0,3 - 0,5 Установка водоподогревателей горячего водоснабжения I ступени, р = 0,6 - 0,9 Установка водоподогревателей горячего водоснабжения II ступени, р = 0,6 - 0,9 Установка водоподогревателей отопления, р = 0,3 - 0,9 Установка хозяйственных насосов, р = 0,3 - 0,9 Установка подпиточных насосов, р = 0,3 - 0,9 Установка циркуляционно-повысительных насосов горячего водоснабжения, р = 0,3 - 0,9 Установка циркуляционно-повысительных насосов горячего водоснабжения, р = 0,6 - 0,9 Установка циркуляционных насосов отопления, р = 0,3 - 0,5 Установка циркуляционных насосов отопления, р = 0,6 - 0,9 Водопроводный узел. Тепловой узел, р = 0,3 - 0,9 Опорная рама под насосы ОР-1 Опорная рама под насосы ОР-2, ОР-3, ОР-4 Бак для раствора жидкого стекла емкостью 1 куб. м Бак напорный емкостью 1,57 куб. м Фильтр-отстойник Автоматизация технологии производства Общие данные Схема автоматизации Схема электрическая принципиальная регулирования Схема электрическая принципиальная управления хозяйственными насосами Схема электрическая принципиальная управления циркулярно-повысительными насосами ГВС Схема электрическая принципиальная управления подпиточными насосами Схема электрическая принципиальная управления циркуляционными насосами отопления Схема электрическая принципиальная распределительной сети Схема электрическая принципиальная аварийно-предупредительной сигнализации Схема внешних проводок План расположения, р = 0,3 - 0,5 План расположения, р = 0,6 - 0,9 Щит автоматизации. Схема подключения Силовое электрооборудование Общие данные Схема электрическая принципиальная распределительной сети Схема электрическая принципиальная. Управление задвижкой на подпиточной линии Размещение электрооборудования и прокладка кабелей. План, р = 0,3 - 0,5 Размещение электрооборудования и прокладка кабелей. План, р = 0,6 - 0,9 Электрическое освещение Общие данные. Электрическое освещение. План на отм. 0.000. Спецификация Связь и сигнализация Общие данные. План на отм. 0.000 с сетями связи. Спецификация Отопление и вентиляция Общие данные. План на отм. 0.000. Схемы систем П-1, ВЕ-1 Водопровод и канализация Общие данные. Фрагмент плана на отм. 0.000, выкопировка из плана кровли оси "Б". Схемы В1, Т3, К1, К2 | Разработан: | ЦНИИЭП инженерного оборудования
| Утверждён: | 12.11.1990 Госкомархитектура (201)
| Издан: | ЦИТП Госстроя СССР (CITP, Gosstroy (USSR) 1996 г. )
| Расположен в: |
| Заменяет собой: | |
                                                     
|