Скачать Типовой проект 407-3-476.13.87 Альбом 2. Архитектурно-строительные решенияДата актуализации: 10.08.2017 Типовой проект 407-3-476.13.87
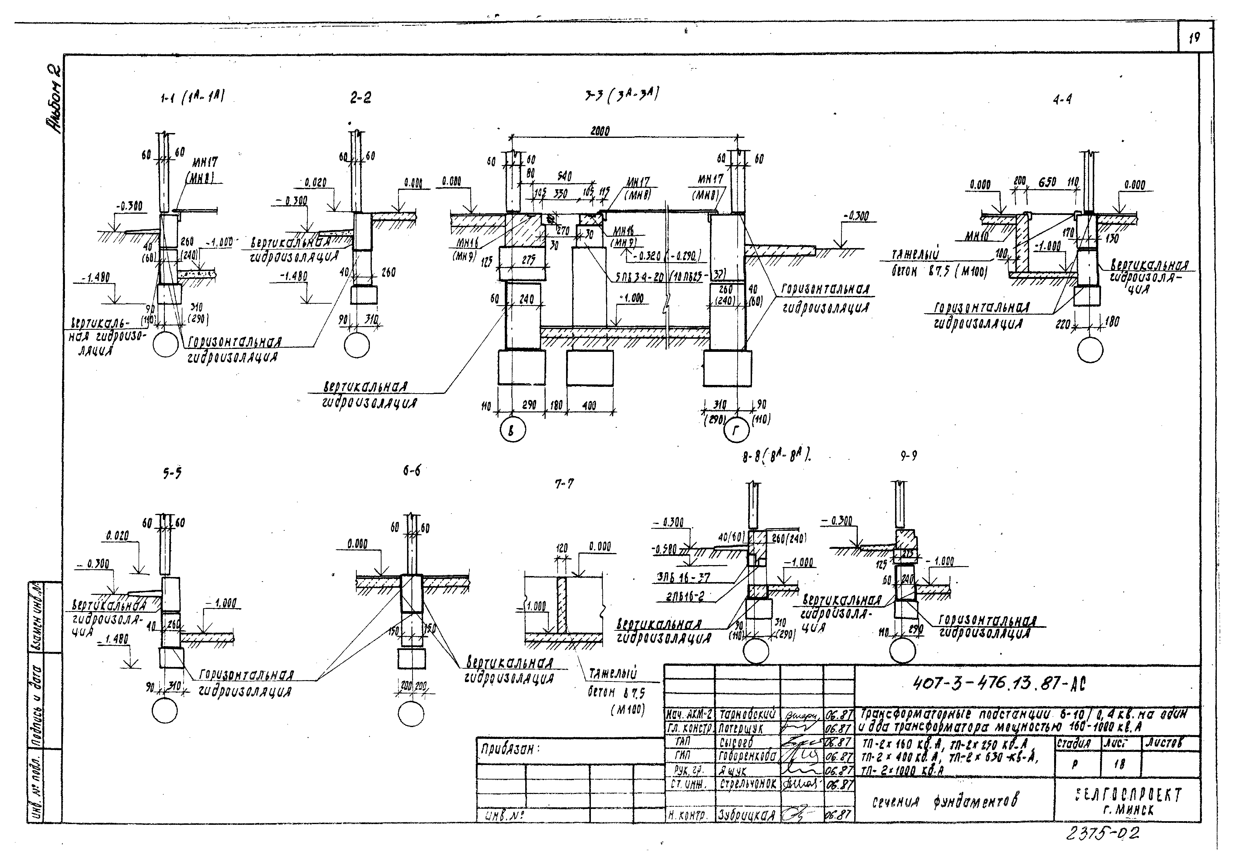
Альбом 2. Архитектурно-строительные решенияОбозначение: | Типовой проект 407-3-476.13.87 | Обозначение англ: | 407-3-476.13.87 | Статус: | действует | Название рус.: | Альбом 2. Архитектурно-строительные решения | Дата добавления в базу: | 01.09.2013 | Дата актуализации: | 05.05.2017 | Оглавление: | Общие данные Фасады 1 - 3; Г - А; 3 - 1; А - Г (4 линейных панели) План (4 линейных панели) Схема расположения фундаментных блоков. Схема нагрузок (4 линейных панели) Развертки стен подземной части по осям А, Б, В, Г, 1, 2, 3 (4 линейных панели) План подземной части (4 линейных панели) План на отм. 0.000. План кровли (4 линейных панели) Схема расположения элементов стен. Схема расположения элементов покрытия (4 линейных панели) Фасады Г - А; А - Г; 1 - 5; 5 - 1 (8 линейных панелей) План (8 линейных панелей) Схема расположения фундаментных блоков. Схема нагрузок (8 линейных панелей) Развертки стен подземной части по осям А, Б, В, Г, 1, 2, 3, 4, 5 (8 линейных панелей) План подземной части (8 линейных панелей) План на отм. 0.000. План кровли (8 линейных панелей) Схема расположения элементов стен. Схема расположения элементов покрытия (8 линейных панелей) Сечения фундаментов Разрезы 1-1; 1а-1а Деталь устройства ввода электрического кабеля Детали кровли Узлы монтажные Спецификация железобетонных изделий (4 линейных панели) Спецификация металлических изделий (4 линейных панели) Спецификация железобетонных изделий (8 линейных панелей) Спецификация металлических изделий (8 линейных панелей) | Разработан: | Белгоспроект
| Утверждён: | 14.12.1987 Госстрой БССР (BSSR Gosstroy )
| Расположен в: |
| Заменяет собой: | - Типовой проект 407-3-316 «Трансформаторные подстанции ТП-2х160, ТП-2х250, ТП-2х400, ТП-2х630, ТП-2х1000 кВА. Стены из панелей»
|
                             
|