Информационная система
«Ёшкин Кот»

Скачать базу одним архивом
Скачать обновления
История создания базы
Карта сайта

Скачать Типовой проект 271-23-17.84 Альбом II. Отопление и вентиляция. Водопровод и канализация. Холодоснабжение. Электроосвещение и силовое электрооборудование. Автоматизация устройств инженерного оборудования. Связь и сигнализация

Дата актуализации: 10.08.2017

Типовой проект 271-23-17.84

Альбом II. Отопление и вентиляция. Водопровод и канализация. Холодоснабжение. Электроосвещение и силовое электрооборудование. Автоматизация устройств инженерного оборудования. Связь и сигнализация

Обозначение: Типовой проект 271-23-17.84
Обозначение англ: 271-23-17.84
Статус:не определен законодательством
Название рус.:Альбом II. Отопление и вентиляция. Водопровод и канализация. Холодоснабжение. Электроосвещение и силовое электрооборудование. Автоматизация устройств инженерного оборудования. Связь и сигнализация
Дата добавления в базу:01.09.2013
Дата актуализации:05.05.2017
Дата введения:30.01.1985
Оглавление:Отопление и вентиляция
   Общие данные
   План технического подполья
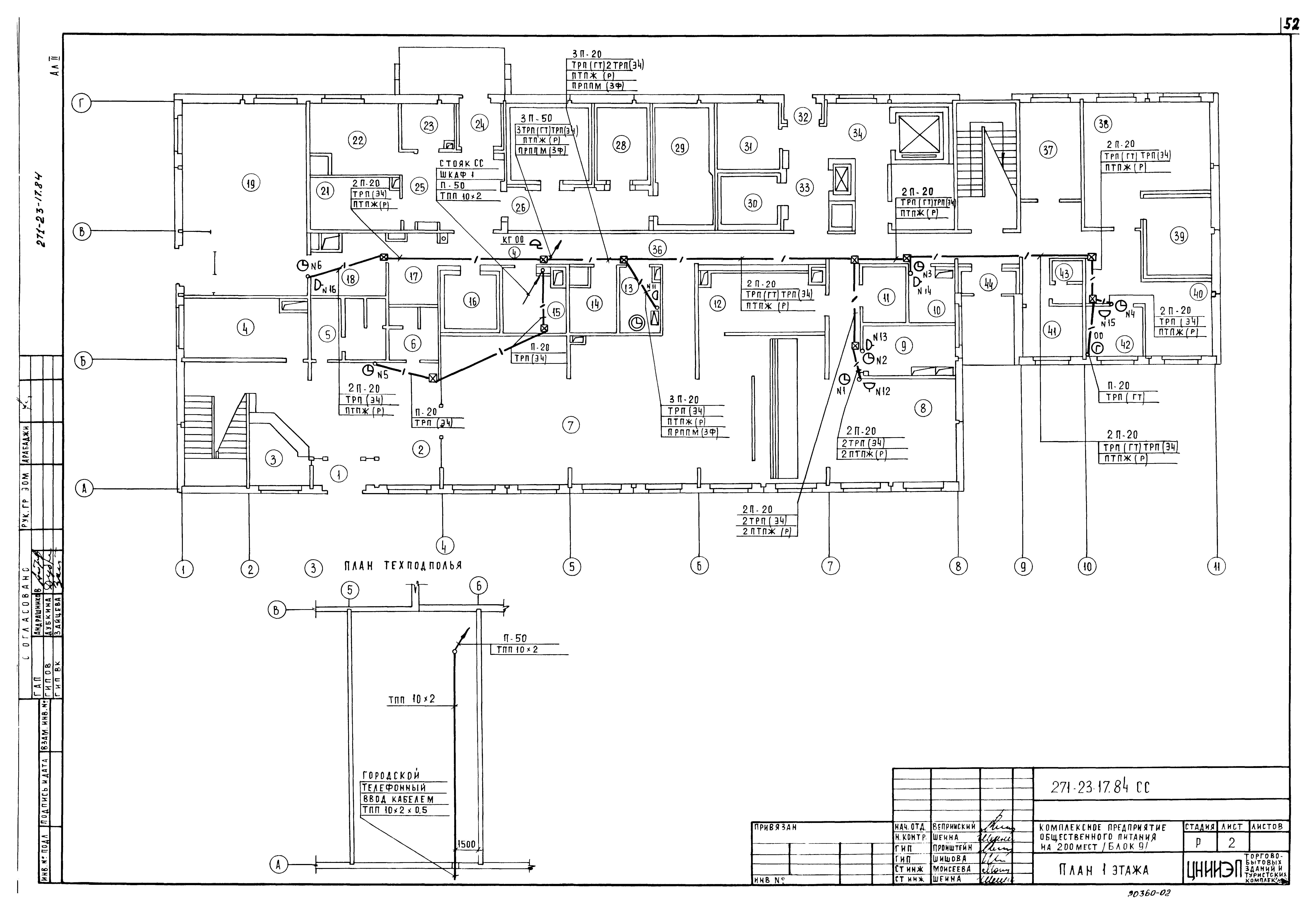
   План 1 этажа
   План 2 этажа
   Схема системы отопления
   Схема систем теплоснабжения установок П1, У1. Схема узла управления
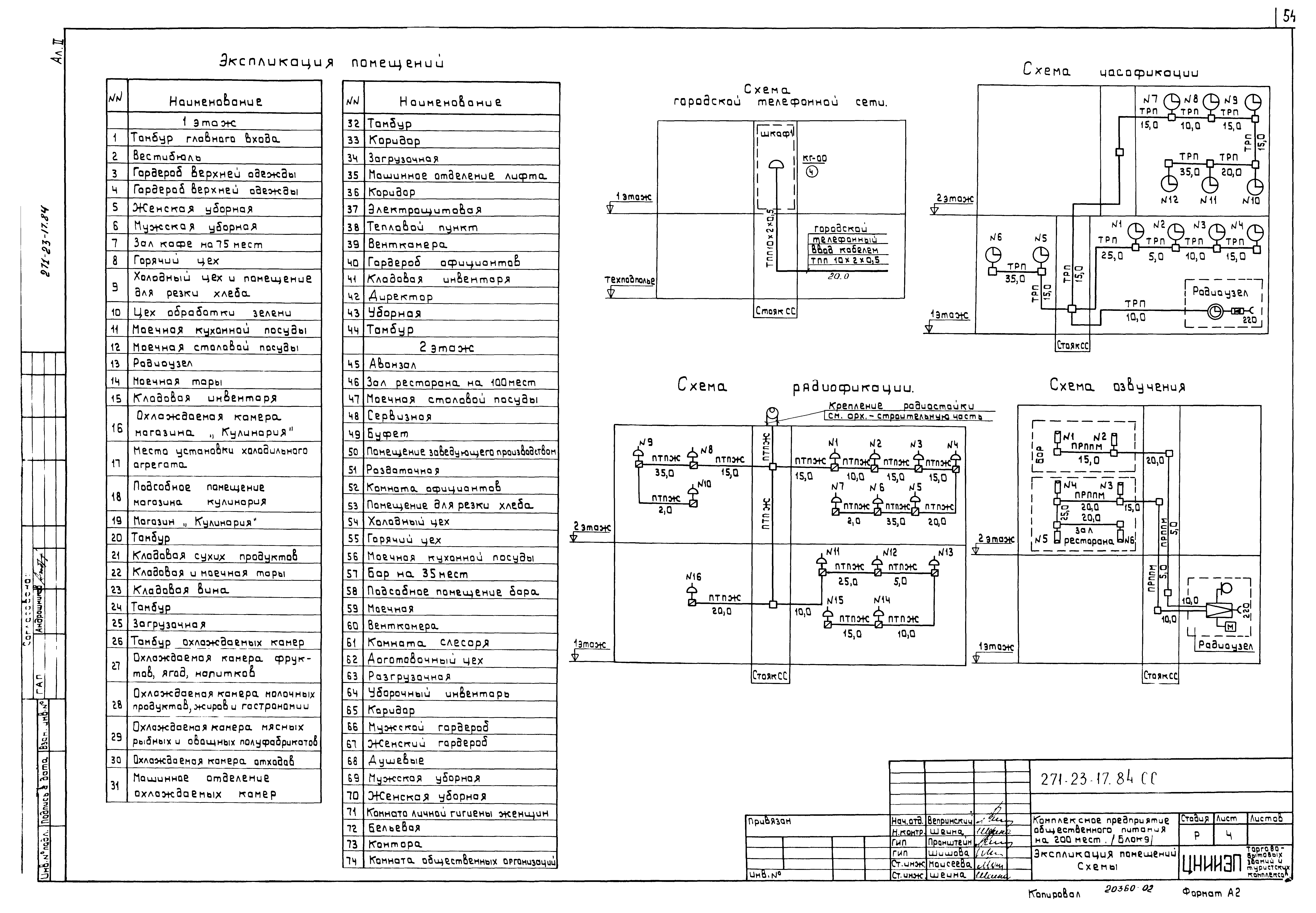
   Экспликация помещений. Схемы систем ВЕ1 - ВЕ17
   Схемы систем П1 - П3
   Схемы систем В1 - В6
   Установка системы П1
   Установка системы У1. Спецификация вентиляционных установок П1, В1, У1
   Установка систем В1, В4 - В6
Эскизные чертежи общих видов нетиповых конструкций отопления и вентиляции
   Ведомость чертежей
   Зонты 1, 2, 3
   Секция переходная установки системы П1
   Тепловая изоляция воздуховода
   Тепловая изоляция трубопроводов
Водопровод и канализация
   Общие данные
   План технического подполья
   План 1 этажа с системами В1, Т3
   План 2 этажа с системами В1, Т3
   Схема систем В1, Т3
   План 1 этажа с системами К1, К2, К3. Переливной бачок
   План 1 этажа с системами К1, К2, К3. Воронка
   Схемы систем К1, К2, К3
Холодоснабжение
   Общие данные
   План и разрезы 1-1, 2-2 охлаждаемых камер 1 этажа в осях 5 - 7, В - Г
   Схемы хладоновых трубопроводов охлаждаемых камер 1 этажа
   План, разрезы 3-3, 4-4 и схема хладоновых трубопроводов охлаждаемой камеры 1 этажа в осях 4 - 8
Электрическое освещение. Силовое электрооборудование
   Общие данные
   Схема питающих сетей. Схема автоматического отключения вентиляции при пожаре
   План осветительных, силовых и питающих сетей техподполья. Экспликация помещения
   План осветительных сетей 1 этажа
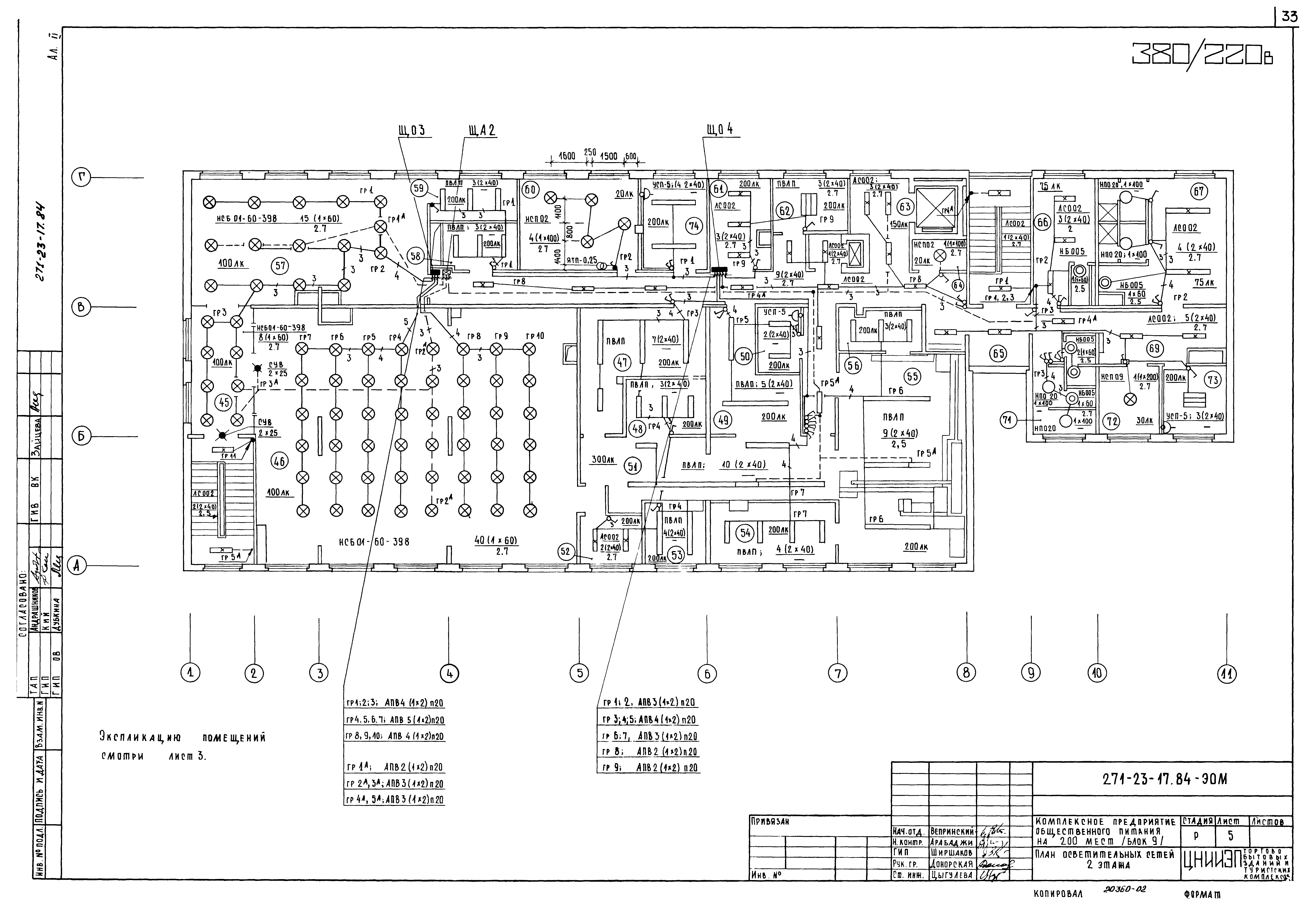
   План осветительных сетей 2 этажа
   План силовых и питающих сетей 1 этажа
   План силовых и питающих сетей 2 этажа
   Расчетная схема ЩС1, ЩС2, ЩС3
   Расчетная схема ЩС3, ЩС4, ЩС5
   Расчетная схема ЩС5, ЩС6, ЩС7
   Опросный лист на ВРЩ
Автоматизация устройств инженерного оборудования
   Общие данные
   Приточная система П1. Схема функциональная
   Приточная система П1. Схема электрическая принципиальная
   Приточная система П1. Схема соединений внешних проводок
   Узел присоединения калориферов. Схема функциональная и соединений внешних проводок, план расположения
   Завеса У1. Схемы функциональная, электрическая принципиальная, соединений внешних проводок
   Приточная система П1. Завеса У1. План расположения
   Холодильные машины 1, 2 для камер. Схема соединений внешних проводок
   Холодильная машина 3 для камер. Схема соединений внешних проводок
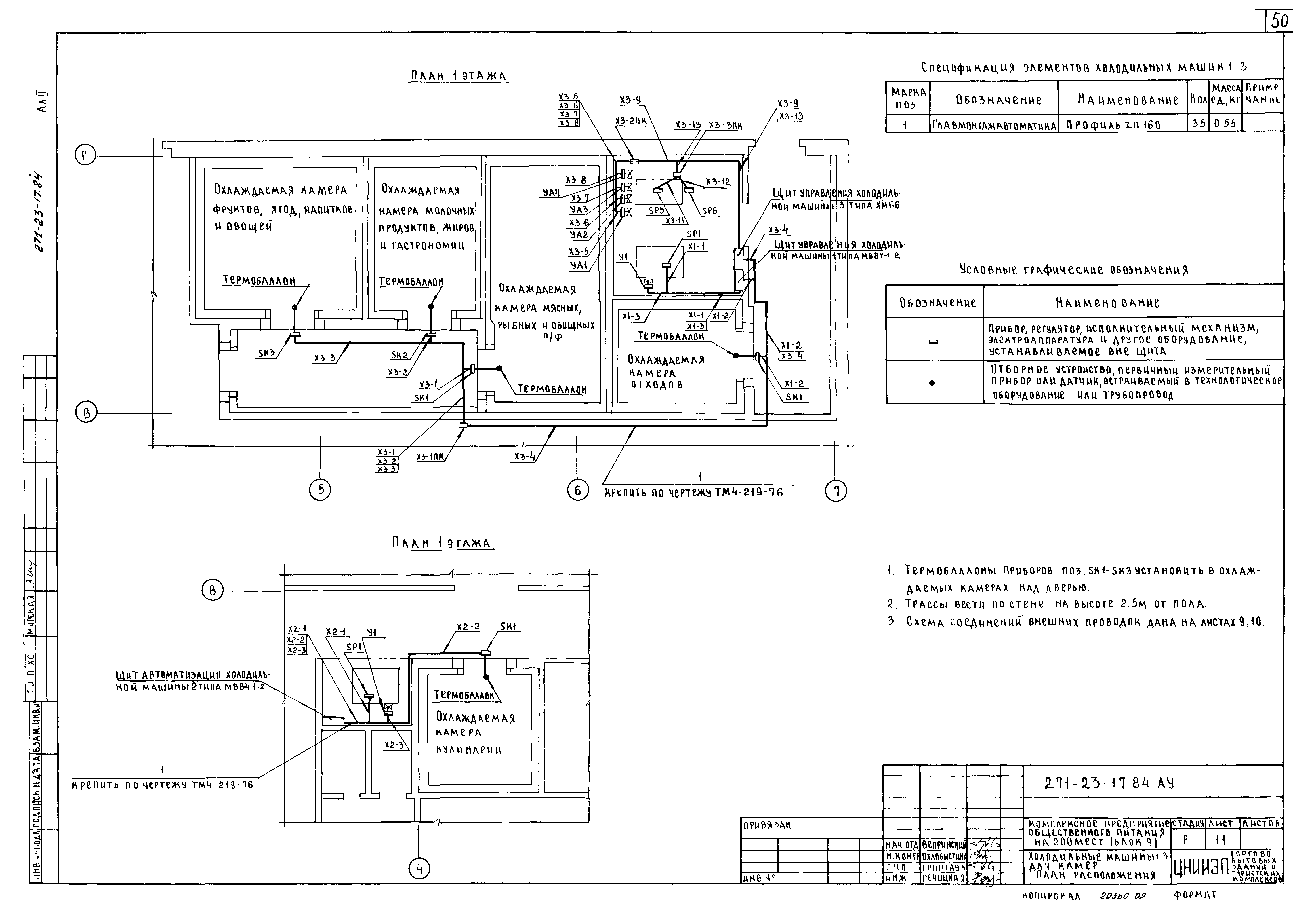
   Холодильные машины 1 - 3 для камер. План расположения
Связь и сигнализация
   Общие данные
   План 1 этажа
   План 2 этажа
   Экспликация помещений. Схемы
   Узлы скрытой проводки
Разработан: ЦНИИЭП торгово-бытовых зданий и туристских комплексов
Утверждён:12.11.1981 Госгражданстрой (Gosgrazhdanstroy 317)
Расположен в:Техническая документация Строительство Справочные документы Типовые строительные конструкции, изделия и узлы Общероссийский строительный каталог Общественные здания в городах и поселках городского типа Предприятия торговли и общественного питания. Общественные центры Предприятия общественного питания Комплексные предприятия общественного питания
Типовой проект 271-23-17.84Типовой проект 271-23-17.84Типовой проект 271-23-17.84Типовой проект 271-23-17.84Типовой проект 271-23-17.84Типовой проект 271-23-17.84Типовой проект 271-23-17.84Типовой проект 271-23-17.84Типовой проект 271-23-17.84Типовой проект 271-23-17.84Типовой проект 271-23-17.84Типовой проект 271-23-17.84Типовой проект 271-23-17.84Типовой проект 271-23-17.84Типовой проект 271-23-17.84Типовой проект 271-23-17.84Типовой проект 271-23-17.84Типовой проект 271-23-17.84Типовой проект 271-23-17.84Типовой проект 271-23-17.84Типовой проект 271-23-17.84Типовой проект 271-23-17.84Типовой проект 271-23-17.84Типовой проект 271-23-17.84Типовой проект 271-23-17.84Типовой проект 271-23-17.84Типовой проект 271-23-17.84Типовой проект 271-23-17.84Типовой проект 271-23-17.84Типовой проект 271-23-17.84Типовой проект 271-23-17.84Типовой проект 271-23-17.84Типовой проект 271-23-17.84Типовой проект 271-23-17.84Типовой проект 271-23-17.84Типовой проект 271-23-17.84Типовой проект 271-23-17.84Типовой проект 271-23-17.84Типовой проект 271-23-17.84Типовой проект 271-23-17.84Типовой проект 271-23-17.84Типовой проект 271-23-17.84Типовой проект 271-23-17.84Типовой проект 271-23-17.84Типовой проект 271-23-17.84Типовой проект 271-23-17.84Типовой проект 271-23-17.84Типовой проект 271-23-17.84Типовой проект 271-23-17.84Типовой проект 271-23-17.84Типовой проект 271-23-17.84Типовой проект 271-23-17.84Типовой проект 271-23-17.84Типовой проект 271-23-17.84Типовой проект 271-23-17.84Типовой проект 271-23-17.84

© 2013 Ёшкин Кот :-) Карта сайта