Скачать Типовой проект А-II,III-100-298.85 Альбом III. Отопление и вентиляция. Водоснабжение и канализацияДата актуализации: 10.08.2017 Типовой проект А-II,III-100-298.85
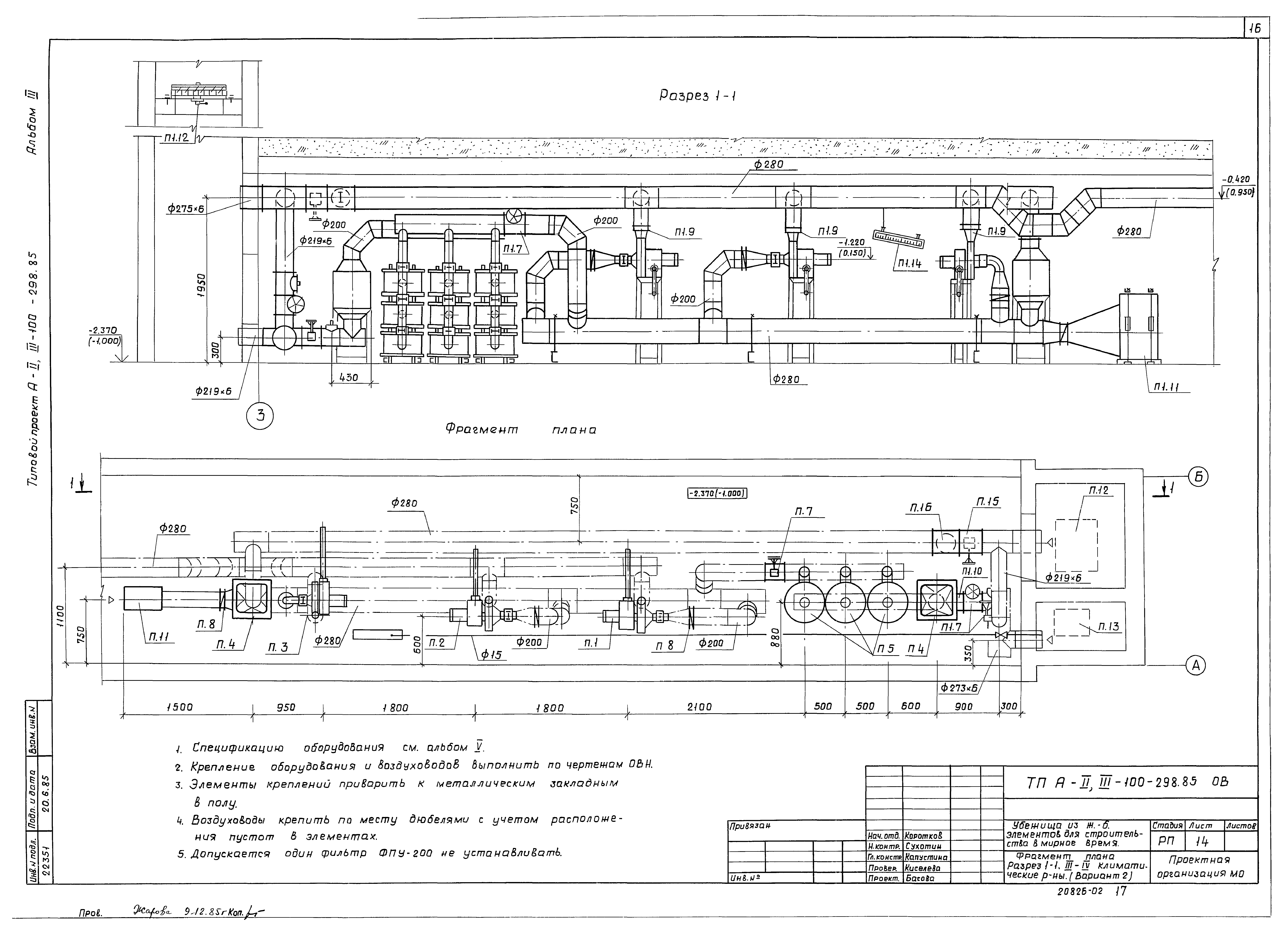
Альбом III. Отопление и вентиляция. Водоснабжение и канализацияОбозначение: | Типовой проект А-II,III-100-298.85 | Обозначение англ: | А-II,III-100-298.85 | Статус: | не определен законодательством | Название рус.: | Альбом III. Отопление и вентиляция. Водоснабжение и канализация | Дата добавления в базу: | 01.09.2013 | Дата актуализации: | 05.05.2017 | Дата введения: | 18.07.1985 | Оглавление: | Обложка Титульный лист Содержание альбома Чертежи основного комплекта марки ОВ Общие данные Принципиальная схема. План. I климатический район (вариант 1) Фрагмент плана. Разрез 1-1. I климатический район (вариант 1) Принципиальная схема. План. II климатический район (вариант 1) Фрагмент плана. Разрез 1-1. II климатический район (вариант 1) Принципиальная схема. План. III - IV климатические районы (вариант 1) Фрагмент плана. Разрез 1-1. III - IV климатические районы (вариант 1) Принципиальная схема. План. I - II климатические районы (вариант 2) Фрагмент плана. Разрезы 1-1, 2-2. I - II климатические районы (вариант 2) Принципиальная схема. План. III - IV климатические районы (вариант 2) Фрагмент плана. Разрез 1-1. III - IV климатические районы (вариант 2) Схема систем вентиляции. I - IV климатические районы (вариант 1) Схема систем вентиляции. I - IV климатические районы (вариант 2) Чертежи основного комплекта марки ВК Общие данные План с размещением оборудования Чертежи общих видов нетиповых конструкций ОВН Крепление 1 (электроручной вентилятор) Крепление 2 (фильтр-поглотитель) Крепление 3 (предфильтр, фильтр в коробке) Крепление 4 (электрокалорифер) Крепления 5, 6 (воздуховод) | Разработан: | Проектная организация МО
| Утверждён: | 18.07.1985 Управление ГО СССР (235/11/1949)
| Расположен в: |
|
                       
|