Информационная система
«Ёшкин Кот»

Скачать базу одним архивом
Скачать обновления
История создания базы
Карта сайта

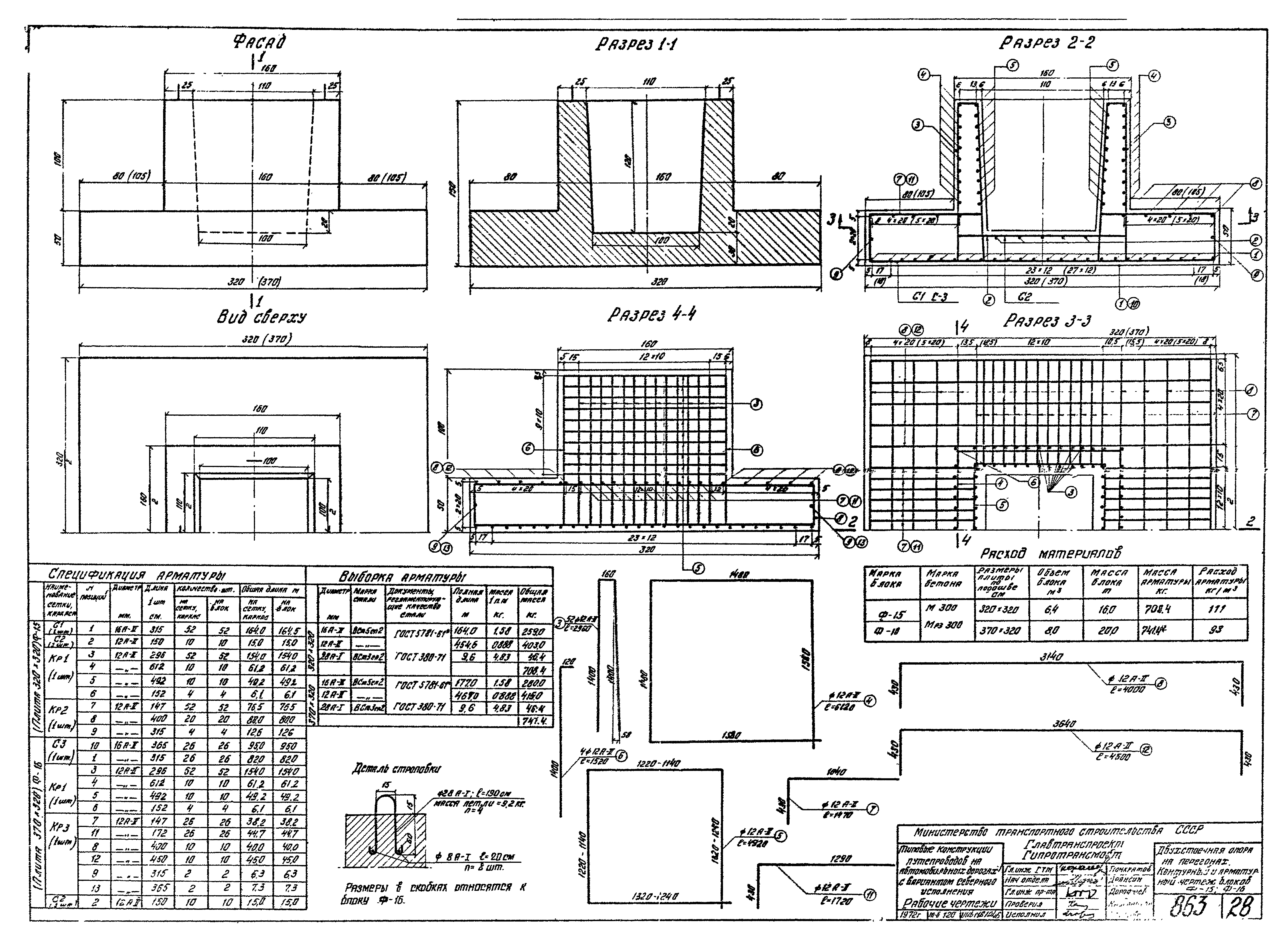
Скачать Типовой проект 3.503-28 Типовой проект путепроводов на автомобильных дорогах для пересечения в разных уровнях автомобильных дорог и железнодорожных путей на перегонах и станциях с вариантом северного исполнения. Рабочие чертежи

Дата актуализации: 10.08.2017

Типовой проект 3.503-28

Типовой проект путепроводов на автомобильных дорогах для пересечения в разных уровнях автомобильных дорог и железнодорожных путей на перегонах и станциях с вариантом северного исполнения. Рабочие чертежи

Обозначение: Типовой проект 3.503-28
Обозначение англ: 3.503-28
Статус:не действует
Название рус.:Типовой проект путепроводов на автомобильных дорогах для пересечения в разных уровнях автомобильных дорог и железнодорожных путей на перегонах и станциях с вариантом северного исполнения. Рабочие чертежи
Дата добавления в базу:01.09.2013
Дата актуализации:05.05.2017
Дата окончания срока действия:01.01.1991
Разработан: Гипротрансмост
Утверждён:04.05.1973 МПС (Ministry of Railroads 2245)
Расположен в:Техническая документация Строительство Справочные документы Типовые строительные конструкции, изделия и узлы Общероссийский строительный каталог Строительные конструкции, изделия и узлы зданий и сооружений для всех видов строительства Конструкции и изделия сооружений и оборудования зданий Надземные сооружения Конструкции и сооружения транспорта Пролетные строения мостов, мосты и путепроводы
Заменяет собой:
  • 332
Чем заменён:
Типовой проект 3.503-28Типовой проект 3.503-28Типовой проект 3.503-28Типовой проект 3.503-28Типовой проект 3.503-28Типовой проект 3.503-28Типовой проект 3.503-28Типовой проект 3.503-28Типовой проект 3.503-28Типовой проект 3.503-28Типовой проект 3.503-28Типовой проект 3.503-28Типовой проект 3.503-28Типовой проект 3.503-28Типовой проект 3.503-28Типовой проект 3.503-28Типовой проект 3.503-28Типовой проект 3.503-28Типовой проект 3.503-28Типовой проект 3.503-28Типовой проект 3.503-28Типовой проект 3.503-28Типовой проект 3.503-28Типовой проект 3.503-28Типовой проект 3.503-28Типовой проект 3.503-28Типовой проект 3.503-28Типовой проект 3.503-28Типовой проект 3.503-28Типовой проект 3.503-28Типовой проект 3.503-28Типовой проект 3.503-28Типовой проект 3.503-28Типовой проект 3.503-28Типовой проект 3.503-28Типовой проект 3.503-28Типовой проект 3.503-28Типовой проект 3.503-28Типовой проект 3.503-28Типовой проект 3.503-28Типовой проект 3.503-28Типовой проект 3.503-28Типовой проект 3.503-28Типовой проект 3.503-28Типовой проект 3.503-28Типовой проект 3.503-28Типовой проект 3.503-28Типовой проект 3.503-28Типовой проект 3.503-28Типовой проект 3.503-28Типовой проект 3.503-28Типовой проект 3.503-28Типовой проект 3.503-28Типовой проект 3.503-28Типовой проект 3.503-28Типовой проект 3.503-28Типовой проект 3.503-28Типовой проект 3.503-28Типовой проект 3.503-28Типовой проект 3.503-28Типовой проект 3.503-28Типовой проект 3.503-28Типовой проект 3.503-28Типовой проект 3.503-28Типовой проект 3.503-28Типовой проект 3.503-28Типовой проект 3.503-28Типовой проект 3.503-28Типовой проект 3.503-28Типовой проект 3.503-28Типовой проект 3.503-28Типовой проект 3.503-28Типовой проект 3.503-28Типовой проект 3.503-28Типовой проект 3.503-28Типовой проект 3.503-28Типовой проект 3.503-28Типовой проект 3.503-28Типовой проект 3.503-28Типовой проект 3.503-28Типовой проект 3.503-28Типовой проект 3.503-28Типовой проект 3.503-28Типовой проект 3.503-28Типовой проект 3.503-28Типовой проект 3.503-28Типовой проект 3.503-28Типовой проект 3.503-28Типовой проект 3.503-28Типовой проект 3.503-28Типовой проект 3.503-28Типовой проект 3.503-28Типовой проект 3.503-28Типовой проект 3.503-28Типовой проект 3.503-28Типовой проект 3.503-28Типовой проект 3.503-28Типовой проект 3.503-28Типовой проект 3.503-28Типовой проект 3.503-28Типовой проект 3.503-28Типовой проект 3.503-28Типовой проект 3.503-28Типовой проект 3.503-28Типовой проект 3.503-28Типовой проект 3.503-28Типовой проект 3.503-28Типовой проект 3.503-28

© 2013 Ёшкин Кот :-) Карта сайта