Информационная система
«Ёшкин Кот»

Скачать базу одним архивом
Скачать обновления
История создания базы
Карта сайта

Скачать Серия ОВ-02-04 Выпуск 1. Виброизолирующие основания под агрегаты с вентиляторами до шестого номера

Дата актуализации: 10.08.2017

Серия ОВ-02-04

Выпуск 1. Виброизолирующие основания под агрегаты с вентиляторами до шестого номера

Обозначение: Серия ОВ-02-04
Обозначение англ: Series ОВ-02-04
Статус:не действует
Название рус.:Выпуск 1. Виброизолирующие основания под агрегаты с вентиляторами до шестого номера
Дата добавления в базу:01.09.2013
Дата актуализации:05.05.2017
Оглавление:Пояснительная записка
Указания для проектирования
Сводные таблицы чертежей и данные для подбора виброизоляторов под электровентиляторы
Данные для подбора виброизоляторов под вентиляционные агрегаты с клиноременной передачей
Данные для подбора виброизоляторов под вентиляционные агрегаты с эластичной муфтой
Виброизолирующее основание с резиновыми амортизаторами для электровентиляторов типа Ц9-57 (ЦАГИ СТД-57) №3 и 4
Виброизолирующее основание с резиновыми амортизаторами для электровентиляторов серии ЭВР №3, 4, 5 и 6
Виброизолирующее основание с пружинными амортизаторами для электровентиляторов типа Ц-57 (ЦАГИ СТД-57) №3 и 4 и серии ЭВР №3, 4, 5 и 6
Рамы виброизолирующих оснований для агрегатов с клиноременной передачей к вентиляторам типа Ц9-57 (ЦАГИ СТД-57) №3
Рамы виброизолирующих оснований для агрегатов с клиноременной передачей к вентиляторам типа Ц9-57 (ЦАГИ СТД-57) №4
Рамы виброизолирующих оснований для агрегатов с клиноременной передачей к вентиляторам типа Ц9-57 (ЦАГИ СТД-57) №5
Рамы виброизолирующих оснований для агрегатов с клиноременной передачей к вентиляторам типа Ц9-57 (ЦАГИ СТД-57) №6
Рамы виброизолирующих оснований для агрегатов с клиноременной передачей к вентиляторам серии ВР №3
Рамы виброизолирующих оснований для агрегатов с клиноременной передачей к вентиляторам серии ВР №4
Рамы виброизолирующих оснований для агрегатов с клиноременной передачей к вентиляторам серии ВР №5
Рамы виброизолирующих оснований для агрегатов с клиноременной передачей к вентиляторам серии ВР №6
Рамы виброизолирующих оснований для агрегатов с клиноременной передачей к вентиляторам типа Ц9-55 №4
Рамы виброизолирующих оснований для агрегатов с клиноременной передачей к вентиляторам типа Ц9-55 №5
Рамы виброизолирующих оснований для агрегатов с клиноременной передачей к вентиляторам типа Ц9-55 №6
Виброизолирующие основания с резиновыми амортизаторами для агрегатов с эластичной муфтой к вентиляторам типа Ц9-57 (ЦАГИ СТД57) №5
Виброизолирующие основания с резиновыми амортизаторами для агрегатов с эластичной муфтой к вентиляторам типа Ц9-57 (ЦАГИ СТД57) №6
Виброизолирующие основания с резиновыми амортизаторами для агрегатов с эластичной муфтой к вентиляторам типа Ц9-55 №4
Виброизолирующие основания с резиновыми амортизаторами для агрегатов с эластичной муфтой к вентиляторам типа Ц9-55 №5
Виброизолирующие основания с резиновыми амортизаторами для агрегатов с эластичной муфтой к вентиляторам типа Ц9-55 №6
Виброизолирующие основания с пружинными амортизаторами для агрегатов с эластичной муфтой к вентиляторам типа Ц9-57 (ЦАГИ СТД-57) №5
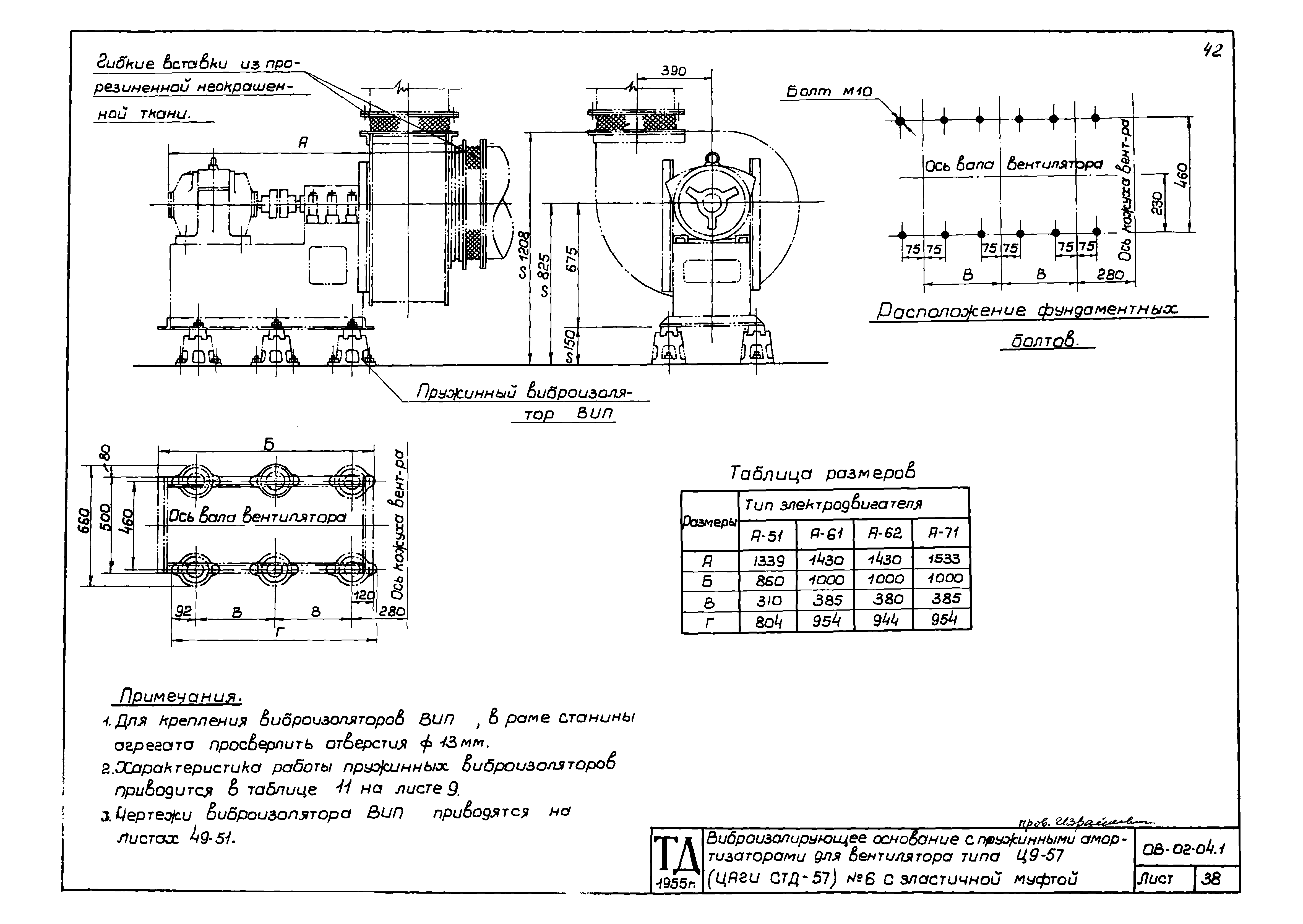
Виброизолирующие основания с пружинными амортизаторами для агрегатов с эластичной муфтой к вентиляторам типа Ц9-57 (ЦАГИ СТД-57) №6
Виброизолирующие основания с пружинными амортизаторами для агрегатов с эластичной муфтой к вентиляторам типа Ц9-55 №4
Виброизолирующие основания с пружинными амортизаторами для агрегатов с эластичной муфтой к вентиляторам типа Ц9-55 №5
Виброизолирующие основания с пружинными амортизаторами для агрегатов с эластичной муфтой к вентиляторам типа Ц9-55 №6 с электродвигателями А-72-8 и АО-72-6
Виброизолирующие основания с пружинными амортизаторами для агрегатов с эластичной муфтой к вентиляторам типа Ц9-55 №6 с электродвигателями А-71-4 и МА-144-1/6
Виброизолятор с резиновыми амортизаторами ВИР-1
Виброизолятор с резиновыми амортизаторами ВИР-2
Виброизолятор пружинный ВИП
Разработан: Министерство строительства предприятий металлургической и химической промышленности СССР
Утверждён:16.12.1954 Госстрой СССР (Государственный комитет Совета Министров СССР по делам строительства) (USSR Gosstroy )
Расположен в:Техническая документация Строительство Справочные документы Типовые строительные конструкции, изделия и узлы Общероссийский строительный каталог Строительные конструкции, изделия и узлы зданий и сооружений для всех видов строительства Инженерное оборудование Инженерное оборудование; изделия и узлы инженерного оборудования зданий и сооружений Воздухоснабжение, вентиляция и кондиционирование Воздуховоды, вентиляторы, компрессоры
Серия ОВ-02-04Серия ОВ-02-04Серия ОВ-02-04Серия ОВ-02-04Серия ОВ-02-04Серия ОВ-02-04Серия ОВ-02-04Серия ОВ-02-04Серия ОВ-02-04Серия ОВ-02-04Серия ОВ-02-04Серия ОВ-02-04Серия ОВ-02-04Серия ОВ-02-04Серия ОВ-02-04Серия ОВ-02-04Серия ОВ-02-04Серия ОВ-02-04Серия ОВ-02-04Серия ОВ-02-04Серия ОВ-02-04Серия ОВ-02-04Серия ОВ-02-04Серия ОВ-02-04Серия ОВ-02-04Серия ОВ-02-04Серия ОВ-02-04Серия ОВ-02-04Серия ОВ-02-04Серия ОВ-02-04Серия ОВ-02-04Серия ОВ-02-04Серия ОВ-02-04Серия ОВ-02-04Серия ОВ-02-04Серия ОВ-02-04Серия ОВ-02-04Серия ОВ-02-04Серия ОВ-02-04Серия ОВ-02-04Серия ОВ-02-04Серия ОВ-02-04Серия ОВ-02-04Серия ОВ-02-04Серия ОВ-02-04Серия ОВ-02-04Серия ОВ-02-04Серия ОВ-02-04Серия ОВ-02-04Серия ОВ-02-04Серия ОВ-02-04Серия ОВ-02-04Серия ОВ-02-04Серия ОВ-02-04Серия ОВ-02-04Серия ОВ-02-04

© 2013 Ёшкин Кот :-) Карта сайта