Скачать Серия КЭ-01-07 Выпуск 5. Колонны двухветвевые безраскосные с нагрузкой от кранов 10, 20 и 30 тонн, с шагом для наружных рядов 6 м и для внутренних рядов 12 м при осуществлении нулевого цикла работ до монтажа конструкций (для 1-го географического района ветровой нагрузки)Дата актуализации: 10.08.2017 Серия КЭ-01-07
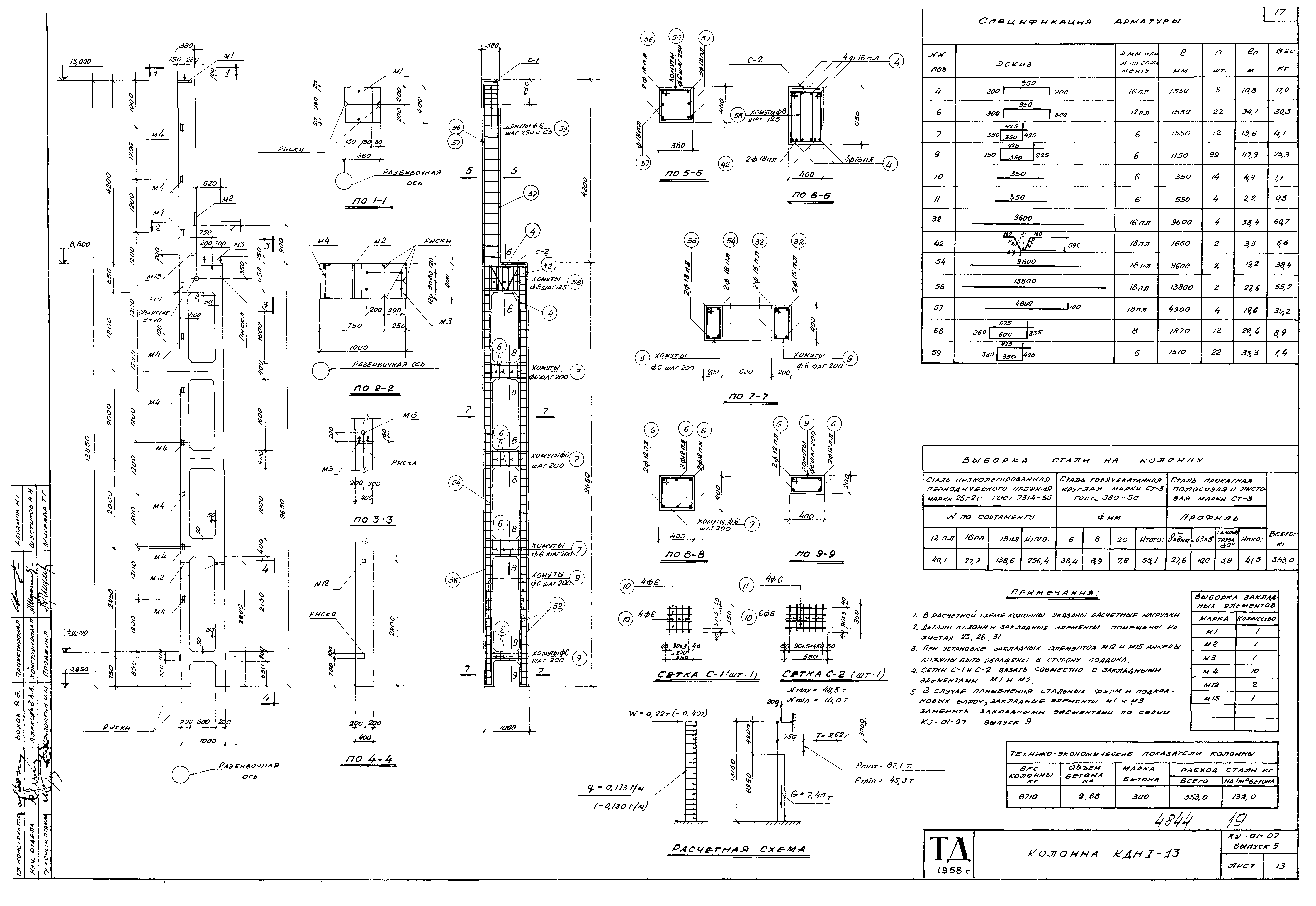
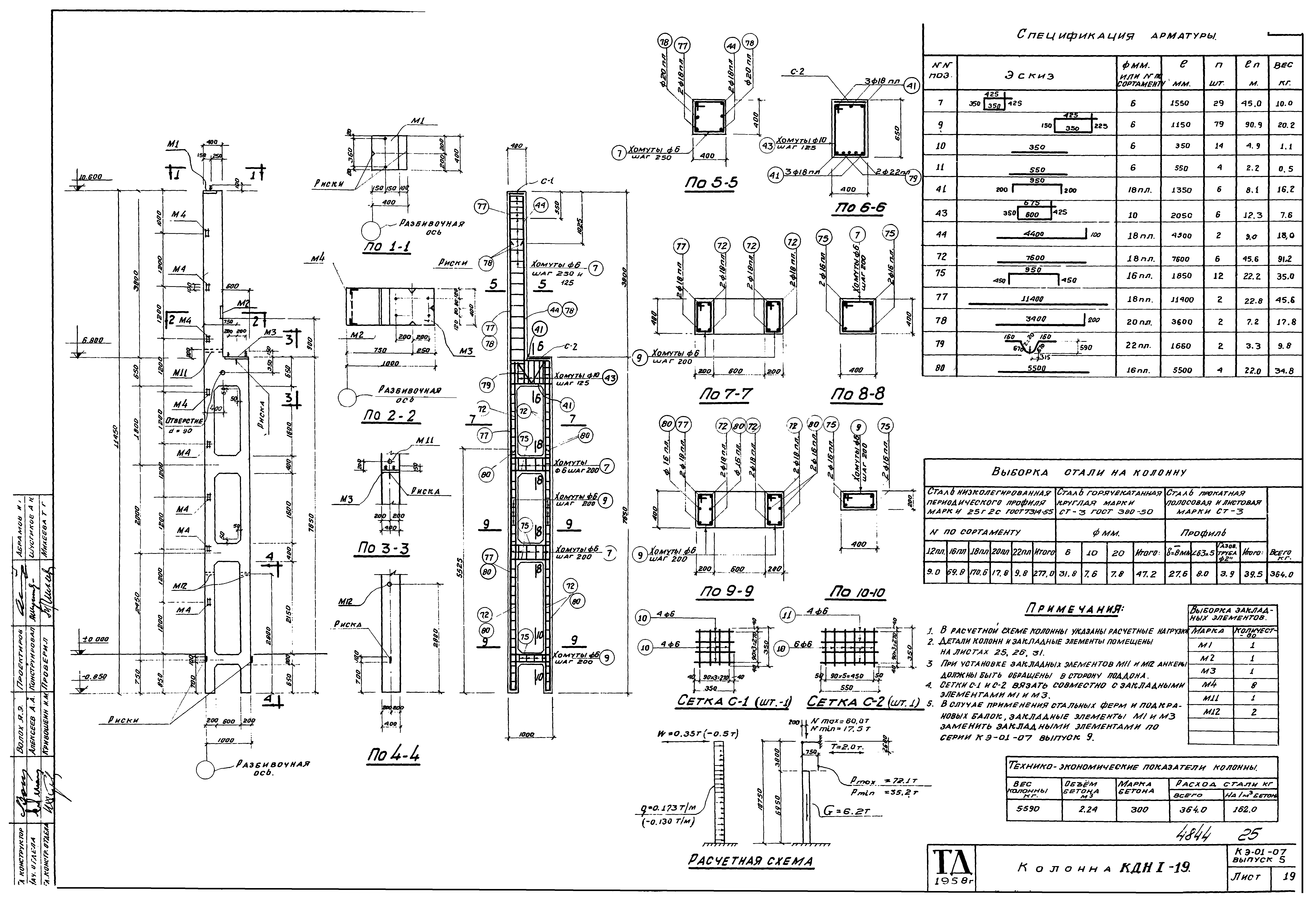
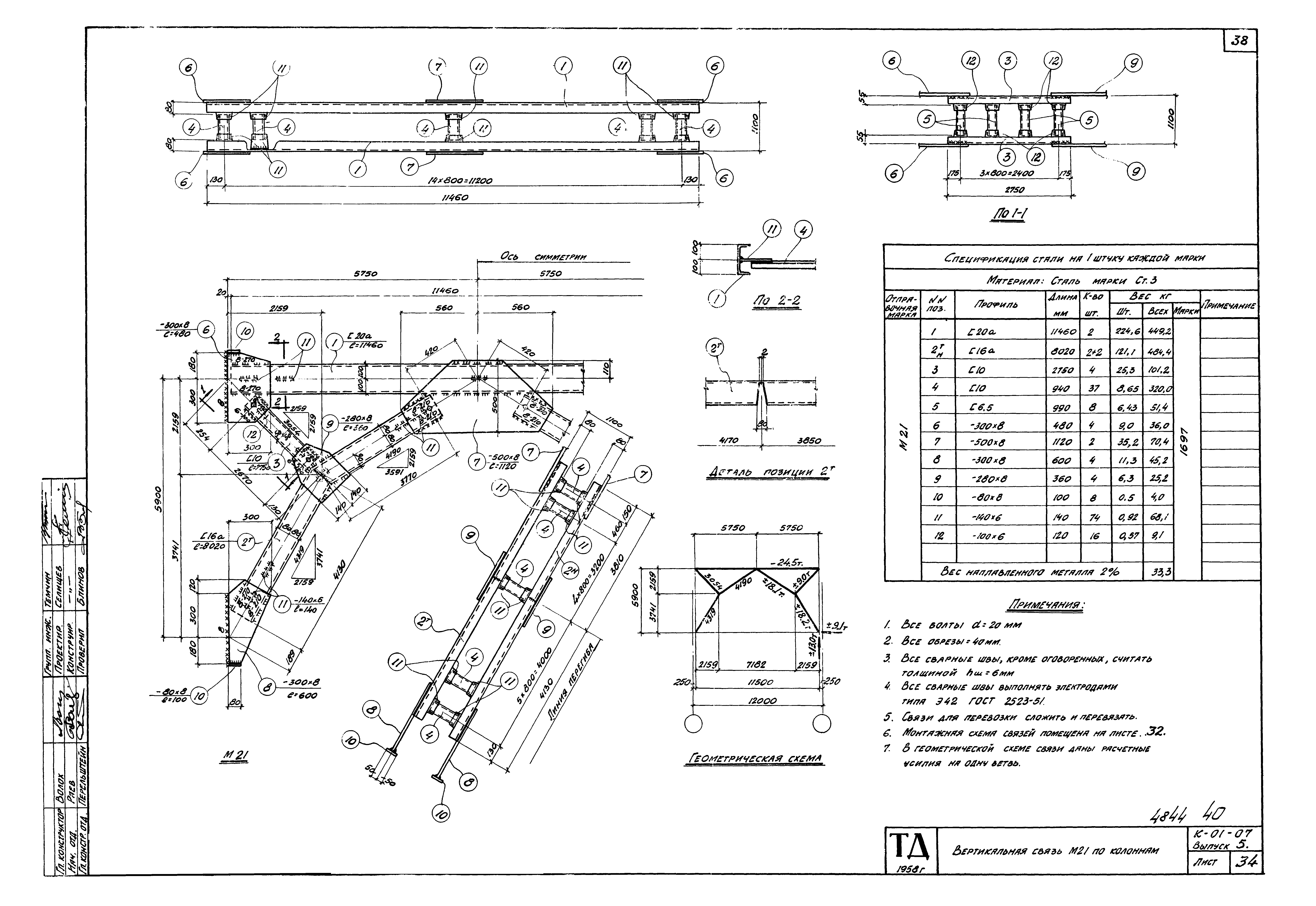
Выпуск 5. Колонны двухветвевые безраскосные с нагрузкой от кранов 10, 20 и 30 тонн, с шагом для наружных рядов 6 м и для внутренних рядов 12 м при осуществлении нулевого цикла работ до монтажа конструкций (для 1-го географического района ветровой нагрузки)Обозначение: | Серия КЭ-01-07 | Обозначение англ: | Series КЭ-01-07 | Статус: | действует | Название рус.: | Выпуск 5. Колонны двухветвевые безраскосные с нагрузкой от кранов 10, 20 и 30 тонн, с шагом для наружных рядов 6 м и для внутренних рядов 12 м при осуществлении нулевого цикла работ до монтажа конструкций (для 1-го географического района ветровой нагрузки) | Дата добавления в базу: | 01.09.2013 | Дата актуализации: | 05.05.2017 | Оглавление: | Пояснительная записка Приложение №1 - таблица расходов материалов на колонны Колонна КДН1-1 Колонна КДН1-2 Колонна КДН1-3 Колонна КДН1-4 Колонна КДН1-5 Колонна КДН1-6 Колонна КДН1-7 Колонна КДН1-8 Колонна КДН1-9 Колонна КДН1-10 Колонна КДН1-11 Колонна КДН1-12 Колонна КДН1-13 Колонна КДН1-14 Колонна КДН1-15 Колонна КДН1-16 Колонна КДН1-17 Колонна КДН1-18 Колонна КДН1-19 Колонна КДН1-20 Колонна КДН1-21 Колонна КДН1-22 Колонна КДН1-23 Колонна КДН1-24 Закладные элементы М1, М2, М3, М4, М5, М6, М7, М8 Закладные элементы М9, М10, М11, М12, М13, М14, М15, М16 Закладные элементы М17, М18, М19 для вертикальных связей в колоннах КДН1-1а по КДН1-24а Ключ для подбора типовых колонн и нагрузки на фундаменты (схемы 1 - 7) Ключ для подбора типовых колонн и нагрузки на фундаменты (схемы 8 - 14) Детали сопряжения колонн с фундаментами Узлы сопряжения колонн с фермами (балками) покрытия. Схема замены закладных элементов при опирании на колонны стальных конструкций Примерный схематичный план цеха с размещением вертикальных связей по колоннам Вертикальная связь по колоннам - М20 Вертикальная связь по колоннам - М21 Вертикальная связь по колоннам - М22 Вертикальная связь по колоннам - М23 Вертикальная связь по колоннам - М24 Вертикальная связь по колоннам - М25 Вертикальная связь по колоннам - М26 Вертикальная связь по колоннам - М27 Вертикальная связь по колоннам - М28 Вертикальная связь по колоннам - М29 | Разработан: | Государственный Проектный Институт №6
| Утверждён: | 01.01.1958 Госстрой СССР (Государственный комитет Совета Министров СССР по делам строительства) (USSR Gosstroy )
| Расположен в: |
|
                                              
|