Информационная система
«Ёшкин Кот»

Скачать базу одним архивом
Скачать обновления
История создания базы
Карта сайта

Скачать Типовой проект 903-4-71.13.87 Альбом II. Раздел II-3.2. Электрооборудование и устройства связи (Изделия треста Киевэлектромонтаж)

Дата актуализации: 10.08.2017

Типовой проект 903-4-71.13.87

Альбом II. Раздел II-3.2. Электрооборудование и устройства связи (Изделия треста "Киевэлектромонтаж")

Обозначение: Типовой проект 903-4-71.13.87
Обозначение англ: 903-4-71.13.87
Статус:действует
Название рус.:Альбом II. Раздел II-3.2. Электрооборудование и устройства связи (Изделия треста "Киевэлектромонтаж")
Дата добавления в базу:01.09.2013
Дата актуализации:05.05.2017
Дата введения:04.08.1986
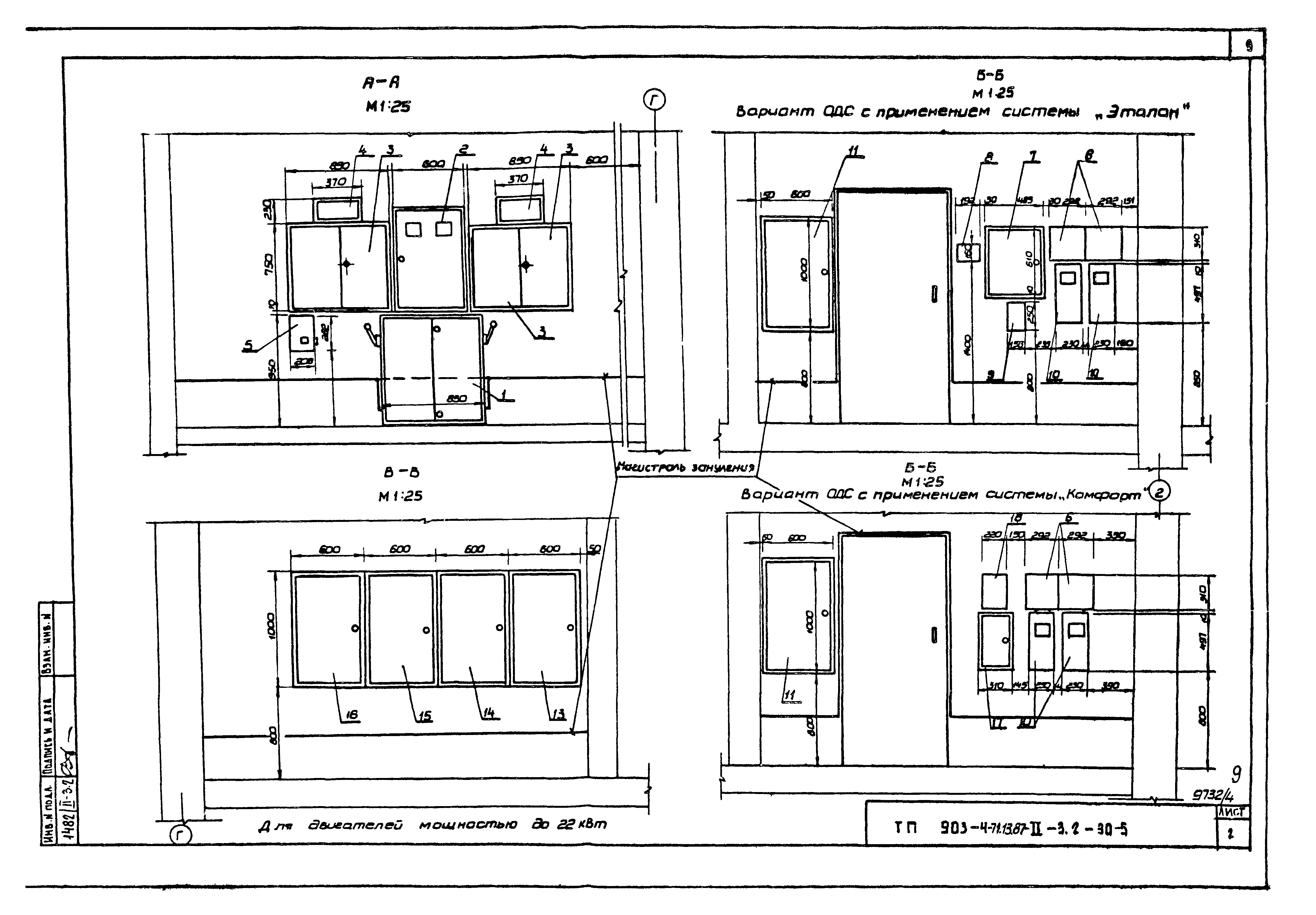
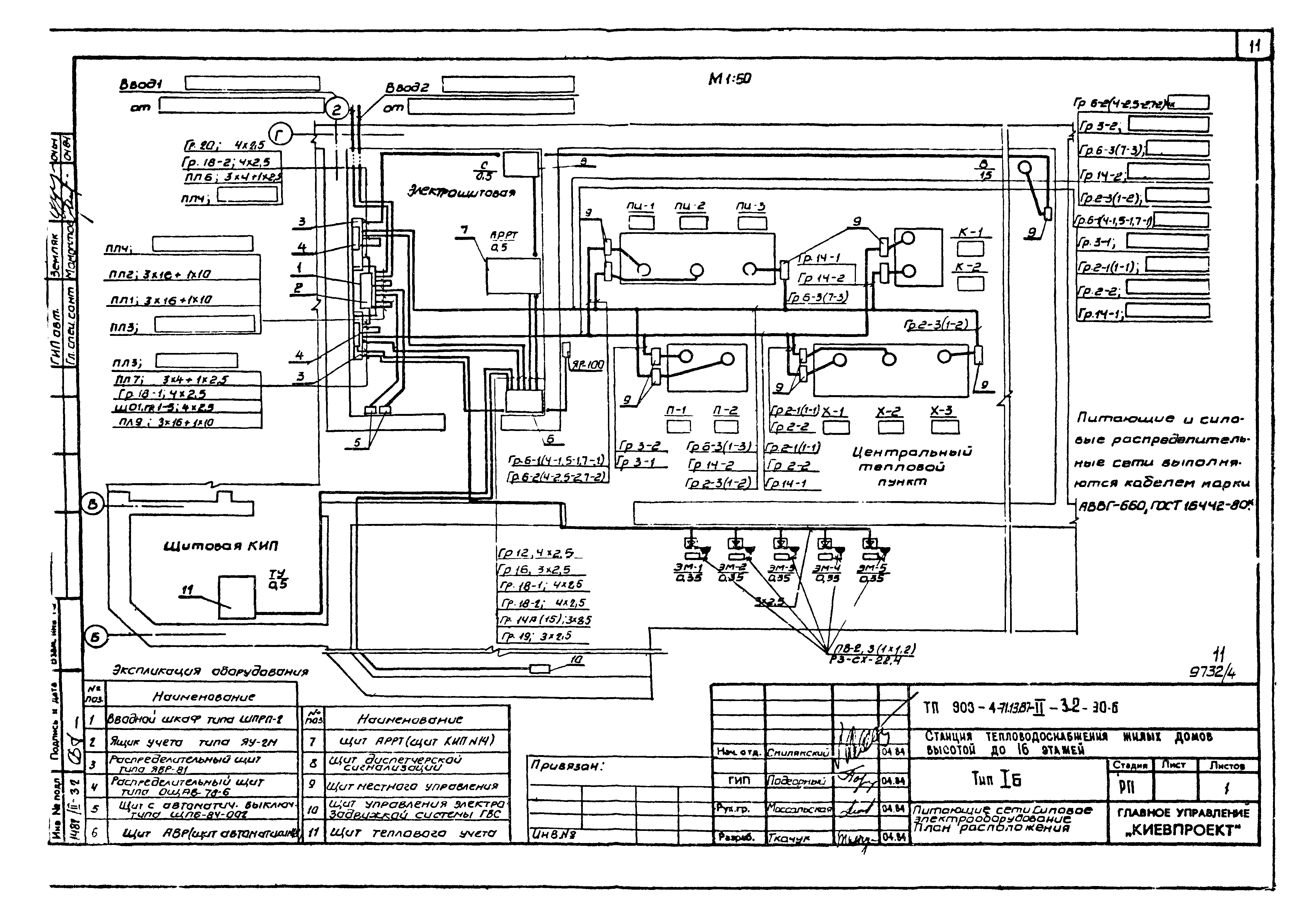
Оглавление:Чертежи основного комплекта марки ЭО
   Общие данные
   Эскиз плана с вводами питающих кабелей. Подсчет нагрузок на вводах
   Схема электрическая принципиальная
   Схема электрическая расчетно-монтажная
   Электрощитовая. Размещение электроконструкций. Электроосвещение. Планы расположения. Разрезы
   Питающие сети. Силовое электрооборудование. План расположения
   Трубные разводки. План расположения
   Щиты ЩО1 и ЩО2. Схемы электрические расчетно-монтажные
   Электроосвещение. План расположения
   Вспомогательная таблица для составления спецификаций оборудования
Чертежи основного комплекта марки СВ
   Общие данные
   План расположения сетей
Разработан: Киевпроект Киевского горисполкома
Утверждён:25.07.1986 Госстрой УССР (UkrSSR Gosstroy 143)
Расположен в:Техническая документация Строительство Справочные документы Типовые строительные конструкции, изделия и узлы Общероссийский строительный каталог Промышленные предприятия, здания и сооружения Здания и сооружения санитарно-технические Теплоснабжение Здания и сооружения разные
Типовой проект 903-4-71.13.87Типовой проект 903-4-71.13.87Типовой проект 903-4-71.13.87Типовой проект 903-4-71.13.87Типовой проект 903-4-71.13.87Типовой проект 903-4-71.13.87Типовой проект 903-4-71.13.87Типовой проект 903-4-71.13.87Типовой проект 903-4-71.13.87Типовой проект 903-4-71.13.87Типовой проект 903-4-71.13.87Типовой проект 903-4-71.13.87Типовой проект 903-4-71.13.87Типовой проект 903-4-71.13.87Типовой проект 903-4-71.13.87Типовой проект 903-4-71.13.87Типовой проект 903-4-71.13.87Типовой проект 903-4-71.13.87Типовой проект 903-4-71.13.87

© 2013 Ёшкин Кот :-) Карта сайта