Скачать Типовой проект 709-9-46.85 Альбом 1. Общая пояснительная записка. Технология производства. Нестандартизированное оборудование. Архитектурно-строительные решения. Конструкции металлические. Силовое электрооборудование. Связь и сигнализация. Спецификации оборудования. Ведомости потребности в материалахДата актуализации: 10.08.2017 Типовой проект 709-9-46.85
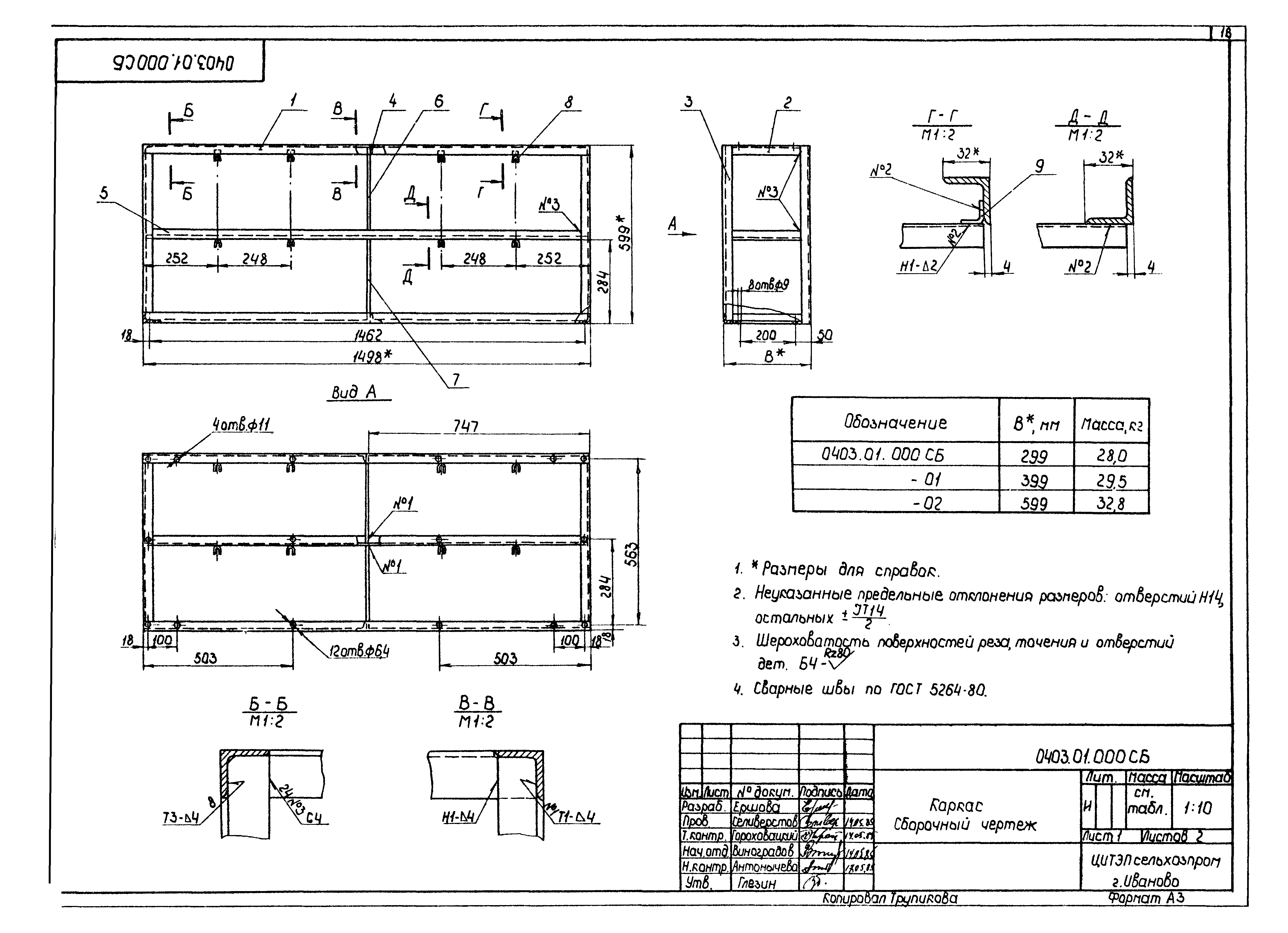
Альбом 1. Общая пояснительная записка. Технология производства. Нестандартизированное оборудование. Архитектурно-строительные решения. Конструкции металлические. Силовое электрооборудование. Связь и сигнализация. Спецификации оборудования. Ведомости потребности в материалахОбозначение: | Типовой проект 709-9-46.85 | Обозначение англ: | 709-9-46.85 | Статус: | не определен законодательством | Название рус.: | Альбом 1. Общая пояснительная записка. Технология производства. Нестандартизированное оборудование. Архитектурно-строительные решения. Конструкции металлические. Силовое электрооборудование. Связь и сигнализация. Спецификации оборудования. Ведомости потребности в материалах | Дата добавления в базу: | 01.09.2013 | Дата актуализации: | 05.05.2017 | Дата введения: | 01.08.1985 | Оглавление: | Общая пояснительная записка Технология производства Общие данные План расположения технологического оборудования Спецификация оборудования Стеллаж для деталей и узлов Стеллаж для деталей и узлов. Сборочный чертеж Секция стеллажа Секция стеллажа. Сборочный чертеж Каркас Каркас. Сборочный чертеж Подставка для агрегатов Подставка для агрегатов. Сборочный чертеж Архитектурно-строительные решения Общие данные Общие данные. Спецификация элементов заполнения проемов, перемычек План на отм. 0.000 Разрезы 1-1 - 3-3. Узлы 1, 2 Фасады. Схема расположения элементов заполнения оконных проемов План полов. План кровли. Узел устройства деформационного шва Схема расположения фундаментов. Сечения. Фрагмент 1 Схема расположения колонн, балок, прогонов. Разрезы Узлы 3, 4 Узлы 5 - 8 Прогон 1ПР-2А-IIIБ, 1ПР-2А-IIIв, 1ПР2А-IIIг Балка БС6-2а Сетка арматурная С1 Перемычка БП6-1а Деталь закладная М1 Конструкции металлические Общие данные Схема расположения монорельса. Разрез 1-1, 2-2. Узел А Силовое электрооборудование Общие данные План расположения электрического оборудования и прокладки электрических сетей Спецификация оборудования Связь и сигнализация Общие данные Общие данные. Спецификация План расположения Спецификация оборудования Ведомости потребности в материалах ВМ по рабочим чертежам основного комплекта марки АС ВМ по рабочим чертежам основного комплекта марки ЭМ ВМ по рабочим чертежам основного комплекта марки СС | Разработан: | ЦИТЭПсельхозпрома
| Утверждён: | 07.05.1985 Главсельстройпроект Минсельхоза СССР (Glavselstroyproject, USSR Minselkhoz 20-ЭГ)
| Расположен в: |
|
                                                         
|