Информационная система
«Ёшкин Кот»

Скачать базу одним архивом
Скачать обновления
История создания базы
Карта сайта

Скачать Типовой проект 416-9-17.83 Альбом X. Часть 1. Изделия железобетонные надземной части

Дата актуализации: 10.08.2017

Типовой проект 416-9-17.83

Альбом X. Часть 1. Изделия железобетонные надземной части

Обозначение: Типовой проект 416-9-17.83
Обозначение англ: 416-9-17.83
Статус:не определен законодательством
Название рус.:Альбом X. Часть 1. Изделия железобетонные надземной части
Дата добавления в базу:01.09.2013
Дата актуализации:05.05.2017
Дата введения:26.05.1983
Оглавление:Титульный лист
416-9-17.83-КЖИ1.ДО Ведомость листов выпуска. Часть 1
416-9-17.83-КЖИ1.ПЗ Пояснительная записка
416-9-17.83-КЖИ1.ТТ1 Технические требования к изготовлению железобетонных изделий
416-9-17.83-КЖИ1.ТТ2 Технические требования к изготовлению арматурных и закладных изделий
416-9-17.83-КЖИ1.101000 Колонна (К108-1, К108-2)
416-9-17.83-КЖИ1.101100 Каркас пространственный КП1
416-9-17.83-КЖИ1.101200 Каркас пространственный (КП2, КП3)
416-9-17.83-КЖИ1.101210 Каркас плоский КР1
416-9-17.83-КЖИ1.101220 Каркас плоский КР2
416-9-17.83-КЖИ1.101300 Каркас пространственный КП4
416-9-17.83-КЖИ1.101310 Каркас плоский КР3
416-9-17.83-КЖИ1.102000 Колонна (К108-3, К108-3-а)
416-9-17.83-КЖИ1.102100 Каркас пространственный КП2
416-9-17.83-КЖИ1.102110 Каркас плоский КР1
416-9-17.83-КЖИ1.102120 Каркас плоский КР2
416-9-17.83-КЖИ1.102200 Каркас пространственный КП3
416-9-17.83-КЖИ1.102210 Каркас плоский КР3
416-9-17.83-КЖИ1.102220 Каркас плоский КР4
416-9-17.83-КЖИ1.103000 Колонна (К108-4, К108-4-а)
416-9-17.83-КЖИ1.103100 Каркас пространственный КП2
416-9-17.83-КЖИ1.103110 Каркас плоский КР1
416-9-17.83-КЖИ1.103120 Каркас плоский КР2
416-9-17.83-КЖИ1.103200 Каркас пространственный КП3
416-9-17.83-КЖИ1.104000 Колонна (К108-5, К108-5-а, К108-5-б)
416-9-17.83-КЖИ1.104100 Каркас пространственный КП2
416-9-17.83-КЖИ1.104110 Каркас плоский КР1
416-9-17.83-КЖИ1.104120 Каркас плоский КР2
416-9-17.83-КЖИ1.104200 Каркас пространственный КП3
416-9-17.83-КЖИ1.104210 Каркас плоский КР3
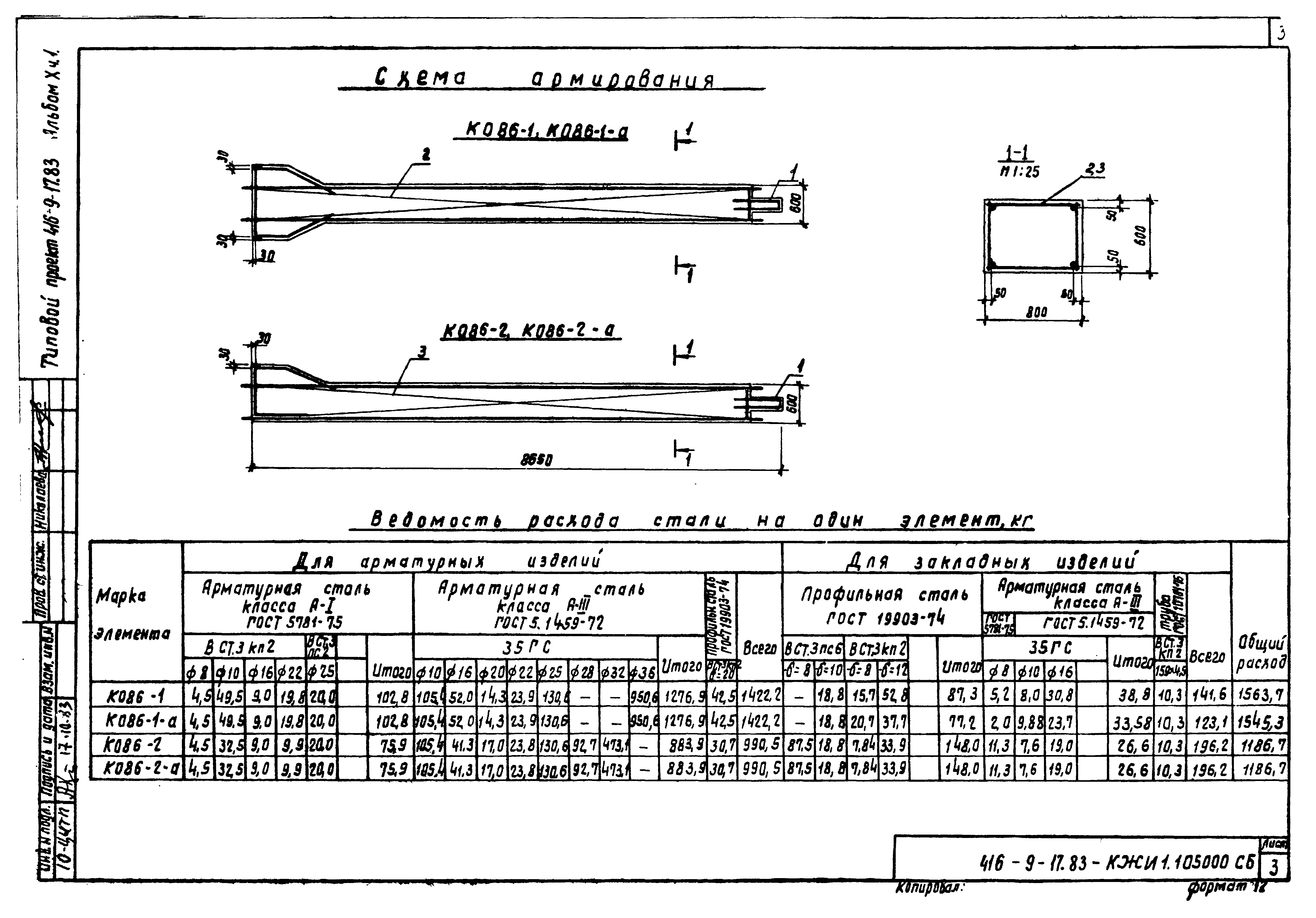
416-9-17.83-КЖИ1.105000 Колонна (К086-1, К086-1-а, К086-2, К086-2-а)
416-9-17.83-КЖИ1.105000СБ Колонна (К086-1, К086-1-а, К086-2, К086-2-а). Сборочный чертеж
416-9-17.83-КЖИ1.105100 Каркас пространственный КП1
416-9-17.83-КЖИ1.105200 Каркас пространственный КП2
416-9-17.83-КЖИ1.105210 Каркас плоский КР1
416-9-17.83-КЖИ1.105220 Каркас плоский КР2
416-9-17.83-КЖИ1.105230 Каркас плоский КР3
416-9-17.83-КЖИ1.105300 Каркас пространственный КП3
416-9-17.83-КЖИ1.105310 Каркас плоский КР4
416-9-17.83-КЖИ1.100001 Стержень отдельный (ОС1 - ОС12)
416-9-17.83-КЖИ1.100002 Стержень отдельный (ОС13 - ОС19)
416-9-17.83-КЖИ1.106000 Колонна (К086-3, К086-3-а, К086-3-б)
416-9-17.83-КЖИ1.106000СБ Колонна (К086-3, К086-3-а, К086-3-б). Сборочный чертеж
416-9-17.83-КЖИ1.106100 Каркас пространственный (КП2, КП3, КП4)
416-9-17.83-КЖИ1.106100СБ Каркас пространственный (КП2, КП3, КП4). Сборочный чертеж
416-9-17.83-КЖИ1.106110 Каркас плоский КР1
416-9-17.83-КЖИ1.107000 Колонна К084-1
416-9-17.83-КЖИ1.107100 Каркас пространственный КП1
416-9-17.83-КЖИ1.107110 Каркас плоский КР1
416-9-17.83-КЖИ1.107120 Сетка С1
416-9-17.83-КЖИ1.107130 Сетка С2
416-9-17.83-КЖИ1.108000 Колонна К044-1
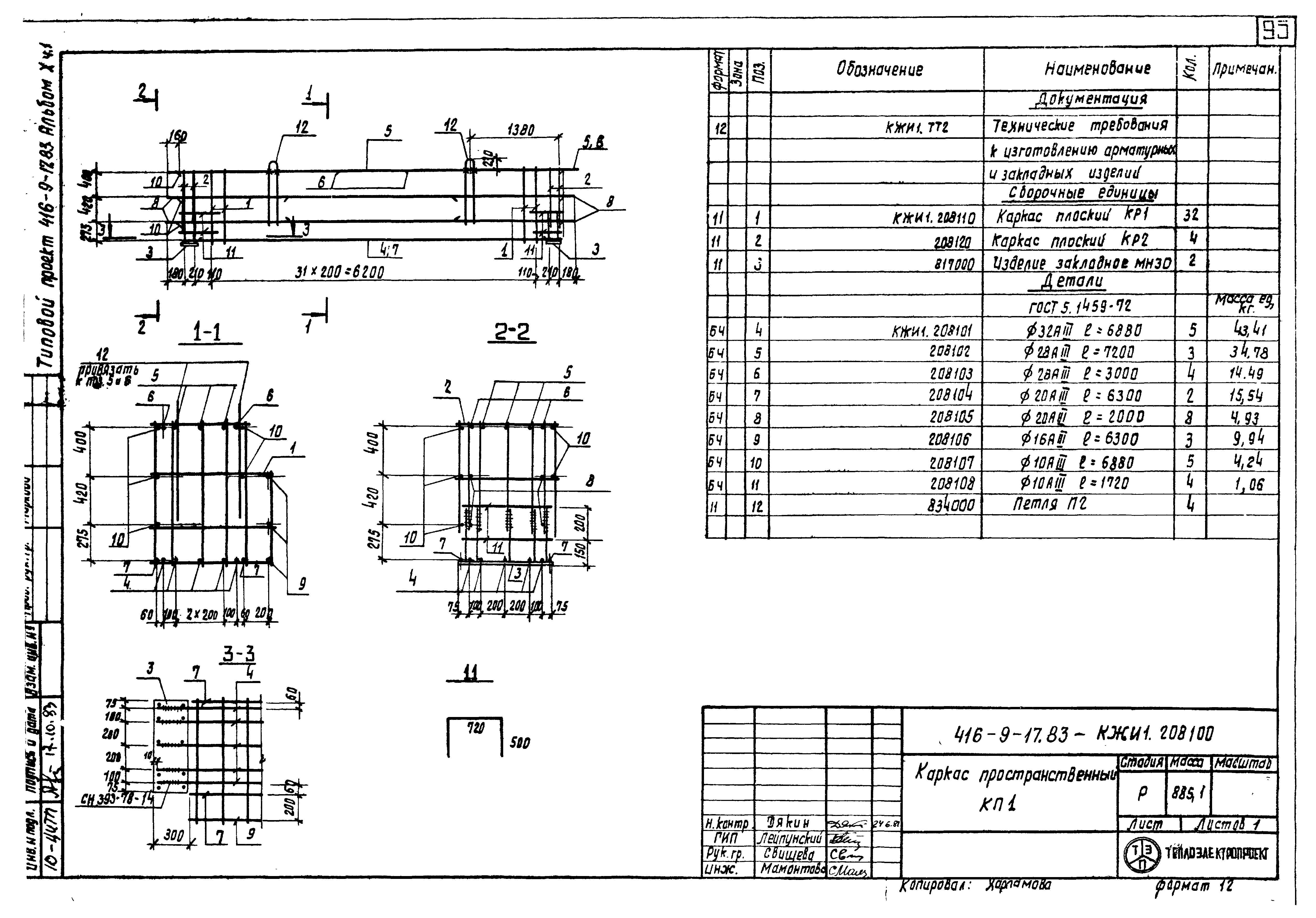
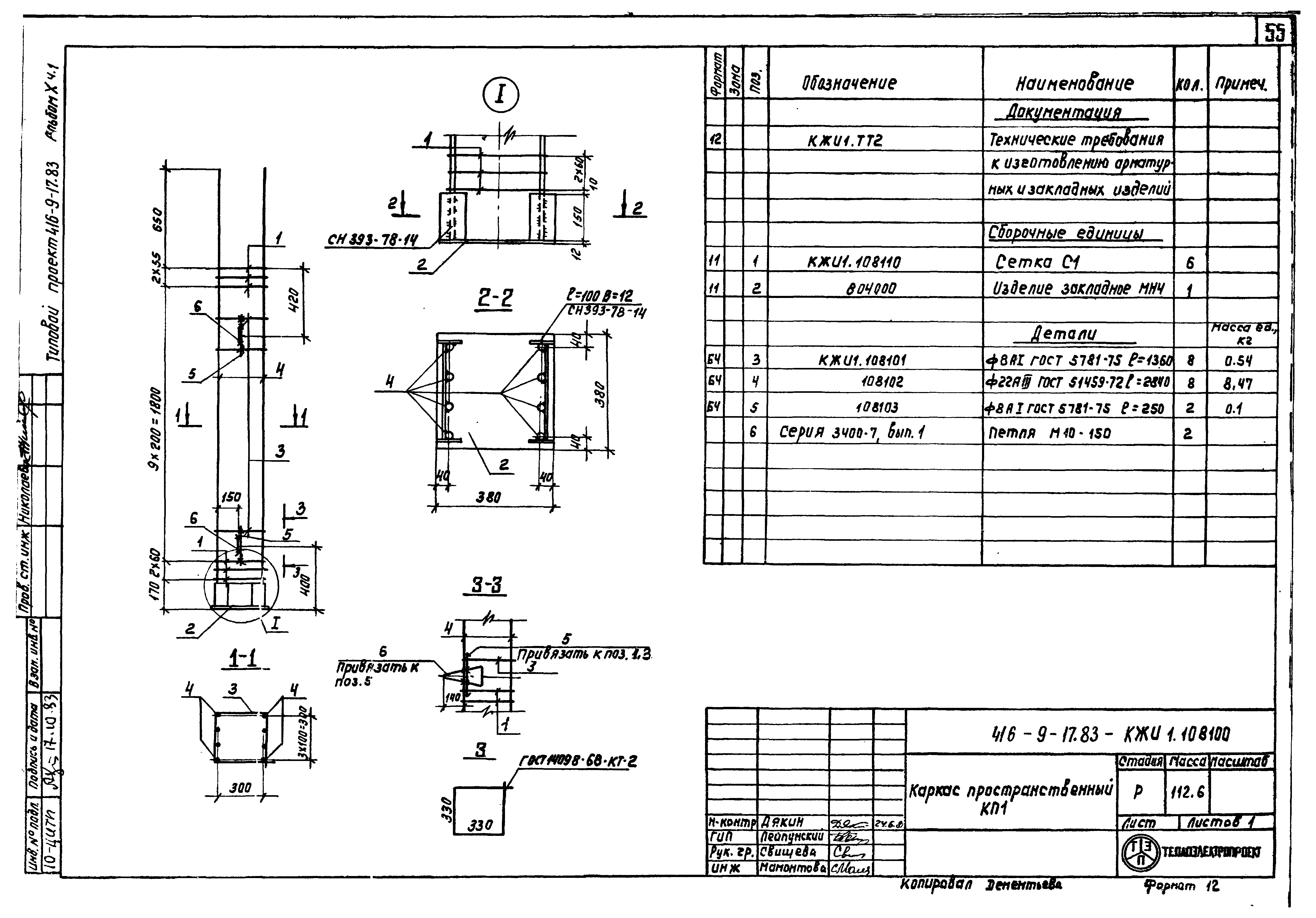
416-9-17.83-КЖИ1.108100 Каркас пространственный КП1
416-9-17.83-КЖИ1.108110 Сетка С1
416-9-17.83-КЖИ1.109000 Колонна К044-2
416-9-17.83-КЖИ1.109100 Каркас пространственный КП1
416-9-17.83-КЖИ1.201000 Балка (Б1513-1, Б1513-1-а, Б1513-1-б)
416-9-17.83-КЖИ1.201100 Каркас пространственный КП1
416-9-17.83-КЖИ1.201110 Каркас плоский КР1
416-9-17.83-КЖИ1.201120 Каркас плоский КР2
416-9-17.83-КЖИ1.201130 Сетка С1
416-9-17.83-КЖИ1.201200 Каркас пространственный КП2
416-9-17.83-КЖИ1.201210 Каркас плоский (КР3, КР4)
416-9-17.83-КЖИ1.201220 Каркас плоский КР5
416-9-17.83-КЖИ1.201300 Каркас пространственный КП3
416-9-17.83-КЖИ1.201310 Каркас плоский КР6
416-9-17.83-КЖИ1.201010 Каркас плоский (КР7, КР8, КР9)
416-9-17.83-КЖИ1.202000 Балка (Б1513-2, Б1513-2-а)
416-9-17.83-КЖИ1.202100 Каркас пространственный КП1
416-9-17.83-КЖИ1.202110 Сетка С1
416-9-17.83-КЖИ1.202010 Каркас плоский КР3
416-9-17.83-КЖИ1.203000 Балка Б1512-1
416-9-17.83-КЖИ1.203100 Каркас пространственный КП1
416-9-17.83-КЖИ1.203110 Каркас плоский КР1
416-9-17.83-КЖИ1.203120 Каркас плоский КР2
416-9-17.83-КЖИ1.203130 Каркас плоский КР3
416-9-17.83-КЖИ1.203140 Стержень составной С1
416-9-17.83-КЖИ1.204000 Балка (Б1512-2, Б1512-2-а)
416-9-17.83-КЖИ1.204100 Каркас пространственный КП1
416-9-17.83-КЖИ1.204110 Каркас плоский КР4
416-9-17.83-КЖИ1.204120 Каркас плоский КР5
416-9-17.83-КЖИ1.204010 Каркас плоский КР6
416-9-17.83-КЖИ1.205000 Балка (Б1214-1, Б1214-1-а, Б1214-1-б)
416-9-17.83-КЖИ1.205100 Каркас пространственный КП1
416-9-17.83-КЖИ1.205110 Каркас плоский КР1
416-9-17.83-КЖИ1.206000 Балка (Б1214-2, Б1214-2-а)
416-9-17.83-КЖИ1.206100 Каркас пространственный КП1
416-9-17.83-КЖИ1.206110 Каркас плоский КР1
416-9-17.83-КЖИ1.207000 Балка Б1211
416-9-17.83-КЖИ1.207010 Каркас плоский КР1
416-9-17.83-КЖИ1.207020 Каркас плоский КР2
416-9-17.83-КЖИ1.208000 Балка (Б1210-1, Б1210-1-а)
416-9-17.83-КЖИ1.208100 Каркас пространственный КП1
416-9-17.83-КЖИ1.208110 Каркас плоский КР1
416-9-17.83-КЖИ1.208120 Каркас плоский КР2
416-9-17.83-КЖИ1.208200 Каркас пространственный КП2
416-9-17.83-КЖИ1.208210 Каркас плоский КР3
416-9-17.83-КЖИ1.208220 Каркас плоский КР4
416-9-17.83-КЖИ1.209000 Балка (Б1210-2, Б1210-2-а)
416-9-17.83-КЖИ1.209100 Каркас пространственный (КП1, КП1н)
416-9-17.83-КЖИ1.210000 Балка (Б128-1, Б128-1-а, Б128-1-б, Б128-1-в)
416-9-17.83-КЖИ1.210000СБ Балка (Б128-1, Б128-1-а, Б128-1-б, Б128-1-в). Сборочный чертеж
416-9-17.83-КЖИ1.210100 Каркас пространственный КП1
416-9-17.83-КЖИ1.210110 Каркас плоский КР1
416-9-17.83-КЖИ1.210120 Каркас плоский КР2
416-9-17.83-КЖИ1.211000 Балка (Б128-2, Б128-2-а)
416-9-17.83-КЖИ1.211100 Каркас пространственный КП1
416-9-17.83-КЖИ1.211110 Каркас плоский КР1
416-9-17.83-КЖИ1.212000 Балка Б128-3
416-9-17.83-КЖИ1.213000 Балка Б126-1
416-9-17.83-КЖИ1.213010 Каркас плоский КР1
416-9-17.83-КЖИ1.213020 Каркас плоский КР2
416-9-17.83-КЖИ1.214000 Балка (Б095-1, Б095-1-а)
416-9-17.83-КЖИ1.214100 Каркас пространственный КП1
416-9-17.83-КЖИ1.214110 Каркас плоский КР1
416-9-17.83-КЖИ1.215000 Балка (Б086-1, Б086-1-а)
416-9-17.83-КЖИ1.215100 Каркас пространственный КП1
416-9-17.83-КЖИ1.215110 Каркас плоский КР1
416-9-17.83-КЖИ1.216000 Балка Б086-1-б
416-9-17.83-КЖИ1.216100 Каркас пространственный КП1
416-9-17.83-КЖИ1.217000 Балка Б086-2
416-9-17.83-КЖИ1.217100 Каркас пространственный КП1
416-9-17.83-КЖИ1.217110 Каркас плоский КР1
416-9-17.83-КЖИ1.217120 Каркас плоский КР2
416-9-17.83-КЖИ1.218000 Балка (Б086-2-а, Б086-2-б)
416-9-17.83-КЖИ1.218100 Каркас пространственный КП1
416-9-17.83-КЖИ1.218110 Каркас плоский КР2
416-9-17.83-КЖИ1.219000 Балка (Б086-3, Б086-3-а, Б086-3-б)
416-9-17.83-КЖИ1.219100 Каркас пространственный КП1
416-9-17.83-КЖИ1.219110 Каркас плоский КР1
416-9-17.83-КЖИ1.219120 Каркас плоский КР2
416-9-17.83-КЖИ1.220000 Балка (Б064-1, Б064-2)
416-9-17.83-КЖИ1.220100 Каркас пространственный (КП1, КП2)
416-9-17.83-КЖИ1.220110 Каркас плоский КР1
416-9-17.83-КЖИ1.220120 Каркас плоский КР2
416-9-17.83-КЖИ1.220130 Каркас плоский КР3
416-9-17.83-КЖИ1.221000 Балка (Б064-3, Б064-4, Б064-4-а)
416-9-17.83-КЖИ1.221100 Каркас пространственный (КП1, КП2)
416-9-17.83-КЖИ1.221110 Каркас плоский КР1
Разработан: Теплоэлектропроект
Утверждён:17.09.1981 Минэнерго СССР (USSR Minenergo 48)
Расположен в:Техническая документация Строительство Справочные документы Типовые строительные конструкции, изделия и узлы Общероссийский строительный каталог Промышленные предприятия, здания и сооружения Предприятия, здания и сооружения промышленности и электроэнергетики Ремонтные предприятия. Административно-бытовые, производственные и вспомогательные здания и сооружения промышленных предприятий Ремонтные предприятия, производственные и вспомогательные здания и сооружения
Типовой проект 416-9-17.83Типовой проект 416-9-17.83Типовой проект 416-9-17.83Типовой проект 416-9-17.83Типовой проект 416-9-17.83Типовой проект 416-9-17.83Типовой проект 416-9-17.83Типовой проект 416-9-17.83Типовой проект 416-9-17.83Типовой проект 416-9-17.83Типовой проект 416-9-17.83Типовой проект 416-9-17.83Типовой проект 416-9-17.83Типовой проект 416-9-17.83Типовой проект 416-9-17.83Типовой проект 416-9-17.83Типовой проект 416-9-17.83Типовой проект 416-9-17.83Типовой проект 416-9-17.83Типовой проект 416-9-17.83Типовой проект 416-9-17.83Типовой проект 416-9-17.83Типовой проект 416-9-17.83Типовой проект 416-9-17.83Типовой проект 416-9-17.83Типовой проект 416-9-17.83Типовой проект 416-9-17.83Типовой проект 416-9-17.83Типовой проект 416-9-17.83Типовой проект 416-9-17.83Типовой проект 416-9-17.83Типовой проект 416-9-17.83Типовой проект 416-9-17.83Типовой проект 416-9-17.83Типовой проект 416-9-17.83Типовой проект 416-9-17.83Типовой проект 416-9-17.83Типовой проект 416-9-17.83Типовой проект 416-9-17.83Типовой проект 416-9-17.83Типовой проект 416-9-17.83Типовой проект 416-9-17.83Типовой проект 416-9-17.83Типовой проект 416-9-17.83Типовой проект 416-9-17.83Типовой проект 416-9-17.83Типовой проект 416-9-17.83Типовой проект 416-9-17.83Типовой проект 416-9-17.83Типовой проект 416-9-17.83Типовой проект 416-9-17.83Типовой проект 416-9-17.83Типовой проект 416-9-17.83Типовой проект 416-9-17.83Типовой проект 416-9-17.83Типовой проект 416-9-17.83Типовой проект 416-9-17.83Типовой проект 416-9-17.83Типовой проект 416-9-17.83Типовой проект 416-9-17.83Типовой проект 416-9-17.83Типовой проект 416-9-17.83Типовой проект 416-9-17.83Типовой проект 416-9-17.83Типовой проект 416-9-17.83Типовой проект 416-9-17.83Типовой проект 416-9-17.83Типовой проект 416-9-17.83Типовой проект 416-9-17.83Типовой проект 416-9-17.83Типовой проект 416-9-17.83Типовой проект 416-9-17.83Типовой проект 416-9-17.83Типовой проект 416-9-17.83Типовой проект 416-9-17.83Типовой проект 416-9-17.83Типовой проект 416-9-17.83Типовой проект 416-9-17.83Типовой проект 416-9-17.83Типовой проект 416-9-17.83Типовой проект 416-9-17.83Типовой проект 416-9-17.83Типовой проект 416-9-17.83Типовой проект 416-9-17.83Типовой проект 416-9-17.83Типовой проект 416-9-17.83Типовой проект 416-9-17.83Типовой проект 416-9-17.83Типовой проект 416-9-17.83Типовой проект 416-9-17.83Типовой проект 416-9-17.83Типовой проект 416-9-17.83Типовой проект 416-9-17.83Типовой проект 416-9-17.83Типовой проект 416-9-17.83Типовой проект 416-9-17.83Типовой проект 416-9-17.83Типовой проект 416-9-17.83Типовой проект 416-9-17.83Типовой проект 416-9-17.83Типовой проект 416-9-17.83Типовой проект 416-9-17.83Типовой проект 416-9-17.83Типовой проект 416-9-17.83Типовой проект 416-9-17.83Типовой проект 416-9-17.83Типовой проект 416-9-17.83Типовой проект 416-9-17.83Типовой проект 416-9-17.83Типовой проект 416-9-17.83Типовой проект 416-9-17.83Типовой проект 416-9-17.83Типовой проект 416-9-17.83Типовой проект 416-9-17.83Типовой проект 416-9-17.83Типовой проект 416-9-17.83Типовой проект 416-9-17.83Типовой проект 416-9-17.83Типовой проект 416-9-17.83Типовой проект 416-9-17.83Типовой проект 416-9-17.83Типовой проект 416-9-17.83Типовой проект 416-9-17.83Типовой проект 416-9-17.83Типовой проект 416-9-17.83Типовой проект 416-9-17.83Типовой проект 416-9-17.83Типовой проект 416-9-17.83Типовой проект 416-9-17.83Типовой проект 416-9-17.83Типовой проект 416-9-17.83Типовой проект 416-9-17.83Типовой проект 416-9-17.83Типовой проект 416-9-17.83Типовой проект 416-9-17.83Типовой проект 416-9-17.83Типовой проект 416-9-17.83Типовой проект 416-9-17.83Типовой проект 416-9-17.83Типовой проект 416-9-17.83Типовой проект 416-9-17.83Типовой проект 416-9-17.83Типовой проект 416-9-17.83Типовой проект 416-9-17.83Типовой проект 416-9-17.83Типовой проект 416-9-17.83

© 2013 Ёшкин Кот :-) Карта сайта