Информационная система
«Ёшкин Кот»

Скачать базу одним архивом
Скачать обновления
История создания базы
Карта сайта

Скачать Типовой проект 416-9-17.83 Альбом VI. Архитектурные решения

Дата актуализации: 10.08.2017

Типовой проект 416-9-17.83

Альбом VI. Архитектурные решения

Обозначение: Типовой проект 416-9-17.83
Обозначение англ: 416-9-17.83
Статус:не определен законодательством
Название рус.:Альбом VI. Архитектурные решения
Дата добавления в базу:01.09.2013
Дата актуализации:05.05.2017
Дата введения:26.05.1983
Оглавление:Титульный лист
Опись альбома
Общие данные
План на отм. 1.500 и план кровли
Фрагменты планов 1, 2, 3 и разрезы а-а, б-б
Планы на отм. 5.100; 7.900; 10.950; 11.630
Планы на отм. - 2.100; - 6.400; - 7.500
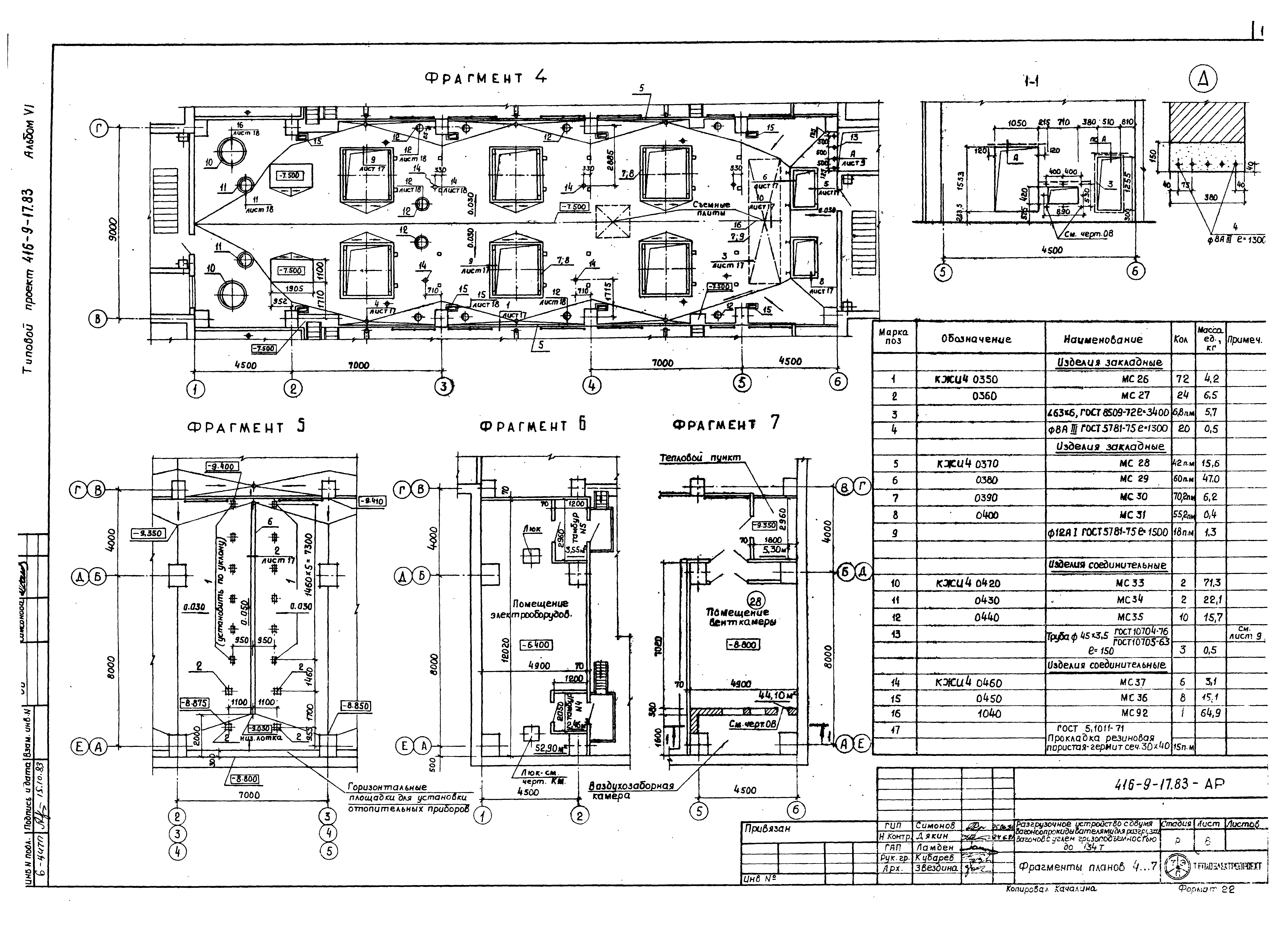
Фрагменты планов 4, 5, 6, 7
План на отм. - 11.100 и фрагменты планов 8, 9, 9а, 10
Фасады
Разрезы 1-1, 2-2
Разрезы 3-3, 4-4
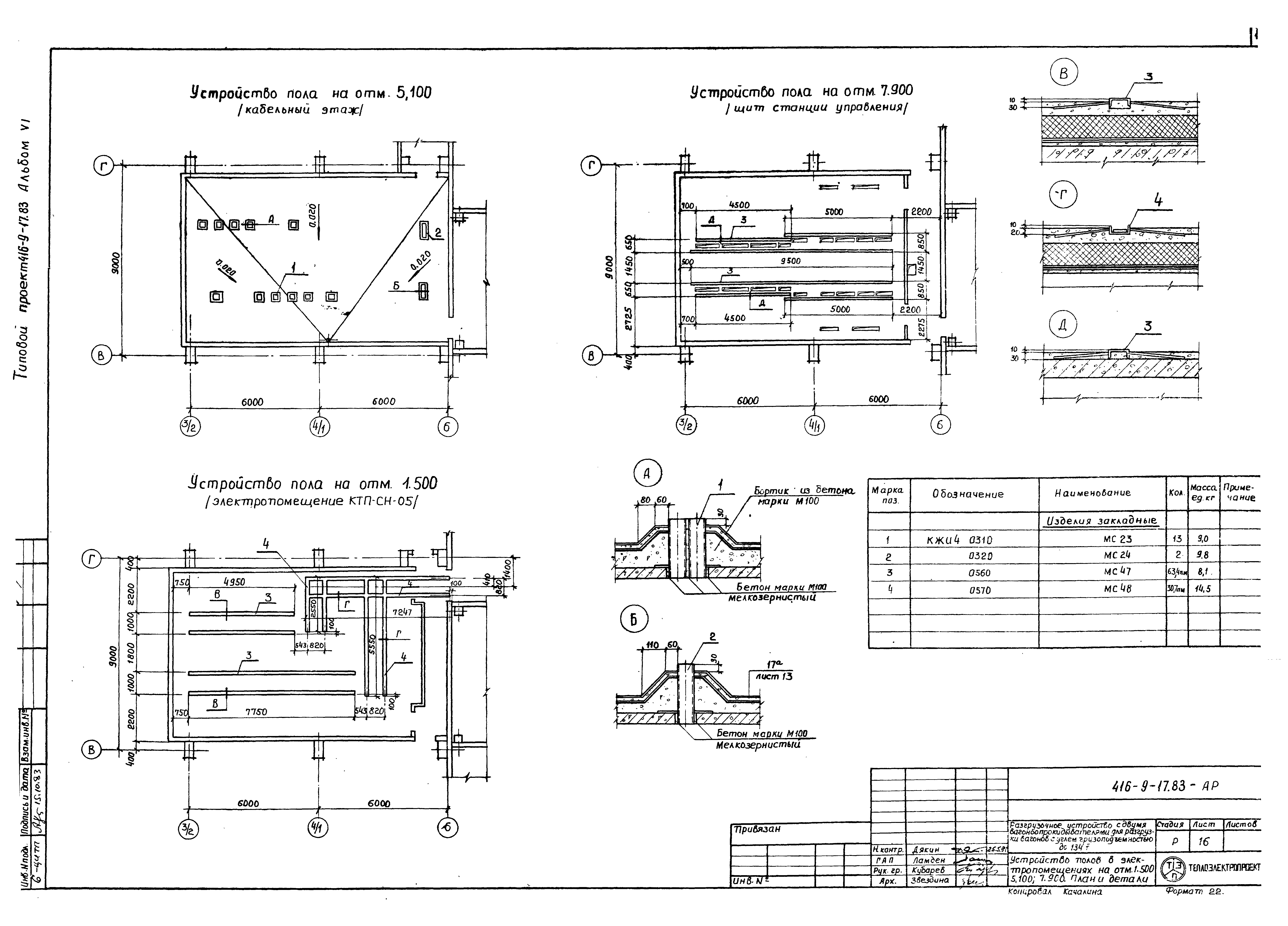
Планы полов
Фрагмент 11. Помещение пульта управления на отм. 7.900
Фрагмент 12. Помещение венткамеры на отм. 11.630
Устройство полов в электропомещениях на отм. 1.500; 5.100; 7.900. План и детали
Узлы 1 - 10
Узлы 11 - 16; А; Б
Узлы паркетных полов на отм. 7.900 (помещения пультов управления)
Разработан: Теплоэлектропроект
Утверждён:17.09.1981 Минэнерго СССР (USSR Minenergo 48)
Расположен в:Техническая документация Строительство Справочные документы Типовые строительные конструкции, изделия и узлы Общероссийский строительный каталог Промышленные предприятия, здания и сооружения Предприятия, здания и сооружения промышленности и электроэнергетики Ремонтные предприятия. Административно-бытовые, производственные и вспомогательные здания и сооружения промышленных предприятий Ремонтные предприятия, производственные и вспомогательные здания и сооружения
Типовой проект 416-9-17.83Типовой проект 416-9-17.83Типовой проект 416-9-17.83Типовой проект 416-9-17.83Типовой проект 416-9-17.83Типовой проект 416-9-17.83Типовой проект 416-9-17.83Типовой проект 416-9-17.83Типовой проект 416-9-17.83Типовой проект 416-9-17.83Типовой проект 416-9-17.83Типовой проект 416-9-17.83Типовой проект 416-9-17.83Типовой проект 416-9-17.83Типовой проект 416-9-17.83Типовой проект 416-9-17.83Типовой проект 416-9-17.83Типовой проект 416-9-17.83Типовой проект 416-9-17.83Типовой проект 416-9-17.83Типовой проект 416-9-17.83

© 2013 Ёшкин Кот :-) Карта сайта