Информационная система
«Ёшкин Кот»

Скачать базу одним архивом
Скачать обновления
История создания базы
Карта сайта

Скачать Типовой проект 416-9-17.83 Альбом IV. Автоматизация вспомогательных механизмов и задания заводу

Дата актуализации: 10.08.2017

Типовой проект 416-9-17.83

Альбом IV. Автоматизация вспомогательных механизмов и задания заводу

Обозначение: Типовой проект 416-9-17.83
Обозначение англ: 416-9-17.83
Статус:не определен законодательством
Название рус.:Альбом IV. Автоматизация вспомогательных механизмов и задания заводу
Дата добавления в базу:01.09.2013
Дата актуализации:05.05.2017
Дата введения:26.05.1983
Оглавление:Титульный лист
Опись альбома
Общие данные
Трансформатор 6/0,4 кВ. Схема электрическая полная
Трансформатор 6/0,4 кВ. Схема электрическая соединений
Трансформатор 6/0,4 кВ. Перечень элементов
Секционный выключатель 0,4 кВ. Схема электрическая полная
Секционный выключатель 0,4 кВ. Схема электрическая соединений
Секционный выключатель 0,4 кВ. Перечень элементов
Общесекционные устройства РУСН 0,4 кВ. Схема электрическая полная
Общесекционные устройства РУСН 0,4 кВ. Схема электрическая соединений и общая
Общесекционные устройства РУСН 0,4 кВ. Перечень элементов
Дымосос аспирационной системы В-3 (В-4) вагоноопрокидывателя. Схема электрическая полная
Дымосос аспирационной системы В-3 (В-4) вагоноопрокидывателя. Схема электрическая соединений и общая
Общие цепи блокировок системы приточно-вытяжной вентиляции конвейера 1а (1б). Схема электрическая полная
Общие цепи блокировок системы приточно-вытяжной вентиляции конвейера 1а (1б). Схема соединений
Общие цепи блокировок системы приточно-вытяжной вентиляции конвейера 1а (1б). Схема электрическая общая
Вентилятор аспирационной системы В-1 (В-2). Схема электрическая полная
Электродвигатель вентилятора приточной системы П-1 (П-2). Схема электрическая полная
Вентилятор приточной системы П-3. Схема электрическая полная
Вентилятор приточной системы П-4. Схема электрическая полная
Запорная воздушная заслонка (с электрообогревом) на наружном воздухе приточной камеры П-1 (П-2). Схема электрическая полная
Запорная воздушная заслонка (с электрообогревом) на наружном воздухе приточной камеры П-1 (П-2). Схема электрическая общая и соединений
Вентиль на линии отвода воды от калорифера. Схема электрическая полная
Вентиль на линии отвода воды от калорифера. Схема электрическая общая и соединений
Вентиль на линии подвода воды к системе В-1 (В-2). Схема электрическая полная
Заслонка воздушная вытяжной системы ВЕ1 (ВЕ-2, ВЕ-3). Схема электрическая полная
Заслонка воздушная вытяжной системы ВЕ1 (ВЕ-2, ВЕ-3). Схема электрическая общая и соединений
Насос откачки сточных вод от аспирации. Схема электрическая полная
АВР и блокировки насосов откачки сточных вод от аспирации. Схема электрическая полная
АВР и блокировки насосов откачки сточных вод от аспирации. Схема общая и соединений
Насос откачки воды после гидроуборки. Схема электрическая полная
Общие цепи управления задвижками гидроуборки. Схема электрическая полная
Общие цепи управления задвижками гидроуборки. Схема соединений
Общие цепи управления задвижками гидроуборки. Схема общая
Задвижка на производственно-противопожарном водопроводе для пожаротушения. Схема электрическая полная
Вентиль на производственно-противопожарном водопроводе. Схема электрическая полная
Вентиль на хозяйственно-питьевом водопроводе (к форсунке). Схема электрическая полная
Вентиль на производственно-противопожарном водопроводе для дренчерной завесы. Схема электрическая полная
Дробильно-фрезерная машина. Схема электрическая полная
Дробильно-фрезерная машина. Схема электрическая общая и соединений
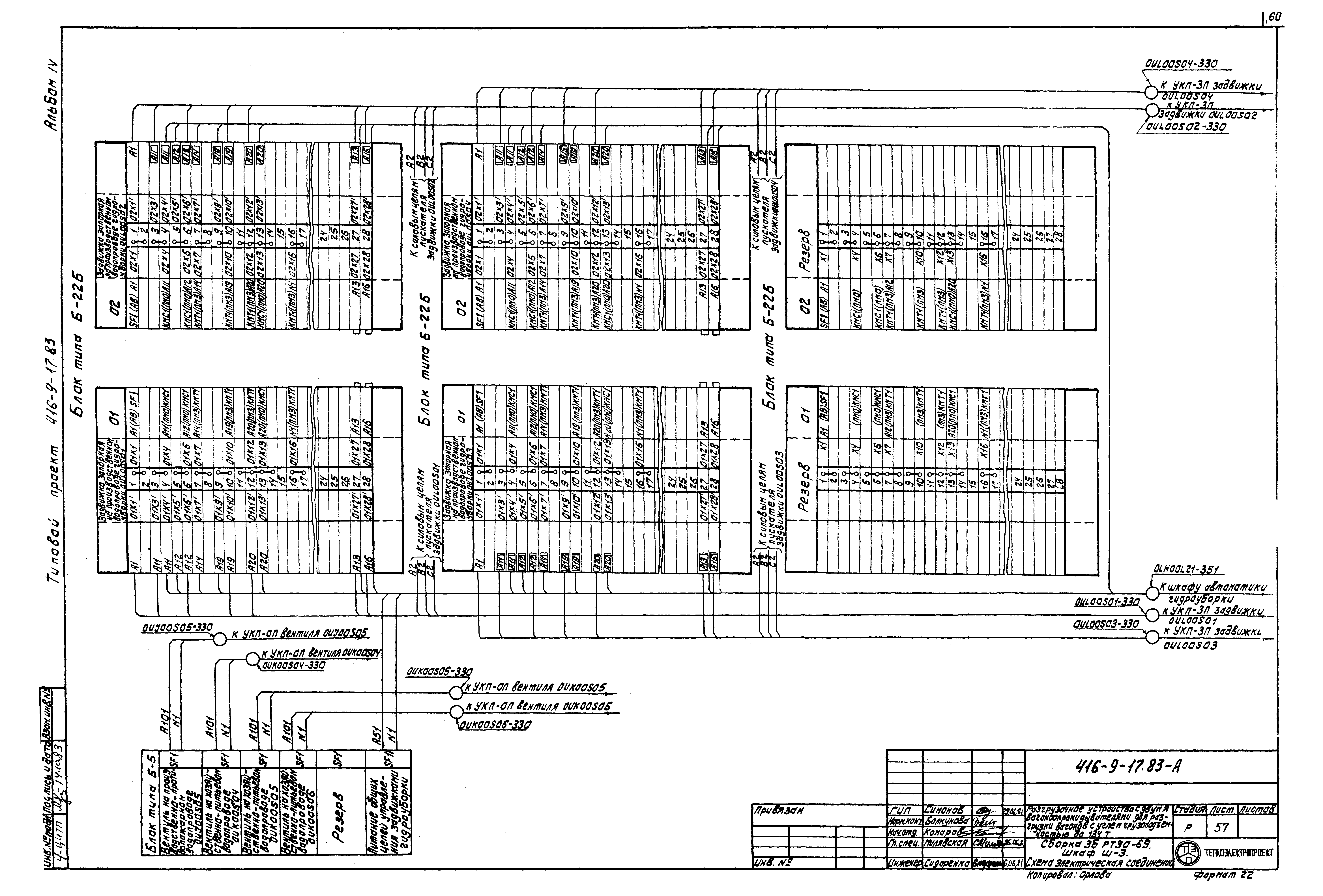
Сборка 3а РТ30-69. Схема заполнения
Сборка 3б РТ30-69. Схема заполнения
Сборка 3а РТ30-69. Шкаф Ш-2. Схема электрическая соединений
Сборка 3а РТ30-69. Шкаф Ш-3. Схема электрическая соединений
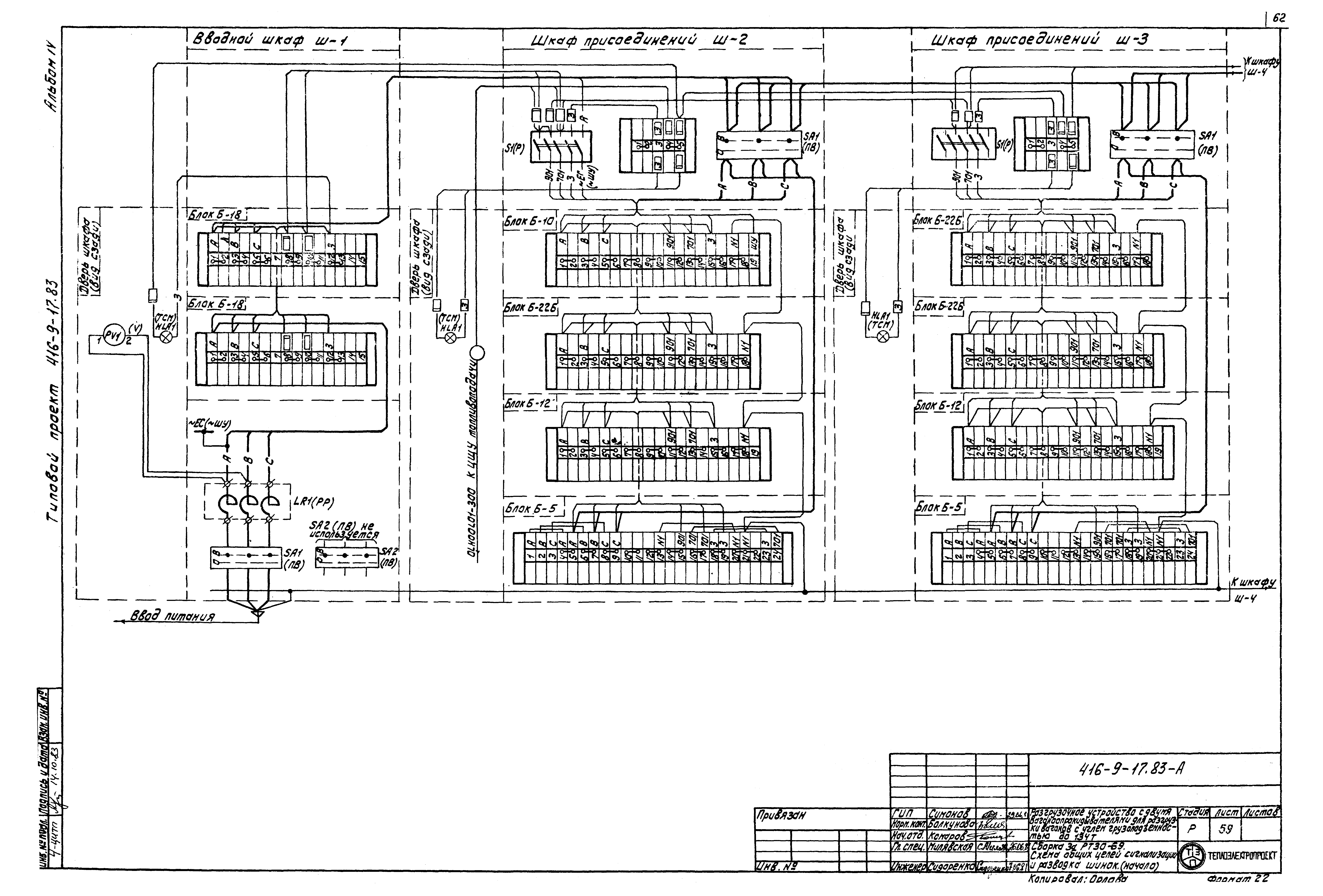
Сборка 3а РТ30-69. Шкаф Ш-4. Схема электрическая соединений
Сборка 3б РТ30-69. Шкаф Ш-2. Схема электрическая соединений
Сборка 3б РТ30-69. Шкаф Ш-3. Схема электрическая соединений
Сборка 3б РТ30-69. Шкаф Ш-4. Схема электрическая соединений
Сборка 3а РТ30-69. Схема общих цепей сигнализации и разводка шинок
Сборка 3б РТ30-69. Схема общих цепей сигнализации и разводка шинок
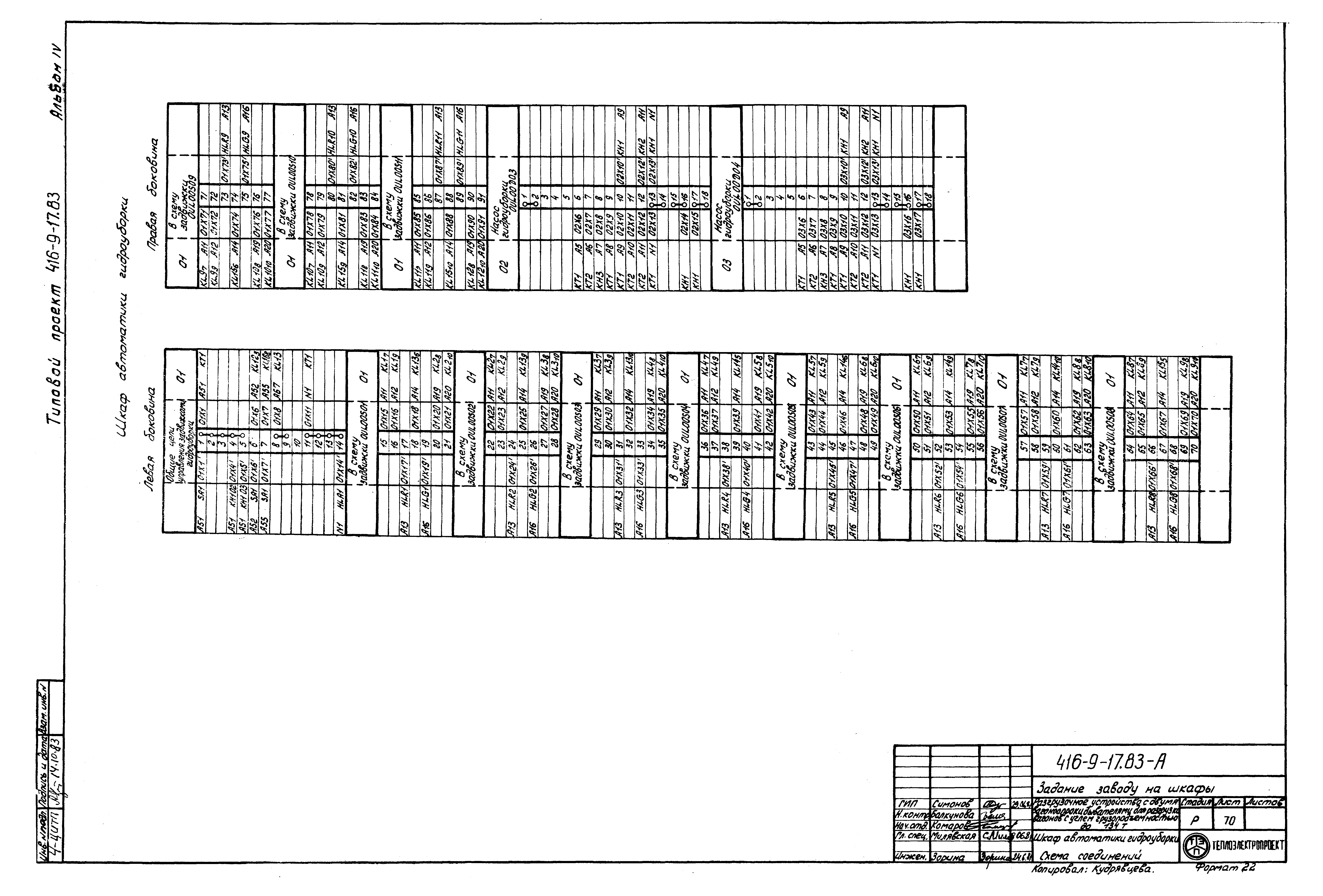
Сборка 3а РТ30-69. Задание заводу
Сборка 3б РТ30-69. Задание заводу
Шкаф реле блокировок приточно-вытяжной вентиляции конвейера 1а (1б). Схема принципиальная
Шкаф реле блокировок приточно-вытяжной вентиляции конвейера 1а (1б). Схема соединений
Шкаф реле блокировок приточно-вытяжной вентиляции конвейера 1а (1б). Схема расположения
Шкаф реле АВР и блокировок насосов откачки сточных вод от аспирации. Схема принципиальная и соединений
Шкаф реле АВР и блокировок насосов откачки сточных вод от аспирации. Схема расположения
Шкаф автоматики гидроуборки. Схема электрическая полная
Шкаф автоматики гидроуборки. Схема соединений
Шкаф автоматики гидроуборки. Схема расположения
Шкаф реле управления дымососа аспирационной системы В-3 (В-4). Схема полная и расположения
Приточно-вытяжная вентиляция. Схема функциональная
Аспирационная система. Схема функциональная
Гидроуборка. Схема функциональная
Кабельные соединения приборов теплотехнического контроля. Схема подключений
Блок релейный регулятора сигнализатора уровня ЭРСУ-3. Схема монтажная
Установка блока релейного сигнализатора уровня ЭРСУ-3 на железобетонной стене. Схема расположения
Установка датчиков ЭРСУ-3 в дренажных приямках. Схема расположения
Автоматическая пожарная сигнализация и управления пожаротушением. Схема электрическая
Кабельные соединения датчиков пожарной сигнализации. Схема подключений
Расстановка датчиков пожарной сигнализации типа ДИП-1 по помещениям
Журнал контрольных кабелей
Журнал контрольных кабелей теплотехнического контроля и пожарной сигнализации
Разработан: Теплоэлектропроект
Утверждён:17.09.1981 Минэнерго СССР (USSR Minenergo 48)
Расположен в:Техническая документация Строительство Справочные документы Типовые строительные конструкции, изделия и узлы Общероссийский строительный каталог Промышленные предприятия, здания и сооружения Предприятия, здания и сооружения промышленности и электроэнергетики Ремонтные предприятия. Административно-бытовые, производственные и вспомогательные здания и сооружения промышленных предприятий Ремонтные предприятия, производственные и вспомогательные здания и сооружения
Типовой проект 416-9-17.83Типовой проект 416-9-17.83Типовой проект 416-9-17.83Типовой проект 416-9-17.83Типовой проект 416-9-17.83Типовой проект 416-9-17.83Типовой проект 416-9-17.83Типовой проект 416-9-17.83Типовой проект 416-9-17.83Типовой проект 416-9-17.83Типовой проект 416-9-17.83Типовой проект 416-9-17.83Типовой проект 416-9-17.83Типовой проект 416-9-17.83Типовой проект 416-9-17.83Типовой проект 416-9-17.83Типовой проект 416-9-17.83Типовой проект 416-9-17.83Типовой проект 416-9-17.83Типовой проект 416-9-17.83Типовой проект 416-9-17.83Типовой проект 416-9-17.83Типовой проект 416-9-17.83Типовой проект 416-9-17.83Типовой проект 416-9-17.83Типовой проект 416-9-17.83Типовой проект 416-9-17.83Типовой проект 416-9-17.83Типовой проект 416-9-17.83Типовой проект 416-9-17.83Типовой проект 416-9-17.83Типовой проект 416-9-17.83Типовой проект 416-9-17.83Типовой проект 416-9-17.83Типовой проект 416-9-17.83Типовой проект 416-9-17.83Типовой проект 416-9-17.83Типовой проект 416-9-17.83Типовой проект 416-9-17.83Типовой проект 416-9-17.83Типовой проект 416-9-17.83Типовой проект 416-9-17.83Типовой проект 416-9-17.83Типовой проект 416-9-17.83Типовой проект 416-9-17.83Типовой проект 416-9-17.83Типовой проект 416-9-17.83Типовой проект 416-9-17.83Типовой проект 416-9-17.83Типовой проект 416-9-17.83Типовой проект 416-9-17.83Типовой проект 416-9-17.83Типовой проект 416-9-17.83Типовой проект 416-9-17.83Типовой проект 416-9-17.83Типовой проект 416-9-17.83Типовой проект 416-9-17.83Типовой проект 416-9-17.83Типовой проект 416-9-17.83Типовой проект 416-9-17.83Типовой проект 416-9-17.83Типовой проект 416-9-17.83Типовой проект 416-9-17.83Типовой проект 416-9-17.83Типовой проект 416-9-17.83Типовой проект 416-9-17.83Типовой проект 416-9-17.83Типовой проект 416-9-17.83Типовой проект 416-9-17.83Типовой проект 416-9-17.83Типовой проект 416-9-17.83Типовой проект 416-9-17.83Типовой проект 416-9-17.83Типовой проект 416-9-17.83Типовой проект 416-9-17.83Типовой проект 416-9-17.83Типовой проект 416-9-17.83Типовой проект 416-9-17.83Типовой проект 416-9-17.83Типовой проект 416-9-17.83Типовой проект 416-9-17.83Типовой проект 416-9-17.83Типовой проект 416-9-17.83Типовой проект 416-9-17.83Типовой проект 416-9-17.83Типовой проект 416-9-17.83Типовой проект 416-9-17.83Типовой проект 416-9-17.83Типовой проект 416-9-17.83Типовой проект 416-9-17.83Типовой проект 416-9-17.83Типовой проект 416-9-17.83Типовой проект 416-9-17.83Типовой проект 416-9-17.83Типовой проект 416-9-17.83Типовой проект 416-9-17.83

© 2013 Ёшкин Кот :-) Карта сайта