Информационная система
«Ёшкин Кот»

Скачать базу одним архивом
Скачать обновления
История создания базы
Карта сайта

Скачать Типовой проект 416-9-17.83 Альбом I. Общая пояснительная записка. Технологические чертежи

Дата актуализации: 10.08.2017

Типовой проект 416-9-17.83

Альбом I. Общая пояснительная записка. Технологические чертежи

Обозначение: Типовой проект 416-9-17.83
Обозначение англ: 416-9-17.83
Статус:не определен законодательством
Название рус.:Альбом I. Общая пояснительная записка. Технологические чертежи
Дата добавления в базу:01.09.2013
Дата актуализации:05.05.2017
Дата введения:26.05.1983
Оглавление:Титульный лист
Опись альбома
Общая пояснительная записка
Общие данные
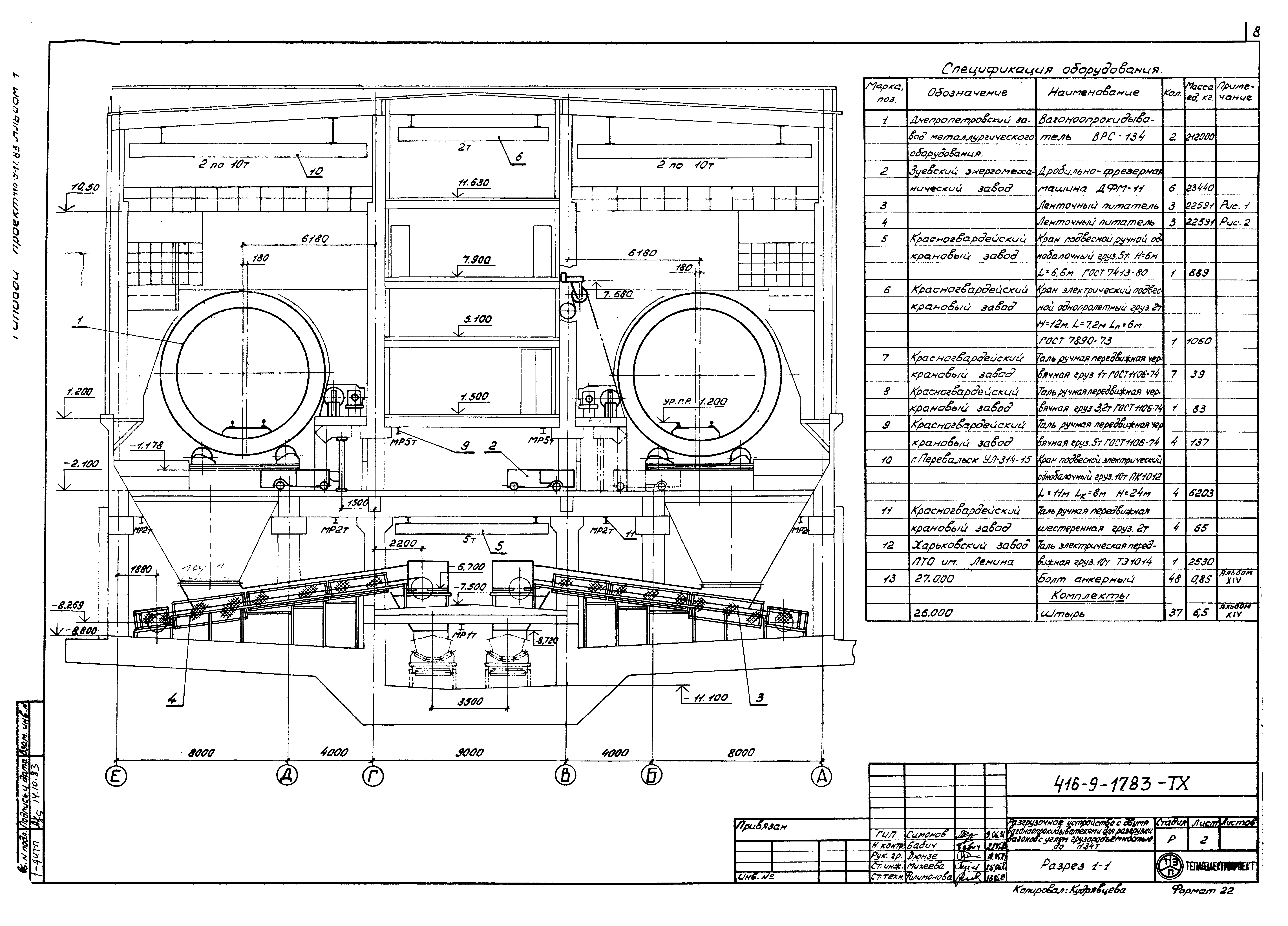
Разрез 1-1
Расположение оборудования на отм. 1.500
Расположение оборудования на отм. - 2.100
Расположение оборудования на отм. - 7.500
Разрез 2-2
Разрез 3-3
Ленточный питатель (Монтажный чертеж)
Разработан: Теплоэлектропроект
Утверждён:17.09.1981 Минэнерго СССР (USSR Minenergo 48)
Расположен в:Техническая документация Строительство Справочные документы Типовые строительные конструкции, изделия и узлы Общероссийский строительный каталог Промышленные предприятия, здания и сооружения Предприятия, здания и сооружения промышленности и электроэнергетики Ремонтные предприятия. Административно-бытовые, производственные и вспомогательные здания и сооружения промышленных предприятий Ремонтные предприятия, производственные и вспомогательные здания и сооружения
Типовой проект 416-9-17.83Типовой проект 416-9-17.83Типовой проект 416-9-17.83Типовой проект 416-9-17.83Типовой проект 416-9-17.83Типовой проект 416-9-17.83Типовой проект 416-9-17.83Типовой проект 416-9-17.83Типовой проект 416-9-17.83Типовой проект 416-9-17.83Типовой проект 416-9-17.83Типовой проект 416-9-17.83Типовой проект 416-9-17.83Типовой проект 416-9-17.83Типовой проект 416-9-17.83Типовой проект 416-9-17.83Типовой проект 416-9-17.83

© 2013 Ёшкин Кот :-) Карта сайта