| ||||||||||||||||||||||||||
Скачать Серия ПК-01-126 Альбом 2. Расчетные эксплуатационные температуры ниже минус 30 градусов Цельсия. Чертежи КМДДата актуализации: 10.08.2017
|
| Обозначение: | Серия ПК-01-126 |
| Обозначение англ: | Series ПК-01-126 |
| Статус: | действует |
| Название рус.: | Альбом 2. Расчетные эксплуатационные температуры ниже минус 30 градусов Цельсия. Чертежи КМД |
| Дата добавления в базу: | 01.09.2013 |
| Дата актуализации: | 05.05.2017 |
| Дата введения: | 08.07.1965 |
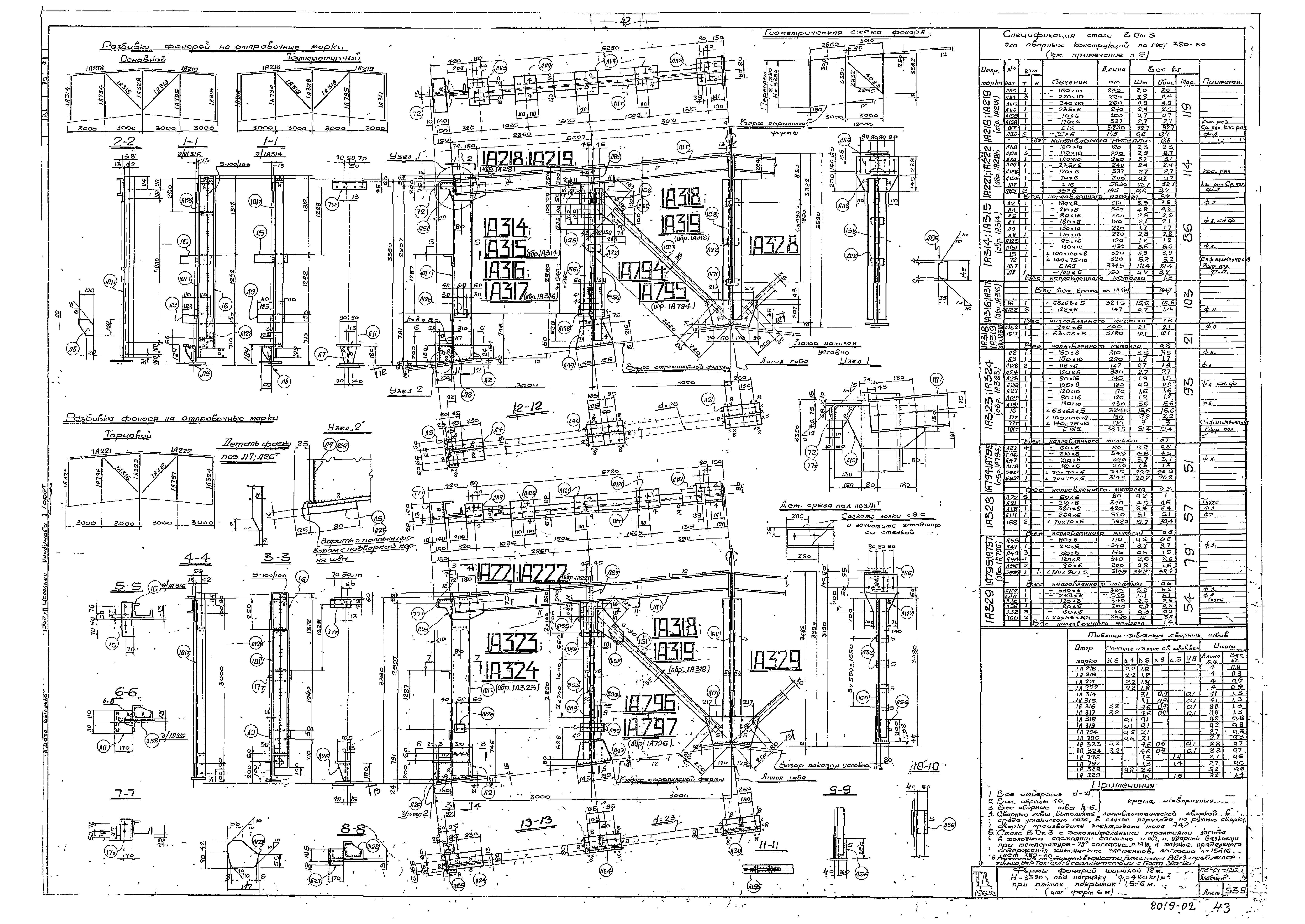
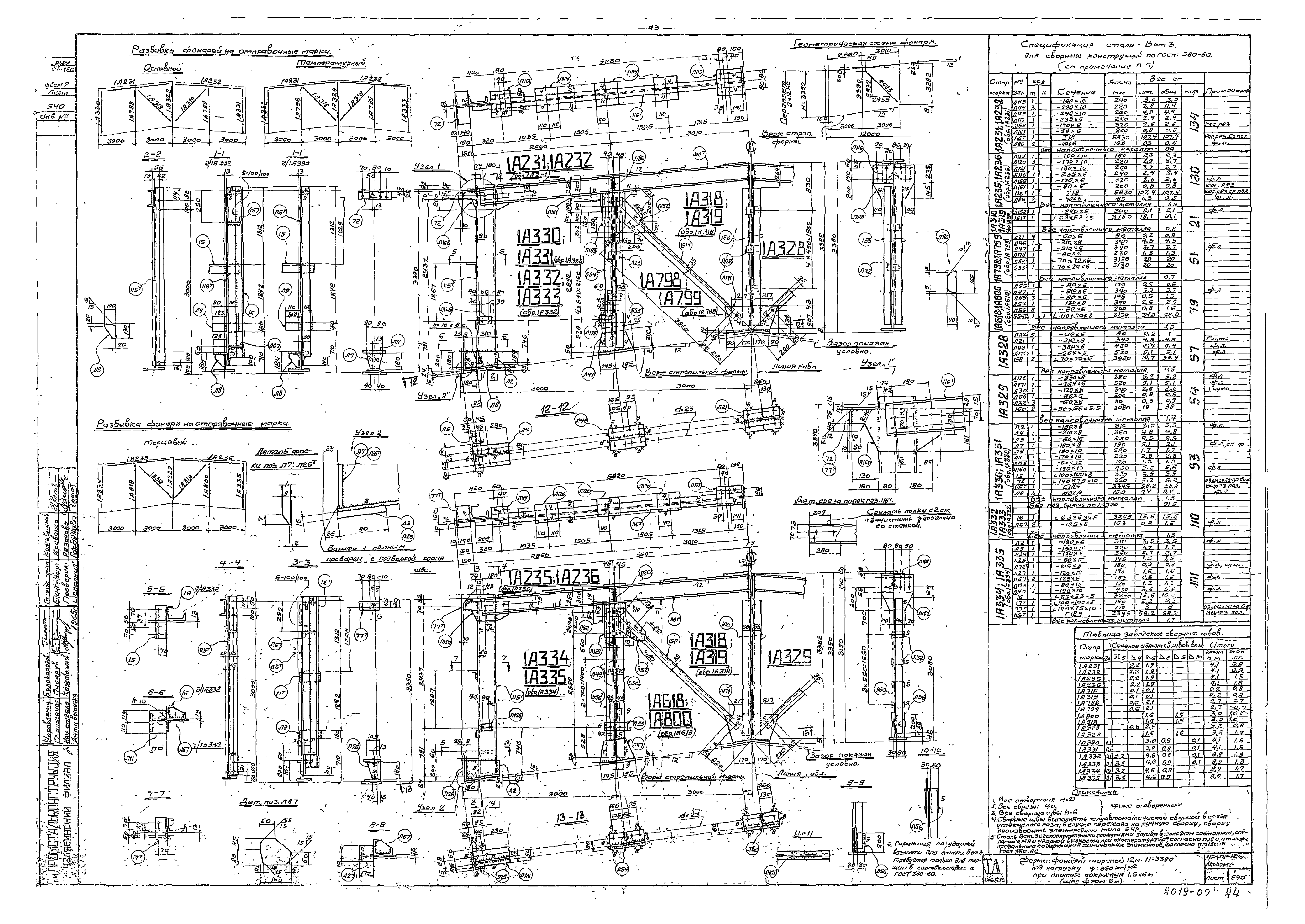
| Оглавление: | Содержание альбома. Условные обозначения Пояснительная записка Инструкция по пользованию чертежами альбома Образец монтажной схемы ферм фонарей опирающихся на ж/б стропильные фермы, шириной 6 м, переплеты 2х1250, под нагрузку q = 550 кг/кв. м, при плитах покрытия 1,5х6 м (шаг ферм 6 м) Фермы фонарей шириной 6 м Н = 2410 мм под нагрузку q = 550 кг/кв. м при плитах покрытия 3х6 м Фермы фонарей шириной 6 м Н = 2660 мм под нагрузку q = 550 кг/кв. м при плитах покрытия 3х6 м Фермы фонарей шириной 6 м Н = 3430 мм под нагрузку q = 350 кг/кв. м при плитах покрытия 3х6 м Фермы фонарей шириной 6 м Н = 3430 мм под нагрузку q = 550 кг/кв. м при плитах покрытия 3х6 м Фермы фонарей шириной 6 м Н = 3390 мм под нагрузку q = 350 кг/кв. м при плитах покрытия 1,5х6 м Фермы фонарей шириной 6 м Н = 3390 мм под нагрузку q = 450 кг/кв. м при плитах покрытия 1,5х6 м Фермы фонарей шириной 6 м Н = 3390 мм под нагрузку q = 550 кг/кв. м при плитах покрытия 1,5х6 м Фермы фонарей шириной 6 м Н = 2620 мм под нагрузку q = 350 кг/кв. м при плитах покрытия 1,5х6 м Фермы фонарей шириной 6 м Н = 2620 мм под нагрузку q = 450 кг/кв. м при плитах покрытия 1,5х6 м Фермы фонарей шириной 6 м Н = 2620 мм под нагрузку q = 550 кг/кв. м при плитах покрытия 1,5х6 м Фермы фонарей шириной 6 м Н = 2370 мм под нагрузку q = 350 кг/кв. м при плитах покрытия 1,5х6 м Фермы фонарей шириной 6 м Н = 2370 мм под нагрузку q = 450 кг/кв. м при плитах покрытия 1,5х6 м Фермы фонарей шириной 6 м Н = 2370 мм под нагрузку q = 550 кг/кв. м при плитах покрытия 1,5х6 м Образец монтажной схемы ферм фонарей опирающихся на стальные стропильные фермы, шириной 12 м, переплеты 2х1250, под нагрузку q = 550 кг/кв. м, при плитах покрытия 3х6 м (шаг фермы 6 м) Фермы фонарей шириной 12 м Н = 3430 мм под нагрузку q = 450 кг/кв. м при плитах покрытия 3х6 м Фермы фонарей шириной 12 м Н = 3430 мм под нагрузку q = 550 кг/кв. м при плитах покрытия 3х6 м Фермы фонарей шириной 12 м Н = 3930 мм под нагрузку q = 450 кг/кв. м при плитах покрытия 3х6 м Фермы фонарей шириной 12 м Н = 3930 мм под нагрузку q = 550 кг/кв. м при плитах покрытия 3х6 м Фермы фонарей шириной 12 м Н = 4430 мм под нагрузку q = 350 кг/кв. м при плитах покрытия 3х6 м Фермы фонарей шириной 12 м Н = 4430 мм под нагрузку q = 550 кг/кв. м при плитах покрытия 3х6 м Фермы фонарей шириной 12 м Н = 3430 мм под нагрузку q = 450 кг/кв. м при плитах покрытия 3х6 м Фермы фонарей шириной 12 м Н = 3430 мм под нагрузку q = 550 кг/кв. м при плитах покрытия 3х6 м Фермы фонарей шириной 12 м Н = 3930 мм под нагрузку q = 450 кг/кв. м при плитах покрытия 3х6 м Фермы фонарей шириной 12 м Н = 3930 мм под нагрузку q = 550 кг/кв. м при плитах покрытия 3х6 м Фермы фонарей шириной 12 м Н = 4430 мм под нагрузку q = 350 кг/кв. м при плитах покрытия 3х6 м Фермы фонарей шириной 12 м Н = 4430 мм под нагрузку q = 450 кг/кв. м при плитах покрытия 3х6 м Фермы фонарей шириной 12 м Н = 3390 мм под нагрузку q = 350 кг/кв. м при плитах покрытия 1,5х6 м Фермы фонарей шириной 12 м Н = 3390 мм под нагрузку q = 450 кг/кв. м при плитах покрытия 1,5х6 м Фермы фонарей шириной 12 м Н = 3390 мм под нагрузку q = 550 кг/кв. м при плитах покрытия 1,5х6 м Фермы фонарей шириной 12 м Н = 3890 мм под нагрузку q = 350 кг/кв. м при плитах покрытия 1,5х6 м Фермы фонарей шириной 12 м Н = 3890 мм под нагрузку q = 450 кг/кв. м при плитах покрытия 1,5х6 м Фермы фонарей шириной 12 м Н = 3890 мм под нагрузку q = 550 кг/кв. м при плитах покрытия 1,5х6 м Фермы фонарей шириной 12 м Н = 4390 мм под нагрузку q = 350 кг/кв. м при плитах покрытия 1,5х6 м Фермы фонарей шириной 12 м Н = 4390 мм под нагрузку q = 450 кг/кв. м при плитах покрытия 1,5х6 м Фермы фонарей шириной 12 м Н = 4390 мм под нагрузку q = 550 кг/кв. м при плитах покрытия 1,5х6 м Фермы фонарей шириной 12 м Н = 3390 мм под нагрузку q = 350 кг/кв. м при плитах покрытия 1,5х6 м Фермы фонарей шириной 12 м Н = 3390 мм под нагрузку q = 450 кг/кв. м при плитах покрытия 1,5х6 м Фермы фонарей шириной 12 м Н = 3390 мм под нагрузку q = 550 кг/кв. м при плитах покрытия 1,5х6 м Фермы фонарей шириной 12 м Н = 3890 мм под нагрузку q = 350 кг/кв. м при плитах покрытия 1,5х6 м Фермы фонарей шириной 12 м Н = 3890 мм под нагрузку q = 450 кг/кв. м при плитах покрытия 1,5х6 м Фермы фонарей шириной 12 м Н = 3890 мм под нагрузку q = 550 кг/кв. м при плитах покрытия 1,5х6 м Фермы фонарей шириной 12 м Н = 4390 мм под нагрузку q = 350 кг/кв. м при плитах покрытия 1,5х6 м Фермы фонарей шириной 12 м Н = 4390 мм под нагрузку q = 450 кг/кв. м при плитах покрытия 1,5х6 м Фермы фонарей шириной 12 м Н = 4390 мм под нагрузку q = 550 кг/кв. м при плитах покрытия 1,5х6 м Дополнительные элементы в температурном шве. Прокладки под фонари и таблица для их подбора |
| Разработан: | Промстальконструкция |
| Утверждён: | 08.07.1965 Союзметаллостройниипроект (Soyuzmetallostroyniiproject 5) |
| Расположен в: |

















































