Информационная система
«Ёшкин Кот»

Скачать базу одним архивом
Скачать обновления
История создания базы
Карта сайта

Скачать Серия СТ-02-11/61 Панельные стены производственных зданий. Панели из ячеистых бетонов длиной 6 м. Рабочие чертежи

Дата актуализации: 10.08.2017

Серия СТ-02-11/61

Панельные стены производственных зданий. Панели из ячеистых бетонов длиной 6 м. Рабочие чертежи

Обозначение: Серия СТ-02-11/61
Обозначение англ: Series СТ-02-11/61
Статус:не действует
Название рус.:Панельные стены производственных зданий. Панели из ячеистых бетонов длиной 6 м. Рабочие чертежи
Дата добавления в базу:01.09.2013
Дата актуализации:05.05.2017
Оглавление:Пояснительная записка
Схема компоновки продольных стен при любых высотах зданий
Маркировочная схема деталей продольных стен. Номенклатура стеновых панелей
Маркировочная схема деталей торцовых стен
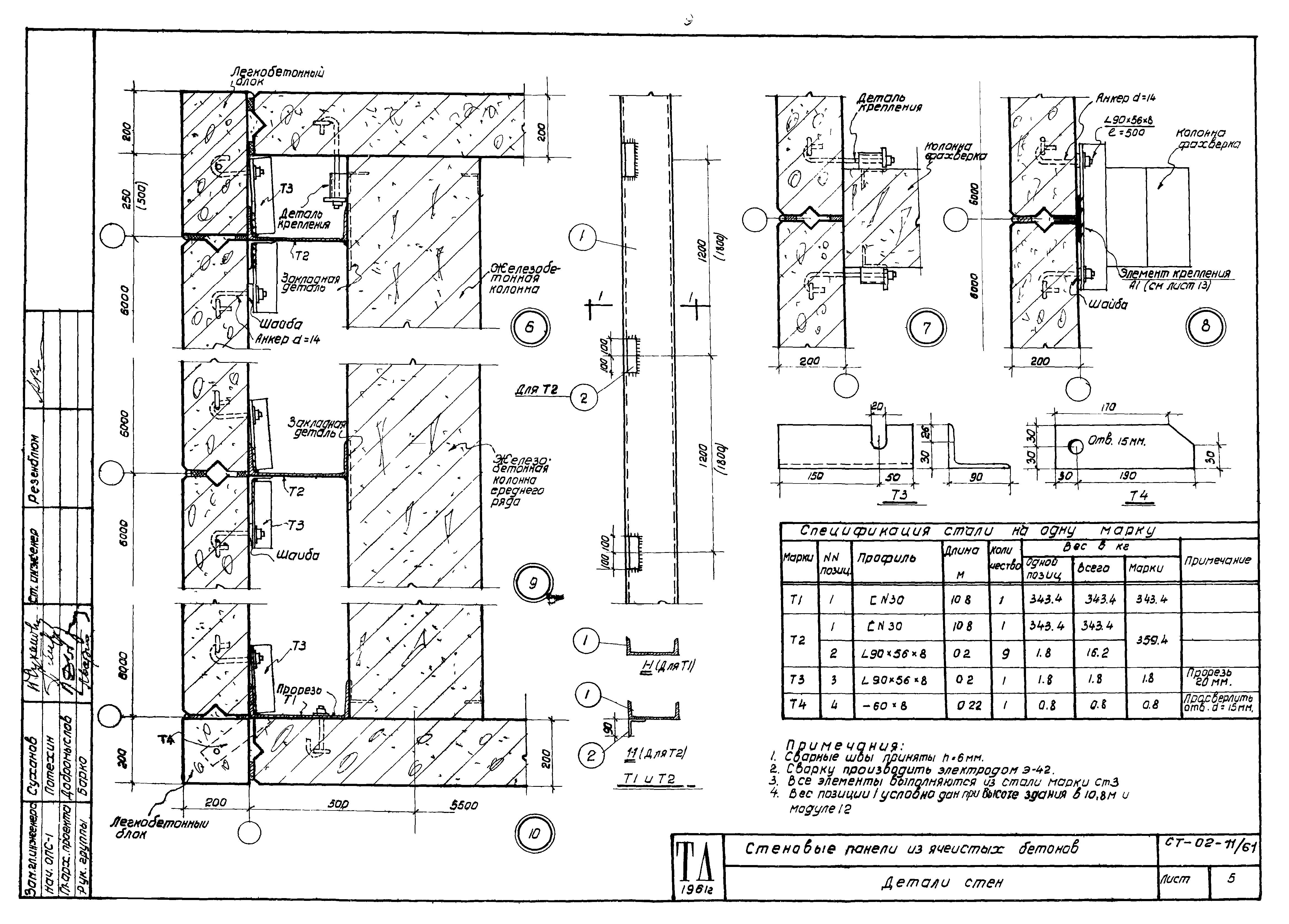
Детали стен
Детали оконных проемов
Детали карнизов при привязках "0" и "250"
Детали стен и карниза с привязкой "500"
Детали стен
Крепление парапетов продольных стен
Детали парапетов торцовых стен
Крепление парапетов торцовых стен
Детали стен
Крепление парапетов торцовых стен при сегментных фермах
Детали крепления пожарной лестницы
Деталь крепления стеновых панелей к железобетонным колоннам, конструкция швов
Опалубочный чертеж панели ПС-1. Армирование. Разрезы
Опалубочный чертеж панели ПС-2. Армирование. Разрезы
Опалубочный чертеж панели ПС-3. Армирование. Разрезы
Опалубочный чертеж панели ПС-4. Армирование. Разрезы
Опалубочный чертеж панели ПС-5. Армирование. Разрезы
Армирование панелей. Детали
Арматурные каркасы КР1 - КР5. Сетки С1 - С3
Закладные элементы. Спецификация стали
Бетонные парапетные плиты. Угловые блоки
Номенклатура дополнительных панелей. Маркировочная схема и детали стен
Опалубочный чертеж панели ПС-6. Армирование. Разрезы
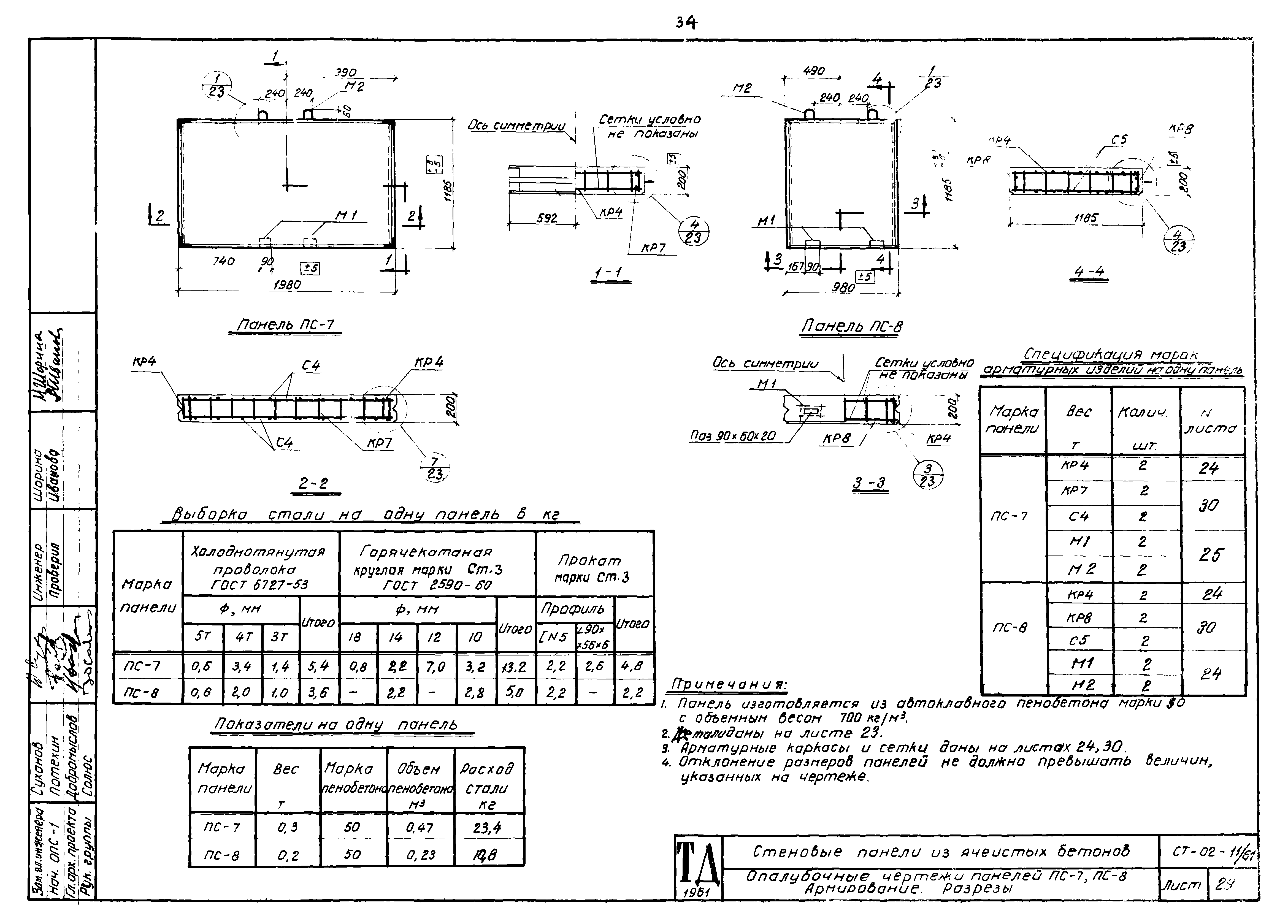
Опалубочный чертеж панелей ПС-7, ПС-8. Армирование. Разрезы
Арматурные каркасы КР6, КР7, КР8. Сетки С4, С5. Спецификация стали
Разработан: Гипротис
Утверждён:30.09.1961 Госстрой СССР (Государственный комитет Совета Министров СССР по делам строительства) (USSR Gosstroy 290)
Расположен в:Техническая документация Строительство Справочные документы Типовые строительные конструкции, изделия и узлы Разработанные другими министерствами, ведомствами и организациями
Серия СТ-02-11/61Серия СТ-02-11/61Серия СТ-02-11/61Серия СТ-02-11/61Серия СТ-02-11/61Серия СТ-02-11/61Серия СТ-02-11/61Серия СТ-02-11/61Серия СТ-02-11/61Серия СТ-02-11/61Серия СТ-02-11/61Серия СТ-02-11/61Серия СТ-02-11/61Серия СТ-02-11/61Серия СТ-02-11/61Серия СТ-02-11/61Серия СТ-02-11/61Серия СТ-02-11/61Серия СТ-02-11/61Серия СТ-02-11/61Серия СТ-02-11/61Серия СТ-02-11/61Серия СТ-02-11/61Серия СТ-02-11/61Серия СТ-02-11/61Серия СТ-02-11/61Серия СТ-02-11/61Серия СТ-02-11/61Серия СТ-02-11/61Серия СТ-02-11/61Серия СТ-02-11/61Серия СТ-02-11/61Серия СТ-02-11/61Серия СТ-02-11/61Серия СТ-02-11/61Серия СТ-02-11/61Серия СТ-02-11/61

© 2013 Ёшкин Кот :-) Карта сайта