Информационная система
«Ёшкин Кот»

Скачать базу одним архивом
Скачать обновления
История создания базы
Карта сайта

Скачать Серия ПК-01-84 Выпуск VII. Рабочие чертежи ферм пролетом 30 м из линейных элементов с натяжением арматуры нижнего пояса на упоры

Дата актуализации: 10.08.2017

Серия ПК-01-84

Выпуск VII. Рабочие чертежи ферм пролетом 30 м из линейных элементов с натяжением арматуры нижнего пояса на упоры

Обозначение: Серия ПК-01-84
Обозначение англ: Series ПК-01-84
Статус:не действует
Название рус.:Выпуск VII. Рабочие чертежи ферм пролетом 30 м из линейных элементов с натяжением арматуры нижнего пояса на упоры
Дата добавления в базу:01.09.2013
Дата актуализации:05.05.2017
Оглавление:Пояснительная записка
Сортамент и технико-экономические показатели ферм. Ключ для подбора ферм
Таблица усилий в элементах ферм
Фермы ФЛ12-30-1П, ФЛ12-30-1ПА, ФЛ12-30-2П, ФЛ12-30-2ПА, ФЛ-12-30-1С, ФЛ12-30-1СА, ФЛ12-30-2С, ФЛ12-30-2СА. Общий вид. Выборка стали и показатели на одну ферму
Фермы ФЛ12-30-1П, ФЛ12-30-1ПА, ФЛ12-30-2П, ФЛ12-30-2ПА, ФЛ-12-30-1С, ФЛ12-30-1СА, ФЛ12-30-2С, ФЛ12-30-2СА. Сборочный чертеж ферм
Фермы ФЛ12-30-1П, ФЛ12-30-1ПА, ФЛ12-30-2П, ФЛ12-30-2ПА, ФЛ-12-30-1С, ФЛ12-30-1СА, ФЛ12-30-2С, ФЛ12-30-2СА. Детали 1 - 4 сопряжения элементов
Фермы ФЛ12-30-1П, ФЛ12-30-1ПА, ФЛ12-30-2П, ФЛ12-30-2ПА, ФЛ-12-30-1С, ФЛ12-30-1СА, ФЛ12-30-2С, ФЛ12-30-2СА. Детали 5 - 8 сопряжения элементов
Фермы ФЛ12-30-3П, ФЛ12-30-3ПА, ФЛ12-30-4П, ФЛ12-30-4ПА, ФЛ-12-30-3С, ФЛ12-30-3СА, ФЛ12-30-4С, ФЛ12-30-4СА. Общий вид. Выборка стали и показатели на одну ферму
Фермы ФЛ12-30-3П, ФЛ12-30-3ПА, ФЛ12-30-4П, ФЛ12-30-4ПА, ФЛ-12-30-3С, ФЛ12-30-3СА, ФЛ12-30-4С, ФЛ12-30-4СА. Сборочный чертеж ферм
Фермы ФЛ12-30-3П, ФЛ12-30-3ПА, ФЛ12-30-4П, ФЛ12-30-4ПА, ФЛ-12-30-3С, ФЛ12-30-3СА, ФЛ12-30-4С, ФЛ12-30-4СА. Детали 1 - 4 сопряжения элементов
Фермы ФЛ12-30-3П, ФЛ12-30-3ПА, ФЛ12-30-4П, ФЛ12-30-4ПА, ФЛ-12-30-3С, ФЛ12-30-3СА, ФЛ12-30-4С, ФЛ12-30-4СА. Детали 5 - 8 сопряжения элементов
Сборные элементы СБ1 - СБ6, СБ1А - СБ6А
Сборные элементы СБ7 - СБ12, СБ7А - СБ12А
Сборные элементы СБ13 - СБ36
Сборные элементы СБ37 и СБ38
Сборные элементы СБ39 и СБ40
Сборные элементы СБ41 и СБ42
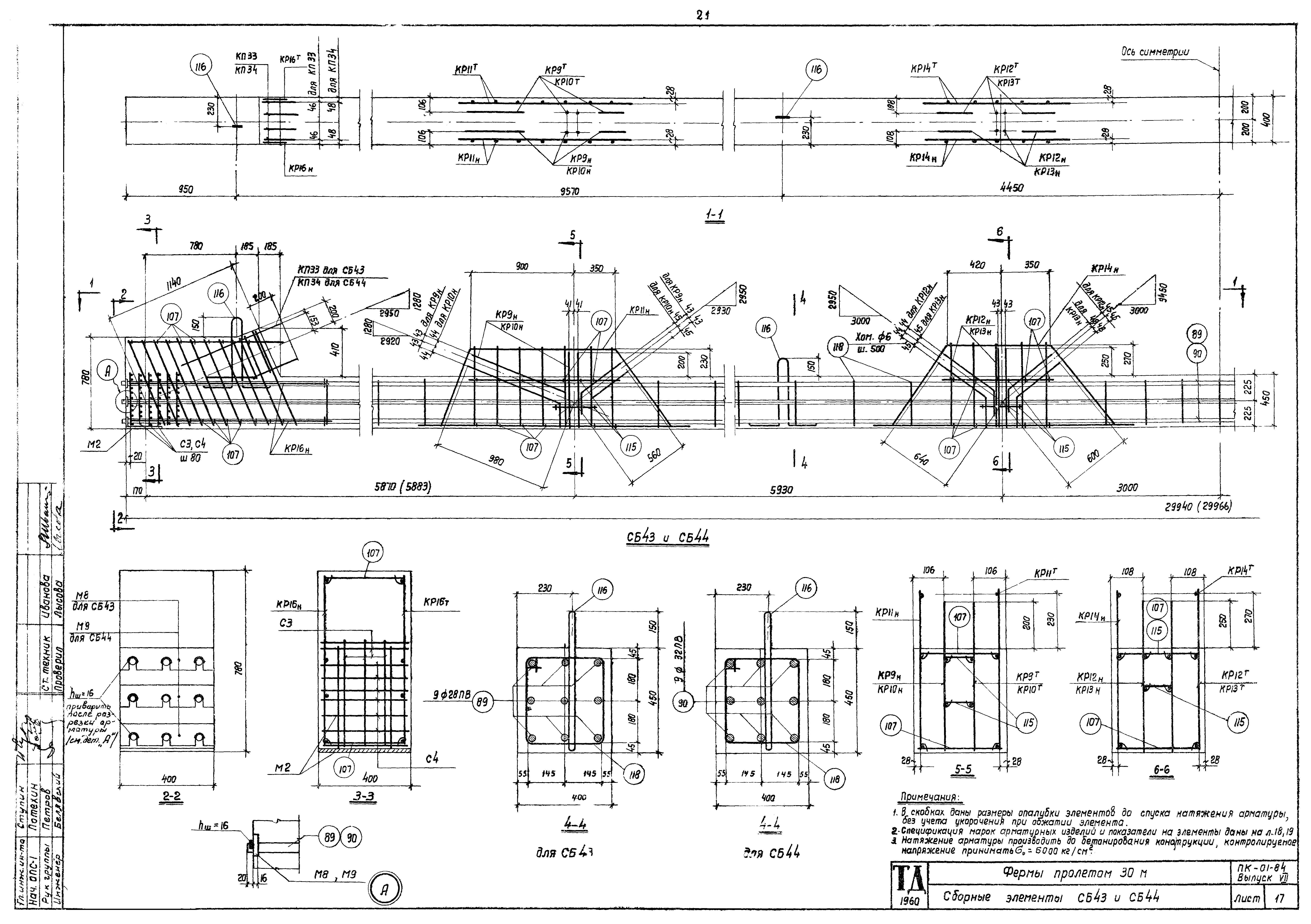
Сборные элементы СБ43 и СБ44
Спецификация марок арматурных изделий на один сборный элемент
Спецификация марок арматурных изделий на один сборный элемент. Показатели на один сборный элемент
Арматурные каркасы КП1 - КП19
Арматурные каркасы КП20 - КП34
Сварные сетки С1 - С4. Арматурные каркасы КР1 - КР8
Арматурные каркасы КР9 - КР17
Спецификация и выборка стали
Закладные элементы М1 - М9. Опорные элементы МС1 - МС2
Разработан: Ленинградский Промстройпроект
Гипротис
НИИЖБ АСиА СССР
Утверждён:13.03.1961 Госстрой СССР (Государственный комитет Совета Министров СССР по делам строительства) (USSR Gosstroy 87)
Расположен в:Техническая документация Строительство Справочные документы Типовые строительные конструкции, изделия и узлы Общероссийский строительный каталог Строительные конструкции, изделия и узлы зданий и сооружений для всех видов строительства Конструкции, изделия и узлы зданий Несущие конструкции одноэтажных зданий Стропильные и подстропильные конструкции Фермы Железобетонные
Серия ПК-01-84Серия ПК-01-84Серия ПК-01-84Серия ПК-01-84Серия ПК-01-84Серия ПК-01-84Серия ПК-01-84Серия ПК-01-84Серия ПК-01-84Серия ПК-01-84Серия ПК-01-84Серия ПК-01-84Серия ПК-01-84Серия ПК-01-84Серия ПК-01-84Серия ПК-01-84Серия ПК-01-84Серия ПК-01-84Серия ПК-01-84Серия ПК-01-84Серия ПК-01-84Серия ПК-01-84Серия ПК-01-84Серия ПК-01-84Серия ПК-01-84Серия ПК-01-84Серия ПК-01-84Серия ПК-01-84Серия ПК-01-84Серия ПК-01-84Серия ПК-01-84Серия ПК-01-84Серия ПК-01-84Серия ПК-01-84

© 2013 Ёшкин Кот :-) Карта сайта