Скачать Типовой проект 704-1-55 Альбом VI. Оборудование резервуара для темных нефтепродуктовДата актуализации: 10.08.2017 Типовой проект 704-1-55
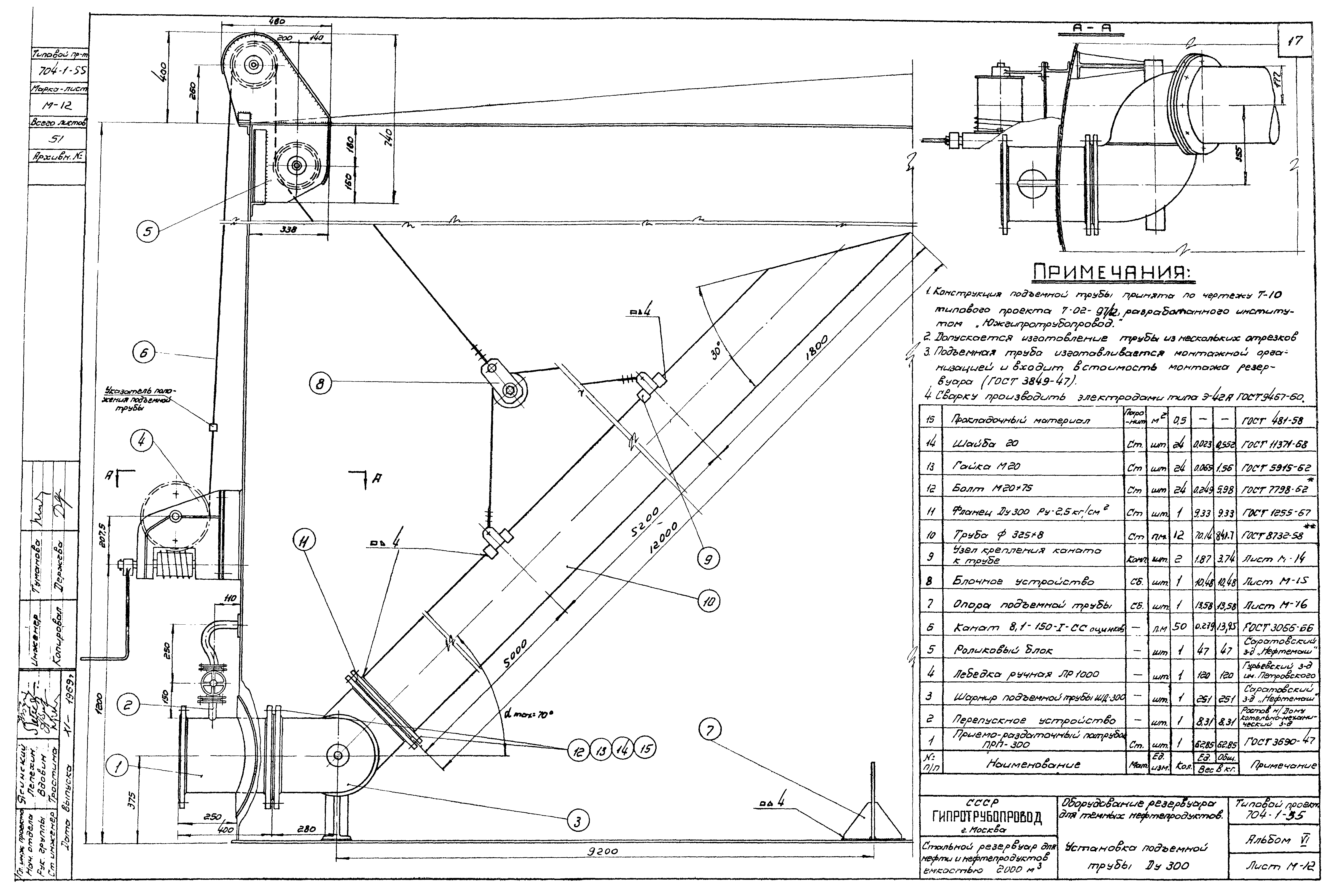
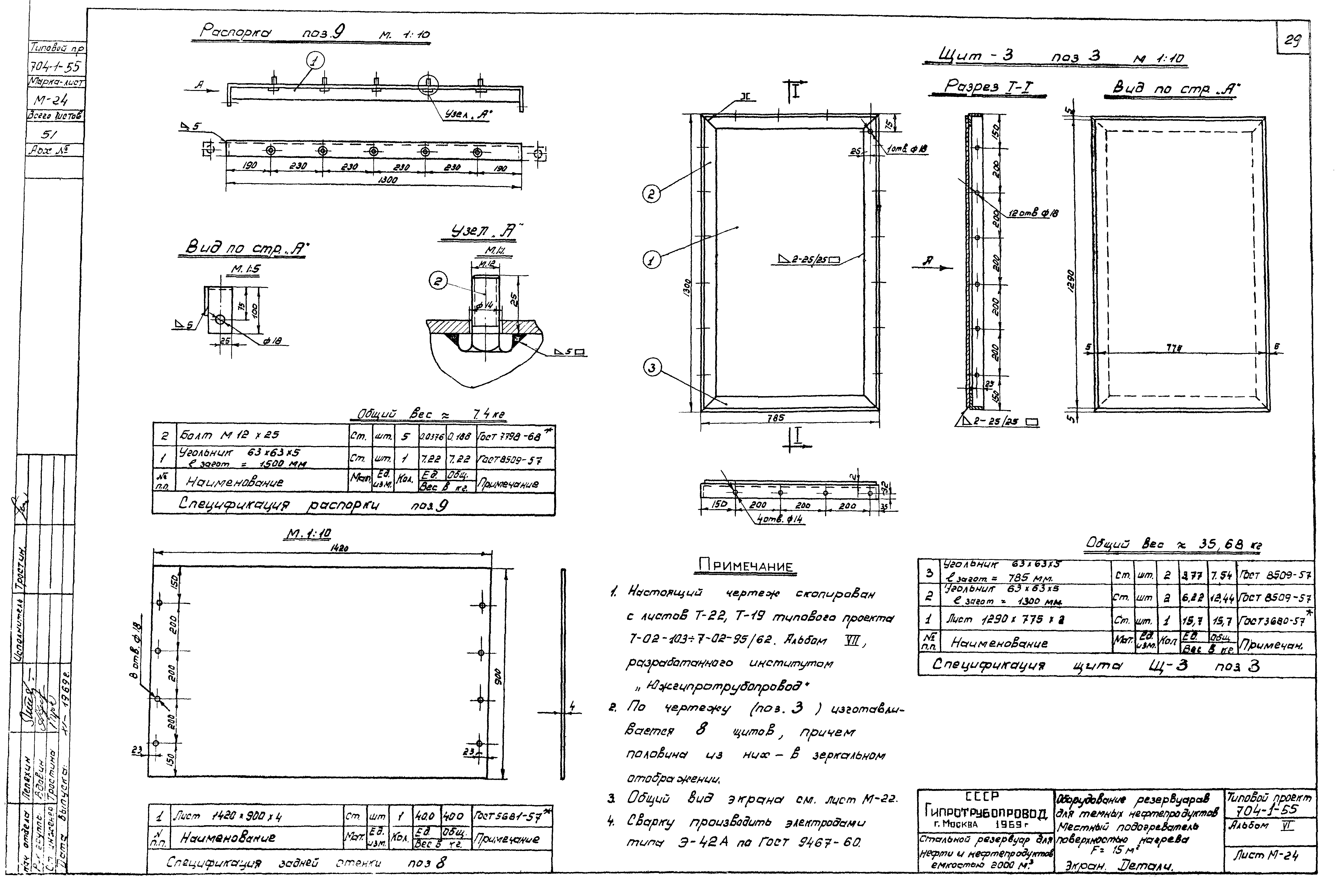
Альбом VI. Оборудование резервуара для темных нефтепродуктовОбозначение: | Типовой проект 704-1-55 | Обозначение англ: | 704-1-55 | Статус: | действует | Название рус.: | Альбом VI. Оборудование резервуара для темных нефтепродуктов | Дата добавления в базу: | 01.09.2013 | Дата актуализации: | 05.05.2017 | Дата введения: | 29.12.1969 | Оглавление: | Обложка Содержание альбома Пояснительная записка Общий вид оборудования резервуара для хранения темных нефтепродуктов Общий вид оборудования резервуара для хранения темных нефтепродуктов. Спецификация Общий вид оборудования резервуара для хранения темных нефтепродуктов (без подъемной трубы) Общий вид оборудования резервуара для хранения темных нефтепродуктов (без подъемной трубы). Спецификация Установка вентиляционного патрубка ВП-200 Установка вентиляционного патрубка ВП-250 Установка вентиляционного патрубка ВП-300 Установка приемо-раздаточного патрубка Ду250. Узел "А" Установка приемо-раздаточного патрубка Ду300. Узел "А" Установка приемо-раздаточного патрубка Ду350. Узел "А" Установка подъемной трубы Ду250 Установка подъемной трубы Ду300 Установка подъемной трубы Ду350 Узел крепления каната к подъемной трубе. Общий вид. Детали. Спецификация Блочное устройство. Общий вид. Детали. Спецификация Опора подъемной трубы. Общий вид. Детали. Спецификация Расположение секционных подогревателей общей поверхностью нагрева 51 кв. м Расположение секционных подогревателей общей поверхностью нагрева 73 кв. м Расположение секционных подогревателей общей поверхностью нагрева 101 кв. м Местный подогреватель поверхностью нагрева F = 15 кв. м. Общий вид Местный подогреватель поверхностью нагрева F = 15 кв. м. Опора и подвеска для конденсатопроводов Местный подогреватель поверхностью нагрева F = 15 кв. м. Экран. Общий вид Местный подогреватель поверхностью нагрева F = 15 кв. м. Экран. Детали Подогревательный элемент ПЭ-1, ПЭ-4, ПЭ-5, ПЭ-6 Подогревательная система. Стойка С-2 Подогревательная система. Стойка С-3 Подогревательная система. Стойка С-4 Подогревательная система. Стойка С-5 Коллектор К-1 для сборки двух подогревательных элементов Коллектор К-2 для сборки трех подогревательных элементов Коллектор К-3 для сборки четырех подогревательных элементов Коллектор К-4 для сборки пяти подогревательных элементов Узел ввода теплоносителя Шкаф к узлу ввода теплоносителя. Общий вид Шкаф к узлу ввода теплоносителя. Узлы Шкаф к узлу ввода теплоносителя. Детали Установка термометра технического ртутного. Общий вид. Узлы. Детали Принципиальная схема автоматизации Грозозащита и заземление | Разработан: | Гипротрубопровод Миннефтепрома (Giprotruboprovod, Minnefteprom )
| Утверждён: | 29.12.1969 ЦНИИпроектстальконструкция (TsNIIprojectstalkonstruktsiya 221)
| Расположен в: |
|
                                                 
|