Информационная система
«Ёшкин Кот»

Скачать базу одним архивом
Скачать обновления
История создания базы
Карта сайта

Скачать Серия 416-0-1 Выпуск 4. Примеры планировочных решений здравпунктов

Дата актуализации: 10.08.2017

Серия 416-0-1

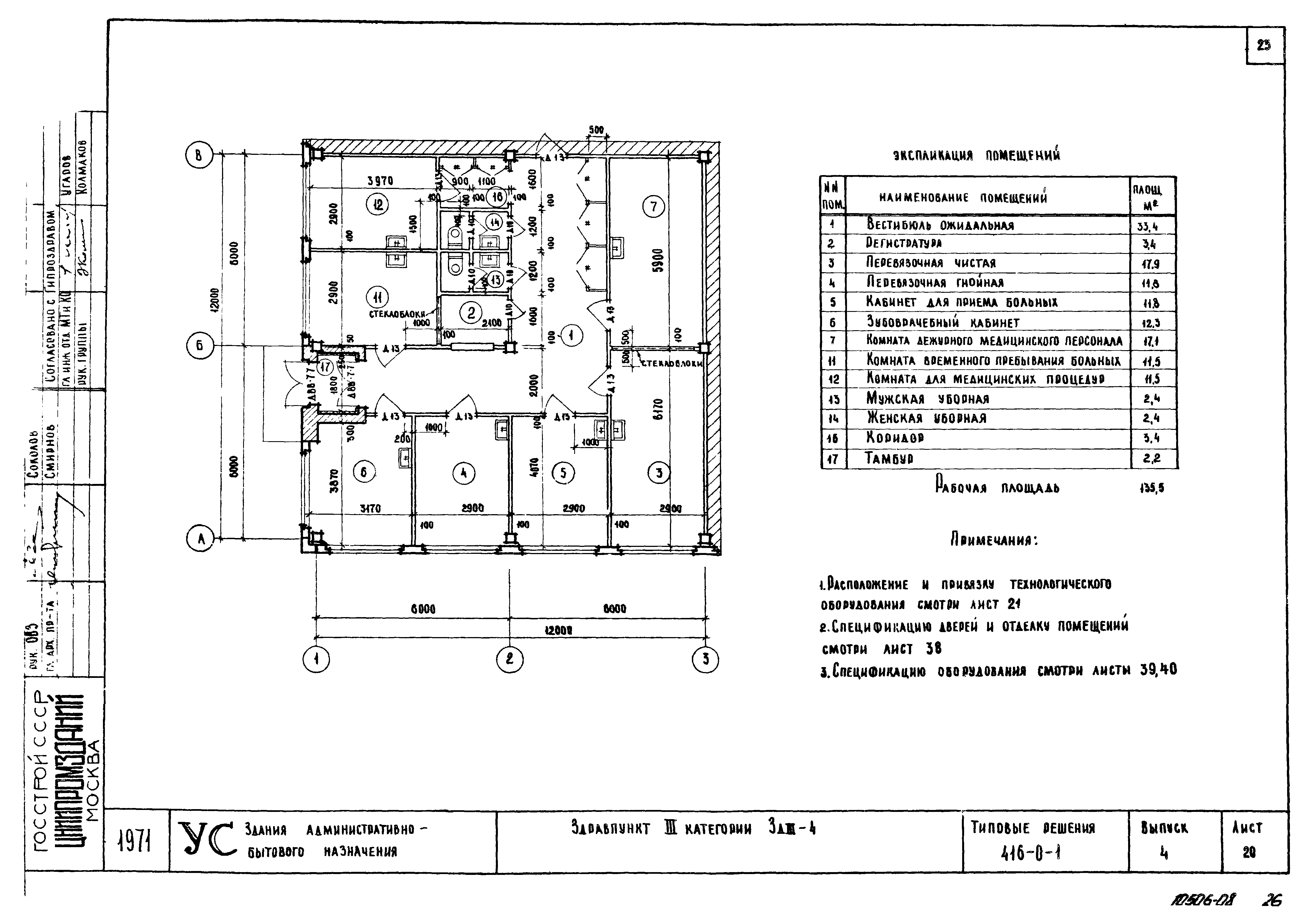
Выпуск 4. Примеры планировочных решений здравпунктов

Обозначение: Серия 416-0-1
Обозначение англ: Series 416-0-1
Статус:не действует
Название рус.:Выпуск 4. Примеры планировочных решений здравпунктов
Дата добавления в базу:01.09.2013
Дата актуализации:05.05.2017
Оглавление:Пояснительная записка
Здравпункты
   Схема возможного расположения
   Здравпункты II категории
   Здравпункты III категории
   Здравпункты IV категории
   Отделка помещений. Спецификация дверей
   Спецификация оборудования. Условные обозначения
   Установочный чертеж стоматологической установки УС-30 (УС-29)
   Установочный чертеж автоклава АГ-1 (А-6)
Фотарии
   Фотарии кабинного типа
   Фотарии маячного типа
   Фотарии проходного типа
   Принципиальная электрическая схема управления фотария на 4 кабины
Помещение личной гигиены женщин
   Гигиенический женский душ. План, разрез, детали
   Гигиенический женский душ. Смеситель
Ингалятории
Разработан: ЦНИИпромзданий
Утверждён:16.04.1970 Госстрой СССР (Государственный комитет Совета Министров СССР по делам строительства) (USSR Gosstroy 2/2-84)
Расположен в:Техническая документация Строительство Справочные документы Типовые строительные конструкции, изделия и узлы Общероссийский строительный каталог Промышленные предприятия, здания и сооружения Предприятия, здания и сооружения промышленности и электроэнергетики Материалы общие межотраслевые. Унифицированные здания (модули, секции)
Серия 416-0-1Серия 416-0-1Серия 416-0-1Серия 416-0-1Серия 416-0-1Серия 416-0-1Серия 416-0-1Серия 416-0-1Серия 416-0-1Серия 416-0-1Серия 416-0-1Серия 416-0-1Серия 416-0-1Серия 416-0-1Серия 416-0-1Серия 416-0-1Серия 416-0-1Серия 416-0-1Серия 416-0-1Серия 416-0-1Серия 416-0-1Серия 416-0-1Серия 416-0-1Серия 416-0-1Серия 416-0-1Серия 416-0-1Серия 416-0-1Серия 416-0-1Серия 416-0-1Серия 416-0-1Серия 416-0-1Серия 416-0-1Серия 416-0-1Серия 416-0-1Серия 416-0-1Серия 416-0-1Серия 416-0-1Серия 416-0-1Серия 416-0-1Серия 416-0-1Серия 416-0-1Серия 416-0-1Серия 416-0-1Серия 416-0-1Серия 416-0-1Серия 416-0-1Серия 416-0-1Серия 416-0-1Серия 416-0-1Серия 416-0-1Серия 416-0-1Серия 416-0-1Серия 416-0-1Серия 416-0-1Серия 416-0-1Серия 416-0-1Серия 416-0-1Серия 416-0-1Серия 416-0-1Серия 416-0-1Серия 416-0-1Серия 416-0-1Серия 416-0-1Серия 416-0-1Серия 416-0-1

© 2013 Ёшкин Кот :-) Карта сайта