Информационная система
«Ёшкин Кот»

Скачать базу одним архивом
Скачать обновления
История создания базы
Карта сайта

Скачать Серия 416-0-1 Выпуск 3. Примеры планировочных решений административных помещений и проходных

Дата актуализации: 10.08.2017

Серия 416-0-1

Выпуск 3. Примеры планировочных решений административных помещений и проходных

Обозначение: Серия 416-0-1
Обозначение англ: Series 416-0-1
Статус:не действует
Название рус.:Выпуск 3. Примеры планировочных решений административных помещений и проходных
Дата добавления в базу:01.09.2013
Дата актуализации:05.05.2017
Оглавление:Пояснительная записка
Вестибюли, гардеробные
Административные помещения
   а) Конторские помещения
   б) Кабинеты и секретариат
   в) Машинописные бюро
   г) Залы совещаний, красные уголки
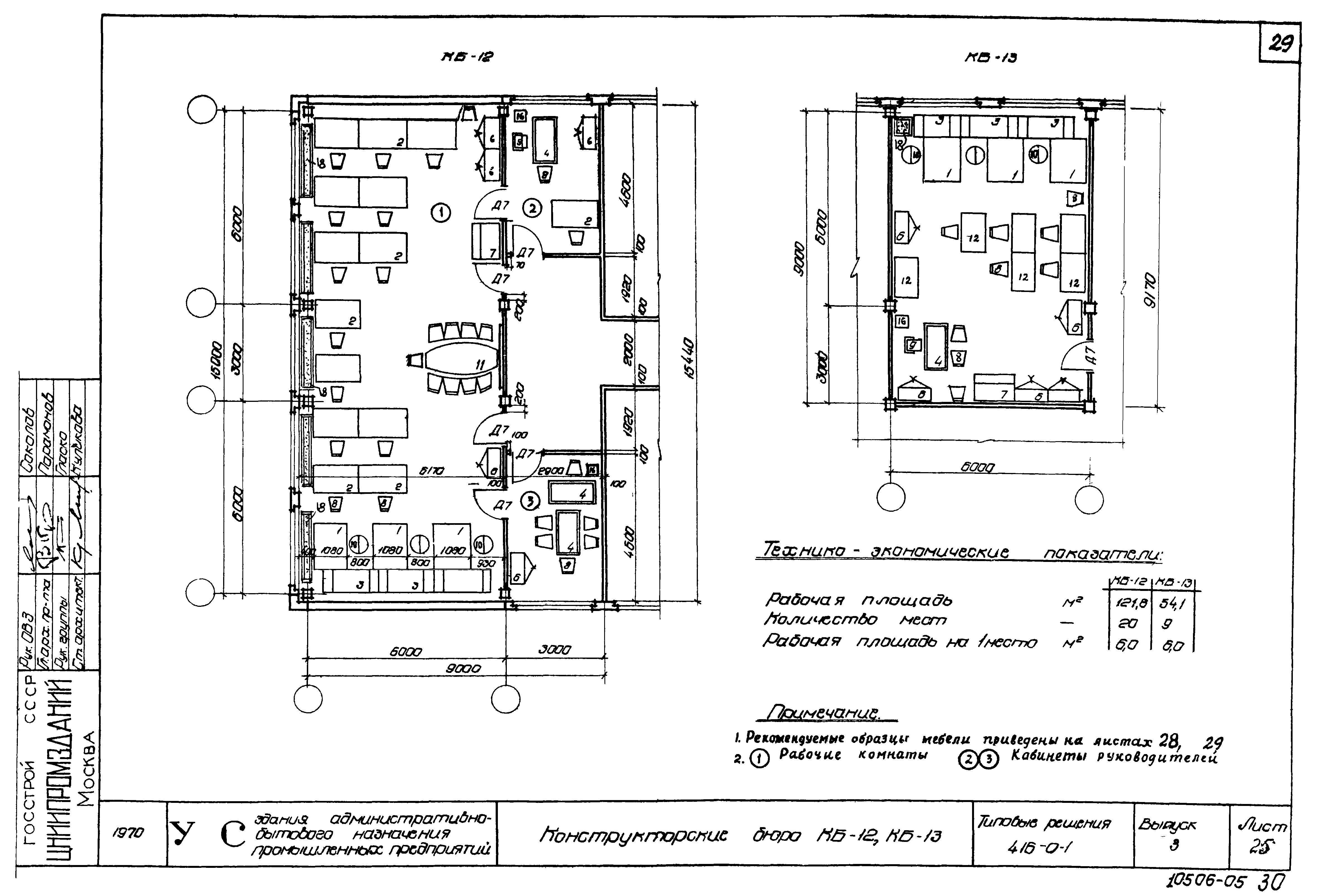
Конструкторские бюро
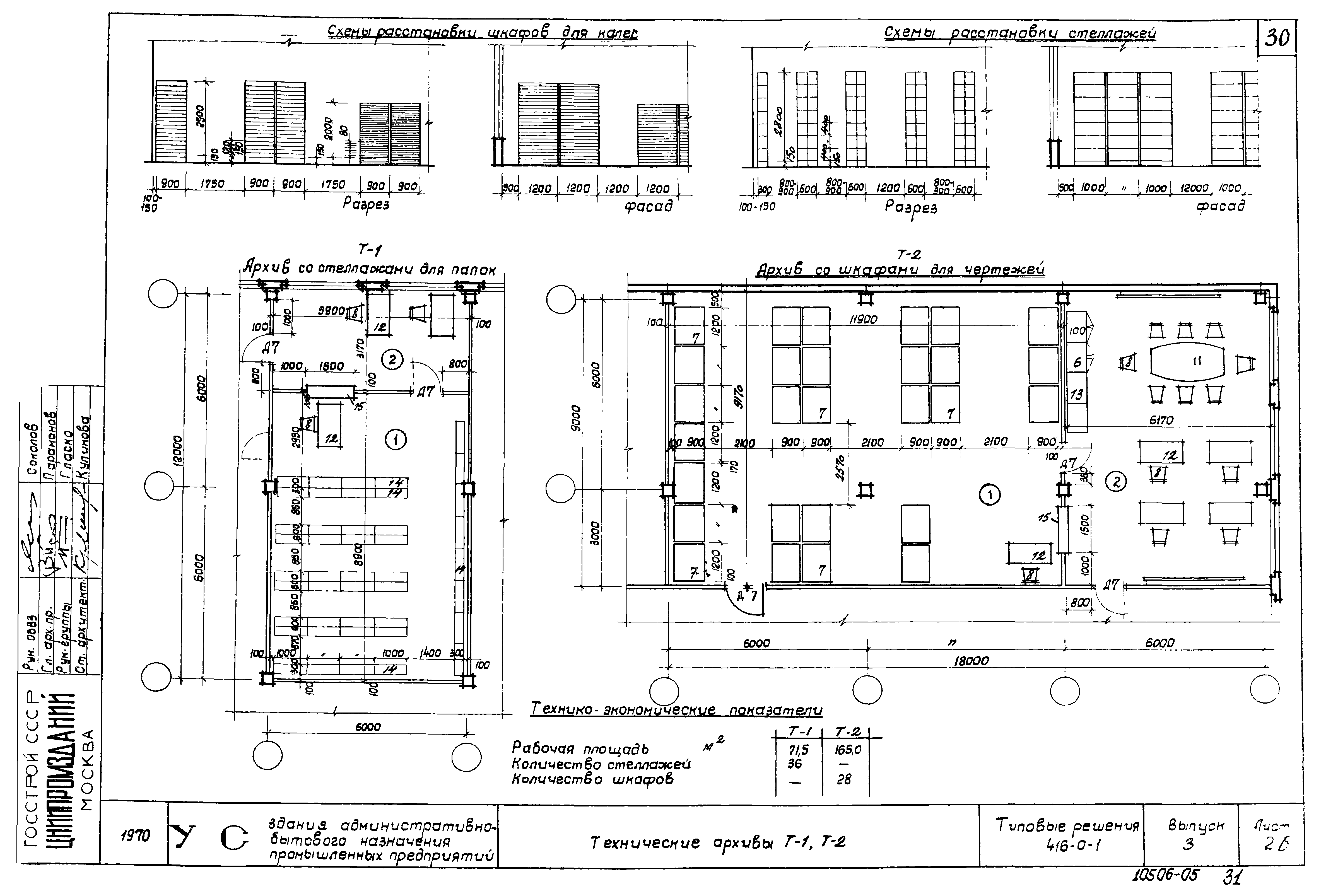
Технические архивы
Копировально-множительная служба
Узлы связи
Машиносчетные станции
Проходные пункты
Разработан: ЦНИИпромзданий
Утверждён:16.04.1970 Госстрой СССР (Государственный комитет Совета Министров СССР по делам строительства) (USSR Gosstroy 2/2-84)
Расположен в:Техническая документация Строительство Справочные документы Типовые строительные конструкции, изделия и узлы Общероссийский строительный каталог Промышленные предприятия, здания и сооружения Предприятия, здания и сооружения промышленности и электроэнергетики Материалы общие межотраслевые. Унифицированные здания (модули, секции)
Серия 416-0-1Серия 416-0-1Серия 416-0-1Серия 416-0-1Серия 416-0-1Серия 416-0-1Серия 416-0-1Серия 416-0-1Серия 416-0-1Серия 416-0-1Серия 416-0-1Серия 416-0-1Серия 416-0-1Серия 416-0-1Серия 416-0-1Серия 416-0-1Серия 416-0-1Серия 416-0-1Серия 416-0-1Серия 416-0-1Серия 416-0-1Серия 416-0-1Серия 416-0-1Серия 416-0-1Серия 416-0-1Серия 416-0-1Серия 416-0-1Серия 416-0-1Серия 416-0-1Серия 416-0-1Серия 416-0-1Серия 416-0-1Серия 416-0-1Серия 416-0-1Серия 416-0-1Серия 416-0-1Серия 416-0-1Серия 416-0-1Серия 416-0-1Серия 416-0-1Серия 416-0-1Серия 416-0-1Серия 416-0-1Серия 416-0-1Серия 416-0-1Серия 416-0-1Серия 416-0-1Серия 416-0-1Серия 416-0-1Серия 416-0-1Серия 416-0-1Серия 416-0-1Серия 416-0-1Серия 416-0-1Серия 416-0-1Серия 416-0-1Серия 416-0-1Серия 416-0-1Серия 416-0-1Серия 416-0-1Серия 416-0-1Серия 416-0-1Серия 416-0-1Серия 416-0-1Серия 416-0-1Серия 416-0-1

© 2013 Ёшкин Кот :-) Карта сайта