Информационная система
«Ёшкин Кот»

Скачать базу одним архивом
Скачать обновления
История создания базы
Карта сайта

Скачать Типовой проект 272-20-142.84 Альбом 2. Внутренний водопровод и канализация. Отопление и вентиляция. Холодоснабжение. Электроосвещение и электрооборудование. Автоматизация санитарно-технических систем. Связь и сигнализация

Дата актуализации: 10.08.2017

Типовой проект 272-20-142.84

Альбом 2. Внутренний водопровод и канализация. Отопление и вентиляция. Холодоснабжение. Электроосвещение и электрооборудование. Автоматизация санитарно-технических систем. Связь и сигнализация

Обозначение: Типовой проект 272-20-142.84
Обозначение англ: 272-20-142.84
Статус:не определен законодательством
Название рус.:Альбом 2. Внутренний водопровод и канализация. Отопление и вентиляция. Холодоснабжение. Электроосвещение и электрооборудование. Автоматизация санитарно-технических систем. Связь и сигнализация
Дата добавления в базу:01.09.2013
Дата актуализации:05.05.2017
Дата введения:12.09.1984
Оглавление:Чертежи основного комплекта марки ВК
   Общие данные
   План на отм. 0.000 с системами В1, Т3, К1, К2, К3, К13
   План на отм. 3.300 с системами В1, К2, К13. Экспликация помещений
   Схема системы В1
   Схема системы Т3
   Схема систем К1, К2, К3, К13
Чертежи основного комплекта марки ОВ
   Общие данные
   Отопление. Теплоснабжение установок систем. План на отм. 0.000
   Отопление. Теплоснабжение установок систем. План на отм. 3.300. Схемы теплоснабжения П1, У1
   Вентиляция. План на отм. 0.000
   Вентиляция. План на отм. 3.300. Экспликация помещений. Таблица местных отсосов от технологического оборудования
   Утилизация тепла. План на отм. 3.300. Схема системы утилизации тепла
   Схема системы отопления
   Схемы систем П1 - П3, У1, В1
   Схемы систем В2 - В8, ВЕ1 - ВЕ11
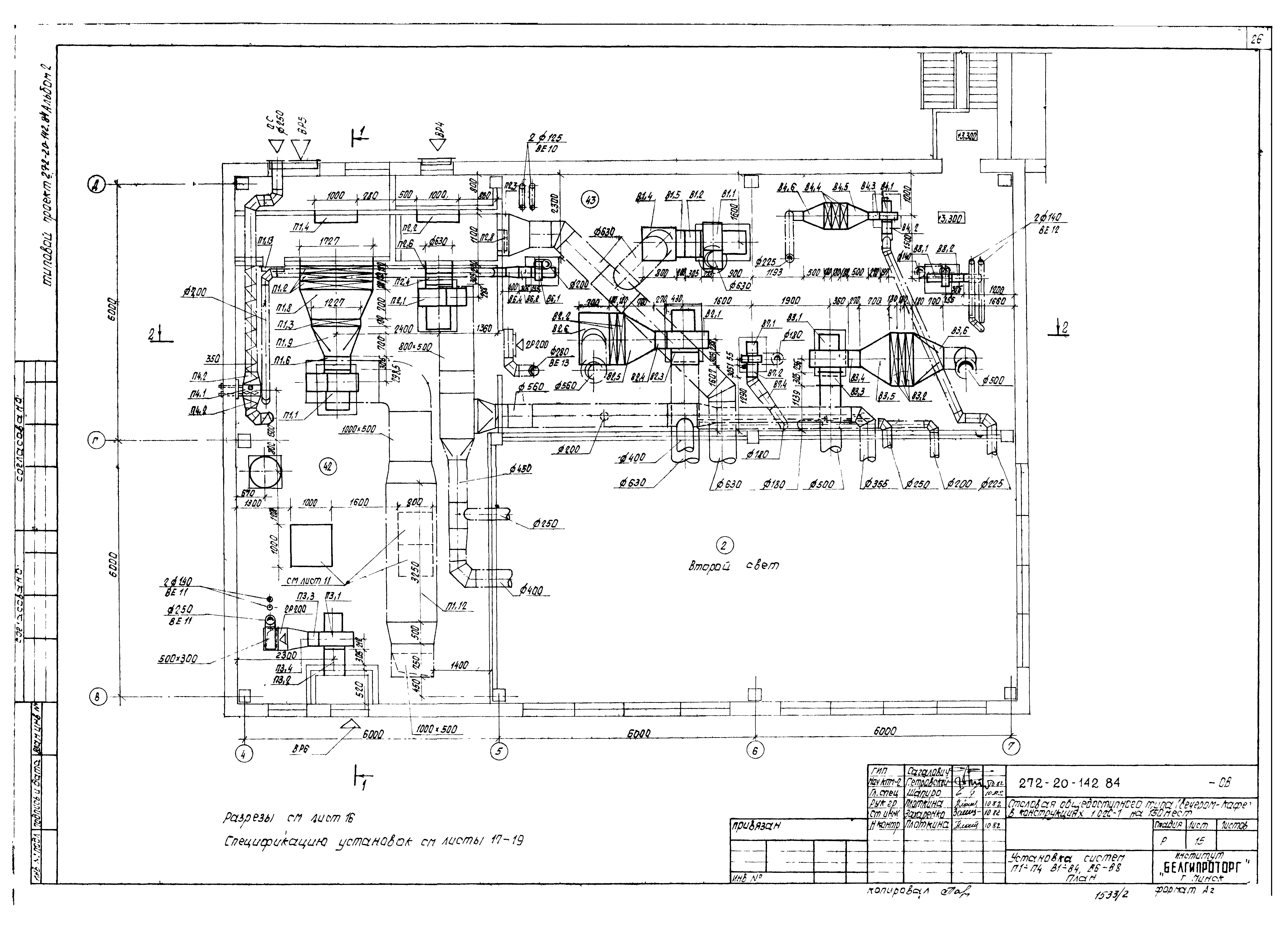
   Установка систем П1 - П4, В1 - В4, В6 - В8. План
   Установка систем П1 - П4, В1 - В4, В6 - В8. Разрезы 1-1, 2-2
   Спецификация отопительно-вентиляционных установок П1, П2, П3
   Спецификация отопительно-вентиляционных установок П4, В1, В2, В3
   Спецификация отопительно-вентиляционных установок В4, В6, В7, В8
   Установка системы У1
   Узел управления. План. Вид А. Вид Б-Б. Спецификация оборудования и материалов
Чертежи основного комплекта марки ХС
   Общие данные
   План расположения холодильного оборудования. Разрез 1-1
   Монтажно-технологические схемы холодильных машин ХМВ1-6 и ФАК-1,5МЗ
   Монтаж и крепление испарителей ИРСН из двух батарей
   Указание по монтажу холодильного оборудования, испытание систем. Узлы монтажа
Чертежи основного комплекта марки Э
   Общие данные
   Сводная спецификация
   Расчетная схема питающей сети
   Расчетная схема распределительной сети (ЩС-1, ЩС-2)
   Расчетная схема распределительной сети (ЩС-3, ЩС-4)
   Расчетная схема распределительной сети (ЩС-5, ЩС-6)
   План силовых сетей на отм. 0.000
   План силовых сетей на отм. 3.300
   План питающих сетей на отм. 0.000
   План питающих сетей на отм. 3.300
   План сетей освещения на отм. 0.000
   План сетей освещения на отм. 3.300
Чертежи основного комплекта марки А
   Общие данные
   Системы П1, П2, В2, В3, насосы утилизации. Схема функциональная автоматизации
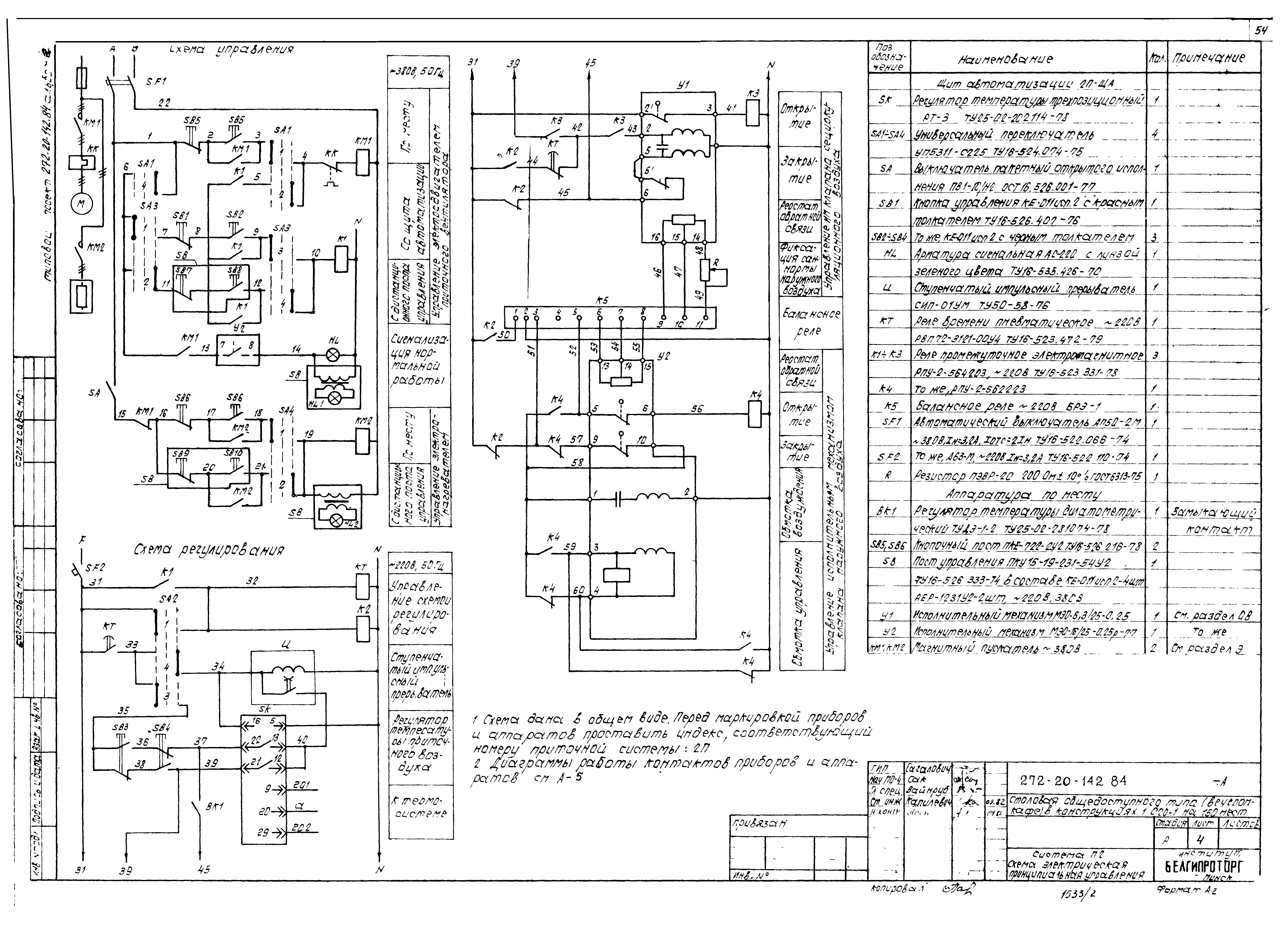
   Система П1. Схема электрическая принципиальная управления
   Система П2. Схема электрическая принципиальная управления
   Система В2 (В3, В4), насос утилизации №1 (№2). Схема электрическая принципиальная управления
   Системы П3, В5, У1. Схема электрическая принципиальная управления
   Система П1. Схема внешних электрических проводок
   Система П2. Схема внешних электрических проводок
   Система В2, В3, В4. Схема внешних электрических проводок
   Насосы утилизации. Схема внешних электрических проводок
   Системы П3, В5, У1. Схема внешних электрических проводок
   План расположения средств автоматизации и электрических проводок
Чертежи основного комплекта марки СС1
   Общие данные
   План сетей устройств связи
Чертежи основного комплекта марки СС2
   Общие данные
   План сетей охранно-пожарной сигнализации
Разработан: Белгипроторг
Утверждён:29.04.1983 Госгражданстрой (Gosgrazhdanstroy 129)
Расположен в:Техническая документация Строительство Справочные документы Типовые строительные конструкции, изделия и узлы Общероссийский строительный каталог Общественные здания в городах и поселках городского типа Предприятия торговли и общественного питания. Общественные центры Предприятия общественного питания Столовые
Типовой проект 272-20-142.84Типовой проект 272-20-142.84Типовой проект 272-20-142.84Типовой проект 272-20-142.84Типовой проект 272-20-142.84Типовой проект 272-20-142.84Типовой проект 272-20-142.84Типовой проект 272-20-142.84Типовой проект 272-20-142.84Типовой проект 272-20-142.84Типовой проект 272-20-142.84Типовой проект 272-20-142.84Типовой проект 272-20-142.84Типовой проект 272-20-142.84Типовой проект 272-20-142.84Типовой проект 272-20-142.84Типовой проект 272-20-142.84Типовой проект 272-20-142.84Типовой проект 272-20-142.84Типовой проект 272-20-142.84Типовой проект 272-20-142.84Типовой проект 272-20-142.84Типовой проект 272-20-142.84Типовой проект 272-20-142.84Типовой проект 272-20-142.84Типовой проект 272-20-142.84Типовой проект 272-20-142.84Типовой проект 272-20-142.84Типовой проект 272-20-142.84Типовой проект 272-20-142.84Типовой проект 272-20-142.84Типовой проект 272-20-142.84Типовой проект 272-20-142.84Типовой проект 272-20-142.84Типовой проект 272-20-142.84Типовой проект 272-20-142.84Типовой проект 272-20-142.84Типовой проект 272-20-142.84Типовой проект 272-20-142.84Типовой проект 272-20-142.84Типовой проект 272-20-142.84Типовой проект 272-20-142.84Типовой проект 272-20-142.84Типовой проект 272-20-142.84Типовой проект 272-20-142.84Типовой проект 272-20-142.84Типовой проект 272-20-142.84Типовой проект 272-20-142.84Типовой проект 272-20-142.84Типовой проект 272-20-142.84Типовой проект 272-20-142.84Типовой проект 272-20-142.84Типовой проект 272-20-142.84Типовой проект 272-20-142.84Типовой проект 272-20-142.84Типовой проект 272-20-142.84Типовой проект 272-20-142.84Типовой проект 272-20-142.84Типовой проект 272-20-142.84Типовой проект 272-20-142.84Типовой проект 272-20-142.84Типовой проект 272-20-142.84Типовой проект 272-20-142.84Типовой проект 272-20-142.84Типовой проект 272-20-142.84Типовой проект 272-20-142.84Типовой проект 272-20-142.84Типовой проект 272-20-142.84Типовой проект 272-20-142.84Типовой проект 272-20-142.84

© 2013 Ёшкин Кот :-) Карта сайта