Информационная система
«Ёшкин Кот»

Скачать базу одним архивом
Скачать обновления
История создания базы
Карта сайта

Скачать Типовой проект 407-3-590.90 Альбом 5. Конструкции металлические (из ТП 407-3-586.90)

Дата актуализации: 10.08.2017

Типовой проект 407-3-590.90

Альбом 5. Конструкции металлические (из ТП 407-3-586.90)

Обозначение: Типовой проект 407-3-590.90
Обозначение англ: 407-3-590.90
Статус:cправочные материалы, мп, тпр
Название рус.:Альбом 5. Конструкции металлические (из ТП 407-3-586.90)
Дата добавления в базу:01.09.2013
Дата актуализации:05.05.2017
Оглавление:Чертежи основного комплекта марки КМ
   Общие данные
   Монтажная схема установки ворот В-1
   Комплект "А", "Б"
   Комплект "В", "Г", "Ж"
   Коробка К-1. Полотно МВ-1
   Решетка жалюзийная ЖР-1, ЖР-2
   Лестница Л-1. Узел А. Спецификация
   Лестница Л-2. Узел А, Б. Спецификация
   Оголовок ОГ-1. Рама Р1, Р2. Марки МЛ (МЛ-1, МЛ-4, МЛ-5)
   Схема расположения элементов сетчатого ограждения СО. Узлы I - IV
   Секция С (С-1, С-2). Калитка К-1. Ручка Р (Р-1, Р-2)
   Стойка С-4, С-5. Изделие С-3, С-6, М-1, М-2, М-3, М-4, М-5
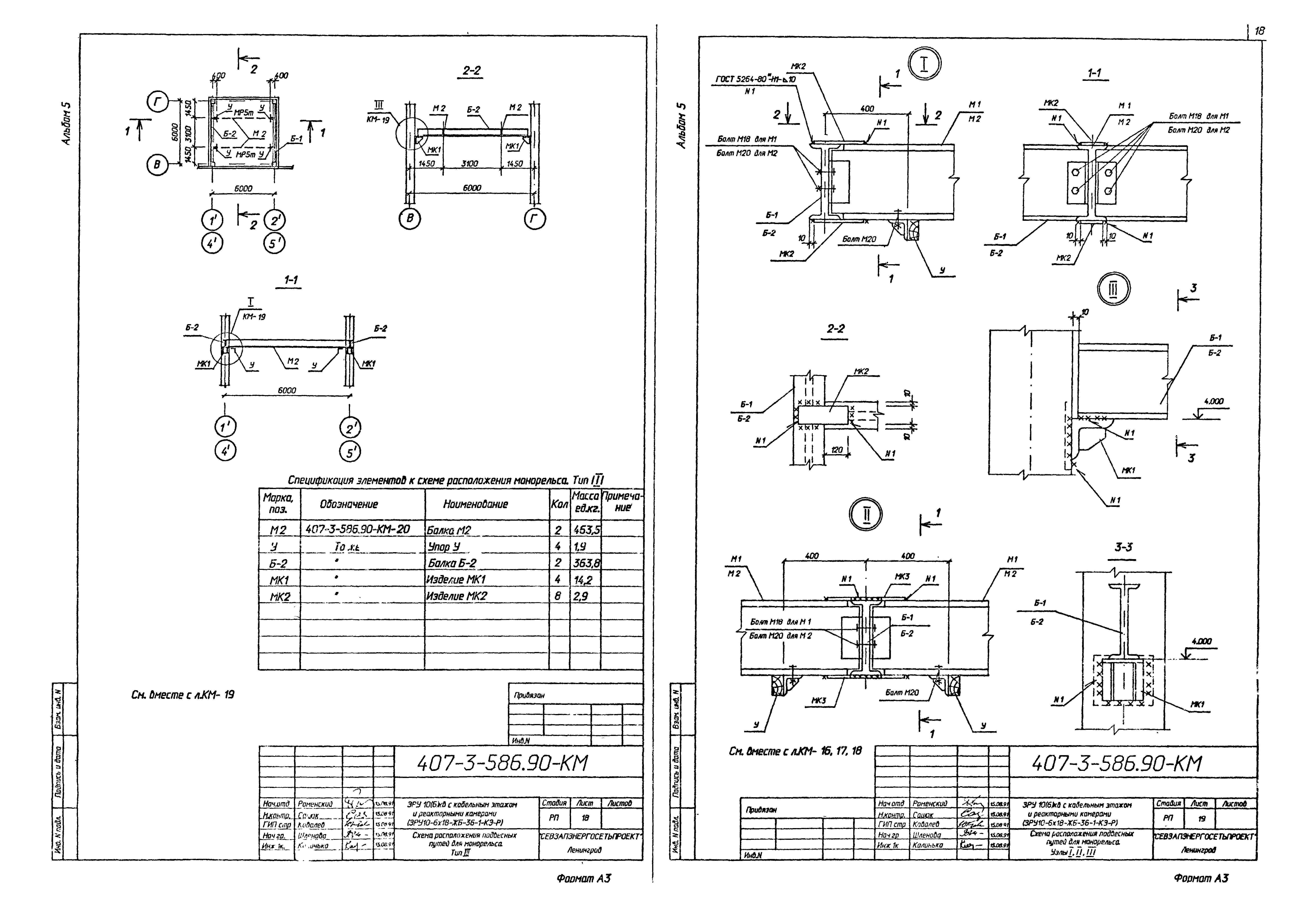
   Схема расположения подвесных путей для монорельса. Тип I
   Схема расположения подвесных путей для монорельса. Тип II
   Схема расположения подвесных путей для монорельса. Тип III
   Схема расположения подвесных путей для монорельса. Узлы I, II, III
   Балки Б-1, Б-2, М1, М2. Упор У. Изделия МК1, МК2, МК3
   Изделие М-15, М-16. Балка Б-3
Разработан: Севзапэнергосетьпроект
Утверждён:08.08.1991 Минэнерго СССР (USSR Minenergo 35)
Расположен в:Техническая документация Строительство Справочные документы Типовые строительные конструкции, изделия и узлы Общероссийский строительный каталог Промышленные предприятия, здания и сооружения Предприятия, здания и сооружения промышленности и электроэнергетики Электроэнергетика Устройства и подстанции распределительные
Типовой проект 407-3-590.90Типовой проект 407-3-590.90Типовой проект 407-3-590.90Типовой проект 407-3-590.90Типовой проект 407-3-590.90Типовой проект 407-3-590.90Типовой проект 407-3-590.90Типовой проект 407-3-590.90Типовой проект 407-3-590.90Типовой проект 407-3-590.90Типовой проект 407-3-590.90Типовой проект 407-3-590.90Типовой проект 407-3-590.90Типовой проект 407-3-590.90Типовой проект 407-3-590.90Типовой проект 407-3-590.90Типовой проект 407-3-590.90Типовой проект 407-3-590.90Типовой проект 407-3-590.90Типовой проект 407-3-590.90Типовой проект 407-3-590.90

© 2013 Ёшкин Кот :-) Карта сайта