Информационная система
«Ёшкин Кот»

Скачать базу одним архивом
Скачать обновления
История создания базы
Карта сайта

Скачать Типовой проект производства работ на строительство средней общеобразовательной школы на 33 класса (1251 - 1296 учащихся) в конструкциях серии 1.090.1-1

Дата актуализации: 10.08.2017

Типовой проект производства работ на строительство средней общеобразовательной школы на 33 класса (1251 - 1296 учащихся) в конструкциях серии 1.090.1-1

Статус:не действует
Название рус.:Типовой проект производства работ на строительство средней общеобразовательной школы на 33 класса (1251 - 1296 учащихся) в конструкциях серии 1.090.1-1
Дата добавления в базу:01.09.2013
Дата актуализации:05.05.2017
Область применения:Типовой проект производства работ разработан в соответствии со СНиП 3.01.01—85 "Организация строительного производства" и тематическим планом, утвержденным Минсевзапстроем СССР, на основании рабочих чертежей типового проекта 22I-I—384.85 "Средняя общеобразовательная школа на 33 класса (1251-1296 учащихся) в конструкциях серии 1.090.1-1"
Оглавление:Пояснительная записка
Стройгенплан на период возведения надземной части здания (вариант I)
Стройгенплан на период возведения надземной части здания (вариант II)
Технологическая карта на производство земляных работ
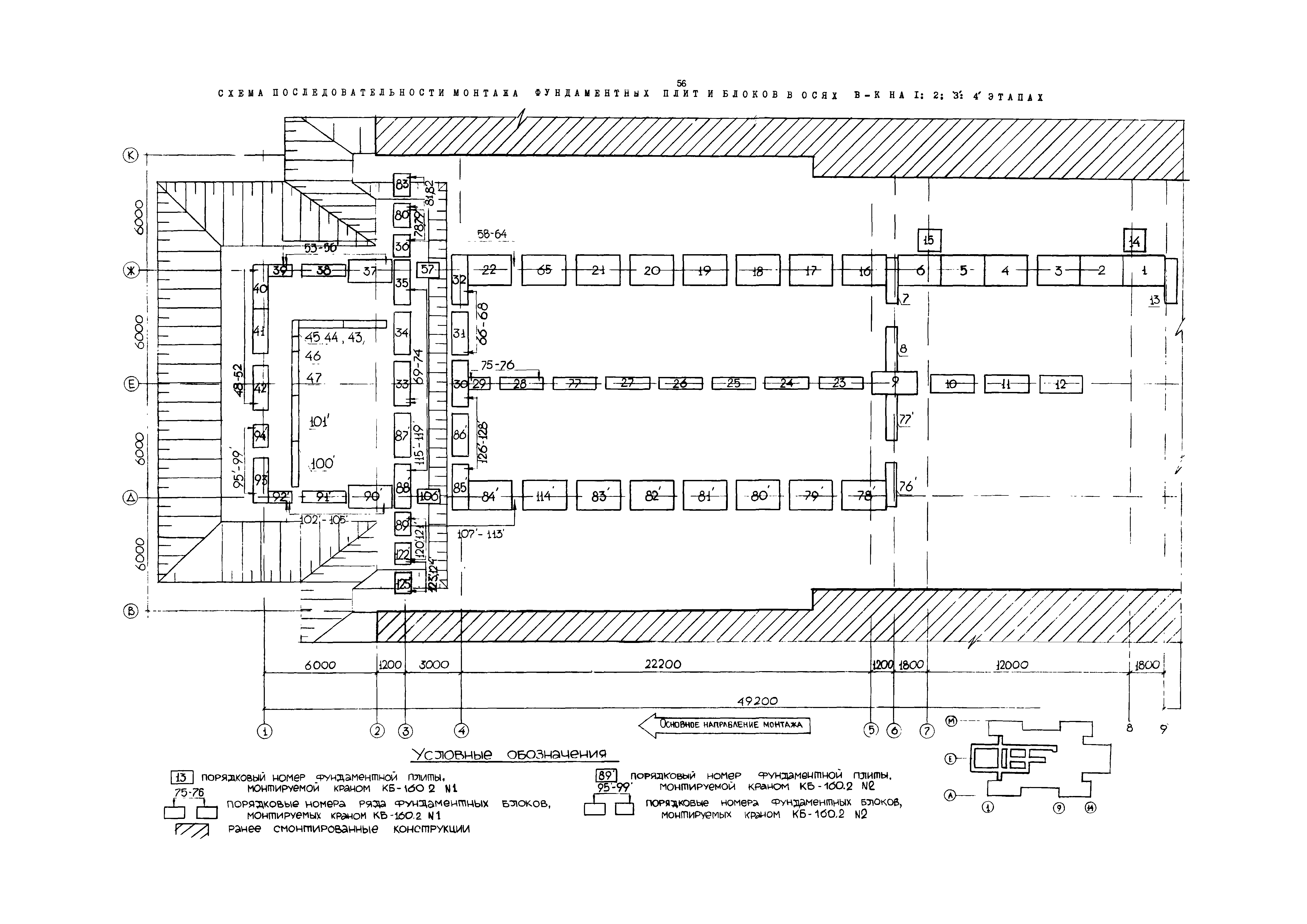
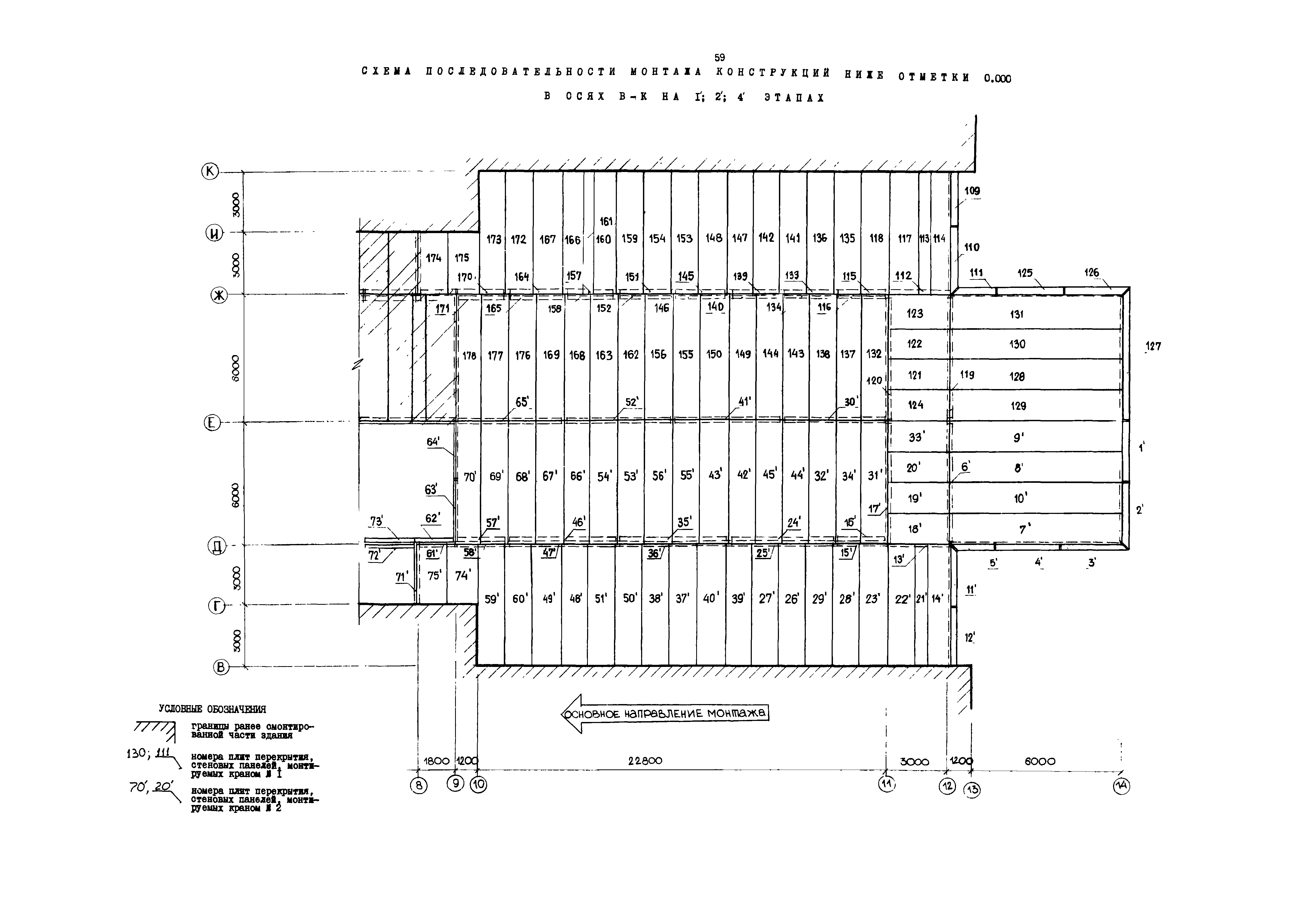
Технологическая карта на монтаж конструкций здания ниже отметки 0,000
Технологическая карта на монтаж конструкций здания выше отметки 0,000
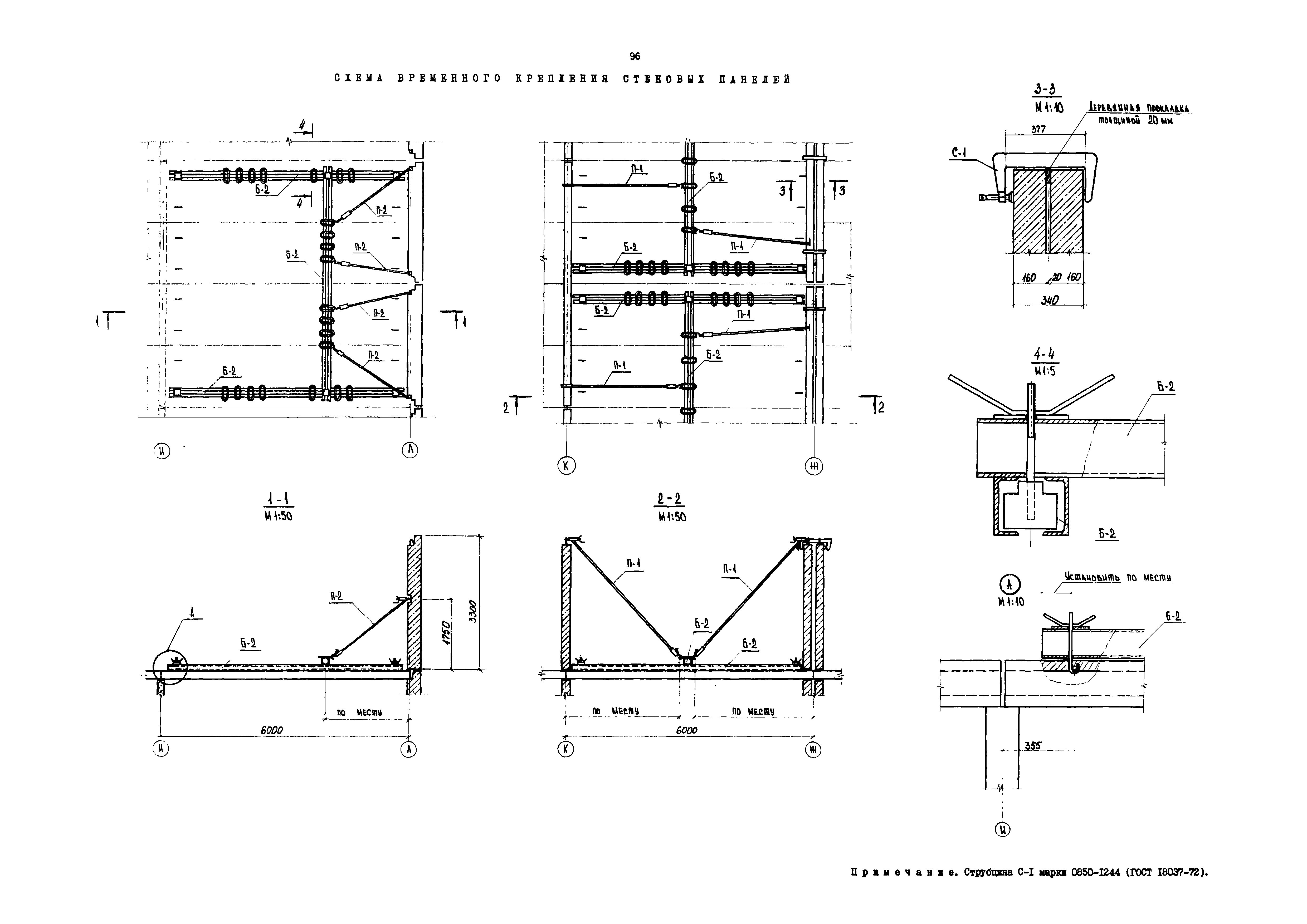
Монтажные балки Б1, Б2
Решения по выполнению геодезических работ
Технологическая карта на устройство полов
Технологическая карта на устройство кровли
УНТД по комплектации конструкциями, изделиями и материалами
Мероприятия по выполнению работ методом сквозного поточного бригадного подряда
Контроль качества при производстве строительно-монтажных работ
Календарный план производства работ
Приложение. Документация по бригадному подряду на строительно-монтажные работы
Разработан: Проектно-технологический институт Минсевзапстроя СССР
ЦНИИЭП торгово-бытовых зданий и торговых комплексов
Утверждён: Минсевзапстрой СССР (USSR Minsevzapstroy )
Расположен в:Техническая документация Строительство Справочные документы Директивные письма, положения, рекомендации и др.
Нормативные ссылки:

© 2013 Ёшкин Кот :-) Карта сайта