Информационная система
«Ёшкин Кот»

Скачать базу одним архивом
Скачать обновления
История создания базы
Карта сайта

Скачать Типовой проект 901-3-234.87 Альбом III. Отстойники и фильтры. Технологическая и санитарная и санитарно-техническая части (из ТП 901-3-233.87)

Дата актуализации: 10.08.2017

Типовой проект 901-3-234.87

Альбом III. Отстойники и фильтры. Технологическая и санитарная и санитарно-техническая части (из ТП 901-3-233.87)

Обозначение: Типовой проект 901-3-234.87
Обозначение англ: 901-3-234.87
Статус:не определен законодательством
Название рус.:Альбом III. Отстойники и фильтры. Технологическая и санитарная и санитарно-техническая части (из ТП 901-3-233.87)
Дата добавления в базу:01.09.2013
Дата актуализации:05.05.2017
Дата введения:13.02.1985
Оглавление:ТП 901-3-233.87 Содержание альбома
ТП 901-3-233.87-ТХ Технологические решения
ТП 901-3-233.87-ТХ-1 Общие данные
ТП 901-3-233.87-ТХ-2 Принципиальная схема обработки воды (вариант с вихревыми смесителями)
ТП 901-3-233.87-ТХ-3 Принципиальная схема обработки воды (вариант с контактными камерами)
ТП 901-3-233.87-ТХ-4 Принципиальная схема обработки воды (вариант с микрофильтрами)
ТП 901-3-233.87-ТХ-5 Общеувязочный план блока. Разрезы 1-1 - 4-4 (вариант с вихревыми смесителями)
ТП 901-3-233.87-ТХ-6 Общеувязочный план блока. Разрезы 1-1 - 4-4 (вариант с контактными камерами)
ТП 901-3-233.87-ТХ-7 Общеувязочный план блока. Разрезы 1-1 - 4-4 (вариант с микрофильтрами)
ТП 901-3-233.87-ТХ-8 Камеры хлопьеобразования, отстойники и фильтры. План на отм. 3.500. 1 секция
ТП 901-3-233.87-ТХ-9 Камеры хлопьеобразования, отстойники и фильтры. План на отм. 3.500. 2 секция
ТП 901-3-233.87-ТХ-10 Камеры хлопьеобразования, отстойники и фильтры. План на отм. 5.800. 1 секция
ТП 901-3-233.87-ТХ-11 Камеры хлопьеобразования, отстойники и фильтры. План на отм. 5.800. 2 секция
ТП 901-3-233.87-ТХ-12 Камеры хлопьеобразования, отстойники и фильтры. Разрезы 5-5; 6-6; 7-7
ТП 901-3-233.87-ТХ-13 Камеры хлопьеобразования. Планы. Разрезы 8-8 - 12-12
ТП 901-3-233.87-ТХ-14 Отстойник. Планы. Разрезы 13-13 - 15-15
ТП 901-3-233.87-ТХ-15 Камеры хлопьеобразования и отстойники. Детали желобов и труб
ТП 901-3-233.87-ТХ-16 Галерея трубопроводов фильтровального зала. План
ТП 901-3-233.87-ТХ-17 Фильтры. Разрезы 16-16 - 18-18
ТП 901-3-233.87-ТХ-18 Фильтры. Разрез 19-19. Детали
ТП 901-3-233.87-ТХ-19 Отстойники и фильтры. Схемы В, В7, В8, К3, К5
ТП 901-3-233.87-ТХ-20 Отбор проб. Планы. Схемы. Деталь
ТП 901-3-233.87-ТХ-21 Отбор проб. Планы. Схемы
ТП 901-3-233.87-ТХ-22 Разводка реагентопроводов. Планы. Схемы
ТП 901-3-233.87-ТХ-23 Разводка реагентопроводов. Планы. Схемы. Детали
ТП 901-3-233.87-ТХ-24 Отстойники и фильтры. Технологический водопровод. Водосток. Планы. Схемы. Разрезы. Детали
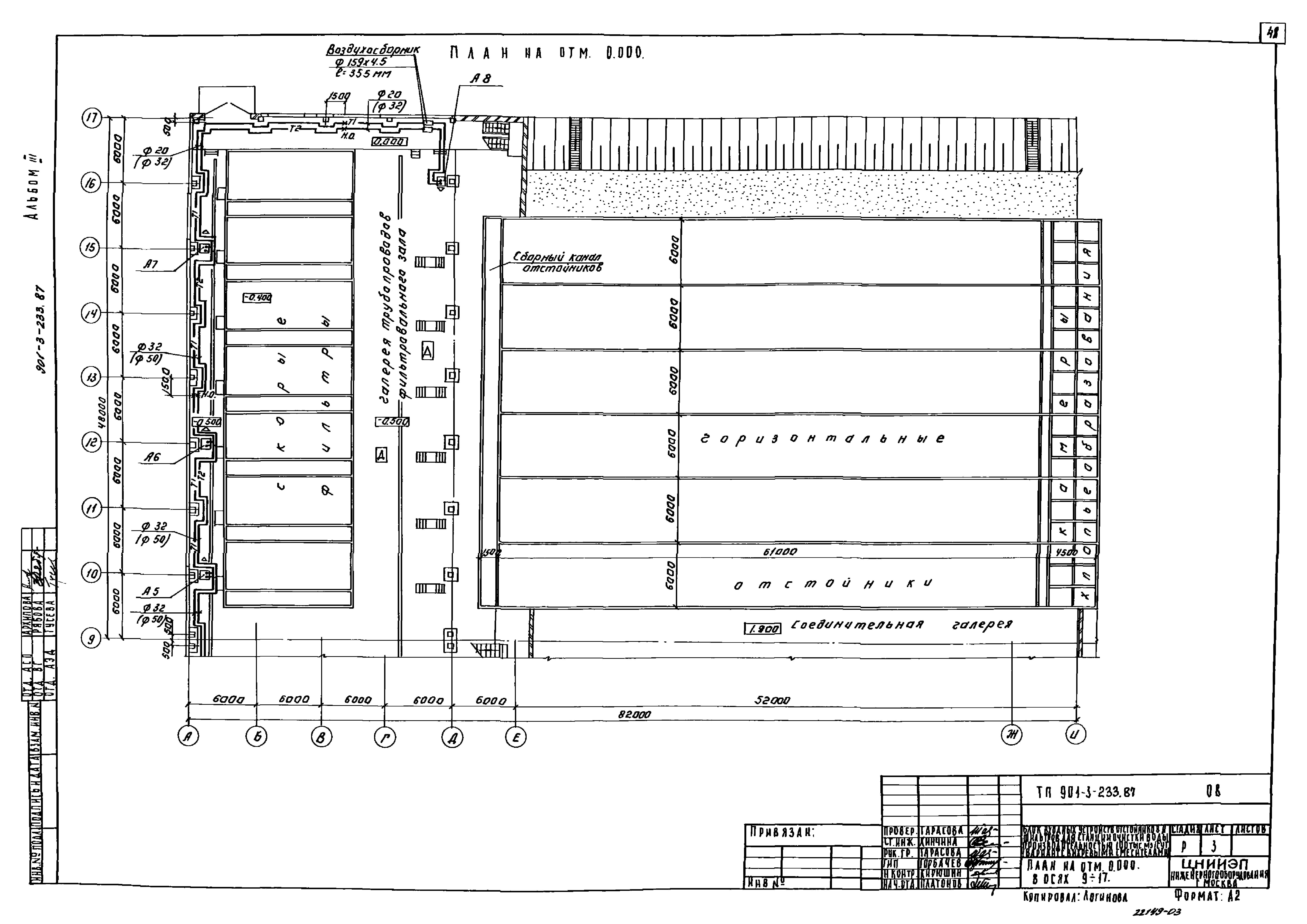
ТП 901-3-233.87-ТХ-25 Входные устройства. Технологический водопровод. Водосток. Планы. Схемы
ТП 901-3-233.87-ТХ-26 Песковое хозяйство в зале фильтров. Планы. Разрезы. Схема
ТП 901-3-233.87-ТХ-27 Варианты дренажа фильтров из щелевых полиэтиленовых труб. План. Разрезы 20-20. Деталь
ТП 901-3-233.87-ТХ-28 Вариант устройства дренажа фильтров из полимер-бетонных и дырчатых железобетонных плит
ТП 901-3-233.87-ТХ-29 Рекомендации по установке тонкослойных модульных блоков в отстойниках
ТП 901-3-233.87-ТХ-30 Рекомендации по выделению 1 очереди строительства. Отстойники и фильтры
ТП 901-3-233.87-ТХ-31 Рекомендации по выделению 1 очереди строительства. Входные устройства
ТП 901-3-233.87-ТХ-32 Рекомендуемое решение наружной песковой площадки. План. Разрезы. Детали
ТП 901-3-233.87-ТХ-33 Регулятор уровня
ТП 901-3-233.87-ТХН Нетиповое оборудование
ТП 901-3-233.87-ТХН-1 Шибер для желобов рассредоточенного сбора воды 450х500. Эскизный чертеж общего вида
ТП 901-3-233.87-ТХН-2 Шибер для желобов сосредоточенного сбора воды 550х600. Эскизный чертеж общего вида
ТП 901-3-233.87-ТХН-3 Коллектор сборно-распределительный. Эскизный чертеж общего вида
ТП 901-3-233.87-ТХН-4 Быстроразъемное соединение труб Ду65 "Шланг-шланг". Эскизный чертеж общего вида
ТП 901-3-233.87-ТХН-5 Быстроразъемное соединение труб Ду65 "Шланг-труба". Эскизный чертеж общего вида
ТП 901-3-233.87-ТХН-6 Перегородка дырчатая для варианта с контактными камерами. Эскизный чертеж общего вида
ТП 901-3-233.87-ТХН-7 Перегородка дырчатая для варианта с микрофильтрами. Эскизный чертеж общего вида
ТП 901-3-233.87-ТХН-8 Вихревой смеситель 1800. Эскизный чертеж общего вида
ТП 901-3-233.87-ТХН-9 Тройник. Эскизный чертеж общего вида
ТП 901-3-233.87-ТХН-10 Переходник. Эскизный чертеж общего вида
ТП 901-3-233.87-ТХН-11 Воронка. Эскизный чертеж общего вида
ТП 901-3-233.87-ТХН-12 Крестовина. Эскизный чертеж общего вида
ТП 901-3-233.87-ТХН-13 Распределитель дырчатый раствора коагулянта. Эскизный чертеж общего вида
ТП 901-3-233.87-ТХН-14 Распределитель струйный известкого молока. Эскизный чертеж общего вида
ТП 901-3-233.87-ОВ Отопление и вентиляция
ТП 901-3-233.87-ОВ-1 Общие данные
ТП 901-3-233.87-ОВ-2 План на отм. 0.000 в осях 1 -9
ТП 901-3-233.87-ОВ-3 План на отм. 0.000 в осях 9 - 17
ТП 901-3-233.87-ОВ-4 План на отм. 4.930 в осях 1 - 9
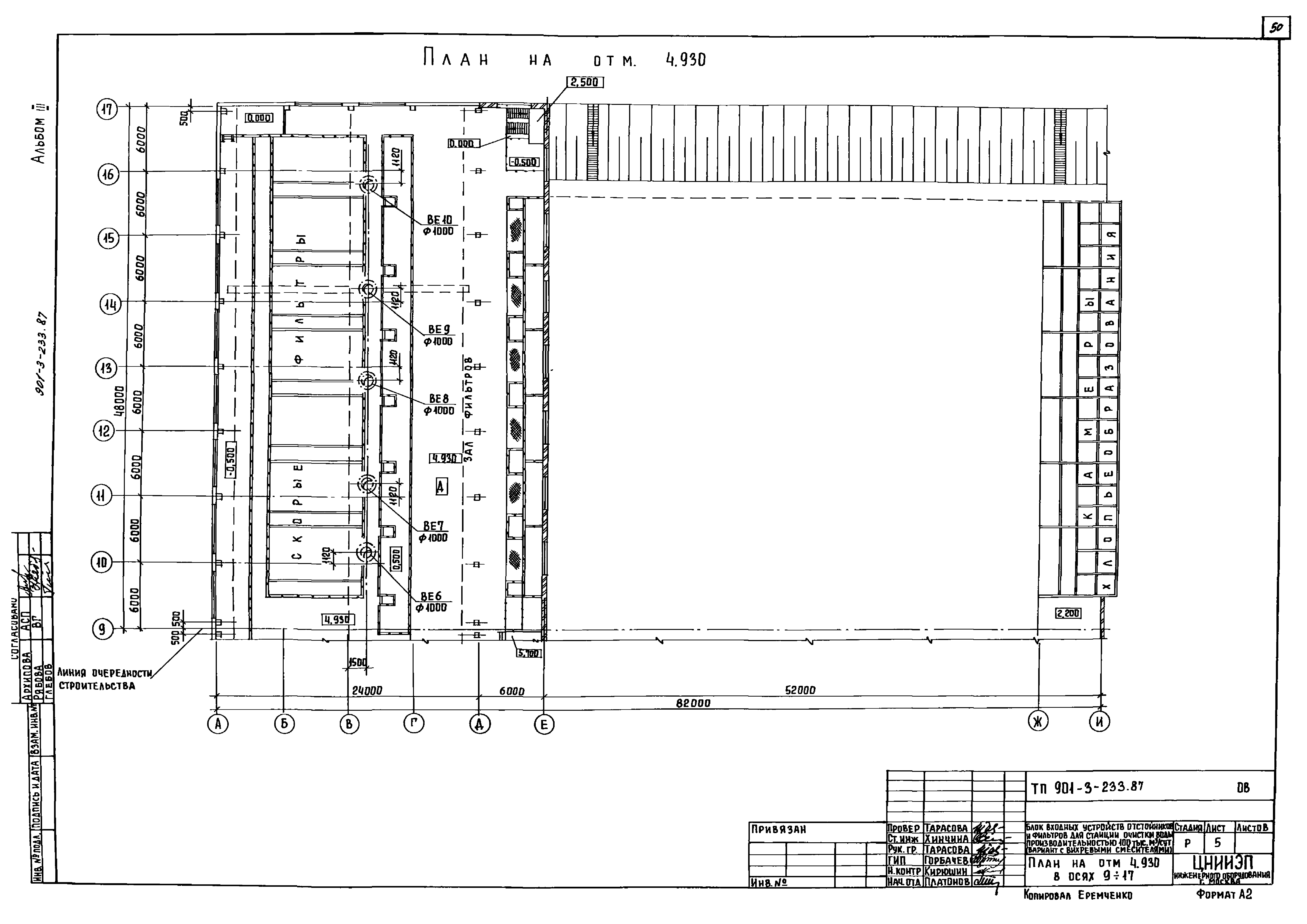
ТП 901-3-233.87-ОВ-5 План на отм. 4.930 в осях 9 - 17
ТП 901-3-233.87-ОВ-6 Узел управления. Схема системы отопления. Схемы вентиляции ВЕ1 - ВЕ5
ТП 901-3-233.87-ОВ-7 Схема системы отопления. Схемы вентиляции ВЕ6 - ВЕ10
ТП 901-3-233.87-ОВН Прилагаемые документы
ТП 901-3-233.87-ОВН-1 Тепловая изоляция
Разработан: ЦНИИЭП инженерного оборудования
Утверждён:13.02.1985 Госгражданстрой (Gosgrazhdanstroy 43)
Расположен в:Техническая документация Строительство Справочные документы Типовые строительные конструкции, изделия и узлы Общероссийский строительный каталог Промышленные предприятия, здания и сооружения Здания и сооружения санитарно-технические Водоснабжение Очистные сооружения Станции очистки воды
Типовой проект 901-3-234.87Типовой проект 901-3-234.87Типовой проект 901-3-234.87Типовой проект 901-3-234.87Типовой проект 901-3-234.87Типовой проект 901-3-234.87Типовой проект 901-3-234.87Типовой проект 901-3-234.87Типовой проект 901-3-234.87Типовой проект 901-3-234.87Типовой проект 901-3-234.87Типовой проект 901-3-234.87Типовой проект 901-3-234.87Типовой проект 901-3-234.87Типовой проект 901-3-234.87Типовой проект 901-3-234.87Типовой проект 901-3-234.87Типовой проект 901-3-234.87Типовой проект 901-3-234.87Типовой проект 901-3-234.87Типовой проект 901-3-234.87Типовой проект 901-3-234.87Типовой проект 901-3-234.87Типовой проект 901-3-234.87Типовой проект 901-3-234.87Типовой проект 901-3-234.87Типовой проект 901-3-234.87Типовой проект 901-3-234.87Типовой проект 901-3-234.87Типовой проект 901-3-234.87Типовой проект 901-3-234.87Типовой проект 901-3-234.87Типовой проект 901-3-234.87Типовой проект 901-3-234.87Типовой проект 901-3-234.87Типовой проект 901-3-234.87Типовой проект 901-3-234.87Типовой проект 901-3-234.87Типовой проект 901-3-234.87Типовой проект 901-3-234.87Типовой проект 901-3-234.87Типовой проект 901-3-234.87Типовой проект 901-3-234.87Типовой проект 901-3-234.87Типовой проект 901-3-234.87Типовой проект 901-3-234.87Типовой проект 901-3-234.87Типовой проект 901-3-234.87Типовой проект 901-3-234.87Типовой проект 901-3-234.87Типовой проект 901-3-234.87Типовой проект 901-3-234.87Типовой проект 901-3-234.87Типовой проект 901-3-234.87Типовой проект 901-3-234.87

© 2013 Ёшкин Кот :-) Карта сайта