Информационная система
«Ёшкин Кот»

Скачать базу одним архивом
Скачать обновления
История создания базы
Карта сайта

Скачать Типовой проект 901-4-81с.84 Альбом IV. Строительные изделия резервуаров емкостью 1500 - 10000 куб. м (из ТП 901-4-82с.84)

Дата актуализации: 10.08.2017

Типовой проект 901-4-81с.84

Альбом IV. Строительные изделия резервуаров емкостью 1500 - 10000 куб. м (из ТП 901-4-82с.84)

Обозначение: Типовой проект 901-4-81с.84
Обозначение англ: 901-4-81с.84
Статус:не определен законодательством
Название рус.:Альбом IV. Строительные изделия резервуаров емкостью 1500 - 10000 куб. м (из ТП 901-4-82с.84)
Дата добавления в базу:01.09.2013
Дата актуализации:05.05.2017
Дата введения:25.07.1984
Оглавление:901-4-82с.84-IV-ТТ Технические требования
901-4-82с.84-IV-1.100 Каркас пространственный
901-4-82с.84-IV-1.101 Сетка
901-4-82с.84-IV-1.001 Сетка
901-4-82с.84-IV-1.002 Сетка
901-4-82с.84-IV-1.003 Сетка
901-4-82с.84-IV-1.004 Сетка
901-4-82с.84-IV-1.005 Сетка
901-4-82с.84-IV-1.006 Сетка
901-4-82с.84-IV-2.100 Панель стеновая. Спецификация
901-4-82с.84-IV-2.100СБ Панель стеновая. Сборочный чертеж
901-4-82с.84-IV-2.101 Сетка
901-4-82с.84-IV-2.102 Изделие закладное
901-4-82с.84-IV-2.103 Изделие закладное
901-4-82с.84-IV-2.104 Изделие закладное
901-4-82с.84-IV-2.100ВМС Панель стеновая. Ведомость расхода стали
901-4-82с.84-IV-2.200 Панель стеновая угловая
901-4-82с.84-IV-2.210 Каркас пространственный
901-4-82с.84-IV-2.211 Петля строповочная
901-4-82с.84-IV-2.220 Каркас пространственный
901-4-82с.84-IV-2.221 Сетка
901-4-82с.84-IV-2.300 Блок угловой
901-4-82с.84-IV-2.300СБ Блок угловой. Сборочный чертеж
901-4-82с.84-IV-2.310 Каркас пространственный
901-4-82с.84-IV-2.310СБ Каркас пространственный. Сборочный чертеж
901-4-82с.84-IV-2.311 Каркас
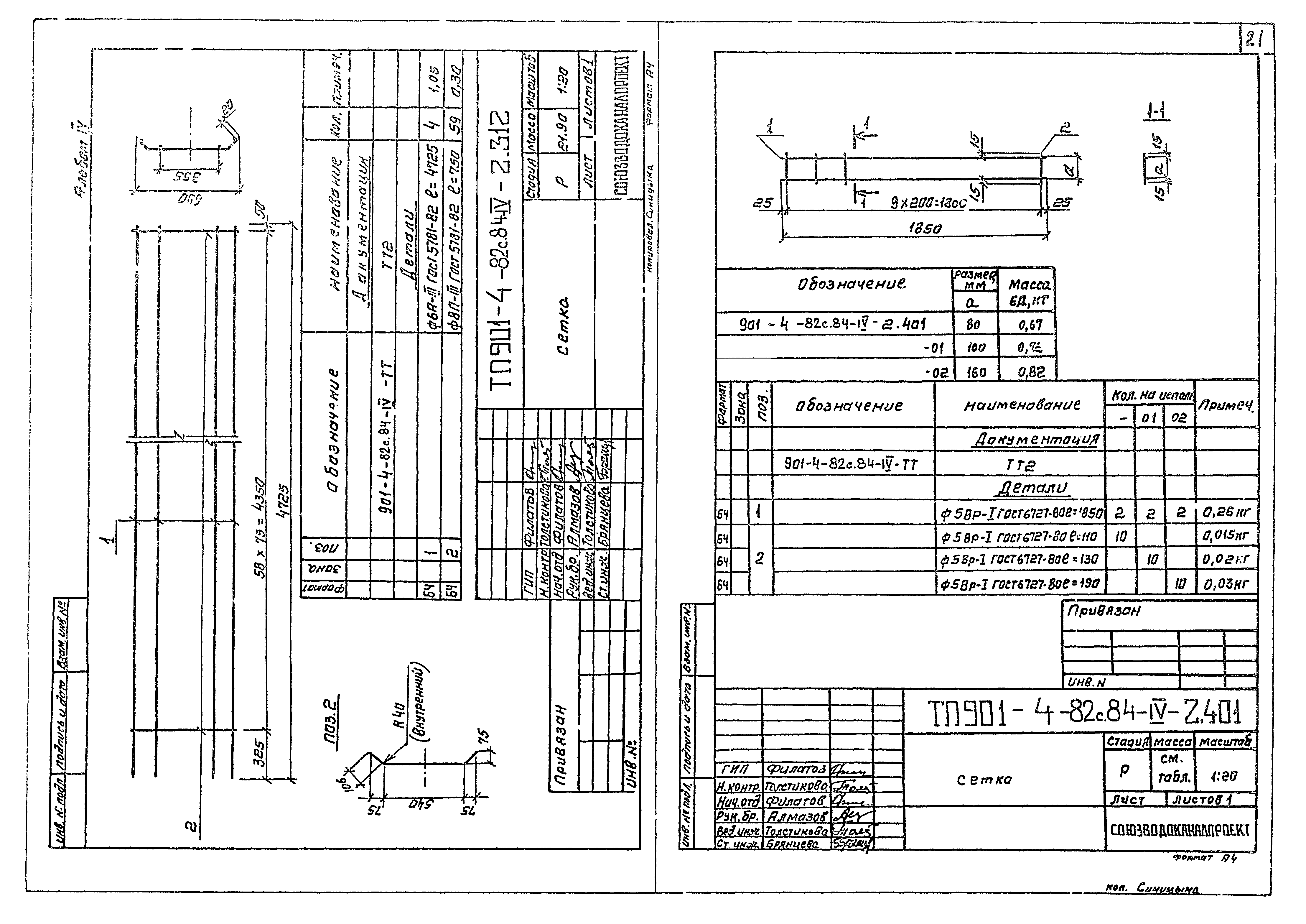
901-4-82с.84-IV-2.312 Сетка
901-4-82с.84-IV-2.313 Изделие закладное
901-4-82с.84-IV-2.400 Панель приемной камеры
901-4-82с.84-IV-2.401 Сетка
901-4-82с.84-IV-3.100 Плита покрытия
901-4-82с.84-IV-3.100СБ Плита покрытия. Сборочный чертеж
901-4-82с.84-IV-3.101 Изделие закладное
901-4-82с.84-IV-3.102 Изделие закладное
901-4-82с.84-IV-4.000 Сетка
901-4-82с.84-IV-5.000 Лестница съемная
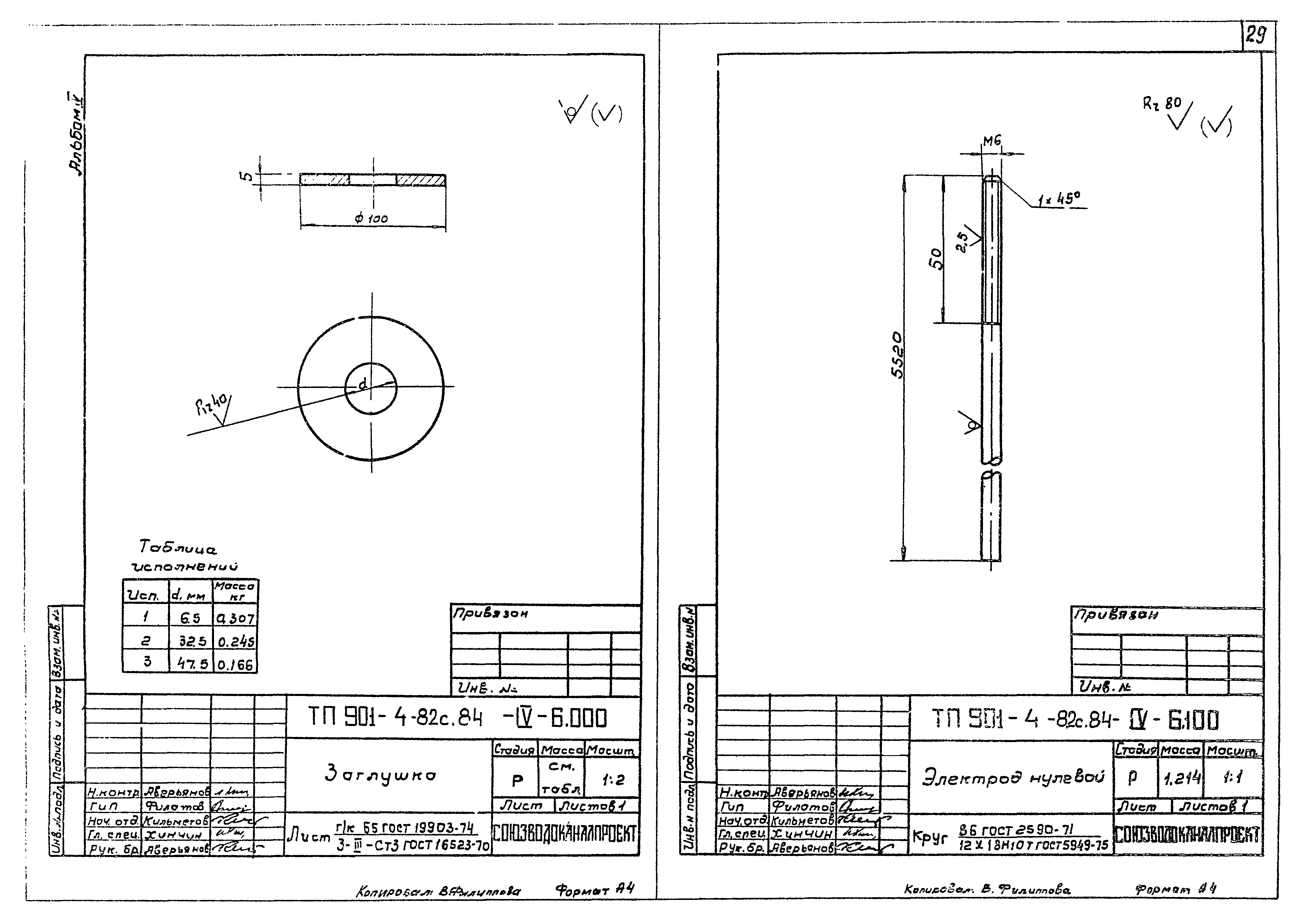
901-4-82с.84-IV-6.000 Заглушка
901-4-82с.84-IV-6.100 Электрод нулевой
901-4-82с.84-IV-6.200 Бобышка
901-4-82с.84-IV-6.300 Фланец
901-4-82с.84-IV-7.000 Деталь отводящего трубопровода
901-4-82с.84-IV-7.100 Деталь подводящего трубопровода
901-4-82с.84-IV-7.200 Деталь переливного трубопровода
901-4-82с.84-IV-7.300 Деталь сливного трубопровода
901-4-82с.84-IV-8.000 Изделие закладное
Разработан: Союзводоканалпроект
ЦНИИпромзданий
НИИЖБ
Утверждён:30.06.1982 Госстрой СССР (Государственный комитет Совета Министров СССР по делам строительства) (USSR Gosstroy 53)
Расположен в:Техническая документация Строительство Справочные документы Типовые строительные конструкции, изделия и узлы Общероссийский строительный каталог Промышленные предприятия, здания и сооружения Здания и сооружения санитарно-технические Водоснабжение Резервуары для воды
Типовой проект 901-4-81с.84Типовой проект 901-4-81с.84Типовой проект 901-4-81с.84Типовой проект 901-4-81с.84Типовой проект 901-4-81с.84Типовой проект 901-4-81с.84Типовой проект 901-4-81с.84Типовой проект 901-4-81с.84Типовой проект 901-4-81с.84Типовой проект 901-4-81с.84Типовой проект 901-4-81с.84Типовой проект 901-4-81с.84Типовой проект 901-4-81с.84Типовой проект 901-4-81с.84Типовой проект 901-4-81с.84Типовой проект 901-4-81с.84Типовой проект 901-4-81с.84Типовой проект 901-4-81с.84Типовой проект 901-4-81с.84Типовой проект 901-4-81с.84Типовой проект 901-4-81с.84Типовой проект 901-4-81с.84Типовой проект 901-4-81с.84Типовой проект 901-4-81с.84Типовой проект 901-4-81с.84Типовой проект 901-4-81с.84Типовой проект 901-4-81с.84Типовой проект 901-4-81с.84Типовой проект 901-4-81с.84Типовой проект 901-4-81с.84Типовой проект 901-4-81с.84Типовой проект 901-4-81с.84Типовой проект 901-4-81с.84Типовой проект 901-4-81с.84

© 2013 Ёшкин Кот :-) Карта сайта