Скачать Типовой проект 320-57 Альбом 1. Придомовые территории - дворы. Внешнее благоустройство, озеленение. Размещение малых форм архитектуры. Типовые площадкиДата актуализации: 10.08.2017 Типовой проект 320-57
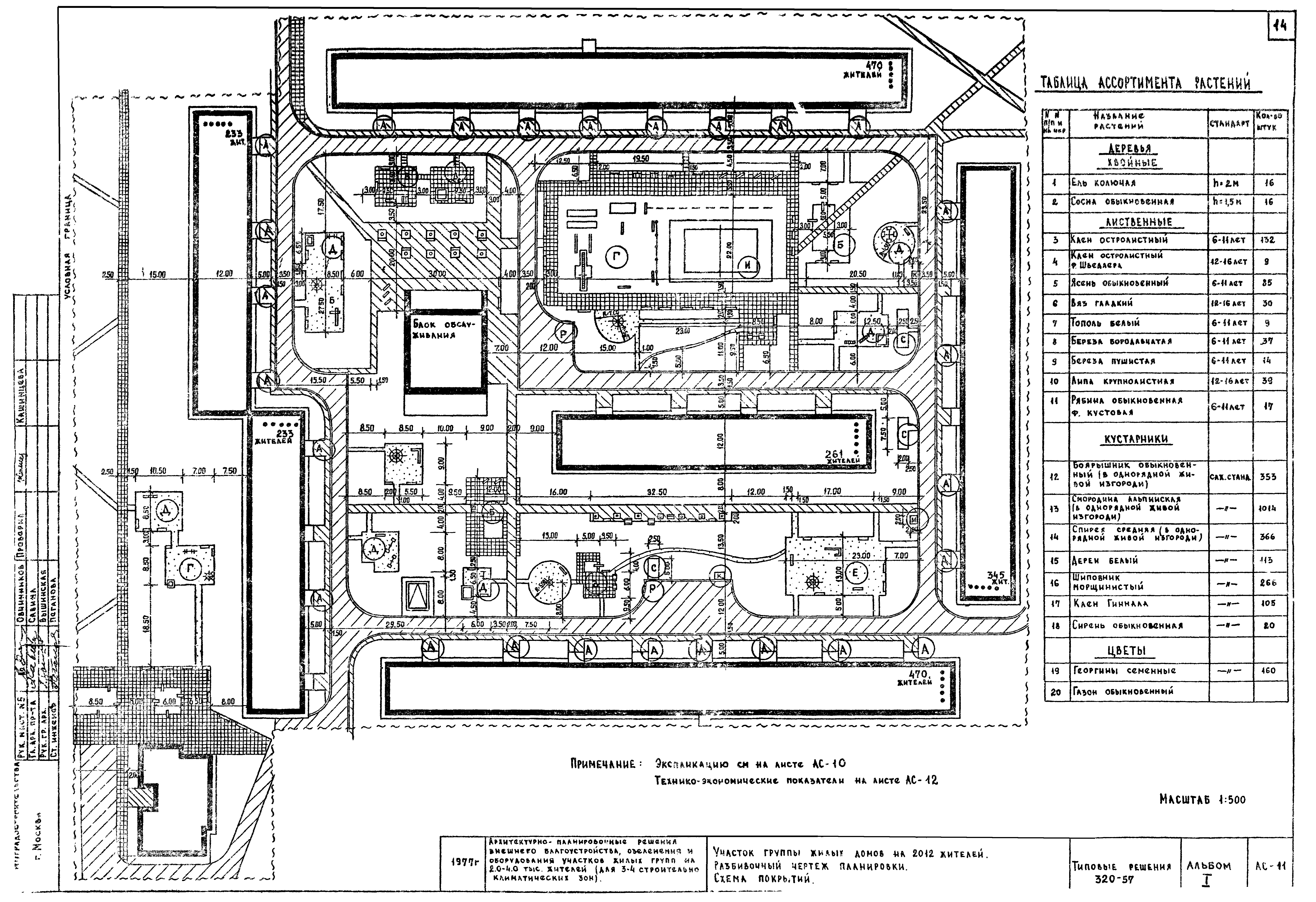
Альбом 1. Придомовые территории - дворы. Внешнее благоустройство, озеленение. Размещение малых форм архитектуры. Типовые площадкиОбозначение: | Типовой проект 320-57 | Обозначение англ: | 320-57 | Статус: | не определен законодательством | Название рус.: | Альбом 1. Придомовые территории - дворы. Внешнее благоустройство, озеленение. Размещение малых форм архитектуры. Типовые площадки | Дата добавления в базу: | 01.09.2013 | Дата актуализации: | 05.05.2017 | Дата введения: | 31.01.1978 | Оглавление: | Содержание альбома Пояснительная записка. Условные обозначения Часть 1. Придомовые территории-дворы. Внешнее благоустройство. Озеленение. Размещение малых форм архитектуры Внешнее благоустройство и озеленение участка группы жилых домов на 1200 жителей. Генплан. Размещение малых форм архитектуры Участок группы жилых домов на 1200 жителей. Разбивочный чертеж планировки. Схема покрытий Участок группы жилых домов на 1200 жителей. Озеленение Внешнее благоустройство и озеленение участка группы жилых домов на 1650 жителей. Генплан. Размещение малых форм архитектуры Участок группы жилых домов на 1650 жителей. Разбивочный чертеж планировки. Схема покрытий Участок группы жилых домов на 1650 жителей. Озеленение Внешнее благоустройство и озеленение участка группы жилых домов на 1940 жителей. Генплан. Размещение малых форм архитектуры Участок группы жилых домов на 1940 жителей. Разбивочный чертеж планировки. Схема покрытий Участок группы жилых домов на 1940 жителей. Озеленение Внешнее благоустройство и озеленение участка группы жилых домов на 2012 жителей. Генплан. Размещение малых форм архитектуры Участок группы жилых домов на 2012 жителей. Разбивочный чертеж планировки. Схема покрытий Участок группы жилых домов на 2012 жителей. Озеленение Внешнее благоустройство и озеленение участка группы жилых домов на 2360 жителей. Генплан. Размещение малых форм архитектуры Участок группы жилых домов на 2360 жителей. Разбивочный чертеж планировки. Схема покрытий Участок группы жилых домов на 2360 жителей. Озеленение Внешнее благоустройство и озеленение участка группы жилых домов на 2500 жителей. Генплан. Размещение малых форм архитектуры Участок группы жилых домов на 2500 жителей. Разбивочный чертеж планировки. Схема покрытий Участок группы жилых домов на 2500 жителей. Озеленение Внешнее благоустройство и озеленение участка группы жилых домов на 3750 жителей. Генплан. Размещение малых форм архитектуры Участок группы жилых домов на 3750 жителей. Разбивочный чертеж планировки. Схема покрытий Участок группы жилых домов на 3750 жителей. Озеленение Участок группы жилых домов на 3750 жителей. Сводный лист таблиц Внешнее благоустройство и озеленение участка группы жилых домов на 1800 жителей. Генплан. Размещение малых форм архитектуры Участок группы жилых домов на 1800 жителей. Разбивочный чертеж планировки. Схема покрытий Участок группы жилых домов на 1800 жителей. Озеленение Внешнее благоустройство и озеленение участка группы жилых домов на 2300 жителей. Генплан. Размещение малых форм архитектуры Участок группы жилых домов на 2300 жителей. Разбивочный чертеж планировки. Схема покрытий Участок группы жилых домов на 2300 жителей. Озеленение Часть 2. Типовые площадки Номенклатура придомовых полос-палисадников Палисадники. Тип 5-1. Генплан. Озеленение. Оборудование Палисадники. Тип 5-2. Генплан. Оборудование. Озеленение Палисадники. Тип 5-3. Тип 5-4. Генплан. Оборудование Палисадники. Тип 5-3. Тип 5-4. Озеленение Палисадники. Тип 5-5. Тип 5-6. Генплан. Оборудование Палисадники. Тип 5-5. Тип 5-6. Озеленение Палисадники. Тип 8-7. Генплан. Оборудование Палисадники. Тип 8-8. Генплан. Оборудование Палисадники. Тип 8-7. Тип 8-8. Озеленение Палисадники. Тип 8-9. Генплан. Оборудование. Озеленение Палисадники. Тип 10-10. Генплан. Оборудование Палисадники. Тип 10-11. Генплан. Оборудование Палисадники. Тип 10-10. Тип 10-11. Озеленение Палисадники. Тип 10-12. Генплан. Оборудование. Озеленение Номенклатура типовых площадок для мусоросборников Площадка для мусоросборников. Тип 1. Генплан. Оборудование. Благоустройство. Озеленение Площадка для мусоросборников. Тип 2. Генплан. Оборудование. Благоустройство. Озеленение Площадка для мусоросборников. Тип 3. Генплан. Оборудование. Благоустройство. Озеленение Площадка для мусоросборников. Тип 4. Генплан. Оборудование. Благоустройство. Озеленение Площадка для мусоросборников. Тип 5. Генплан. Оборудование. Благоустройство. Озеленение Площадка для мусоросборников. Тип 6. Генплан. Оборудование. Благоустройство. Озеленение Номенклатура типовых площадок отдыха Детская игровая площадка. Тип 1. Генплан. Озеленение. Оборудование Детская игровая площадка. Тип 2. Генплан. Озеленение. Оборудование Детская игровая площадка. Тип 3. Генплан. Озеленение. Оборудование Детская игровая площадка. Тип 4. Генплан. Озеленение. Оборудование Детская игровая площадка. Тип 5. Генплан. Озеленение. Оборудование Детская игровая площадка. Тип 6. Генплан. Озеленение. Оборудование Детская игровая площадка. Тип 7. Генплан. Озеленение. Оборудование Детская игровая площадка. Тип 8. Генплан. Озеленение. Оборудование Детская игровая площадка. Тип 9. Генплан. Озеленение. Оборудование | Разработан: | ЦНИИП градостроительства
| Утверждён: | 31.01.1978 ЦНИИП градостроительства Госгражданстроя (37)
| Расположен в: |
|
                                                                     
|