Информационная система
«Ёшкин Кот»

Скачать базу одним архивом
Скачать обновления
История создания базы
Карта сайта

Скачать Типовой проект 320-40 Альбом I. Архитектурно-строительная часть

Дата актуализации: 10.08.2017

Типовой проект 320-40

Альбом I. Архитектурно-строительная часть

Обозначение: Типовой проект 320-40
Обозначение англ: 320-40
Статус:не определен законодательством
Название рус.:Альбом I. Архитектурно-строительная часть
Дата добавления в базу:01.09.2013
Дата актуализации:05.05.2017
Дата введения:25.11.1971
Оглавление:Содержание
Пояснительная записка
Фонтан. Тип I. Генплан
Фонтан. Тип I. Фасад. План
Фонтан. Тип I. Фасад. План. Расход материалов
Фонтан. Тип I. Разрез 1-1. Узлы 1 - 4
Фонтан. Тип I. Подпиточная камера. Марка М-1. Спецификации
Фонтан. Тип I. Марки М-2, М-3. Спецификация
Фонтан. Тип I. Марки М-4, М-5. Спецификация
Фонтан. Тип I. Водоснабжение. Ситуационный план. Состав проекта. Пояснительная записка
Фонтан. Тип I. Водоснабжение. План. Разрезы 1-1, 2-2
Фонтан. Тип I. Водоснабжение. Всасывающая камера. Переливная камера. Камера подпитки, выпуска
Фонтан. Тип I. Водоснабжение. Технологическая схема водоснабжения
Фонтан. Тип I. Насосная станция. План покрытия. Разрез 1-1. Спецификация
Фонтан. Тип I. Насосная станция. План фундаментов. Разрезы 1-1, 2-2, 3-3
Фонтан. Тип I. Водоснабжение. Насосная станция. План. Разрезы 1-1, 2-2 с оборудованием. Спецификация
Фонтаны. Типы I, II, III. Насосная станция. Пояснительная записка. Силовое электрооборудование и электроосвещение
Фонтаны. Типы I, II, III. Насосная станция. Силовое оборудование. Принципиальная и монтажная схема управления дренажных насосов
Фонтаны. Типы I, II, III. Насосная станция. Силовое оборудование. Установка датчиков в дренажном приямке и принципиальная схема ЭРСУ-2
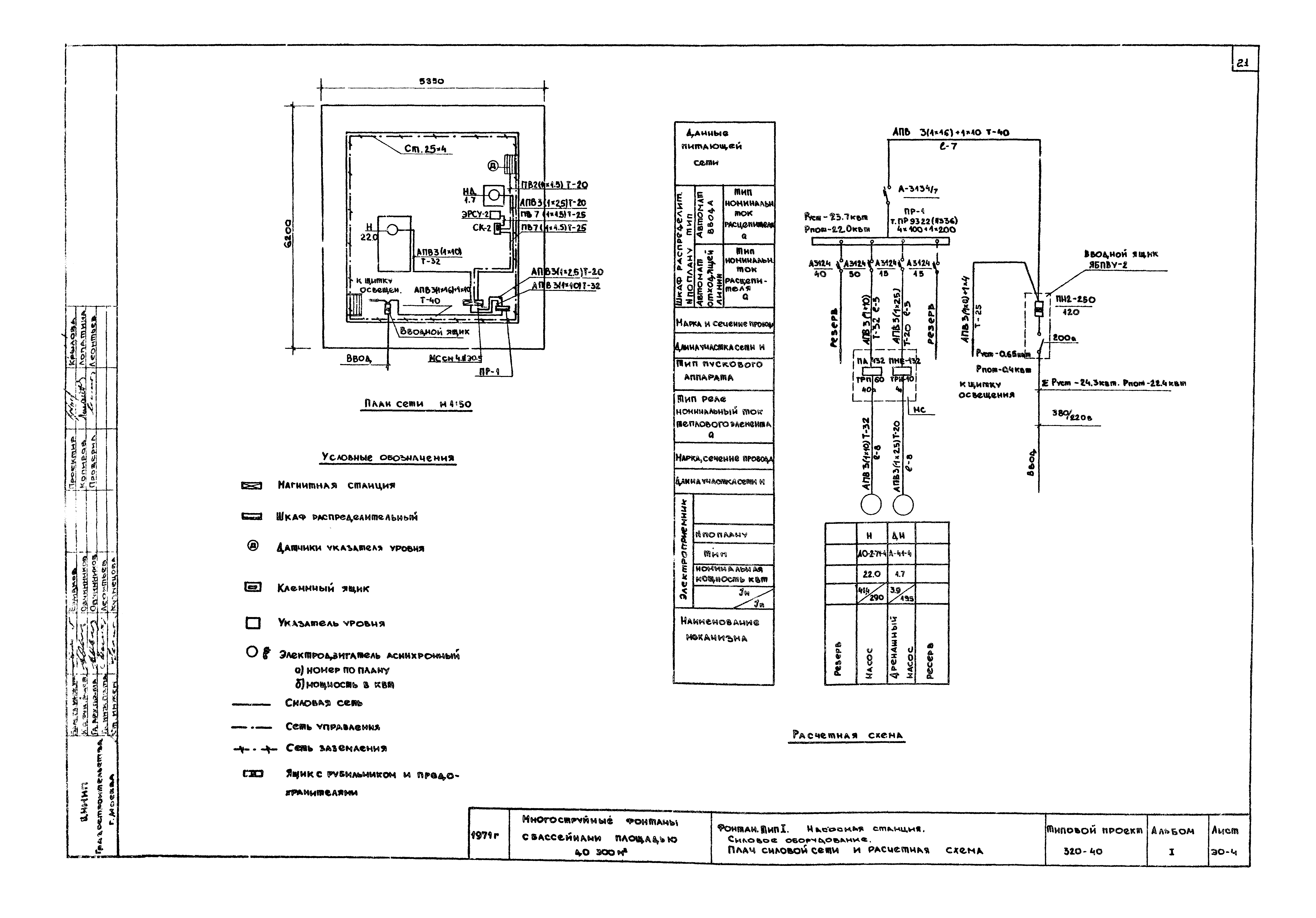
Фонтан. Тип I. Насосная станция. Силовое оборудование. План силовой сети и расчетная схема
Фонтан. Тип I. Насосная станция. Силовое оборудование. Спецификация и вид спереди магнитной станции
Фонтан. Тип I. Насосная станция. Электроосвещение
Фонтан. Тип II. Генплан
Фонтан. Тип II. План. Фасад "А"
Фонтан. Тип II. План. Фасад
Фонтан. Тип II. Разрезы 1-1, 2-2. Расход материалов
Фонтан. Тип II. Узлы 1, 2. Разрезы 1-1, 2-2, 3-3
Фонтан. Тип II. Подпиточная камера. Марка М-1. Спецификация
Фонтан. Тип II. Марки М-2, М-3. Спецификация
Фонтан. Тип II. Марки М-4, М-5. Спецификация
Фонтан. Тип II. Водоснабжение. Ситуационный план. Состав проекта. Пояснительная записка
Фонтан. Тип II. Водоснабжение. План. Разрезы 1-1, 2-2
Фонтан. Тип II. Водоснабжение. Всасывающая камера. Переливная камера, выпуск. Подпиточная камера, прочистка
Фонтан. Тип II. Водоснабжение. Технологическая схема водоснабжения фонтана. Спецификация
Фонтан. Тип II. Водоснабжение. Продольный профиль трубопроводов. Коллектор группы струй малых фонтанов
Фонтан. Тип II. Водоснабжение. Насадки dc = 15 мм, dc = 8 мм. Коллектор групповой насадки dc = 15 мм
Фонтан. Тип II. Насосная станция. План покрытия насосной станции. Разрезы 1-1, 2-2
Фонтан. Тип II. Насосная станция. План фундаментов. Разрезы
Фонтан. Тип II. Насосная станция. Фундаменты под насосы
Фонтан. Тип II. Водоснабжение. Насосная станция. Разрезы 1-1, 2-2 с оборудованием
Фонтан. Тип II. Насосная станция. Силовое оборудование. План силовой сети и расчетная схема
Фонтан. Тип II. Насосная станция. Силовое оборудование. Спецификация и вид спереди магнитной станции
Фонтаны. Типы II, III. Насосная станция. Электроосвещение
Фонтан. Тип III. Генплан
Фонтан. Тип III. Фасад. План
Фонтан. Тип III. Разрез 1-1. Расход материалов
Фонтан. Тип III. Фрагмент плана. Сечение 4-4; 5-5
Фонтан. Тип III. Узлы 1, 2, 3, 4
Фонтан. Тип III. Профили 1-1, 2-2, 3-3
Фонтан. Тип III. Фрагменты фасада. Фрагменты плана
Фонтан. Тип III. Марки М-1, М-2. Спецификация
Фонтан. Тип III. Марки М-3, М-4. Спецификация
Фонтан. Тип III. Марки М-5, М-6. Спецификация
Фонтан. Тип III. Марки М-7, М-8, М-9. Спецификация
Фонтан. Тип III. Водоснабжение. Ситуационный план. Состав проекта. Пояснительная записка
Фонтан. Тип III. Водоснабжение. Технологическая схема водоснабжения фонтана. Разрез. Спецификация
Фонтан. Тип III. Водоснабжение. План. Разрез центральной группы струй. Деталь периферийной группы насадок
Фонтан. Тип III. Водоснабжение. План. Разрез фонтана. Коллектор периферийной группы насадок. Схема установки поплавкового клапана
Фонтан. Тип III. Водоснабжение. Насадки dc = 32 мм и dc = 8 мм. Коллектор центральной группы насадок
Фонтан. Тип III. Насосная станция. План фундаментов. План покрытия. Разрезы
Фонтан. Тип III. Насосная станция. Фундаменты под насосы
Фонтан. Тип III. Насосная станция. Лестница МЛ-1. Спецификация. Расход материалов
Фонтан. Тип III. Водоснабжение. Насосная станция. План. Разрезы I-I, II-II с оборудованием
Фонтан. Тип III. Насосная станция. Силовое оборудование. План силовой сети и расчетная схема
Фонтан. Тип III. Насосная станция. Силовое оборудование. Спецификация и вид спереди магнитной станции
Разработан: ЦНИИП градостроительства
Утверждён:25.11.1971 ЦНИИП градостроительства Госгражданстроя (407)
Расположен в:Техническая документация Строительство Справочные документы Типовые строительные конструкции, изделия и узлы Общероссийский строительный каталог Малые формы архитектуры и элементы благоустройства Малые архитектурные формы Фонтаны, бассейны, питьевые фонтанчики
Типовой проект 320-40Типовой проект 320-40Типовой проект 320-40Типовой проект 320-40Типовой проект 320-40Типовой проект 320-40Типовой проект 320-40Типовой проект 320-40Типовой проект 320-40Типовой проект 320-40Типовой проект 320-40Типовой проект 320-40Типовой проект 320-40Типовой проект 320-40Типовой проект 320-40Типовой проект 320-40Типовой проект 320-40Типовой проект 320-40Типовой проект 320-40Типовой проект 320-40Типовой проект 320-40Типовой проект 320-40Типовой проект 320-40Типовой проект 320-40Типовой проект 320-40Типовой проект 320-40Типовой проект 320-40Типовой проект 320-40Типовой проект 320-40Типовой проект 320-40Типовой проект 320-40Типовой проект 320-40Типовой проект 320-40Типовой проект 320-40Типовой проект 320-40Типовой проект 320-40Типовой проект 320-40Типовой проект 320-40Типовой проект 320-40Типовой проект 320-40Типовой проект 320-40Типовой проект 320-40Типовой проект 320-40Типовой проект 320-40Типовой проект 320-40Типовой проект 320-40Типовой проект 320-40Типовой проект 320-40Типовой проект 320-40Типовой проект 320-40Типовой проект 320-40Типовой проект 320-40Типовой проект 320-40Типовой проект 320-40Типовой проект 320-40Типовой проект 320-40Типовой проект 320-40Типовой проект 320-40Типовой проект 320-40Типовой проект 320-40Типовой проект 320-40Типовой проект 320-40Типовой проект 320-40Типовой проект 320-40Типовой проект 320-40Типовой проект 320-40Типовой проект 320-40Типовой проект 320-40

© 2013 Ёшкин Кот :-) Карта сайта