Скачать Типовой проект 320-35 Альбом II. Часть 1. Придомовые территории - дворы, благоустройство, озеленение, оборудование. Рабочие чертежиДата актуализации: 10.08.2017 Типовой проект 320-35
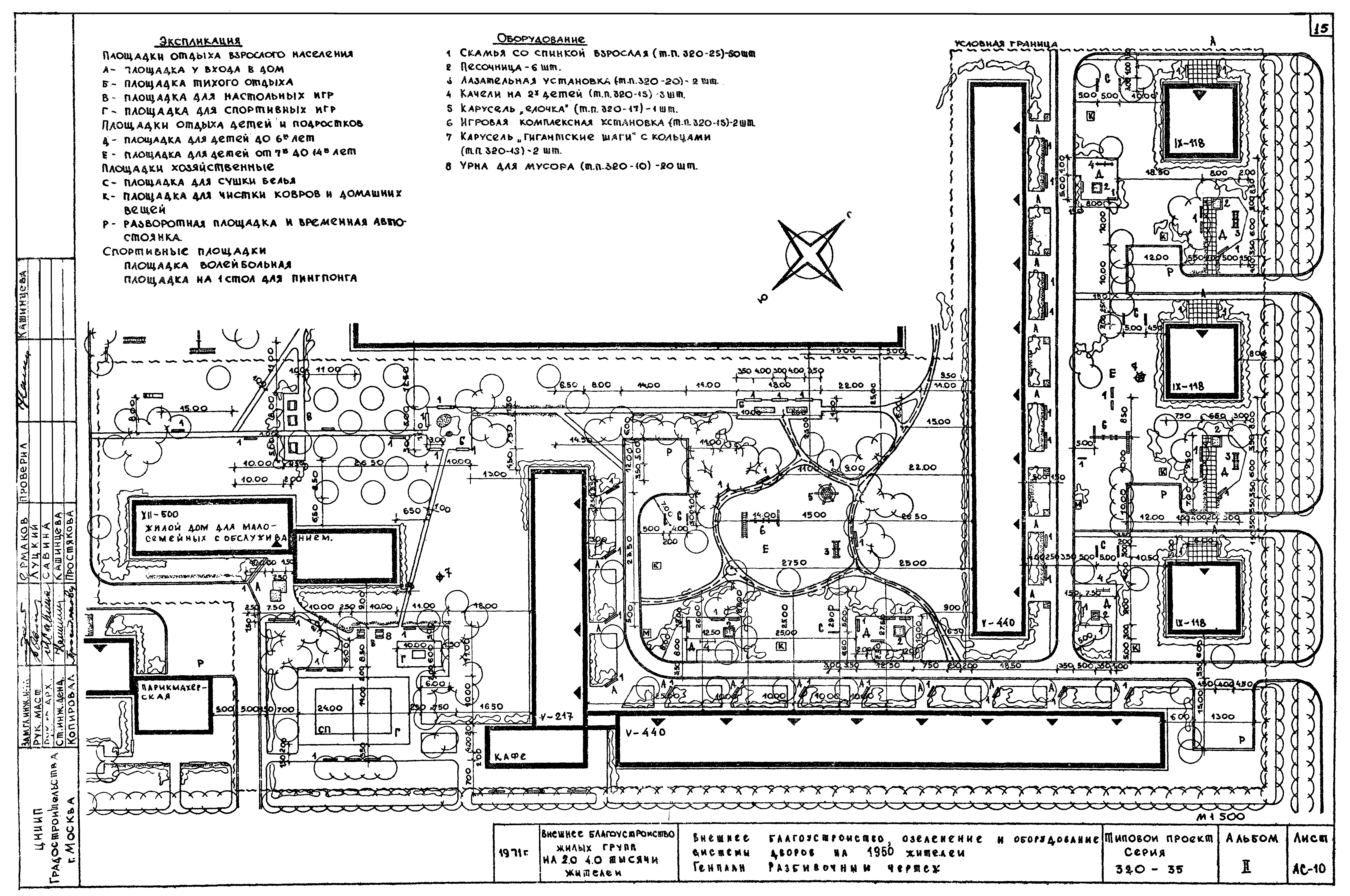
Альбом II. Часть 1. Придомовые территории - дворы, благоустройство, озеленение, оборудование. Рабочие чертежиОбозначение: | Типовой проект 320-35 | Обозначение англ: | 320-35 | Статус: | не определен законодательством | Название рус.: | Альбом II. Часть 1. Придомовые территории - дворы, благоустройство, озеленение, оборудование. Рабочие чертежи | Дата добавления в базу: | 01.09.2013 | Дата актуализации: | 05.05.2017 | Дата введения: | 08.12.1970 | Оглавление: | Содержание альбома Пояснительная записка. Условные обозначения Оборудование и малые формы для площадок отдыха населения Внешнее благоустройство и озеленение участка группы жилых домов на 2.0 тысячи жителей. Генплан Внешнее благоустройство и озеленение участка группы жилых домов на 2.0 тысячи жителей. Дендрологический чертеж Внешнее благоустройство и озеленение участка группы жилых домов на 2.0 тысячи жителей. Сводный лист таблиц Внешнее благоустройство, озеленение и оборудование двора на 600 жителей. Генплан. Разбивочный чертеж Внешнее благоустройство, озеленение и оборудование двора на 600 жителей. Посадочный чертеж. Схема покрытий Внешнее благоустройство, озеленение и оборудование двора на 970 жителей. Генплан. Разбивочный чертеж Внешнее благоустройство, озеленение и оборудование двора на 970 жителей. Посадочный чертеж. Схема покрытий Внешнее благоустройство и озеленение участка группы жилых домов на 2.5 тысячи жителей. Генплан Внешнее благоустройство и озеленение участка группы жилых домов на 2.5 тысячи жителей. Дендрологический чертеж Внешнее благоустройство, озеленение и оборудование дворов на 1950 жителей. Генплан. Разбивочный чертеж Внешнее благоустройство, озеленение и оборудование дворов на 1950 жителей. Посадочный чертеж. Схема покрытий Внешнее благоустройство и озеленение участка группы жилых домов на 3,0 тысячи жителей. Генплан Внешнее благоустройство и озеленение участка группы жилых домов на 3,0 тысячи жителей. Дендрологический чертеж Внешнее благоустройство, озеленение и оборудование дворов на 1050 жителей. Генплан. Разбивочный чертеж Внешнее благоустройство, озеленение и оборудование дворов на 1050 жителей. Посадочный чертеж. Схема покрытий Внешнее благоустройство, озеленение и оборудование дворов на 1900 жителей. Генплан. Разбивочный чертеж Внешнее благоустройство, озеленение и оборудование дворов на 1900 жителей. Посадочный чертеж. Схема покрытий Внешнее благоустройство, озеленение и оборудование системы дворов группы жилых домов на 3,0 тысячи жителей. Сводный лист таблиц Внешнее благоустройство и озеленение участка группы жилых домов на 3,5 тысячи жителей. Генплан Внешнее благоустройство и озеленение участка группы жилых домов на 3,5 тысячи жителей. Дендрологический чертеж Внешнее благоустройство, озеленение и оборудование дворов на 2560 жителей. Генплан. Разбивочный чертеж Внешнее благоустройство, озеленение и оборудование дворов на 2560 жителей. Посадочный чертеж. Схема покрытий Внешнее благоустройство, озеленение и оборудование системы дворов группы жилых домов на 3,5 тысячи жителей. Сводный лист таблиц Внешнее благоустройство и озеленение участка группы жилых домов на 4,0 тысячи жителей. Генплан Внешнее благоустройство и озеленение участка группы жилых домов на 4,0 тысячи жителей. Дендрологический чертеж Внешнее благоустройство и озеленение участка группы жилых домов на 4,0 тысячи жителей. Сводный лист таблиц Внешнее благоустройство, озеленение и оборудование двора на 640 жителей. Генплан. Разбивочный чертеж Внешнее благоустройство, озеленение и оборудование двора на 640 жителей. Посадочный чертеж. Схема покрытий Внешнее благоустройство, озеленение и оборудование дворов на 870 жителей. Генплан. Разбивочный чертеж Внешнее благоустройство, озеленение и оборудование дворов на 870 жителей. Посадочный чертеж. Схема покрытий Внешнее благоустройство, озеленение и оборудование двора на 1430 жителей. Генплан. Разбивочный чертеж Внешнее благоустройство, озеленение и оборудование двора на 1430 жителей. Посадочный чертеж. Схема покрытий Внешнее благоустройство, озеленение и оборудование дворов на 1200 жителей. Генплан. Разбивочный чертеж Внешнее благоустройство, озеленение и оборудование дворов на 1200 жителей. Посадочный чертеж. Схема покрытий | Разработан: | ЦНИИП градостроительства
| Утверждён: | 08.12.1970 ЦНИИП градостроительства Госгражданстроя (346)
| Расположен в: |
|
                                       
|