Информационная система
«Ёшкин Кот»

Скачать базу одним архивом
Скачать обновления
История создания базы
Карта сайта

Скачать Типовой проект 320-25 Альбом I. Архитектурно-строительная часть

Дата актуализации: 10.08.2017

Типовой проект 320-25

Альбом I. Архитектурно-строительная часть

Обозначение: Типовой проект 320-25
Обозначение англ: 320-25
Статус:не определен законодательством
Название рус.:Альбом I. Архитектурно-строительная часть
Дата добавления в базу:01.09.2013
Дата актуализации:05.05.2017
Дата введения:19.06.1967
Оглавление:Пояснительная записка
Скамьи. Тип С. Номенклатура
Скамья. Тип С-1. Фасад, план, разрез по 1-1, узел "А", спецификации
Скамья. Тип С-1а. Фасад, план, разрез по 1-1, узел "А", спецификации
Скамья. Тип С-1б. Фасад, план, разрез по 1-1, узел "А", спецификация
Скамья. Тип С-1в. Фасад, план, разрез по 1-1, спецификация
Скамья. Тип С-1г. Фасад, план, разрез по 1-1, спецификация, узел "А"
Скамья. Тип С-3. Фасад, план, разрез по 1-1, спецификации, сечения
Скамья. Тип С-3а. Фасад, план, разрез по 1-1, спецификации, сечения
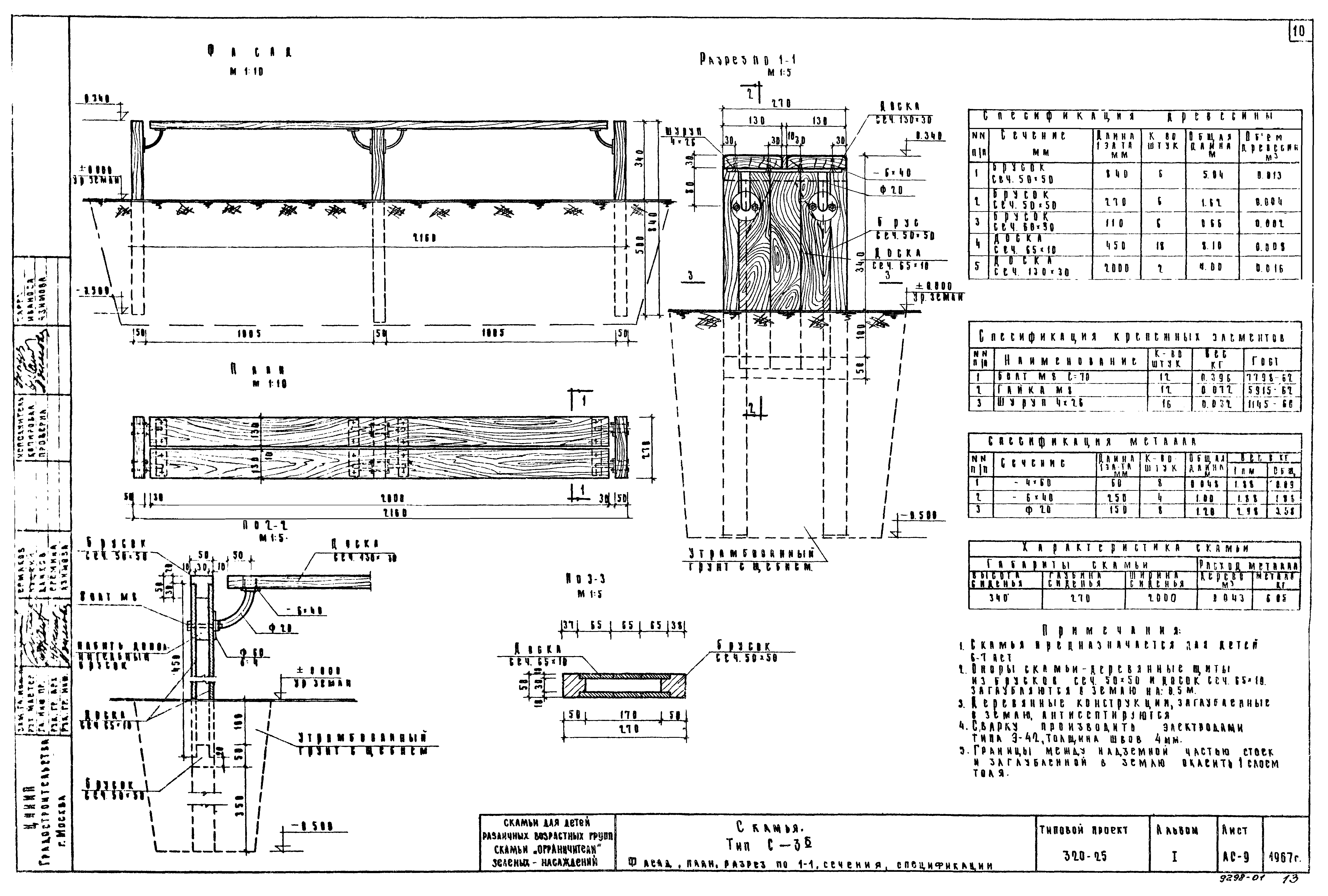
Скамья. Тип С-3б. Фасад, план, разрез по 1-1, спецификации, сечения
Скамья. Тип С-3в. Фасад, план, разрез по 1-1, спецификации, сечения
Скамья. Тип С-3г. Фасад, план, разрез по 1-1, спецификации, сечения
Скамья. Тип С-4. Фасад, план, разрез по 1-1, узел "А", деталь "Б", спецификации
Скамья. Тип С-4а. Фасад, план, разрезы по 1-1, по 2-2, спецификации
Скамья. Тип С-4б. Фасад, план, разрезы по 1-1, по 2-2, спецификации
Скамья. Тип С-4в. Фасад, план, разрез по 1-1, спецификации
Скамья. Тип С-4г. Фасад, план, разрез по 1-1, спецификации
Скамья. Тип С-5. Фасад, план, разрезы по 1-1, по 2-2, спецификации
Скамья. Тип С-5а. Фасад, план, разрезы по 1-1, по 2-2, спецификации
Скамья. Тип С-5б. Фасад, план, разрез по 1-1, характеристика скамьи, спецификации
Скамья. Тип С-5в. Фасад, план, разрез по 1-1, спецификации
Скамья. Тип С-5. Железобетонные опоры ОП-1, ОП-2. Узлы "А", "Б", спецификация сеток, характеристика изделий
Скамья. Тип С-6. Фасад, план, разрез по 1-1, узел "А", спецификации
Скамья. Тип С-6а. Фасад, план, разрез по 1-1, узел "А", спецификации
Скамья. Тип С-6б. Фасад, план, разрез по 1-1, узел "А", спецификации
Скамьи "ограничители" зеленых насаждений. Типы СО. Номенклатура
Скамья "ограничитель" зеленых насаждений. Тип СО-1. План, фасад, разрез по 1-1, характеристика изделий
Скамья "ограничитель" зеленых насаждений. Тип СО-2. План, фасад, разрез по 1-1, характеристика изделий
Скамьи "ограничители" зеленых насаждений. Типы СО-1, СО-2. Узлы №1, 2, 3, 4. Спецификации
Скамья "ограничитель" зеленых насаждений. Тип СО-3. План, фасад, разрез по 1-1, характеристика изделия
Скамья "ограничитель" зеленых насаждений. Тип СО-4. План, фасад, разрез по 1-1, характеристика изделия
Скамьи "ограничители" зеленых насаждений. Типы СО-3, СО-4. Деталь "А", сечения, спецификации
Скамья "ограничитель" зеленых насаждений. Тип СО-5. План, фасад, разрез по 1-1, характеристика изделия
Скамья "ограничитель" зеленых насаждений. Тип СО-6. План, фасад, разрез по 1-1, характеристика изделия
Скамьи "ограничители" зеленых насаждений. Типы СО-5, СО-6. Деталь "А", разрезы по 1-1, 2-2, сечение по а-а, спецификации
Скамьи "ограничители" зеленых насаждений. Железобетонная опора, железобетонные камни К-1, К-1а, Б-4
Разработан: ЦНИИП градостроительства
Утверждён:19.06.1967 ЦНИИП градостроительства Госгражданстроя (182)
Издан: ЦИТП Госстроя СССР (CITP, Gosstroy (USSR) 1967 г. )
Расположен в:Техническая документация Строительство Справочные документы Типовые строительные конструкции, изделия и узлы Общероссийский строительный каталог Малые формы архитектуры и элементы благоустройства Малые архитектурные формы Скамьи
Типовой проект 320-25Типовой проект 320-25Типовой проект 320-25Типовой проект 320-25Типовой проект 320-25Типовой проект 320-25Типовой проект 320-25Типовой проект 320-25Типовой проект 320-25Типовой проект 320-25Типовой проект 320-25Типовой проект 320-25Типовой проект 320-25Типовой проект 320-25Типовой проект 320-25Типовой проект 320-25Типовой проект 320-25Типовой проект 320-25Типовой проект 320-25Типовой проект 320-25Типовой проект 320-25Типовой проект 320-25Типовой проект 320-25Типовой проект 320-25Типовой проект 320-25Типовой проект 320-25Типовой проект 320-25Типовой проект 320-25Типовой проект 320-25Типовой проект 320-25Типовой проект 320-25Типовой проект 320-25Типовой проект 320-25Типовой проект 320-25Типовой проект 320-25Типовой проект 320-25Типовой проект 320-25Типовой проект 320-25Типовой проект 320-25Типовой проект 320-25

© 2013 Ёшкин Кот :-) Карта сайта