Скачать Типовой проект 310-3-3 Альбом III. Архитектурно-строительные чертежи, электротехнический чертежДата актуализации: 10.08.2017 Типовой проект 310-3-3
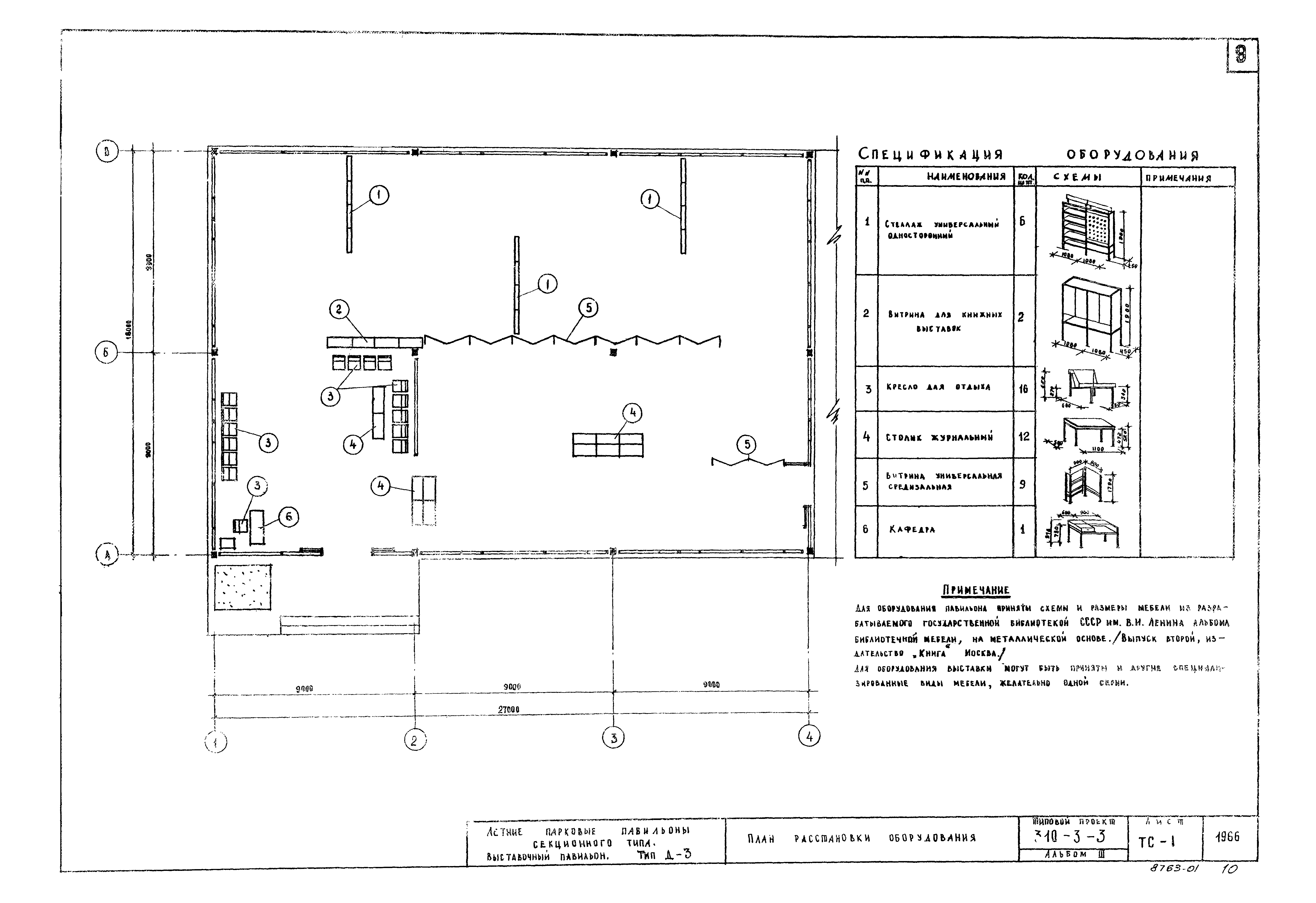
Альбом III. Архитектурно-строительные чертежи, электротехнический чертежОбозначение: | Типовой проект 310-3-3 | Обозначение англ: | 310-3-3 | Статус: | действует | Название рус.: | Альбом III. Архитектурно-строительные чертежи, электротехнический чертеж | Дата добавления в базу: | 01.09.2013 | Дата актуализации: | 05.05.2017 | Дата введения: | 20.09.1966 | Оглавление: | Заглавный лист. Состав проекта Пояснительная записка План Фасад в осях 1 - 4 Фасады в осях 4 - 1; В- А; А - В Разрез I-I. План кровли. Спецификация стеновых панелей План фундаментов. План покрытия План расстановки оборудования Электроосвещение. План павильона. Спецификация и условные обозначения | Разработан: | ЦНИИЭП зрелищных зданий и спортивных сооружений Госгражданстроя
| Утверждён: | 13.07.1965 Государственный комитет по гражданскому строительству и архитектуре при Госстрое СССР (130)
| Расположен в: |
|
          
|