Информационная система
«Ёшкин Кот»

Скачать базу одним архивом
Скачать обновления
История создания базы
Карта сайта

Скачать Типовой проект 294-3-28 Альбом II. Часть 1. Отопление и вентиляция

Дата актуализации: 10.08.2017

Типовой проект 294-3-28

Альбом II. Часть 1. Отопление и вентиляция

Обозначение: Типовой проект 294-3-28
Обозначение англ: 294-3-28
Статус:действует
Название рус.:Альбом II. Часть 1. Отопление и вентиляция
Дата добавления в базу:01.09.2013
Дата актуализации:05.05.2017
Оглавление:Отопление и вентиляция
   Заглавный лист
   Сводная спецификация материалов и оборудования
   План подвала в осях 1 - 6, А - Г
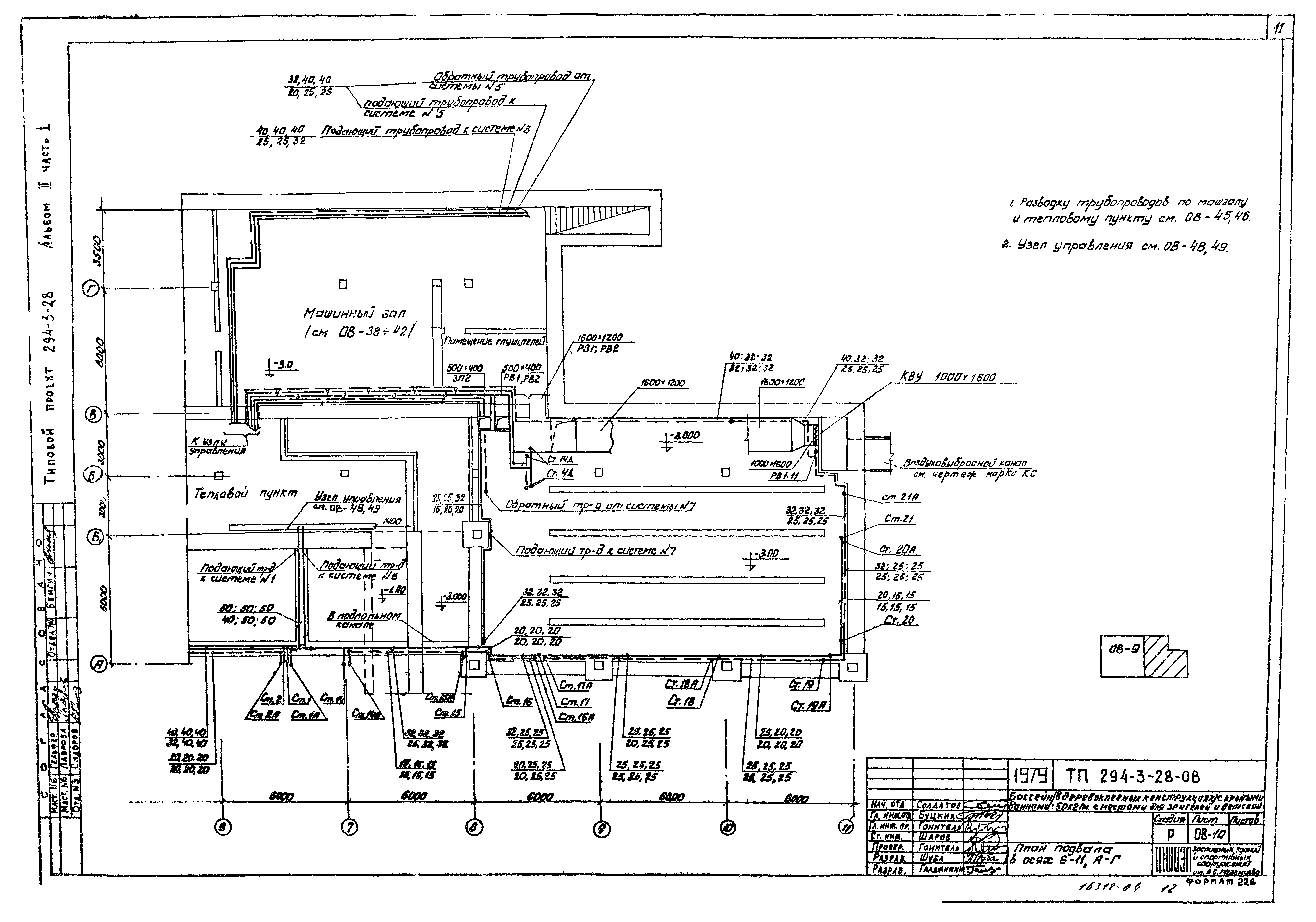
   План подвала в осях 6 - 11, А - Г
   План 1 этажа в осях 1 - 6, А - Г
   План 1 этажа в осях 1 - 6, Г - Д
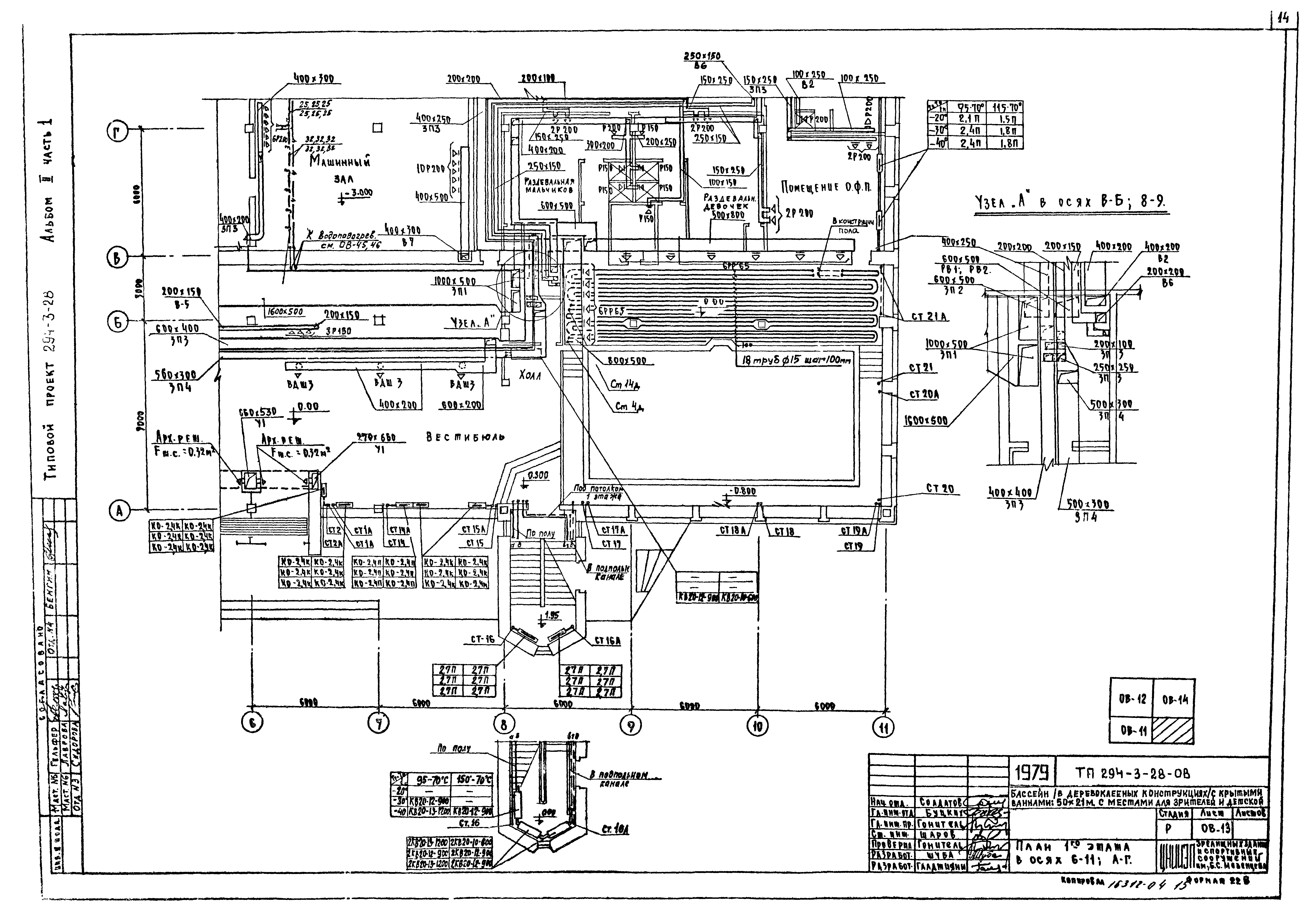
   План 1 этажа в осях 6 - 11, А - Г
   План 1 этажа в осях 6 - 11, Г - Д
   План 2 этажа в осях 1 - 6, А - Г
   План 2 этажа в осях 1 - 6, Г - Д
   План 2 этажа в осях 6 - 11, А - Г
   План 2 этажа в осях 6 - 11, Г - Д
   План 3 этажа в осях 1 - 6, А - Г
   План 3 этажа в осях 1 - 6, Г - Д
   План 3 этажа в осях 6 - 11, А - Г
   План 3 этажа в осях 6 - 11, Г - Д
   Схема системы отопления №1
   Теплоснабжение системы ПЕ1. Схемы систем отопления №2 и №3
   Схемы систем отопления №4 и №5
   Схемы систем отопления №6 и №7
   Схема системы обогрева обходных дорожек в осях 1 - 6, В - Д
   Схема системы обогрева обходных дорожек в осях 6 - 11, В - Д
   Схемы систем П1, П2
   Схемы систем У1, РВ1, РВ2 и П1
   Схема системы П3
   Схемы систем 3П3 и 3П4
   Схемы систем В1, В2, В3, В7
   Схемы систем В4, В5, ВЕ1, ВЕ2
   Схемы систем В6, В8, ПЕ1
   Схемы теплоснабжения установок П1, П2, П3, 3П1 - 3П4, У1
   Схемы обвязки калориферов
   Установки систем П1, П2, П3, У1, РВ1, РВ2. План
   Установки систем П1, П2, П3, У1, РВ1, РВ2. Разрез 1-1
   Установки систем П1, П2, П3, У1, РВ1, РВ2. Разрез 2-2
   Установки систем П1, П2, П3, У1, РВ1, РВ2. Разрезы 3-3 и 4-4
   Установки систем П1, П2, П3, У1, РВ1, РВ2. Спецификация
   Установки систем В1 - В8. Планы. Разрезы
   Установки систем В1 - В8. Спецификация
   Тепловой пункт. План трубопроводов (теплоноситель 95 - 70 градусов Цельсия)
   Тепловой пункт. План трубопроводов (теплоноситель 150 - 70 градусов Цельсия)
   Схемы трубопроводов теплового пункта (теплоноситель 95 - 70; 150 - 70 градусов Цельсия)
   Узел управления (теплоноситель 95 - 70 градусов Цельсия)
   Узел управления (теплоноситель 150 - 70 градусов Цельсия)
   Тепловой пункт. Спецификация
   Звено прямого участка асбестоцементного воздуховода
Разработан: ЦНИИЭП зрелищных зданий и спортивных сооружений Госгражданстроя
Утверждён:17.01.1978 Госгражданстрой (Gosgrazhdanstroy 12)
Расположен в:Техническая документация Строительство Справочные документы Типовые строительные конструкции, изделия и узлы Общероссийский строительный каталог Общественные здания в городах и поселках городского типа Физкультурно-оздоровительные и спортивные здания и сооружения Сооружения для водных видов спорта
Типовой проект 294-3-28Типовой проект 294-3-28Типовой проект 294-3-28Типовой проект 294-3-28Типовой проект 294-3-28Типовой проект 294-3-28Типовой проект 294-3-28Типовой проект 294-3-28Типовой проект 294-3-28Типовой проект 294-3-28Типовой проект 294-3-28Типовой проект 294-3-28Типовой проект 294-3-28Типовой проект 294-3-28Типовой проект 294-3-28Типовой проект 294-3-28Типовой проект 294-3-28Типовой проект 294-3-28Типовой проект 294-3-28Типовой проект 294-3-28Типовой проект 294-3-28Типовой проект 294-3-28Типовой проект 294-3-28Типовой проект 294-3-28Типовой проект 294-3-28Типовой проект 294-3-28Типовой проект 294-3-28Типовой проект 294-3-28Типовой проект 294-3-28Типовой проект 294-3-28Типовой проект 294-3-28Типовой проект 294-3-28Типовой проект 294-3-28Типовой проект 294-3-28Типовой проект 294-3-28Типовой проект 294-3-28Типовой проект 294-3-28Типовой проект 294-3-28Типовой проект 294-3-28Типовой проект 294-3-28Типовой проект 294-3-28Типовой проект 294-3-28Типовой проект 294-3-28Типовой проект 294-3-28Типовой проект 294-3-28Типовой проект 294-3-28Типовой проект 294-3-28Типовой проект 294-3-28Типовой проект 294-3-28Типовой проект 294-3-28Типовой проект 294-3-28Типовой проект 294-3-28Типовой проект 294-3-28Типовой проект 294-3-28

© 2013 Ёшкин Кот :-) Карта сайта