Информационная система
«Ёшкин Кот»

Скачать базу одним архивом
Скачать обновления
История создания базы
Карта сайта

Скачать Типовой проект 294-3-28 Альбом I. Часть 2. Конструктивные чертежи. Витражи

Дата актуализации: 10.08.2017

Типовой проект 294-3-28

Альбом I. Часть 2. Конструктивные чертежи. Витражи

Обозначение: Типовой проект 294-3-28
Обозначение англ: 294-3-28
Статус:действует
Название рус.:Альбом I. Часть 2. Конструктивные чертежи. Витражи
Дата добавления в базу:01.09.2013
Дата актуализации:05.05.2017
Дата введения:10.09.1979
Оглавление:Чертежи основного комплекта марки КС
   Заглавный лист
   План каркаса на отм. 0.000; 3.600. Развертки каркаса по осям 2; 3; 6; 7
   План каркаса на отм. 6.900; 9.650. Развертки каркаса по осям Г, 9, 10
   Развертки каркаса по осям А, Б, 4. спецификация сборных ж/б изделий
   Узлы каркаса "1" и "2"
   Узлы каркаса "3" - "8"
   План перекрытия на отм. 3.600 в осях "А"-"Г" - "1"-"6". Узлы "2 - 6"
   План перекрытия на отм. 3.600 в осях "А"-"Г" - "6"-"11"
   План перекрытия на отм. 6.900 в осях "А"-"Г" - "1"-"6". Разрезы 1-1; 2-2; 3-3. Узел "6"
   План перекрытия на отм. 6.900 в осях "А"-"Г" - "6"-"11". Узлы "12", "13"
   Узлы трибуны "7" - "11"
   План покрытия. Узлы "14", "15"
   Узлы покрытия "16", "17". Спецификация железобетонных элементов
   Монолитные участки перекрытий МУ-2, МУ-3, МУ-5. Сечения 7-7 - 11-11
   Монолитные участки перекрытий МУ-4. Армирование по сечению В-В - 2-2. Каркасы
   Монолитные участки перекрытий. Спецификация и выборка арматуры
   Обходная дорожка ванны на отм. 3.600. Армирование. Сечение 1-1. Таблица расхода материалов
   Балконная часть обходной дорожки. Армирование. Сечение 9-9. Таблица расхода материалов
   Обходная дорожка ванны и балконная часть обходной дорожки. Сечения 2-2 - 8-8
   Обходная дорожка ванны и балконная часть обходной дорожки. Сварные элементы. Спецификация и выборка арматуры
   Монолитные козырьки МК-1 - МК-3. Опалубка и армирование
   Монолитные козырьки МК-1 - МК-3. Армирование. Спецификация арматуры
   План деревоклееных арок, балок и металлических связей
   Разрез 2-2. Узлы арок "1", "2"
   Опорный узел арки "4"
   Металлические связи. Разрез 3-3. Развертка. Узлы
   План покрытия в осях В - Д/ 1 - 11
   Покрытие в осях В - Д/ 1 - 11. Разрез 2-2. Спецификация деревянных изделий
   Покрытие в осях В - Д/ 1 - 11. Узел 2. Расход древесины и спецификация стали
   Покрытие в осях В - Д/ 1 - 11. Вентшахта №3. Сечения 5-5; 6-6. Узел 1
   Торцевой фахверк по осям "1" и "11". Расход древесины и стали
   Торцевой фахверк по осям "1" и "11". Узлы "1" - "4"
   Лестница Л-1; Л-2. Разрезы 1-1 - 4-4. Выборки
   Лестница Л-1; Л-2. Узлы "А" и "Б". Сечения 5-5 - 9-9. Спецификация
   План перемычек 1 этажа
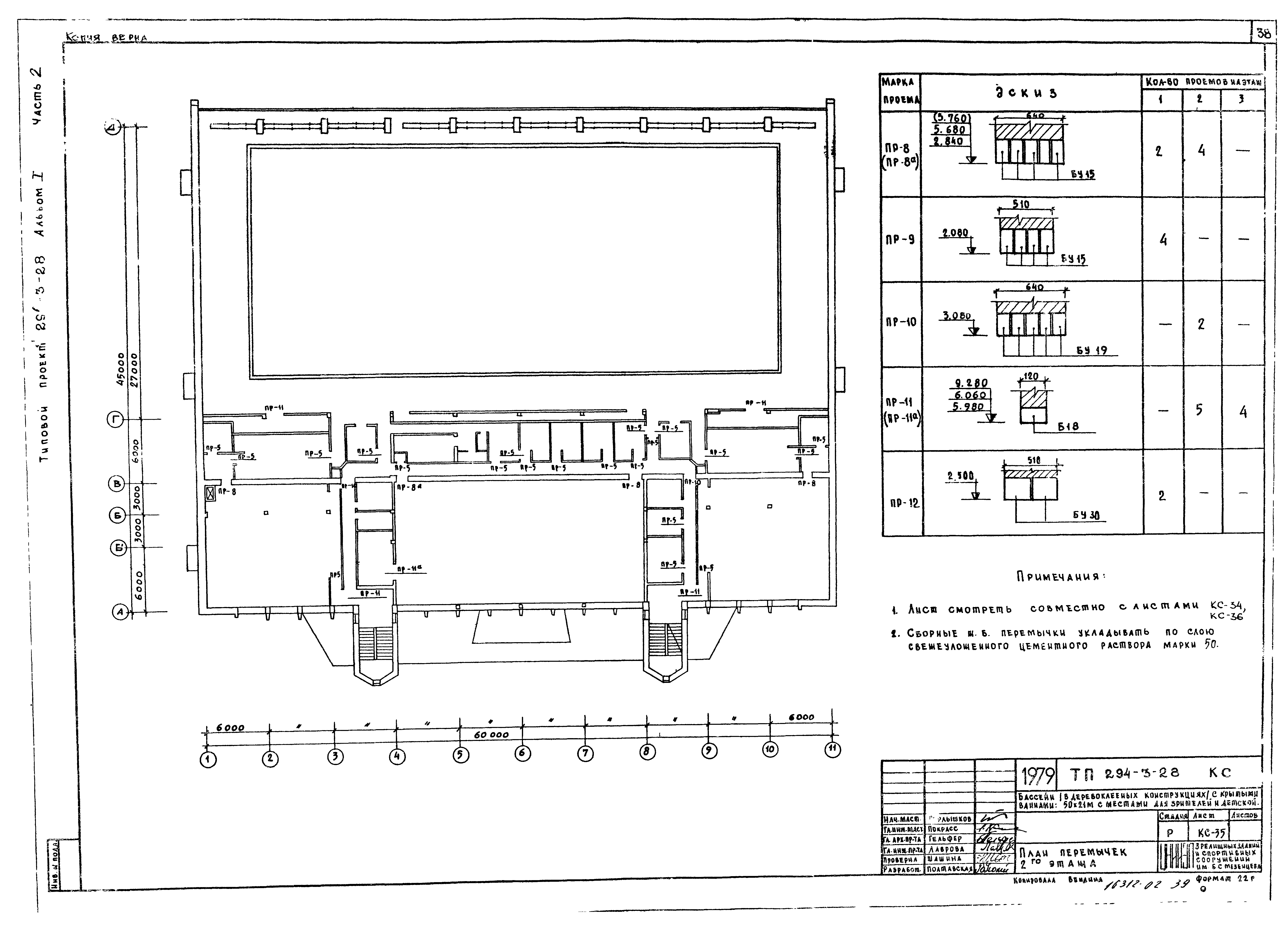
   План перемычек 2 этажа
   План перемычек 3 этажа
   План раскладки подоконных досок, ножей ИЖ-12, ИЖ-13. Узлы
   Ванна 50х21 м. Общий вид. План ванны
   Ванна 50х21 м. Общий вид. Разрез 1-1. Выборка закладных деталей
   Ванна 50х21 м. Общий вид. Разрез 2-2. Сечения 3-3 - 7-7
   Ванна 50х21 м. Общий вид. Сечения 8-8 - 11-11
   Ванна 50х21 м. Опалубка. План ванны
   Ванна 50х21 м. Опалубка. Разрез 1-1. Выборка закладных деталей
   Ванна 50х21 м. Опалубка. Разрез 2-2. Сечения 3-3 - 5-5
   Ванна 50х21 м. План разбивки колонн ванны. Армирование КМ-1 - КМ-5
   Ванна 50х21 м. Армирование колонн. Каркасы. Спецификация и выборка арматуры
   Ванна 50х21 м. Схема балок. Опалубка балок
   Ванна 50х21 м. Армирование балки Бм-1
   Ванна 50х21 м. Армирование балок Бм-2т (Бм-2и) и Бм-3
   Ванна 50х21 м. Армирование балок. Каркасы и сетки. Спецификация и выборка арматуры
   Ванна 50х21 м. Опалубочный план днища
   Ванна 50х21 м. План армирования днища ванны
   Ванна 50х21 м. Армирование днища. Разрезы 1-1; 2-2. Узлы "А", "Б"
   Ванна 50х21 м. Армирование днища. Сетки. Спецификация и выборка арматуры
   Ванна 50х21 м. Армирование стенки у оси "Г" и торцевых стенок ванны
   Ванна 50х21 м. Армирование продольной стенки у оси "А" и торцевых стенок ванны
   Ванна 50х21 м. Армирование торцевых и продольных стенок. Сечения 1-1 - 3-3
   Ванна 50х21 м. Армирование стенок. Сборные элементы. Спецификация арматуры
   Ванна 50х21 м. Закладные детали ЗД-1, ЗД-2
   Ванна 50х21 м. Закладные детали ЗД-3 - ЗД-7; ИМ-2 - ИМ-6
   Ванна 50х21 м. Закладные детали ЗД-8; ИМ-7; ИМ-8. Спецификация и выборка стали
   Детская ванна 12,5х6 м. Общий вид. План и разрезы 1-1 - 3-3
   Детская ванна 12,5х6 м. Опалубка. План. Разрезы 4-4; 5-5. Сечения
   Детская ванна 12,5х6 м. Армирование днища и стенок ванны
   Детская ванна 12,5х6 м. Армирование и спецификации
   План подвесного потолка на отм. 3.150. Сечения 1-1 (6-6). Спецификация
   Подвесной потолок. Сечения 2-2 - 5-5
   План подвесного потолка на отм. 9.500 и на отм. 5.85. Спецификации
   Вентиляционные шахты ВШ-1; ВШ-2. Фрагменты плана на отм. 6.70 и 9.70 с деталями крепления прожекторов
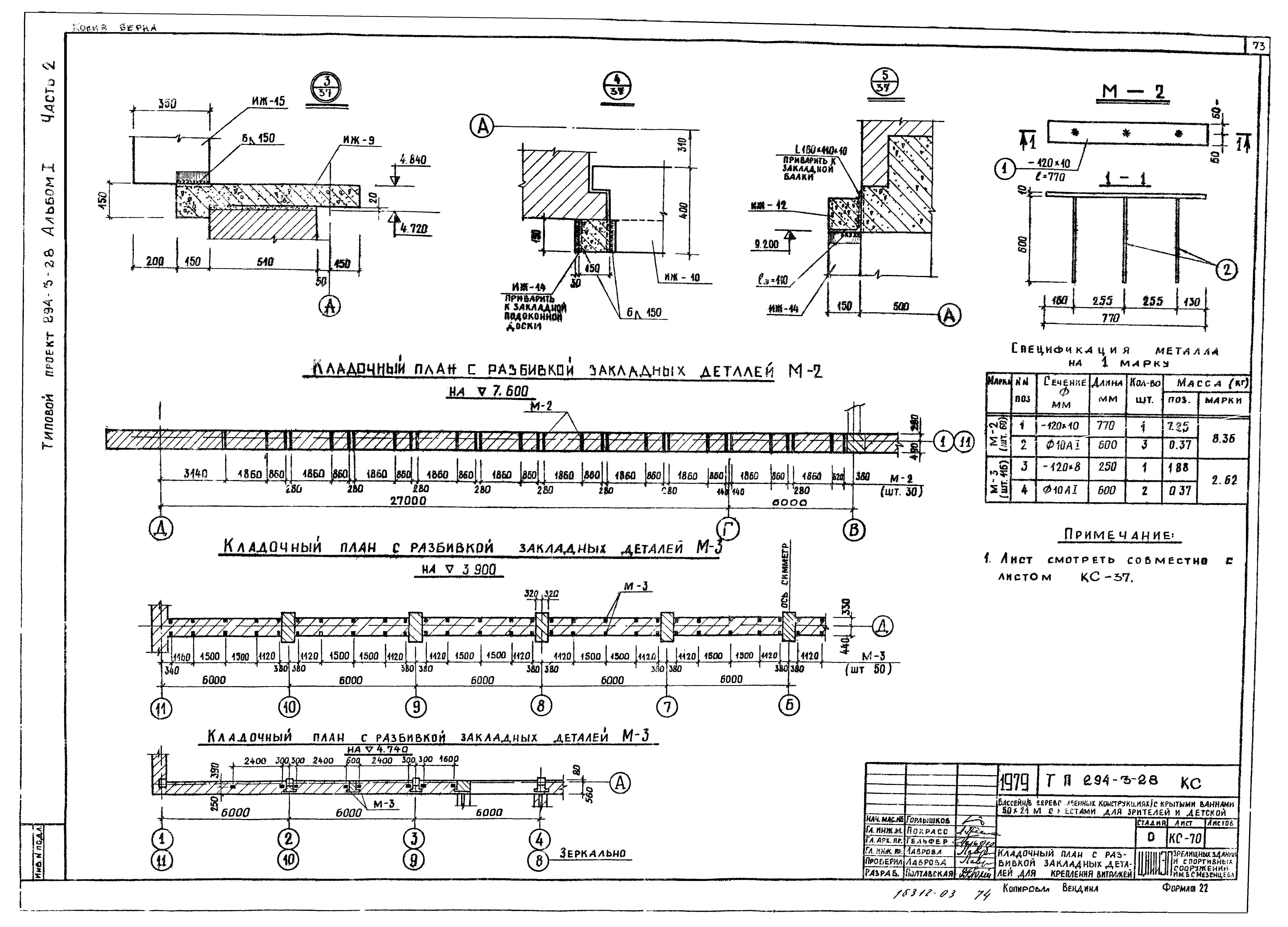
   Кладочный план с разбивкой закладных деталей для крепления витражей
Чертежи основного комплекта марки КМ
   Заглавный лист витражей
   Спецификация монтажных элементов
   Технические условия
   Монтажная схема витража по оси "Д" в осях "1 - 6"
   Монтажная схема витража по оси "Д" в осях "6 - 11"
   Монтажная схема тамбура по оси "А"
   Монтажная схема витража по оси "А" в осях "4 - 8"
   Монтажная схема витражей лестничных клеток
   Монтажная схема внутренних перегородок, буфета, фойе, детского бассейна и акустического окна
   Монтажная схема витража по оси "1" в осях "Д - В"
   Монтажная схема витража по оси "1" в осях "Д - В" и по оси "11" в осях "В - Д"
   Монтажная схема витража по оси "11" в осях "В - Д"
   Монтажные сечения 1-1 - 8-8
   Монтажные сечения 9-9 - 16-16
   Монтажные сечения 17-17 - 23-23
   Монтажные сечения 24-24 - 30-30
   Монтажные сечения 31-31 - 37-37
   Монтажные сечения 38-38 - 42-42. Монтажный узел 13
   Монтажные узлы 1 - 3
   Монтажные узлы 4 - 6
   Монтажные узлы 7 - 9
   Монтажные узлы 10 - 12
   Узлы установки замка, ручек и петли
   Узлы установки завертки и шпингалета
   Узлы установки фрамужного прибора
   Узел установки защелки
Разработан: ЦНИИЭП зрелищных зданий и спортивных сооружений Госгражданстроя
Утверждён:17.01.1978 Госгражданстрой (Gosgrazhdanstroy 12)
Расположен в:Техническая документация Строительство Справочные документы Типовые строительные конструкции, изделия и узлы Общероссийский строительный каталог Общественные здания в городах и поселках городского типа Физкультурно-оздоровительные и спортивные здания и сооружения Сооружения для водных видов спорта
Типовой проект 294-3-28Типовой проект 294-3-28Типовой проект 294-3-28Типовой проект 294-3-28Типовой проект 294-3-28Типовой проект 294-3-28Типовой проект 294-3-28Типовой проект 294-3-28Типовой проект 294-3-28Типовой проект 294-3-28Типовой проект 294-3-28Типовой проект 294-3-28Типовой проект 294-3-28Типовой проект 294-3-28Типовой проект 294-3-28Типовой проект 294-3-28Типовой проект 294-3-28Типовой проект 294-3-28Типовой проект 294-3-28Типовой проект 294-3-28Типовой проект 294-3-28Типовой проект 294-3-28Типовой проект 294-3-28Типовой проект 294-3-28Типовой проект 294-3-28Типовой проект 294-3-28Типовой проект 294-3-28Типовой проект 294-3-28Типовой проект 294-3-28Типовой проект 294-3-28Типовой проект 294-3-28Типовой проект 294-3-28Типовой проект 294-3-28Типовой проект 294-3-28Типовой проект 294-3-28Типовой проект 294-3-28Типовой проект 294-3-28Типовой проект 294-3-28Типовой проект 294-3-28Типовой проект 294-3-28Типовой проект 294-3-28Типовой проект 294-3-28Типовой проект 294-3-28Типовой проект 294-3-28Типовой проект 294-3-28Типовой проект 294-3-28Типовой проект 294-3-28Типовой проект 294-3-28Типовой проект 294-3-28Типовой проект 294-3-28Типовой проект 294-3-28Типовой проект 294-3-28Типовой проект 294-3-28Типовой проект 294-3-28Типовой проект 294-3-28Типовой проект 294-3-28Типовой проект 294-3-28Типовой проект 294-3-28Типовой проект 294-3-28Типовой проект 294-3-28Типовой проект 294-3-28Типовой проект 294-3-28Типовой проект 294-3-28Типовой проект 294-3-28Типовой проект 294-3-28Типовой проект 294-3-28Типовой проект 294-3-28Типовой проект 294-3-28Типовой проект 294-3-28Типовой проект 294-3-28Типовой проект 294-3-28Типовой проект 294-3-28Типовой проект 294-3-28Типовой проект 294-3-28Типовой проект 294-3-28Типовой проект 294-3-28Типовой проект 294-3-28Типовой проект 294-3-28Типовой проект 294-3-28Типовой проект 294-3-28Типовой проект 294-3-28Типовой проект 294-3-28Типовой проект 294-3-28Типовой проект 294-3-28Типовой проект 294-3-28Типовой проект 294-3-28Типовой проект 294-3-28Типовой проект 294-3-28Типовой проект 294-3-28Типовой проект 294-3-28Типовой проект 294-3-28Типовой проект 294-3-28Типовой проект 294-3-28Типовой проект 294-3-28Типовой проект 294-3-28Типовой проект 294-3-28Типовой проект 294-3-28Типовой проект 294-3-28Типовой проект 294-3-28Типовой проект 294-3-28Типовой проект 294-3-28Типовой проект 294-3-28

© 2013 Ёшкин Кот :-) Карта сайта