Скачать Типовой проект 294-2-68 Альбом I. Архитектурно-строительные чертежи, витражиДата актуализации: 10.08.2017 Типовой проект 294-2-68
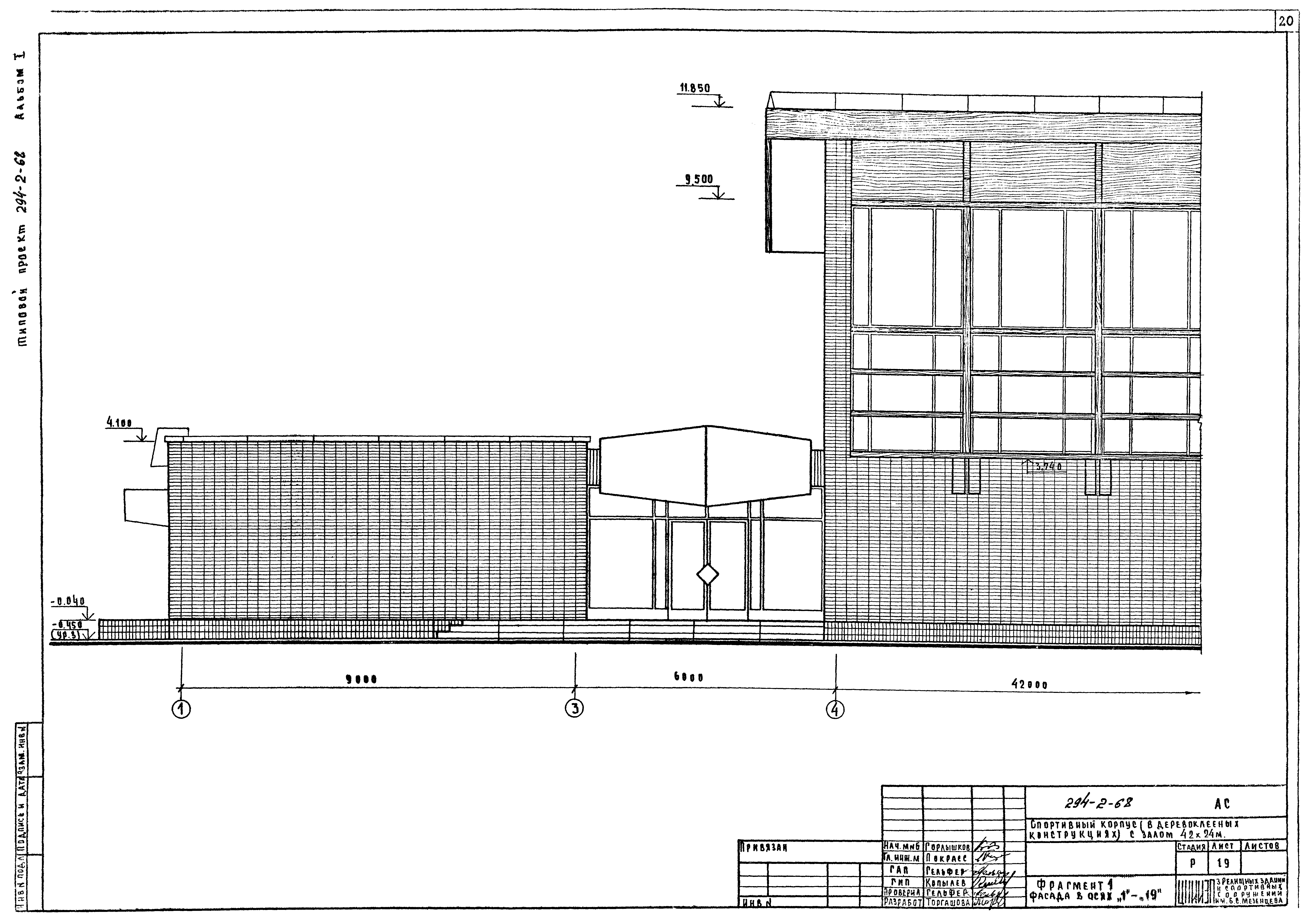
Альбом I. Архитектурно-строительные чертежи, витражиОбозначение: | Типовой проект 294-2-68 | Обозначение англ: | 294-2-68 | Статус: | не определен законодательством | Название рус.: | Альбом I. Архитектурно-строительные чертежи, витражи | Дата добавления в базу: | 01.09.2013 | Дата актуализации: | 05.05.2017 | Дата введения: | 23.12.1981 | Оглавление: | Содержание альбома Чертежи комплекта АС Общие данные План в осях "1" - "11", "В" - "Е" План в осях "12" - "19", "Б" - "Е" План в осях "4" - "18", "А" - "Г" План подвала. Фрагмент плана на отм. 5.400 План кровли Кровля. Узлы I - VI Разрезы 1-1, 2-2 Разрез 3-3 Фасад в осях "1" - "19" Фасад в осях "А" - "Е" Фасад в осях "Е" - "А" Фасад в осях "19" - "1" Фасад в осях "1" - "19" (Вариант) Фрагмент 1 фасада в осях "1" - "19" Сечения стен по осям "А" и "Г" Крыльца. Пандус. Фрагмент плана 1 Барьер гардероба ИД-2 Подвесная вешалка гардероба ИД-3 Установка перегородок санузлов и душевых Баня сухого жара. План, разрезы, детали, спецификация Ограждение конвекторов в зале (ИД-4). Вентрешетка ВР-1 Узел крепления щитов ИД-4. Спецификация Акустическая обработка радиоузла. Дверь радиоузла ИД-6 Шкафы "ПК", "ЭО", "РС". Окно радиоузла "ИД-5" Спецификация столярных изделий. Ведомость отделки помещений. Ведомость отделки фасадов Воздухозаборная шахта Размещение площадок в игровом зале Размещение площадок для тенниса. Расстановка оборудования Шкафчик двухъярусный 4-х местный Узлы шкафчиков Скамья для раздевален с вешалкой Спецификация оборудования, инвентаря и мебели План расположения технологического оборудования и мебели Технологическая часть проекта буфета Чертежи комплекта КС Общие данные План фундаментов. Сечения Развертка стен подвала. Сечения План перекрытия над подвалом и подпольные каналы Стены по осям "А" и "Г". Монолитные элементы. Опалубка Стены по осям "А" и "Г". Монолитные элементы. Узлы и сечения Стены по осям "А" и "Г". Спецификация на монолитные участки План покрытия на отм. 3.300 Монолитные участки и козырьки Спецификация на монолитные участки и козырьки Лестница в подвал План перемычек Спортзал. Монтажная схема конструкций по оси "А". Узлы с I по V Спортзал. Монтажная схема балок и связей покрытия Спортзал. Разрез А-А. Узлы с VI по X Спортзал. Разрезы с Б-Б по Г-Г Спортзал. План покрытия Спортзал. Покрытие. Сечения с 1-1 по 6-6 Спортзал. Спецификация деревянных и металлических элементов Ванна, сауны Электрощитовая и насосная. Конструкции под оборудование Воздухозаборные канал и шахта Спортзал. Подвесной венткороб Венткамера №1. Глушители Сводная спецификация ниже отм. 0.000 Сводная спецификация выше отм. 0.000 Чертежи комплекта КМ Общие данные алюминиевых витражей Монтажная схема витража по оси "А" в осях "4" - "12" (наружное остекление) Монтажная схема витража по оси "А" в осях "12" - "4" (внутреннее остекление) Монтажная схема витража по оси "А" в осях "12" - "18" (наружное остекление) Монтажная схема витража по оси "А" в осях "18" - "12" (внутреннее остекление) Монтажная схема тамбура | Разработан: | ЦНИИЭП зрелищных зданий и спортивных сооружений Госгражданстроя
| Утверждён: | 17.12.1980 Госгражданстрой (Gosgrazhdanstroy 357)
| Расположен в: |
|
                                                                            
|