Информационная система
«Ёшкин Кот»

Скачать базу одним архивом
Скачать обновления
История создания базы
Карта сайта

Скачать Типовой проект 284-4-112.86 Альбом I. Часть 2. Конструкции железобетонные и металлические. Технологические чертежи

Дата актуализации: 10.08.2017

Типовой проект 284-4-112.86

Альбом I. Часть 2. Конструкции железобетонные и металлические. Технологические чертежи

Обозначение: Типовой проект 284-4-112.86
Обозначение англ: 284-4-112.86
Статус:действует
Название рус.:Альбом I. Часть 2. Конструкции железобетонные и металлические. Технологические чертежи
Дата добавления в базу:01.09.2013
Дата актуализации:05.05.2017
Дата введения:25.07.1986
Оглавление:Обложка
Титульный лист
Содержание альбома
Конструкции железобетонные
   Общие данные
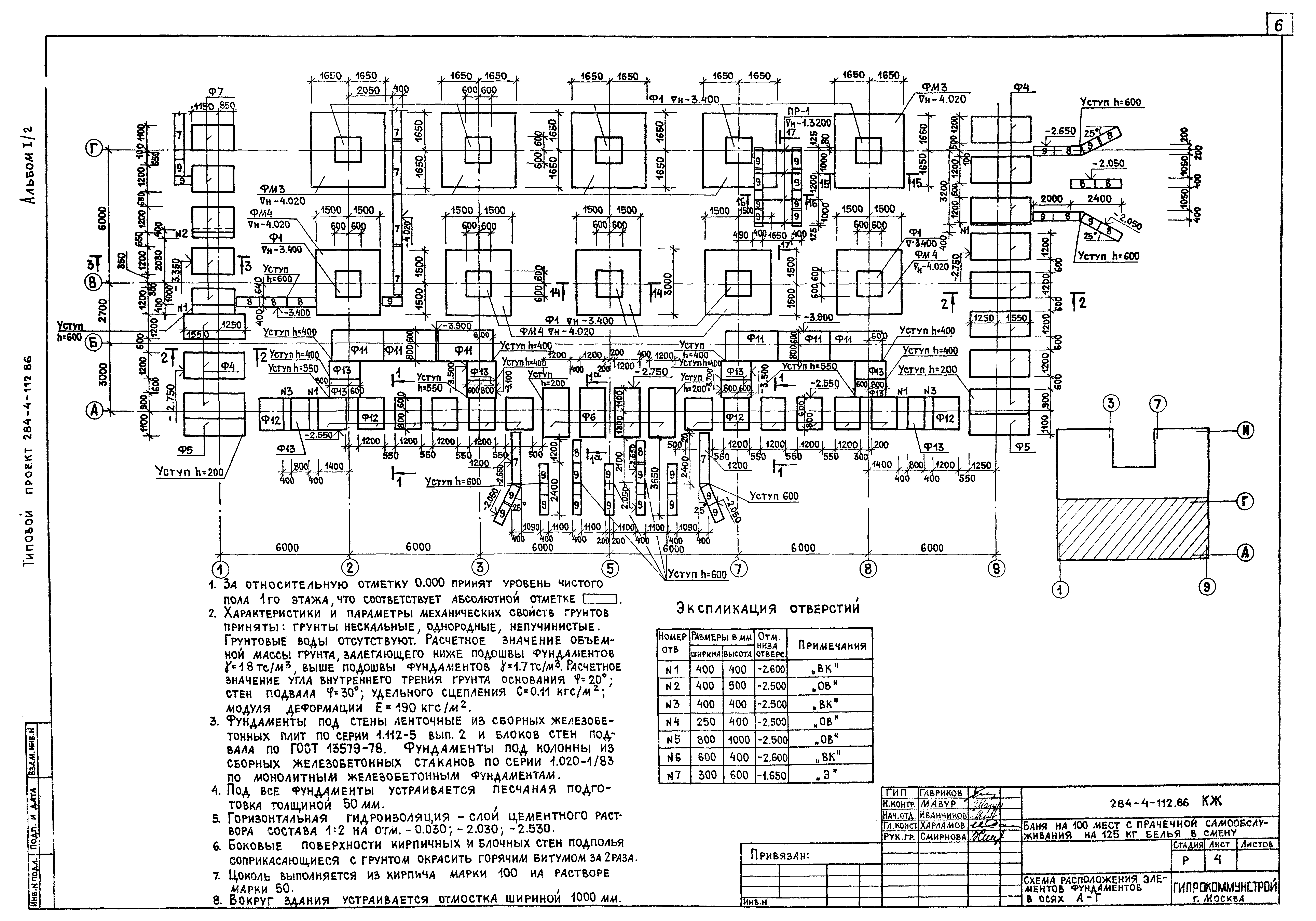
   Схема расположения элементов фундаментов в осях А - Г
   Схема расположения элементов фундаментов в осях Г - И
   Сечения 1-1 - 7-7
   Сечения 8-8 - 13-13
   Сечения 14-14 - 17-17. Фм-3, Фм-4
   Монолитный фундаменты Фм-1, Фм-2
   Схемы расположения крылец и входов в подполье
   Схема расположения фундаментов под оборудование и приямка на отм. - 1.650 и - 1.100. Фундаменты Фом-1 - Фом5
   Схема расположения фундаментов под оборудование на отм. 0.140. Фундаменты Фом-7; Фом-8
   Схема расположения элементов опор под балки. Рама ФМ-1. Фундаменты Фом-6; Фом-9. Сечения 1-1 - 5-5
   Схема расположения элементов воздухозаборных каналов
   Схема расположения элементов площадки на отм. 0.100
   Схема расположения элементов каркаса. Узлы 1; 2; 3
   Разрезы 1-1 - 6-6
   Схема расположения элементов перекрытия на отм. 0.000 в осях А - Г. Узы 1 - 4
   Схема расположения элементов перекрытия на отм. 0.000 в осях Г - И
   Схема расположения элементов перекрытия на отм. 3.600 в осях А -Г
   Схема расположения элементов перекрытия на отм. 3.600 в осях Г - И
   Схема расположения элементов перекрытия на отм. 7.200 в осях А -Г
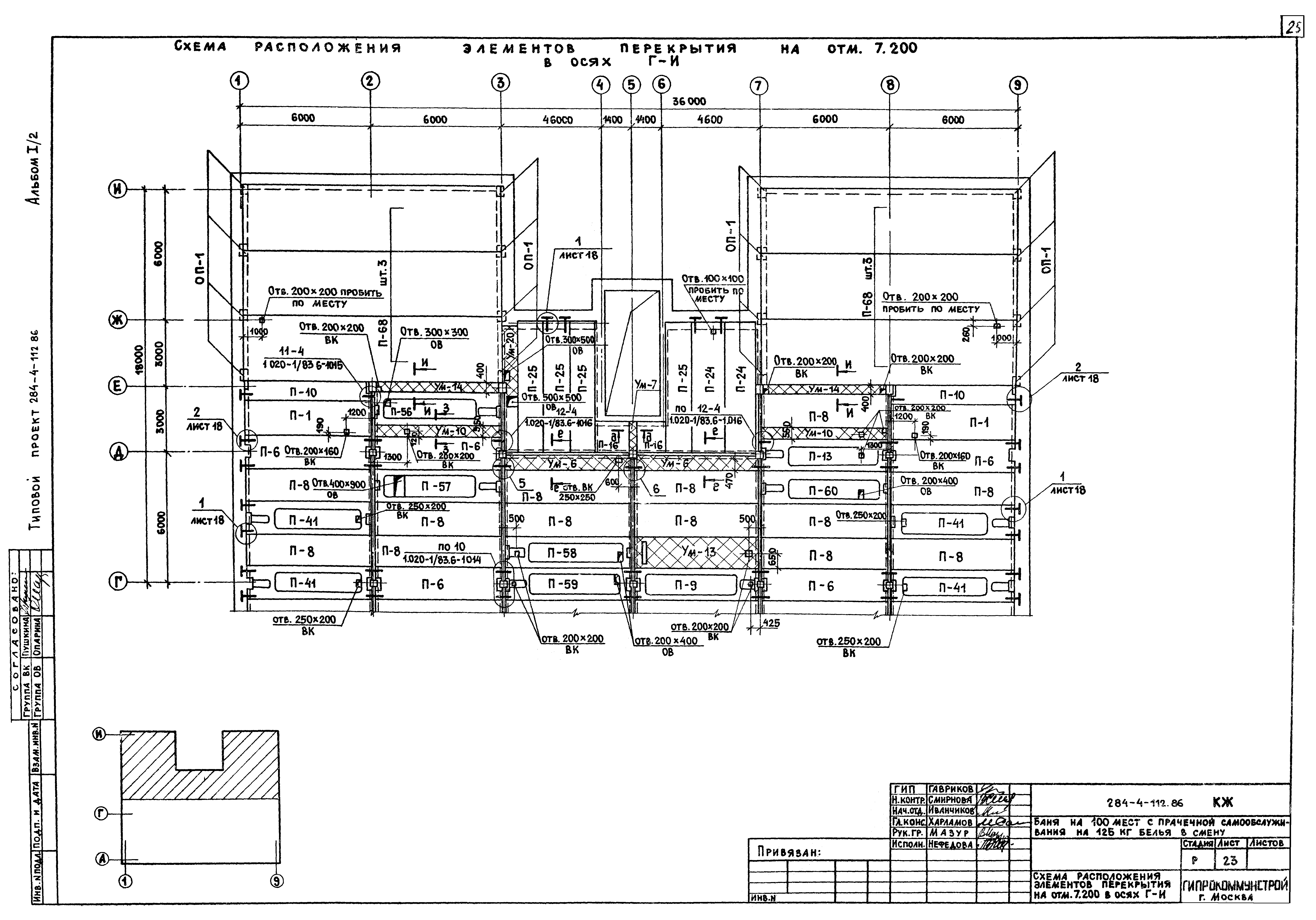
   Схема расположения элементов перекрытия на отм. 7.200 в осях Г- И
   Схема расположения элементов покрытия вентилируемой кровли в осях А -Г
   Схема расположения элементов покрытия вентилируемой кровли в осях Г - И
   Схема расположения элементов покрытия этажа
   Спецификация к схемам расположения элементов перекрытия и покрытия
   Участки монолитные Ум-1 - Ум-3
   Участки монолитные Ум-4 - Ум-6; Ум-12
   Участки монолитные Ум-7 - Ум-9
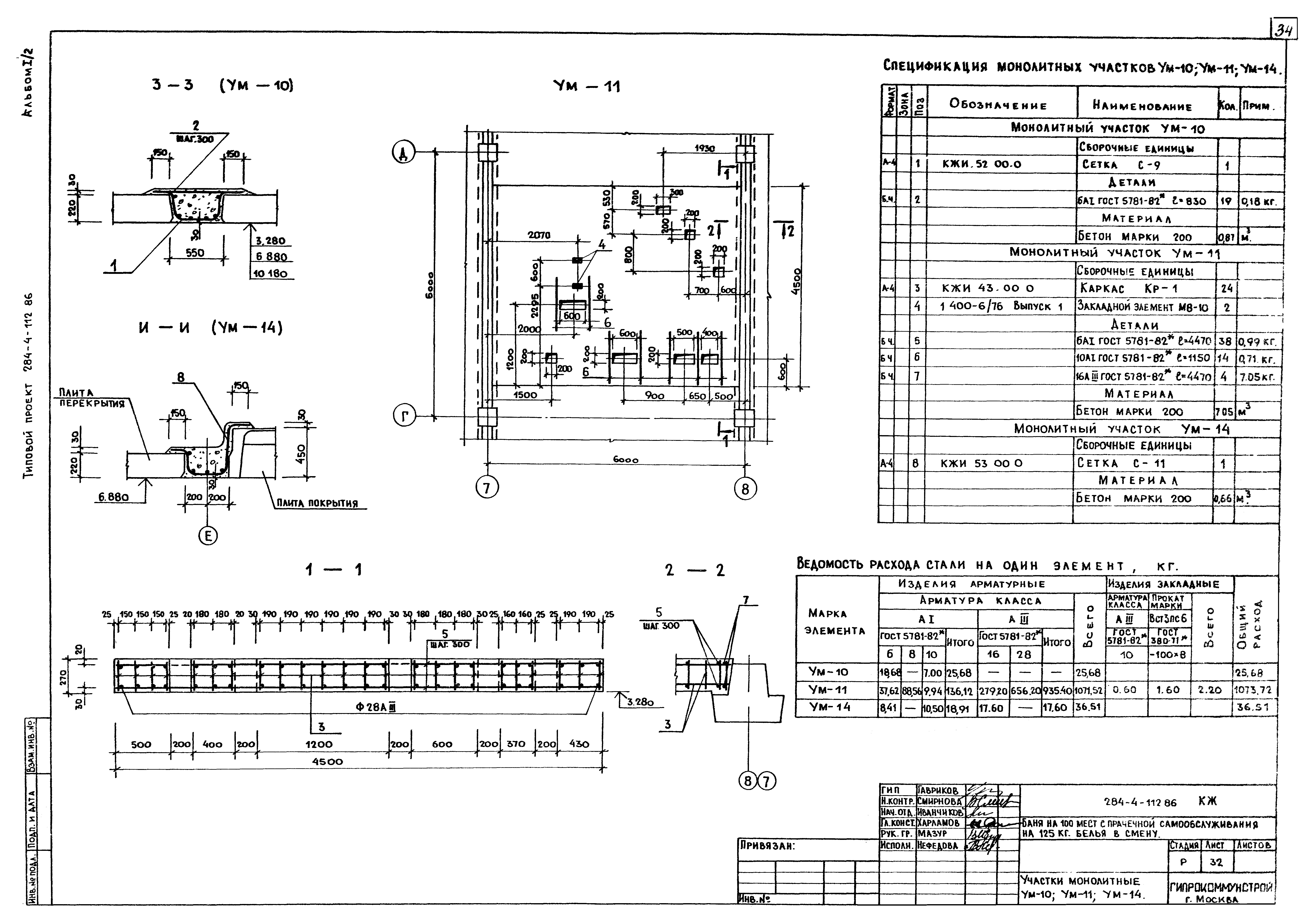
   Участки монолитные Ум-10; Ум-11; Ум-14
   Участки монолитные Ум-13; Ум-15 - Ум-17
   Участки монолитные Ум-18 - Ум-20
   Монолитное покрытие МП-1 на отм. 0.000 и МП-2 на отм. 3.600 (вариант), опалубка
   Схема армирования монолитного перекрытия МП-1. Сечения 1-1, 2-2
   Схема армирования монолитного перекрытия МП-2. Сечения 3-3 - 7-7
   Сечения 8-8 - 13-13. Узел 1
   Монолитное перекрытие МП-3 на отм. 7.200
   Схема армирования монолитного перекрытия МП-3. Сечения 1-1 - 6-6
   Схема расположения прогонов на отм. 8.360 между осями 2 - 8, В - Е
   Схемы расположения элементов перекрытия на отм. 8.000 и перемычки под баки
   Схема расположения элементов бассейна. Разрезы 1-1; 2-2
   Разрезы 1-1; 2-2 (армирование). Узлы А, Б, В. Лестницы ЛМ-1 и ЛМ-2
   Схема армирования ванны бассейна. Сечения 1-1 - 3-3. Узел Г
   Рама РМ-1 (армирование). Сечения
   Баки БМ-1 и БМ-2 (армирование). Сечения
   Схема расположения элементов обходной дорожки. Участки монолитные Ум-1, Ум-2
   Микробассейны №1 - 4. Узлы 1, 2, 3
   Микробассейны №1 - 4. Опалубка и армирование
Конструкции металлические
   Общие данные
   Бак горячей воды V = 7,5 куб. м
   Бак горячей воды V = 7,5 куб. м и промывной бак V = 5,0 куб. м
   Поддоны ПМ-1; ПМ-2; ПМ-3. Технологические чертежи
   План 1 этажа в осях А - Г с расстановкой технологического оборудования
   План 1 этажа в осях Г - И с расстановкой технологического оборудования
   Фрагменты плана 1 этажа с расстановкой оборудования прачечной и буфета
   План 2 этажа в осях А - Г с расстановкой технологического оборудования
   План 2 этажа в осях Г - И с расстановкой технологического оборудования
Разработан: Гипрокоммунстрой
Утверждён:27.12.1985 МЖКХ РСФСР (7-ТД)
Расположен в:Техническая документация Строительство Справочные документы Типовые строительные конструкции, изделия и узлы Общероссийский строительный каталог Общественные здания в городах и поселках городского типа Предприятия бытового обслуживания населения и коммунального хозяйства Бани, бани-прачечные с предприятиями бытового обслуживания, душевые, банно-оздоровительные комплексы
Типовой проект 284-4-112.86Типовой проект 284-4-112.86Типовой проект 284-4-112.86Типовой проект 284-4-112.86Типовой проект 284-4-112.86Типовой проект 284-4-112.86Типовой проект 284-4-112.86Типовой проект 284-4-112.86Типовой проект 284-4-112.86Типовой проект 284-4-112.86Типовой проект 284-4-112.86Типовой проект 284-4-112.86Типовой проект 284-4-112.86Типовой проект 284-4-112.86Типовой проект 284-4-112.86Типовой проект 284-4-112.86Типовой проект 284-4-112.86Типовой проект 284-4-112.86Типовой проект 284-4-112.86Типовой проект 284-4-112.86Типовой проект 284-4-112.86Типовой проект 284-4-112.86Типовой проект 284-4-112.86Типовой проект 284-4-112.86Типовой проект 284-4-112.86Типовой проект 284-4-112.86Типовой проект 284-4-112.86Типовой проект 284-4-112.86Типовой проект 284-4-112.86Типовой проект 284-4-112.86Типовой проект 284-4-112.86Типовой проект 284-4-112.86Типовой проект 284-4-112.86Типовой проект 284-4-112.86Типовой проект 284-4-112.86Типовой проект 284-4-112.86Типовой проект 284-4-112.86Типовой проект 284-4-112.86Типовой проект 284-4-112.86Типовой проект 284-4-112.86Типовой проект 284-4-112.86Типовой проект 284-4-112.86Типовой проект 284-4-112.86Типовой проект 284-4-112.86Типовой проект 284-4-112.86Типовой проект 284-4-112.86Типовой проект 284-4-112.86Типовой проект 284-4-112.86Типовой проект 284-4-112.86Типовой проект 284-4-112.86Типовой проект 284-4-112.86Типовой проект 284-4-112.86Типовой проект 284-4-112.86Типовой проект 284-4-112.86Типовой проект 284-4-112.86Типовой проект 284-4-112.86Типовой проект 284-4-112.86Типовой проект 284-4-112.86Типовой проект 284-4-112.86Типовой проект 284-4-112.86Типовой проект 284-4-112.86Типовой проект 284-4-112.86Типовой проект 284-4-112.86

© 2013 Ёшкин Кот :-) Карта сайта