Информационная система
«Ёшкин Кот»

Скачать базу одним архивом
Скачать обновления
История создания базы
Карта сайта

Скачать Типовой проект 224-4-10.84 Альбом III. Электротехнические чертежи

Дата актуализации: 10.08.2017

Типовой проект 224-4-10.84

Альбом III. Электротехнические чертежи

Обозначение: Типовой проект 224-4-10.84
Обозначение англ: 224-4-10.84
Статус:не определен законодательством
Название рус.:Альбом III. Электротехнические чертежи
Дата добавления в базу:01.09.2013
Дата актуализации:05.05.2017
Дата введения:04.04.1984
Оглавление:Титульный лист
Содержание альбома
Чертежи основного комплекта марки ЭО
   Общие данные
   Спецификация
   Расчетная схема питающих сетей
   План техподполья между осями 1 - 11
   План подвала между осями 7 - 19
   План техподполья между осями 16 - 25
   План техподполья между осями 1 - 11 (Вариант)
   План подвала между осями 7 - 19 (Вариант)
   План техподполья между осями 16 - 25 (Вариант)
   План 1 этажа между осями 1 - 11
   План 1 этажа между осями 9 - 17
   План 1 этажа между осями 16 - 25
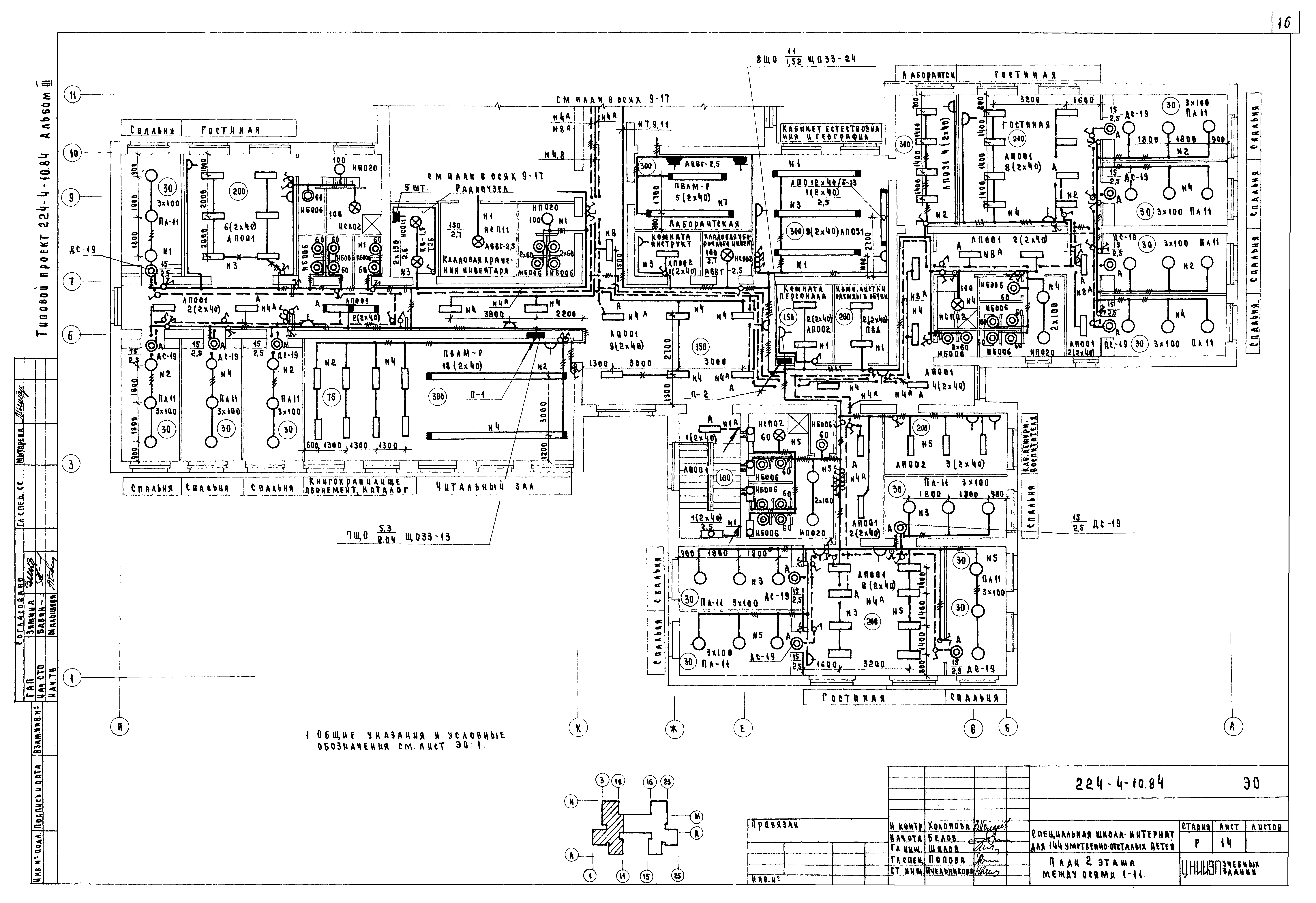
   План 2 этажа между осями 1 - 11
   План 2 этажа между осями 9 - 17
   План 2 этажа между осями 16 - 25
   Схемы управления освещением актового зала
   Размещение вводно-распределительного устройства
Чертежи основного комплекта марки ЭМ
   Общие данные
   Спецификация
   План техподполья между осями 4 - 8, 15 - 23
   План подвала между осями 7 - 19
   План подвала между осями 7 - 19 (Вариант)
   План 1 этажа между осями 1 - 11
   План 1 этажа между осями 9 - 17
   План 1 этажа между осями 16 - 25
   План 2 этажа между осями 1 - 11
   План 2 этажа между осями 9 - 17
   План 2 этажа между осями 16 - 25
   План кровли
   Кабельный журнал
   Расчетная таблица-схема распределительной сети
   Вводно-распределительное устройство. Опросный лист
Чертежи основного комплекта марки А
   Общие данные
   Спецификация
   Вентсистемы П2, В2. Схема функциональная
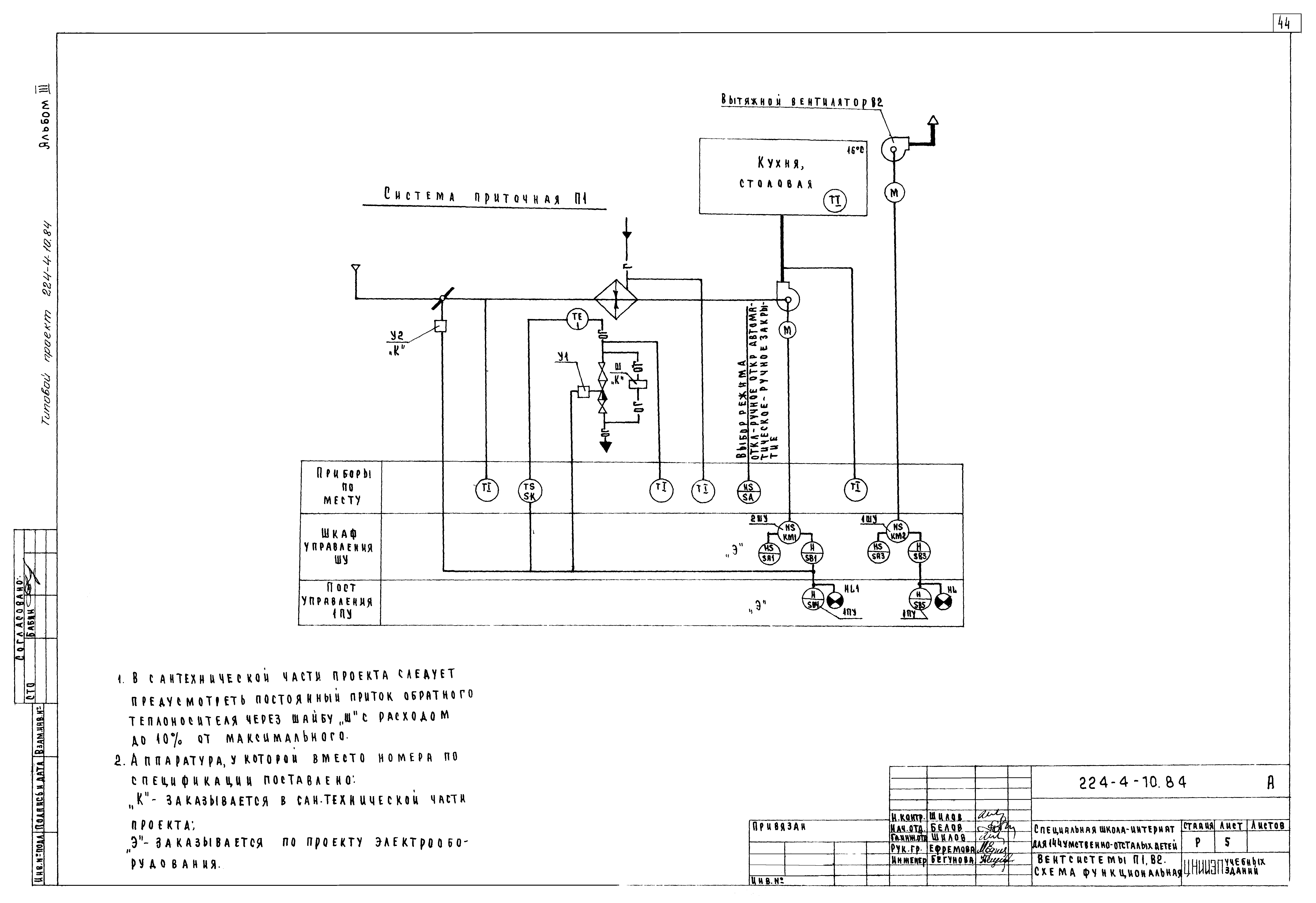
   Вентсистемы П1, В2. Схема функциональная
   Система приточная П2. Схема электрическая принципиальная управления
   Система приточная П2. Схема электрическая принципиальная регулирования температуры
   Система приточная П2. Схемы электрические принципиальные сигнализации и управления
   Вентсистемы П1, В2. Схемы электрические принципиальные управления питания
   Вентсистемы П1, В2. Схемы электрические принципиальные управления
   Вентсистемы П2, В5. Схема внешних проводок
   Вентсистемы П1, В2. Схема внешних проводок
   Системы приточные П1, П2. Венткамера. План прокладки контрольных сетей
Чертежи основного комплекта марки СС
   Общие данные
   Спецификация
   Схема систем связи и сигнализации. Условные обозначения
   План расположения сетей связи в техподполье в осях 1 - 10
   План расположения сетей связи в техподполье в осях 7 - 19
   План расположения сетей связи в техподполье в осях 7 - 19 (Вариант)
   План расположения сетей связи в техподполье в осях 15 - 25
   План расположения сетей связи на 1 этаже в осях 1 - 11
   План расположения сетей связи на 1 этаже в осях 9 - 17
   План расположения сетей связи на 1 этаже в осях 15 - 25
   План расположения сетей связи на 2 этаже в осях 1 - 11
   План расположения сетей связи на 2 этаже в осях 9 - 17
   План расположения сетей связи на 2 этаже в осях 15 - 25
   План расположения сетей связи на кровле
   Коробка для подключения телевизора
   Коробка для подключения микрофона
Разработан: ЦНИИЭП учебных зданий
Утверждён:18.02.1983 Госгражданстрой (Gosgrazhdanstroy 54)
Расположен в:Техническая документация Строительство Справочные документы Типовые строительные конструкции, изделия и узлы Общероссийский строительный каталог Защитные сооружения гражданской обороны Типовые проекты защитных сооружений гражданской обороны для жилищно-гражданского строительства Для строительства в городах и поселках городского типа Встроенные помещения, приспосабливаемые под противорадиационные укрытия в общественных зданиях Противорадиационные укрытия в школах и внешкольных учреждениях Общественные здания в городах и поселках городского типа Школы и внешкольные учреждения Специализированные школы-интернаты
Типовой проект 224-4-10.84Типовой проект 224-4-10.84Типовой проект 224-4-10.84Типовой проект 224-4-10.84Типовой проект 224-4-10.84Типовой проект 224-4-10.84Типовой проект 224-4-10.84Типовой проект 224-4-10.84Типовой проект 224-4-10.84Типовой проект 224-4-10.84Типовой проект 224-4-10.84Типовой проект 224-4-10.84Типовой проект 224-4-10.84Типовой проект 224-4-10.84Типовой проект 224-4-10.84Типовой проект 224-4-10.84Типовой проект 224-4-10.84Типовой проект 224-4-10.84Типовой проект 224-4-10.84Типовой проект 224-4-10.84Типовой проект 224-4-10.84Типовой проект 224-4-10.84Типовой проект 224-4-10.84Типовой проект 224-4-10.84Типовой проект 224-4-10.84Типовой проект 224-4-10.84Типовой проект 224-4-10.84Типовой проект 224-4-10.84Типовой проект 224-4-10.84Типовой проект 224-4-10.84Типовой проект 224-4-10.84Типовой проект 224-4-10.84Типовой проект 224-4-10.84Типовой проект 224-4-10.84Типовой проект 224-4-10.84Типовой проект 224-4-10.84Типовой проект 224-4-10.84Типовой проект 224-4-10.84Типовой проект 224-4-10.84Типовой проект 224-4-10.84Типовой проект 224-4-10.84Типовой проект 224-4-10.84Типовой проект 224-4-10.84Типовой проект 224-4-10.84Типовой проект 224-4-10.84Типовой проект 224-4-10.84Типовой проект 224-4-10.84Типовой проект 224-4-10.84Типовой проект 224-4-10.84Типовой проект 224-4-10.84Типовой проект 224-4-10.84Типовой проект 224-4-10.84Типовой проект 224-4-10.84Типовой проект 224-4-10.84Типовой проект 224-4-10.84Типовой проект 224-4-10.84Типовой проект 224-4-10.84Типовой проект 224-4-10.84Типовой проект 224-4-10.84Типовой проект 224-4-10.84Типовой проект 224-4-10.84Типовой проект 224-4-10.84Типовой проект 224-4-10.84Типовой проект 224-4-10.84Типовой проект 224-4-10.84Типовой проект 224-4-10.84Типовой проект 224-4-10.84Типовой проект 224-4-10.84Типовой проект 224-4-10.84Типовой проект 224-4-10.84

© 2013 Ёшкин Кот :-) Карта сайта