Информационная система
«Ёшкин Кот»

Скачать базу одним архивом
Скачать обновления
История создания базы
Карта сайта

Скачать Типовой проект 252-3-26 Альбом X. Часть 1. Узлы. Узлы общестроительных и архитектурных решений

Дата актуализации: 10.08.2017

Типовой проект 252-3-26

Альбом X. Часть 1. Узлы. Узлы общестроительных и архитектурных решений

Обозначение: Типовой проект 252-3-26
Обозначение англ: 252-3-26
Статус:не определен законодательством
Название рус.:Альбом X. Часть 1. Узлы. Узлы общестроительных и архитектурных решений
Дата добавления в базу:01.09.2013
Дата актуализации:05.05.2017
Дата введения:25.09.1980
Оглавление:Обложка
Титульный лист
Заглавный лист
Узлы №1, 2, 3, 4
Узлы №5, 6, 7, 8
Узлы №9, 10, 11
Узлы №12, 13 ,14, 15
Выход на кровлю. План, фасады, разрез
Барьеры БГ-1; БГ-2; БГ-3; вешалки ВП-1; ВП-2; ПДС
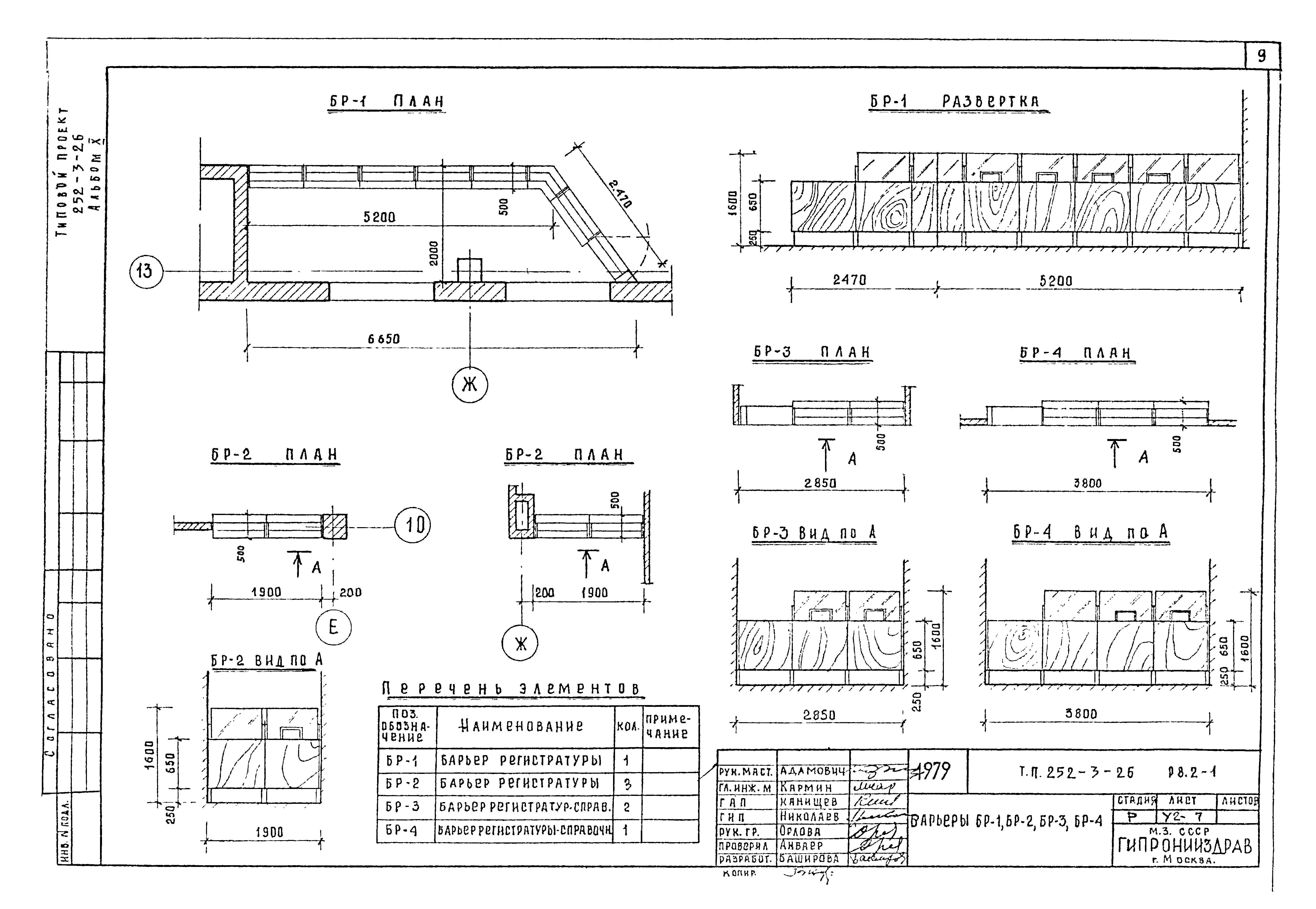
Барьеры БР-1; БР-2; БР-3; БР-4
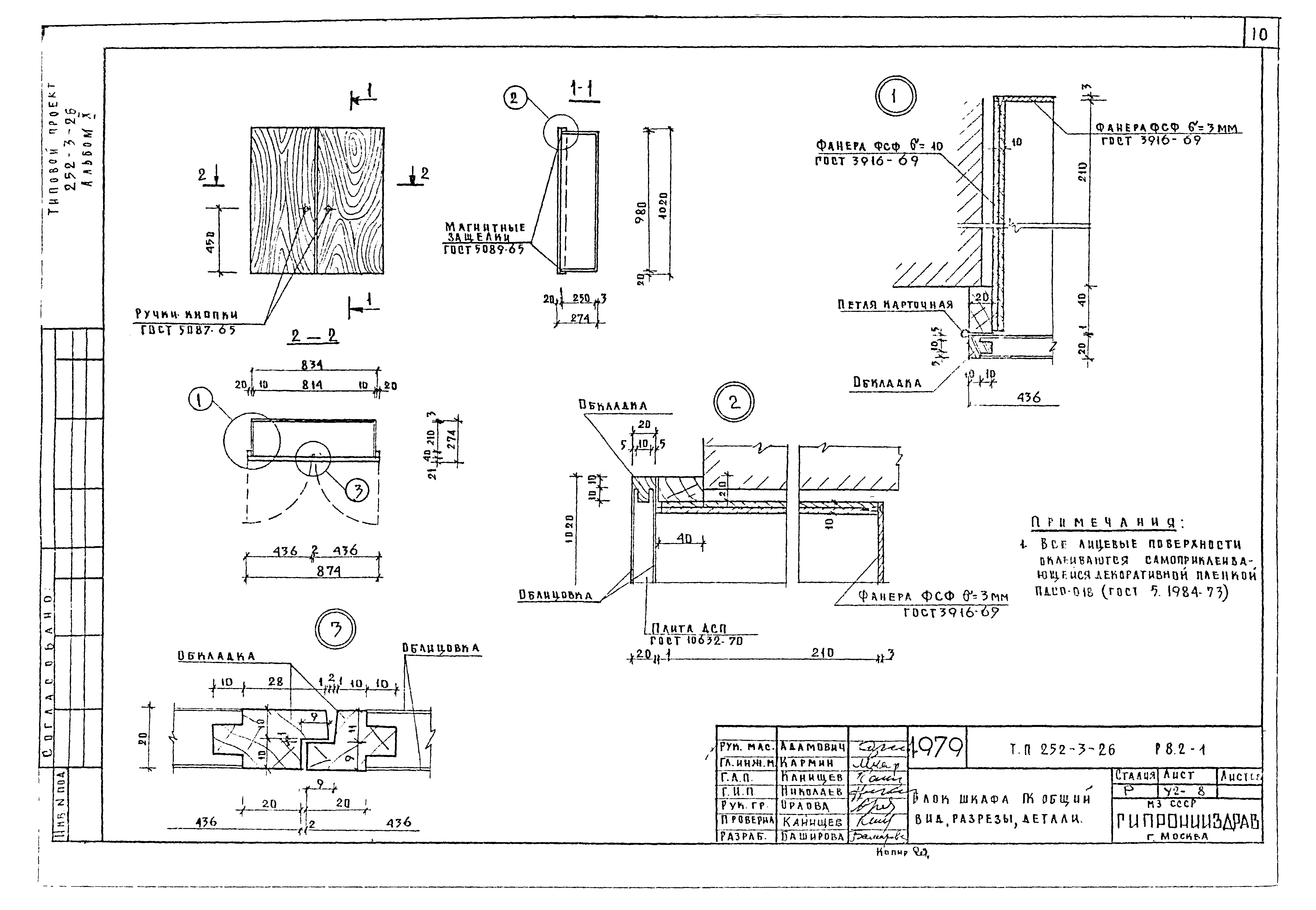
Блок шкафа ПК. Общий вид, разрезы, детали
Узлы №16, 17
Узлы №18, 19
Узел №20
Узлы №21, 22 и 23
Вентшахты на кровле
Узлы вентшахты
Молниезащита блоков "А", "Б", "В"
Молниезащита блока "Г"
Люк монтажный 800х800
Люк монтажный 1200х1200
Установка фундаментных плит под вентиляторы
Схемы крепления стеновых панелей к элементам каркаса в блоках А, Б, В
Установка вибрирующих плит под насосы
Разработан: ГипроНИИздрав Минздрава СССР
Утверждён:15.12.1977 Министерство здравоохранения СССР (USSR Ministry of Health Care 1112)
Расположен в:Техническая документация Строительство Справочные документы Типовые строительные конструкции, изделия и узлы Общероссийский строительный каталог Защитные сооружения гражданской обороны Типовые проекты защитных сооружений гражданской обороны для жилищно-гражданского строительства Для строительства в городах и поселках городского типа Встроенные помещения, приспосабливаемые под противорадиационные укрытия в общественных зданиях Противорадиационные укрытия в лечебно-профилактических учреждениях Общественные здания в городах и поселках городского типа Лечебно-профилактические учреждения Диспансеры
Типовой проект 252-3-26Типовой проект 252-3-26Типовой проект 252-3-26Типовой проект 252-3-26Типовой проект 252-3-26Типовой проект 252-3-26Типовой проект 252-3-26Типовой проект 252-3-26Типовой проект 252-3-26Типовой проект 252-3-26Типовой проект 252-3-26Типовой проект 252-3-26Типовой проект 252-3-26Типовой проект 252-3-26Типовой проект 252-3-26Типовой проект 252-3-26Типовой проект 252-3-26Типовой проект 252-3-26Типовой проект 252-3-26Типовой проект 252-3-26Типовой проект 252-3-26Типовой проект 252-3-26Типовой проект 252-3-26Типовой проект 252-3-26Типовой проект 252-3-26Типовой проект 252-3-26

© 2013 Ёшкин Кот :-) Карта сайта