Скачать Серия 3.501-180.95 Выпуск 0. Материалы для проектированияДата актуализации: 10.08.2017 Серия 3.501-180.95
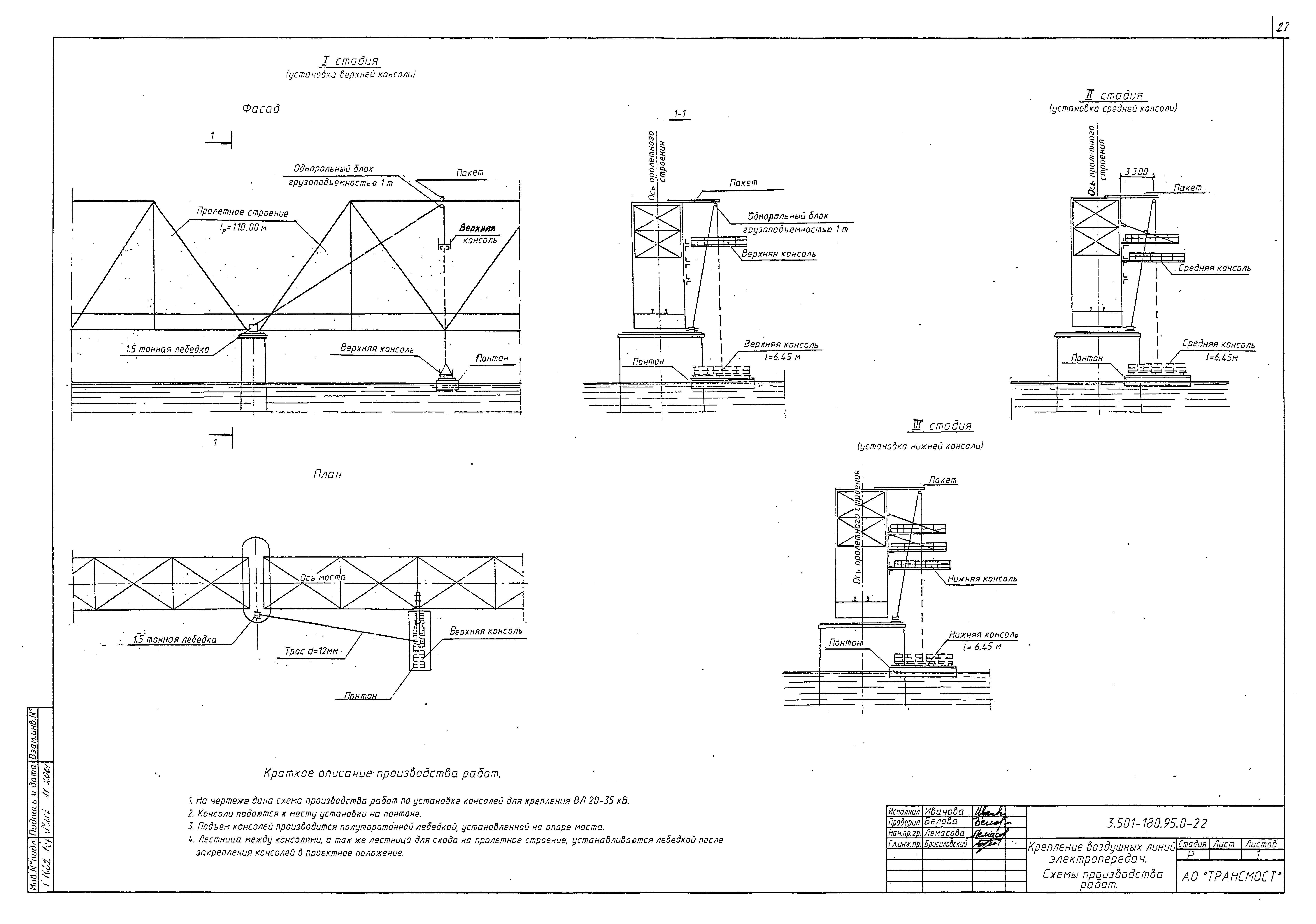
Выпуск 0. Материалы для проектированияОбозначение: | Серия 3.501-180.95 | Обозначение англ: | Series 3.501-180.95 | Статус: | cправочные материалы, мп, тпр | Название рус.: | Выпуск 0. Материалы для проектирования | Дата добавления в базу: | 01.09.2013 | Дата актуализации: | 05.05.2017 | Дата введения: | 01.01.1995 | Оглавление: | 3.501-180.95.0-ПЗ Пояснительная записка 3.501-180.95.0-1НИ Номенклатура железобетонных изделий 3.501-180.95.0-2 Лестничные сходы. Схемы раскладки блоков 3.501-180.95.0-3 Лестничные сходы. Общий вид 3.501-180.95.0-4 Лестничные сходы. Перила 3.501-180.95.0-5 Лестничные сходы. Схемы производства работ 3.501-180.95.0-6 Переходные мостики. Схемы 3.501-180.95.0-7 Переходные мостики. Перила 3.501-180.95.0-8 Переходные мостики между насыпями. Общий вид при междупутье 26 м 3.501-180.95.0-9 Переходные мостики между насыпями. Общий вид при междупутье 21 м и разной высоте насыпей 3.501-180.95.0-10 Переходные мостики между насыпями. Общий вид при междупутье 35 м 3.501-180.95.0-11 Переходные мостики между насыпями. Схемы производства работ 3.501-180.95.0-12 Переходные мостики между опорами мостов. Общий вид железобетонного мостика 3.501-180.95.0-13 Переходные мостики между опорами мостов. Общий вид металлического мостика 3.501-180.95.0-14 Переходные мостики между опорами мостов. Металлические пролетные строения длиной 19,5; 21,0 и 22,5 м 3.501-180.95.0-15 Переходные мостики между опорами мостов. Металлические пролетные строения длиной 24,0; 25,5 и 27,0 м 3.501-180.95.0-16 Переходные мостики между опорами мостов. Металлические пролетные строения. Детали 3.501-180.95.0-17 Переходные мостики между опорами мостов. Схемы производства работ 3.501-180.95.0-18 Крепление воздушных линий электропередач. Схемы 3.501-180.95.0-19 Крепление воздушных линий электропередач. Схема 1 3.501-180.95.0-20 Крепление воздушных линий электропередач. Схема 2 3.501-180.95.0-21 Крепление воздушных линий электропередач. Детали крепления 3.501-180.95.0-22 Крепление воздушных линий электропередач. Схемы производства работ 3.501-180.95.0-23 Заземление мостов 3.501-180.95.0-24 Крепление элементов освещения 3.501-180.95.0-25 Компрессорная станция и разводящая сеть на однопутном мосту длиной 500 м 3.501-180.95.0-26 Компрессорная станция и разводящая сеть на двухпутном мосту длиной 500 м | Разработан: | АО Трансмост
| Утверждён: | МПС РФ (Russian Federation Ministry of Railroads )
| Расположен в: |
|
                             
|