Скачать Серия ТДК-Н-1-75/2 Выпуск 5. Сборные железобетонные конструкции аварийных и эвакуационных выходов, галерей, грузовых въездов и рамп. Рабочие чертежиДата актуализации: 10.08.2017 Серия ТДК-Н-1-75/2
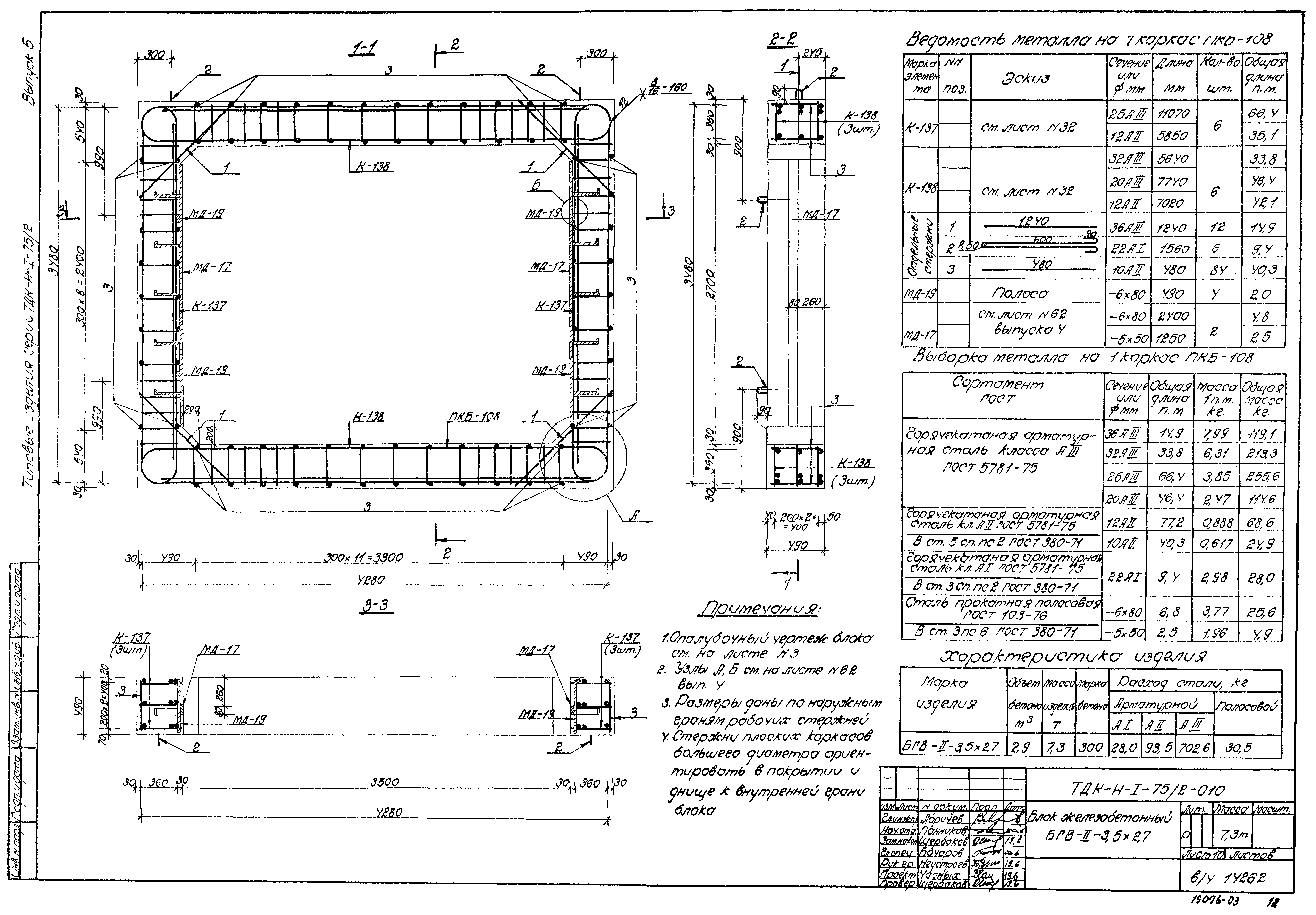
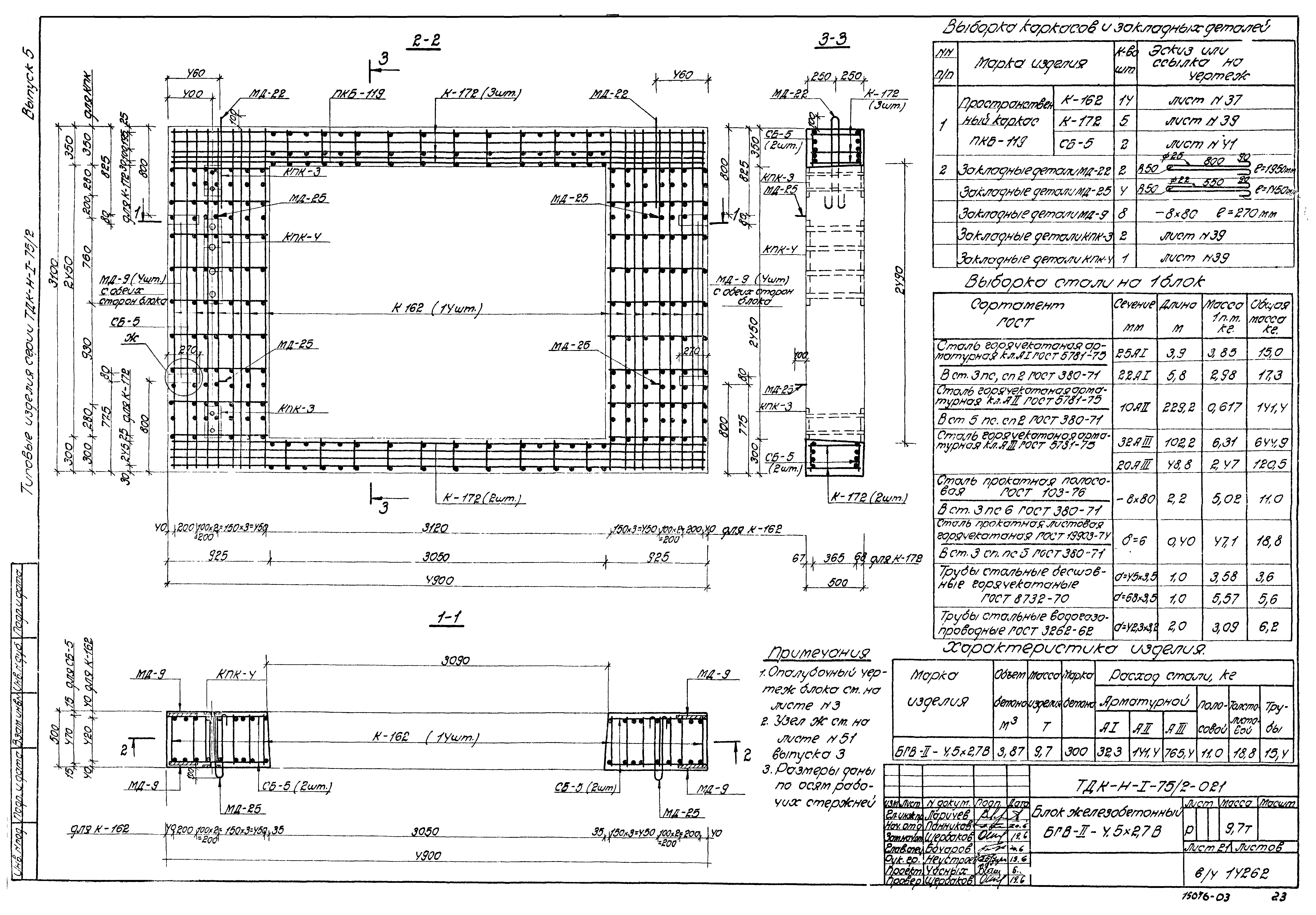
Выпуск 5. Сборные железобетонные конструкции аварийных и эвакуационных выходов, галерей, грузовых въездов и рамп. Рабочие чертежиОбозначение: | Серия ТДК-Н-1-75/2 | Обозначение англ: | Series ТДК-Н-1-75/2 | Статус: | действует | Название рус.: | Выпуск 5. Сборные железобетонные конструкции аварийных и эвакуационных выходов, галерей, грузовых въездов и рамп. Рабочие чертежи | Дата добавления в базу: | 01.09.2013 | Дата актуализации: | 05.05.2017 | Оглавление: | Титульный лист Ведомость чертежей выпуска 5 Сборные железобетонные блоки аварийных выходов, грузовых въездов и рамп. Пояснительная записка Сборные железобетонные блоки аварийных выходов, грузовых въездов и рамп. Опалубочные чертежи Блок железобетонный БВА-IV, V-0,9х1,3 Блок железобетонный БВА-III-0,9х1,3 Блок железобетонный БВА-II-0,9х1,3 Блок железобетонный БГВ-V-3,5х2,7 Блок железобетонный БГВ-IV-3,5х2,7 Блок железобетонный БГВ-III-3,5х2,7 Блок железобетонный БГВ-II-3,5х2,7 Блок железобетонный БГВ-V-4,5х2,7 Блок железобетонный БГВ-IV-4,5х2,7 Блок железобетонный БГВ-III-4,5х2,7 Блок железобетонный БГВ-V-3,5х2,7 В Блок железобетонный БГВ-IV-3,5х2,7 В Блок железобетонный БГВ-III-3,5х2,7 В Блок железобетонный БГВ-II-3,5х2,7 В Блок железобетонный БГВ-V-4,5х2,7 В Блок железобетонный БГВ-IV-4,5х2,7 В Блок железобетонный БГВ-III-4,5х2,7 В Блок железобетонный БГВ-II-4,5х2,7 В Блок железобетонный БГВ-3,0х2,7 Блок железобетонный БГВ-4,5х2,7 ПВ Блок железобетонный БГВ-2,4х2,7 Блок железобетонный БГВ-3,5х2,7 ПВ Блок железобетонный БР-3,0х2,0 Блок железобетонный БР-3,0х1,0 Блок железобетонный БР-2,4х2,0 Блок железобетонный БР-2,4х1,0 Каркасы плоские К-127 - К-131 Каркасы плоские К-132 - К-136 Каркасы плоские К-137 - К-141 Каркасы плоские К-142 - К-145 Каркасы плоские К-147 - К-151 Каркасы плоские К-152 - К-156 Каркасы плоские К-157 - К-161 Каркасы плоские К-162 - К-166 Каркасы плоские К-167 - К-171 Каркасы плоские К-172, К-173. Конструкции пропуска коммуникации КПК-3, КПК-4 Сетки С-8 - С-12 Сетки С-13, СБ-4 и СБ-5 Каркасы плоские К-388 - К-393 | Разработан: | В/ч 14262
| Утверждён: | 31.01.1977 Госстрой СССР (Государственный комитет Совета Министров СССР по делам строительства) (USSR Gosstroy 1)
| Расположен в: |
|
                                           
|