Информационная система
«Ёшкин Кот»

Скачать базу одним архивом
Скачать обновления
История создания базы
Карта сайта

Скачать Серия ТДК-Н-1-75/2 Выпуск 2. Часть II. Монолитные участки. Монолитные участки № 11 - 28. Рабочие чертежи

Дата актуализации: 10.08.2017

Серия ТДК-Н-1-75/2

Выпуск 2. Часть II. Монолитные участки. Монолитные участки № 11 - 28. Рабочие чертежи

Обозначение: Серия ТДК-Н-1-75/2
Обозначение англ: Series ТДК-Н-1-75/2
Статус:действует
Название рус.:Выпуск 2. Часть II. Монолитные участки. Монолитные участки № 11 - 28. Рабочие чертежи
Дата добавления в базу:01.09.2013
Дата актуализации:05.05.2017
Дата введения:30.11.1977
Оглавление:Титульный лист
Ведомость чертежей части II выпуска 2
Монолитный участок №11 в убежищах V класса. План А-А. Сечения 1-1, 2-2
Монолитный участок №11 в убежищах IV класса. План А-А. Сечения 1-1, 2-2
Монолитный участок №11 в убежищах III класса. План А-А. Сечения 1-1, 2-2
Монолитный участок №11 в убежищах II класса. План А-А. Сечения 1-1, 2-2
Монолитный участок №12 в убежищах V класса. План А-А. Сечения 1-1, 2-2
Монолитный участок №12 в убежищах IV класса. План А-А. Сечения 1-1, 2-2
Монолитный участок №12 в убежищах II, III классов. План А-А. Сечения 1-1, 2-2
Монолитный участок №13. План А-А. Сечения 1-1, 2-2
Монолитный участок №14 в убежищах II класса. План А-А
Монолитный участок №14 в убежищах II класса. Сечение 1-1
Монолитный участок №14 в убежищах II класса. Сечения 2-2, 3-3
Монолитный участок №15 в убежищах II класса. План А-А
Монолитный участок №15 в убежищах II класса. Сечения 1-1, 2-2
Монолитный участок №16. План А-А
Монолитный участок №16. Сечения 1-1, 2-2
Монолитный участок №16. Сечение 3-3
Монолитный участок №17 в убежищах V класса. План А-А. Сечения 1-1, 2-2
Монолитный участок №17 в убежищах IV класса. План А-А. Сечения 1-1, 2-2
Монолитный участок №17 в убежищах III класса. План А-А. Сечения 1-1, 2-2
Монолитный участок №17 в убежищах II класса. План А-А. Сечения 1-1, 2-2
Монолитные участки №18, 18а. План А-А. Сечения 1-1, 2-2
Монолитный участок №19. План А-А
Монолитный участок №19. Сечения 1-1, 2-2
Монолитный участок №19. Сечение 3-3
Монолитный участок №20. План А-А. Сечение 1-1
Монолитный участок №20. План А-А. Сечение 2-2
Монолитный участок №21. Планы плиты перекрытия. Планы раскладок сеток
Монолитный участок №22. План плиты покрытия. Планы раскладок сеток
Монолитный участок №23 в убежищах V, IV классов. План А-А. Сечения 1-1, 2-2
Монолитный участок №23 в убежищах III класса. План А-А. Сечения 1-1, 2-2
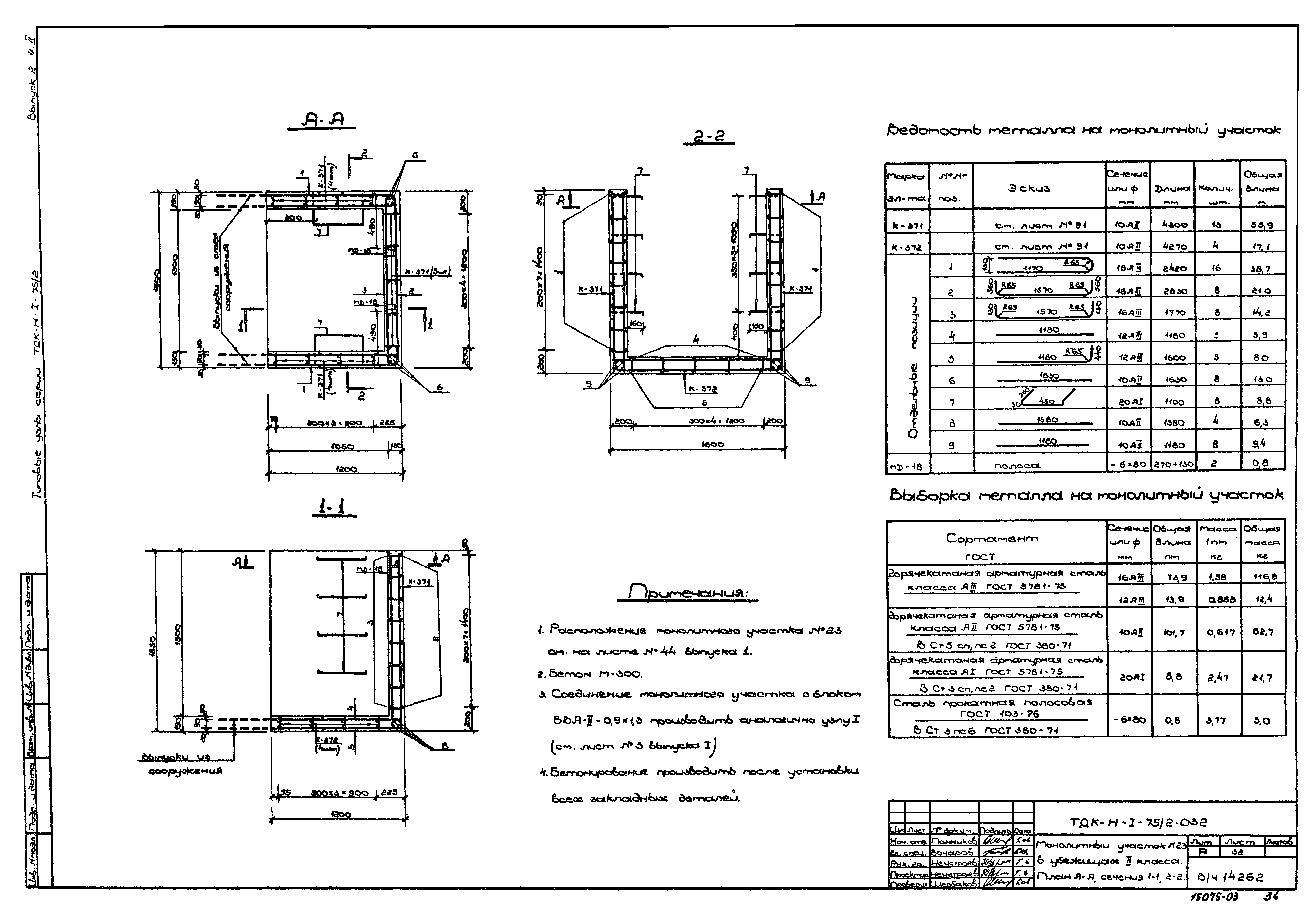
Монолитный участок №23 в убежищах II класса. План А-А. Сечения 1-1, 2-2
Монолитный участок №24, 28 в убежищах V, IV классов. План А-А. Сечения 1-1, 2-2
Монолитный участок №25 в убежищах V, IV классов. План А-А. Сечения 1-1, 2-2. Вид А
Монолитный участок №25 в убежищах III, II классов. План А-А. Сечения 1-1, 2-2
Монолитный участок №26 в убежищах V, IV классов. План А-А. Сечения 1-1, 2-2
Монолитный участок №26 в убежищах III класса. План А-А. Сечения 1-1, 2-2
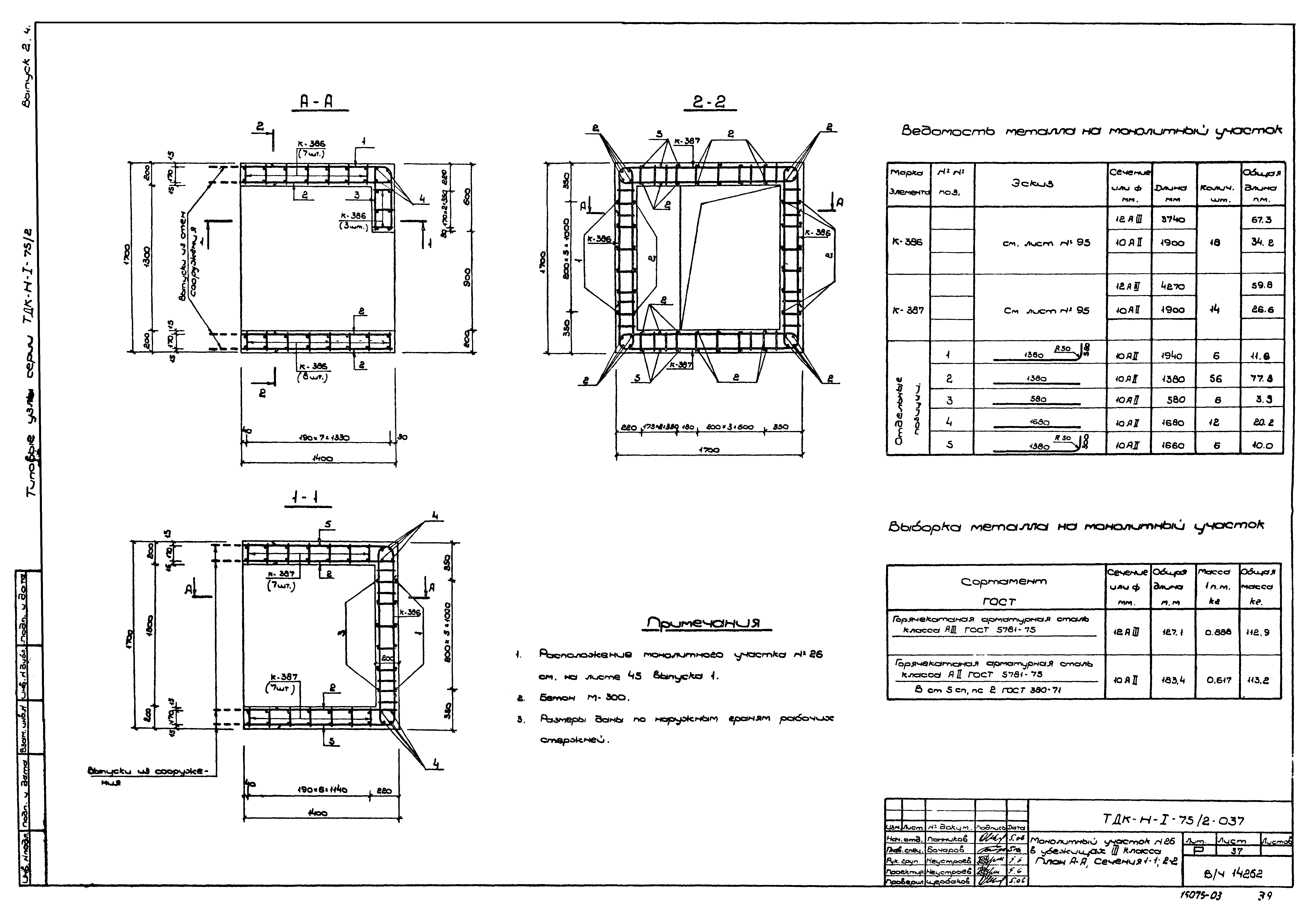
Монолитный участок №26 в убежищах II класса. План А-А. Сечения 1-1, 2-2
Монолитный участок №27 в убежищах V, IV классов. План А-А. Сечения 1-1, 2-2
Монолитный участок №27 в убежищах III класса. План А-А. Сечения 1-1, 2-2
Монолитный участок №27 в убежищах II класса. План А-А. Сечения 1-1, 2-2
Каркасы плоские К-174 - К-177
Каркасы плоские К-178 - К-181
Каркасы плоские К-182 - К-185
Каркасы плоские К-186 - К-189
Каркасы плоские К-190 - К-193
Каркасы плоские К-194 - К-197
Каркасы плоские К-198 - К-201
Каркасы плоские К-202 - К-205
Каркасы плоские К-206 - К-209
Каркасы плоские К-210 - К-213
Каркасы плоские К-214 - К-217
Каркасы плоские К-218 - К-221
Каркасы плоские К-222 - К-225
Каркасы плоские К-226 - К-229
Каркасы плоские К-230 - К-233
Каркасы плоские К-234 - К-237
Каркасы плоские К-238 - К-241
Каркасы плоские К-242 - К-245
Каркасы плоские К-246 - К-249
Каркасы плоские К-250 - К-253
Каркасы плоские К-254 - К-257
Каркасы плоские К-258 - К-261
Каркасы плоские К-262 - К-265
Каркасы плоские К-266 - К-269
Каркасы плоские К-270 - К-273
Каркасы плоские К-274 - К-277
Каркасы плоские К-278 - К-281
Каркасы плоские К-282 - К-285
Каркасы плоские К-286 - К-289
Каркасы плоские К-290 - К-293
Каркасы плоские К-294 - К-297
Каркасы плоские К-299 - К-301
Каркасы плоские К-302 - К-305
Каркасы плоские К-306 - К-309
Каркасы плоские К-310 - К-313
Каркасы плоские К-314 - К-317
Каркасы плоские К-318 - К-321
Каркасы плоские К-322 - К-325
Каркасы плоские К-326 - К-329
Каркасы плоские К-330 - К-333
Каркасы плоские К-334 - К-337
Каркасы плоские К-338 - К-341
Каркасы плоские К-342 - К-345
Каркасы плоские К-346 - К-349
Каркасы плоские К-350 - К-353
Каркасы плоские К-354 - К-357
Каркасы плоские К-358 - К-361
Каркасы плоские К-362 - К-365
Каркасы плоские К-366 - К-369
Каркасы плоские К-370 - К-373
Каркасы плоские К-374 - К-377
Каркасы плоские К-378 - К-381
Каркасы плоские К-382 - К-385
Каркасы плоские К-386 - К-387. Сетки С-15, С-16
Сетка С-14
Разработан: В/ч 14262
Утверждён:31.01.1977 Госстрой СССР (Государственный комитет Совета Министров СССР по делам строительства) (USSR Gosstroy 1)
Расположен в:Техническая документация Строительство Справочные документы Типовые строительные конструкции, изделия и узлы Общероссийский строительный каталог Защитные сооружения гражданской обороны Конструкции и инженерное оборудование Конструкции и изделия
Серия ТДК-Н-1-75/2Серия ТДК-Н-1-75/2Серия ТДК-Н-1-75/2Серия ТДК-Н-1-75/2Серия ТДК-Н-1-75/2Серия ТДК-Н-1-75/2Серия ТДК-Н-1-75/2Серия ТДК-Н-1-75/2Серия ТДК-Н-1-75/2Серия ТДК-Н-1-75/2Серия ТДК-Н-1-75/2Серия ТДК-Н-1-75/2Серия ТДК-Н-1-75/2Серия ТДК-Н-1-75/2Серия ТДК-Н-1-75/2Серия ТДК-Н-1-75/2Серия ТДК-Н-1-75/2Серия ТДК-Н-1-75/2Серия ТДК-Н-1-75/2Серия ТДК-Н-1-75/2Серия ТДК-Н-1-75/2Серия ТДК-Н-1-75/2Серия ТДК-Н-1-75/2Серия ТДК-Н-1-75/2Серия ТДК-Н-1-75/2Серия ТДК-Н-1-75/2Серия ТДК-Н-1-75/2Серия ТДК-Н-1-75/2Серия ТДК-Н-1-75/2Серия ТДК-Н-1-75/2Серия ТДК-Н-1-75/2Серия ТДК-Н-1-75/2Серия ТДК-Н-1-75/2Серия ТДК-Н-1-75/2Серия ТДК-Н-1-75/2Серия ТДК-Н-1-75/2Серия ТДК-Н-1-75/2Серия ТДК-Н-1-75/2Серия ТДК-Н-1-75/2Серия ТДК-Н-1-75/2Серия ТДК-Н-1-75/2Серия ТДК-Н-1-75/2Серия ТДК-Н-1-75/2Серия ТДК-Н-1-75/2Серия ТДК-Н-1-75/2Серия ТДК-Н-1-75/2Серия ТДК-Н-1-75/2Серия ТДК-Н-1-75/2Серия ТДК-Н-1-75/2Серия ТДК-Н-1-75/2Серия ТДК-Н-1-75/2Серия ТДК-Н-1-75/2Серия ТДК-Н-1-75/2Серия ТДК-Н-1-75/2Серия ТДК-Н-1-75/2Серия ТДК-Н-1-75/2Серия ТДК-Н-1-75/2Серия ТДК-Н-1-75/2Серия ТДК-Н-1-75/2Серия ТДК-Н-1-75/2Серия ТДК-Н-1-75/2Серия ТДК-Н-1-75/2Серия ТДК-Н-1-75/2Серия ТДК-Н-1-75/2Серия ТДК-Н-1-75/2Серия ТДК-Н-1-75/2Серия ТДК-Н-1-75/2Серия ТДК-Н-1-75/2Серия ТДК-Н-1-75/2Серия ТДК-Н-1-75/2Серия ТДК-Н-1-75/2Серия ТДК-Н-1-75/2Серия ТДК-Н-1-75/2Серия ТДК-Н-1-75/2Серия ТДК-Н-1-75/2Серия ТДК-Н-1-75/2Серия ТДК-Н-1-75/2Серия ТДК-Н-1-75/2Серия ТДК-Н-1-75/2Серия ТДК-Н-1-75/2Серия ТДК-Н-1-75/2Серия ТДК-Н-1-75/2Серия ТДК-Н-1-75/2Серия ТДК-Н-1-75/2Серия ТДК-Н-1-75/2Серия ТДК-Н-1-75/2Серия ТДК-Н-1-75/2Серия ТДК-Н-1-75/2Серия ТДК-Н-1-75/2Серия ТДК-Н-1-75/2Серия ТДК-Н-1-75/2Серия ТДК-Н-1-75/2Серия ТДК-Н-1-75/2Серия ТДК-Н-1-75/2Серия ТДК-Н-1-75/2Серия ТДК-Н-1-75/2Серия ТДК-Н-1-75/2Серия ТДК-Н-1-75/2

© 2013 Ёшкин Кот :-) Карта сайта