Скачать Типовой проект 273-30-62/80 Альбом I. Часть 2. Архитектурно-строительные, технологические, санитарно-технические и электротехнические чертежиДата актуализации: 10.08.2017 Типовой проект 273-30-62/80
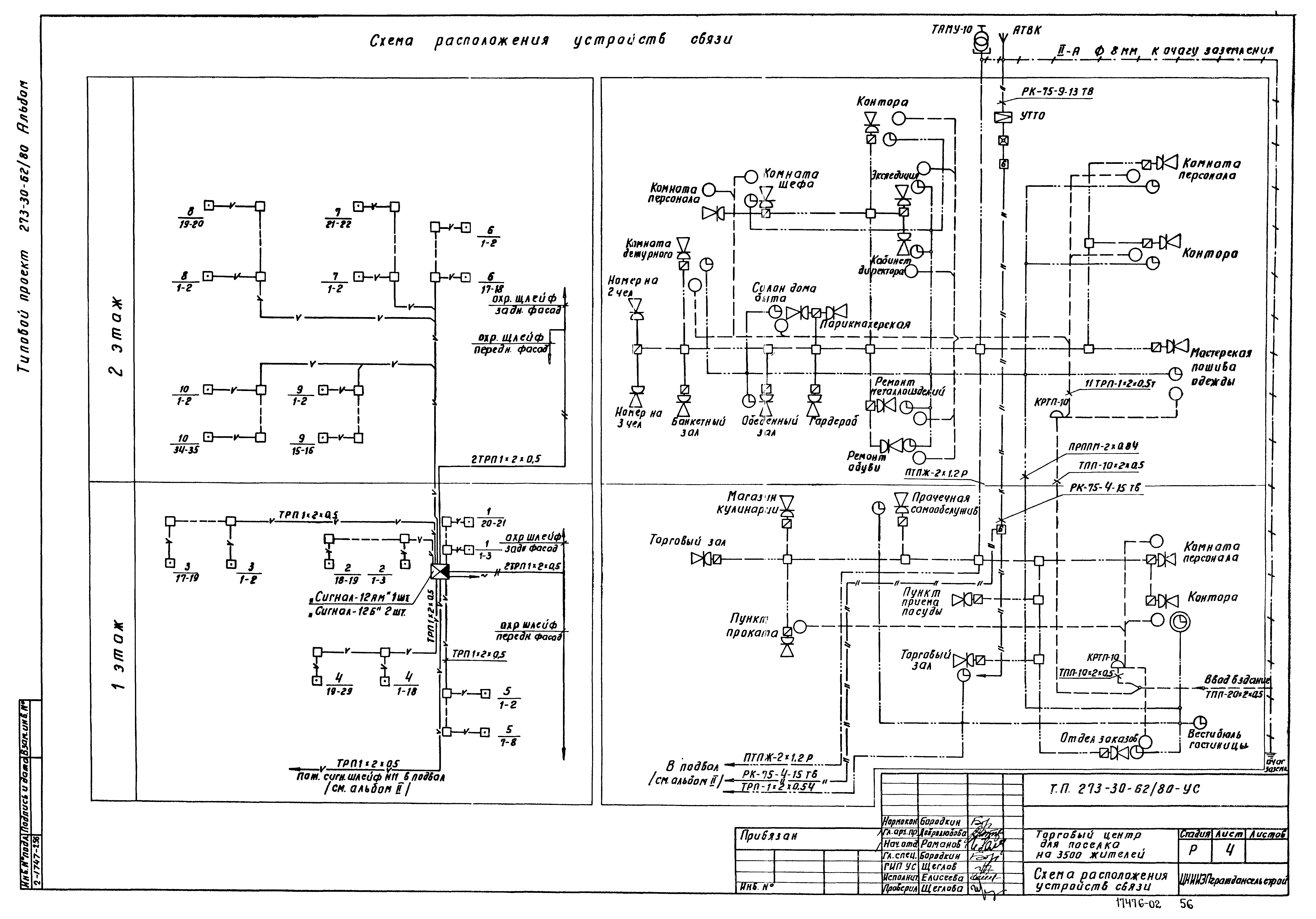
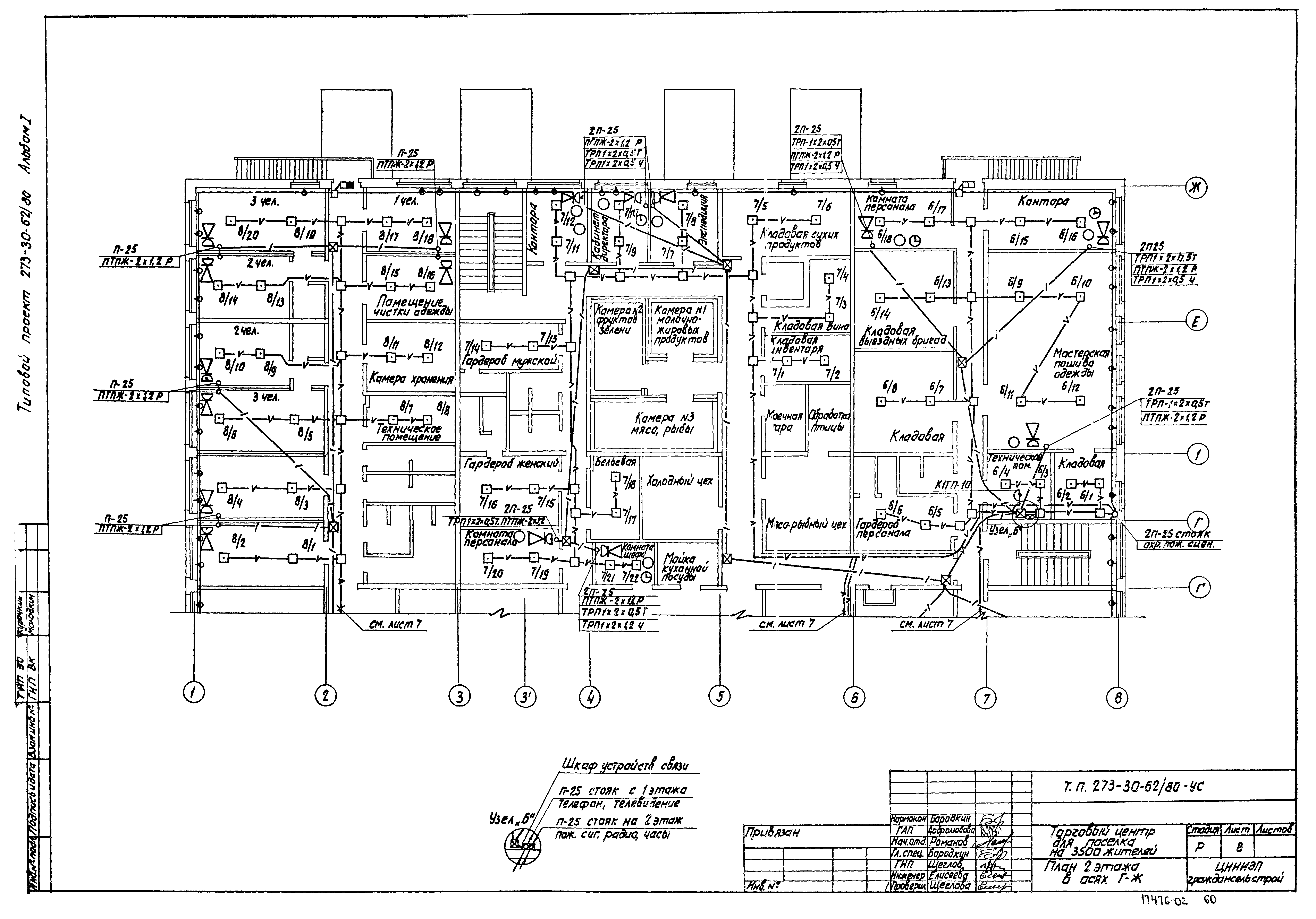
Альбом I. Часть 2. Архитектурно-строительные, технологические, санитарно-технические и электротехнические чертежиОбозначение: | Типовой проект 273-30-62/80 | Обозначение англ: | 273-30-62/80 | Статус: | не определен законодательством | Название рус.: | Альбом I. Часть 2. Архитектурно-строительные, технологические, санитарно-технические и электротехнические чертежи | Дата добавления в базу: | 01.09.2013 | Дата актуализации: | 05.05.2017 | Дата введения: | 01.09.1981 | Оглавление: | Чертежи основного комплекта марки ОВ Заглавный лист Сводная спецификация План 1 этажа в осях Г - Ж План 1 этажа в осях А - Г План 2 этажа в осях Г - Ж План 2 этажа в осях А - Г Венткамера №1. План. Разрезы Венткамера №1. Спецификация. Схемы вентсистем В-2, В-3, В-4, В-9, ПЕ-1 Венткамера №2. Схема вентсистемы У-1 Схема системы теплоснабжения калориферов вентсистем П-1, П-2, П-3, У-1 Схема системы отопления Узлы управления №1 и №2 Схемы вентсистем В-1, В-5, В-6, В-7, В-8, В-10, В-11, В-12, В-13, В-14, В-15, В-16, В-17, ПЕ-2, ВЕ-1, ВЕ-2, ВЕ-3 Схемы вентсистем П-1, П-2, П-3 Звено прямого участка шовного асбестоцементного воздуховода Чертежи основного комплекта марки ВК Заглавный лист Спецификация План 1 этажа в осях А - Г План 1 этажа в осях Г - Ж План 2 этажа в осях А - Г План 2 этажа в осях Г - Ж Схема холодного водоснабжения Схема горячего водоснабжения Разрезы по бытовой канализации Разрезы по производственной канализации Разрезы по водостокам. Разрезы по производственной канализации Чертежи основного комплекта марки Г Заглавный лист. Выкопировка из плана 2 этажа в осях 5 - 6, Е - Д. Схема газопровода. Спецификация Чертежи основного комплекта марки Э Заглавный лист Спецификация на электроосвещение Спецификация на силовое электрооборудование Расчетная схема осветительной магистральной сети Расчетная схема силовой магистральной сети План осветительной сети 1 этажа в осях "А - Г" План осветительной сети 1 этажа в осях "Г - Ж" План осветительной сети 2 этажа в осях "А - Г" План осветительной сети 2 этажа в осях "Г - Ж" План силовой сети 1 этажа в осях "А - Г" План силовой сети 1 этажа в осях "Г - Ж" План силовой сети 2 этажа в осях "А - Г" План силовой сети 2 этажа в осях "Г - Ж" План силовой сети кровли Расчетная схема силовой групповой сети Расчетная схема осветительной групповой сети Опросный лист Чертежи основного комплекта марки УС Заглавный лист Пояснения к проекту Спецификация Схема расположения устройств связи План 1 этажа в осях А - Г План 1 этажа в осях Г - Ж План 2 этажа в осях А - Г План 2 этажа в осях Г - Ж Чертежи основного комплекта марки Тх Заглавный лист Спецификация технологического оборудования План I этажа в осях А - Г и 1 - 8 с расстановкой технологического оборудования План I этажа в осях Г - Ж и 1 - 8 с расстановкой технологического оборудования План II этажа в осях А - Г и 1 - 8 с расстановкой технологического оборудования План II этажа в осях Г - Ж и 1 - 8 с расстановкой технологического оборудования Фрагмент плана I этажа в осях А - Г и 2 - 8 с привязкой сантехнических и электротехнических подводов к оборудованию Фрагмент плана II этажа в осях Б - Г и 2 - 6 с привязкой сантехнических и электротехнических подводов к оборудованию Фрагмент плана II этажа в осях Г - Ж и 4 - 8 с привязкой сантехнических и электротехнических подводов к оборудованию Фрагмент плана дома быта с привязкой подводов к оборудованию. План местных вентотсосов в горячем цехе. План фундаментов в прачечной самообслуживания Чертежи основного комплекта марки Хл План холодильных камер магазина. Спецификация оборудования План холодильных установок столовой. Спецификация оборудования Схема монтажа холодильных установок магазина Схема монтажа фреоновых установок столовой Разрезы холодильных установок магазина. Установочный чертеж Чертежи основного комплекта марки АВ Заглавный лист Спецификация Функциональная схема П-1 (П-2, П-3) Принципиальная электрическая схема управления П-1 (П-2, П-3) Принципиальная электрическая схема регулирования П-1 (П-2, П-3) Схема подключений П-1 (П-2, П-3). Схема расположений П-1 (П-2, П-3) | Разработан: | ЦНИИЭП граждансельстрой
| Утверждён: | 06.11.1973 Госгражданстрой (Gosgrazhdanstroy 256)
| Расположен в: |
|
                                                                                  
|