Информационная система
«Ёшкин Кот»

Скачать базу одним архивом
Скачать обновления
История создания базы
Карта сайта

Скачать Типовой проект 271-13-85 Альбом I. Архитектурно-строительные чертежи. Санитарно-технические чертежи. Электротехнические чертежи

Дата актуализации: 10.08.2017

Типовой проект 271-13-85

Альбом I. Архитектурно-строительные чертежи. Санитарно-технические чертежи. Электротехнические чертежи

Обозначение: Типовой проект 271-13-85
Обозначение англ: 271-13-85
Статус:действует
Название рус.:Альбом I. Архитектурно-строительные чертежи. Санитарно-технические чертежи. Электротехнические чертежи
Дата добавления в базу:01.09.2013
Дата актуализации:05.05.2017
Оглавление:Обложка
Титульный лист
Чертежи основного комплекта марки АС
   Содержание альбома. Пояснительная записка
   Пояснительная записка
   Перечень нормативных материалов, применяемых в проекте. Условные обозначения. Состав проекта
   Блок 3. Экспликация помещений. Таблица технико-экономических и эксплуатационных показателей
   Блок 3. План подвала и лестницы в подвал
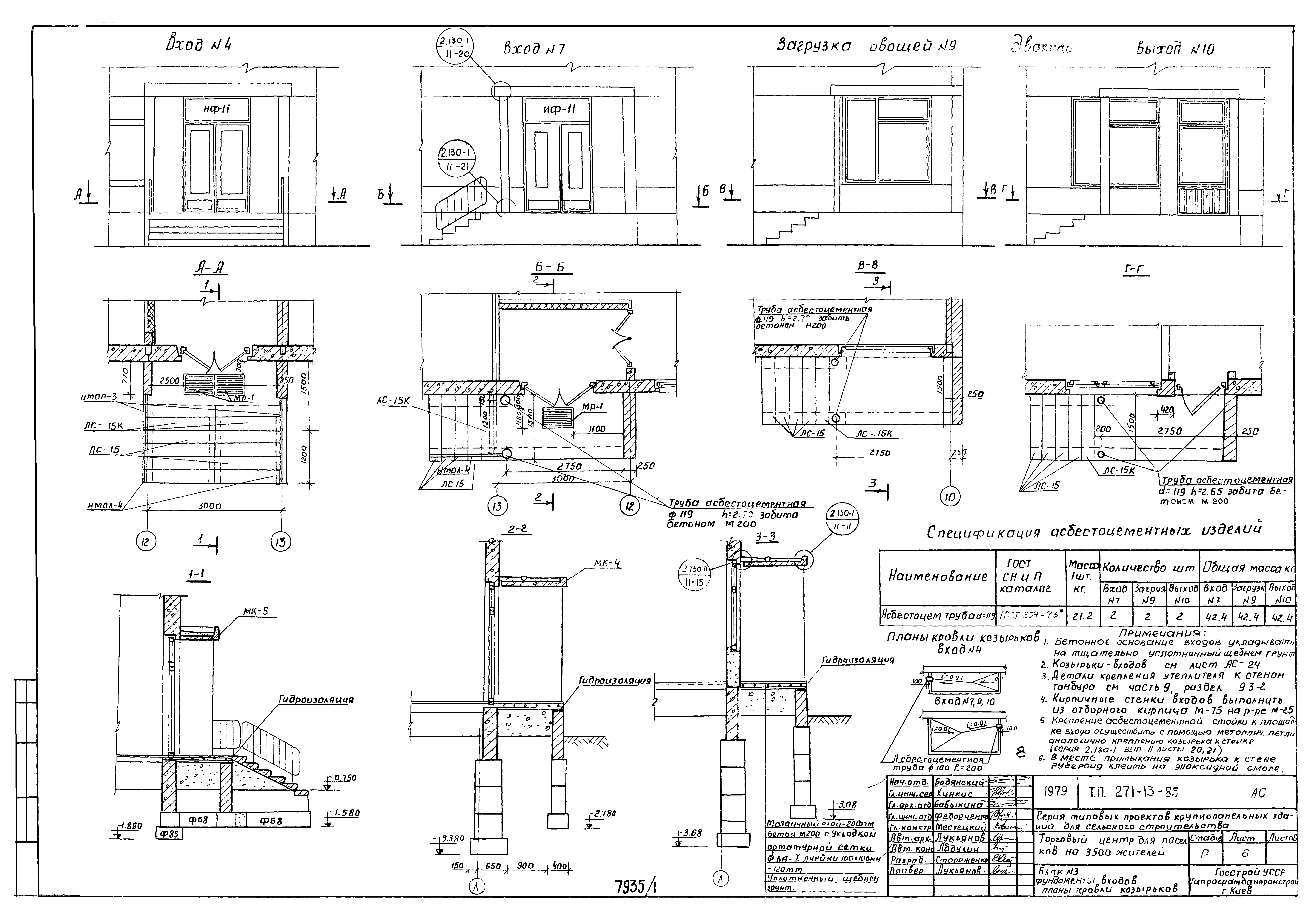
   Блок 3. Фрагменты входов. Планы кровли, козырьков
   Блок 3. План и сечения фундаментов. Спецификация
   Блок 3. Развертки фундаментов
   Блок 3. План подпольных каналов. План перекрытия над подвалом
   Блок 3. Продовольственный и промтоварный магазин. Монтажные планы этажей
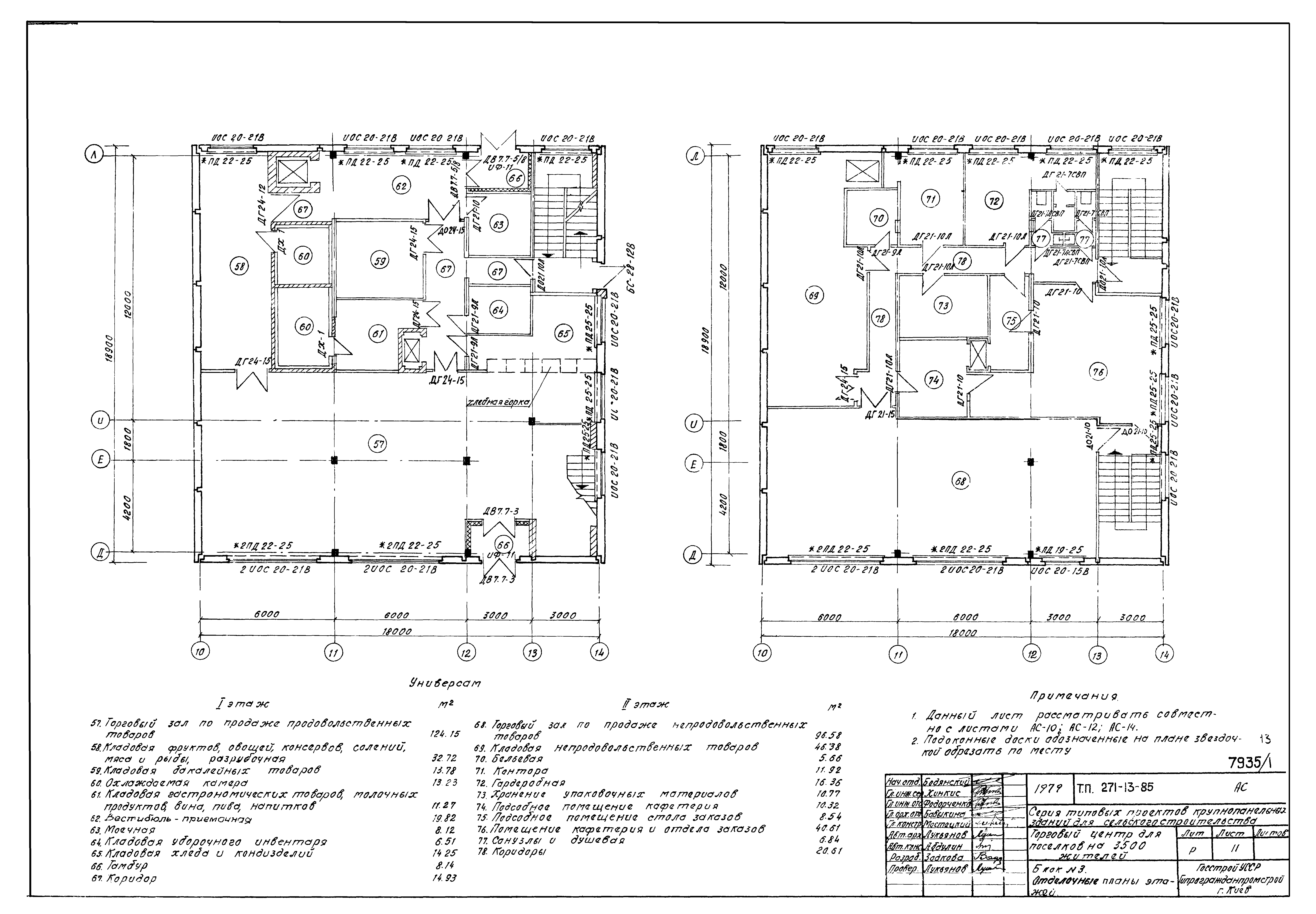
   Блок 3. Отделочные планы этажей
   Блок 3. Разрез I-I. План кровли. Спецификация деревянных и металлических изделий
   Фасады. Блок 3
   Блок 3. Ведомость отделочных работ
   Блок 3. Планы перекрытия и покрытия. Монолитные участки
   Блок 3. Развертки наружных стен
   Блок 3. Развертки внутренних стен
   Блок 3. Охлаждаемая камера. Изоляция междуэтажных перекрытий и стен
   Блок 3. Металлические решетки ДР-1, ДР-2. Вентиляционные решетки Р-1, Р-2
   Блок 3. Грузовой лифт на 500 кг. Разрезы. Планы. Развертки
   Блок 3. Грузовой лифт на 500 кг. УМ-1. Фундаментная плита. Фундамент под лебедку
   Блок 3. Спецификация сборных ж/б элементов выше отм. 0.000
   Пункт приема посуды и тарная
   Блок 3. Монолитные козырьки МК-4, МК-5
   План продовольственного и промтоварного магазина с размещением торгового оборудования
   Продовольственный и промтоварный магазин. Монтажный план подводки коммуникаций торгового оборудования
   Спецификация торгового оборудования
   Фрагмент плана охлаждаемых камер магазина на отм. 0.000 и 2.85. Разрез I-I. Схема фрионовых трубопроводов
   Крепление двух испарителей ИРСН-10 к стене. Щит и поддон испарителя (на 2 батареи)
Чертежи основного комплекта марки ОВ
   Заглавный лист
   Отопление и вентиляция. План подвала. Теплопотери помещений. Комплектовочная ведомость радиаторов
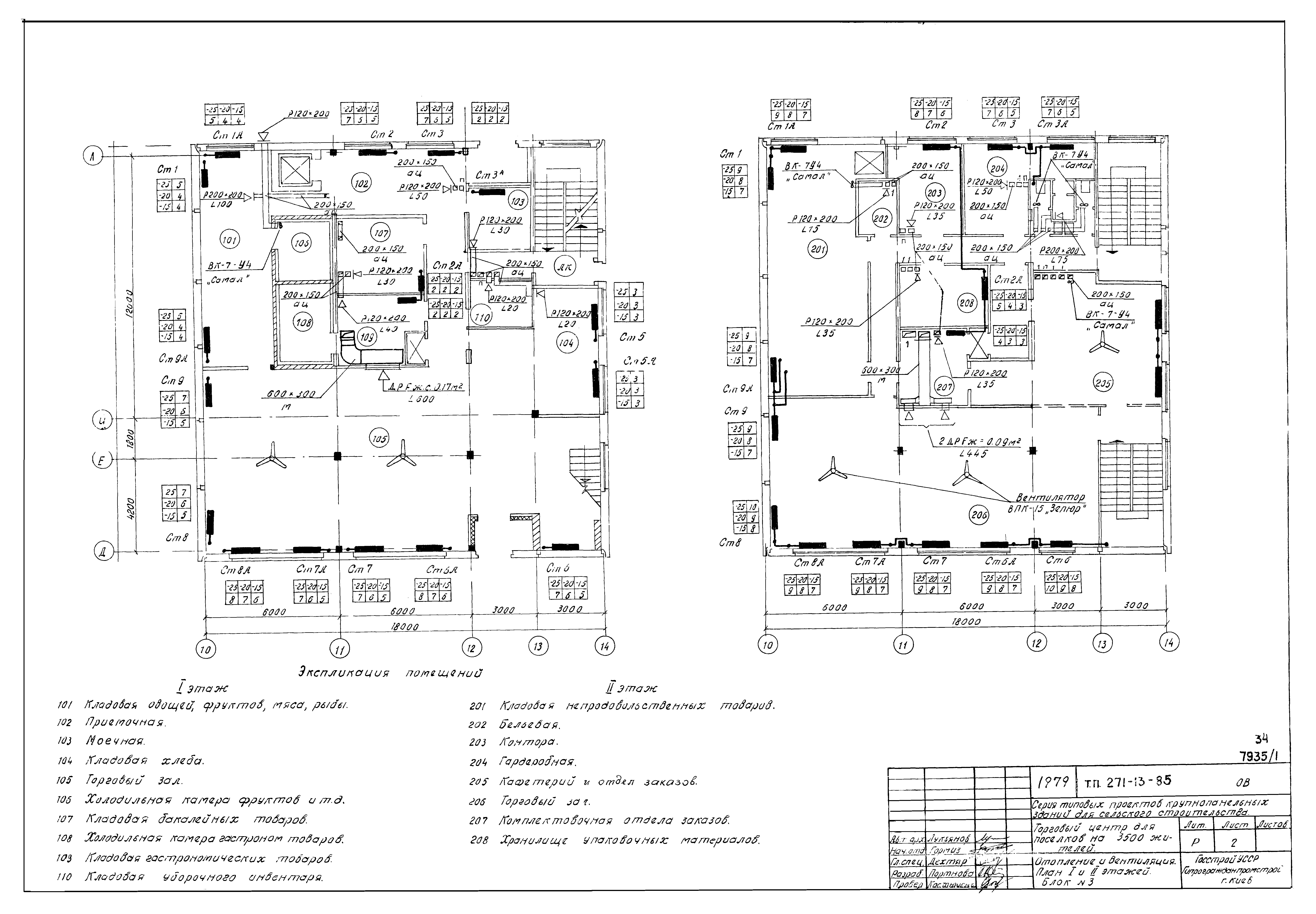
   Отопление и вентиляция. Планы I и II этажей
   Отопление и вентиляция. Схема системы отопления. Спецификация материалов
   Отопление и вентиляция. Тепловой узел НП-1. Спецификация НП-1
Чертежи основного комплекта марки ВК
   Водоснабжение и канализация. Пояснительная записка. Спецификация материалов
   Водоснабжение и канализация. Планы I и II этажей
   Водоснабжение и канализация. Схемы водоснабжения и канализации
Чертежи основного комплекта марки ЭЛ
   Блок №3. Магазин. Электрооборудование. Перечень чертежей, основные показатели проекта, пояснительная записка, условные обозначения
   Блок №3. Магазин. Электросиловое оборудование. Схема и расчетная таблица питающих сетей. План подвала. Опросный лист ВРУ1-21
   Блок №3. Магазин. Электросиловое оборудование. Планы 1-го, 2-го этажей
   Блок №3. Магазин. Электросиловое оборудование. Расчетная таблица сети
   Блок №3. Магазин. Электроосвещение. План подвала. Расчетная таблица
   Блок №3. Магазин. Электроосвещение. Планы 1-го, 2-го этажей
   Блок №3. Пункт приема посуды. План электроосвещения
   Блок №3. Магазин. Сводная спецификация
Чертежи основного комплекта марки СУ
   Блок №3. Устройства связи. Технические указания
   Блок №3. Устройства связи. Условные обозначения, спецификация
   Блок №3. Устройства связи. План подвала, скелетные схемы
   Блок №3. Устройства связи. Планы I и II этажей
   Устройства связи. Шкаф аккумуляторный
Разработан: Гипрогражданпромстрой Госстроя УССР
Утверждён:19.07.1978 Госстрой УССР (UkrSSR Gosstroy 44)
Расположен в:Техническая документация Строительство Справочные документы Типовые строительные конструкции, изделия и узлы Общероссийский строительный каталог Общественные здания в городах и поселках городского типа Предприятия торговли и общественного питания. Общественные центры Предприятия торговли Магазины смешанной торговли
Типовой проект 271-13-85Типовой проект 271-13-85Типовой проект 271-13-85Типовой проект 271-13-85Типовой проект 271-13-85Типовой проект 271-13-85Типовой проект 271-13-85Типовой проект 271-13-85Типовой проект 271-13-85Типовой проект 271-13-85Типовой проект 271-13-85Типовой проект 271-13-85Типовой проект 271-13-85Типовой проект 271-13-85Типовой проект 271-13-85Типовой проект 271-13-85Типовой проект 271-13-85Типовой проект 271-13-85Типовой проект 271-13-85Типовой проект 271-13-85Типовой проект 271-13-85Типовой проект 271-13-85Типовой проект 271-13-85Типовой проект 271-13-85Типовой проект 271-13-85Типовой проект 271-13-85Типовой проект 271-13-85Типовой проект 271-13-85Типовой проект 271-13-85Типовой проект 271-13-85Типовой проект 271-13-85Типовой проект 271-13-85Типовой проект 271-13-85Типовой проект 271-13-85Типовой проект 271-13-85Типовой проект 271-13-85Типовой проект 271-13-85Типовой проект 271-13-85Типовой проект 271-13-85Типовой проект 271-13-85Типовой проект 271-13-85Типовой проект 271-13-85Типовой проект 271-13-85Типовой проект 271-13-85Типовой проект 271-13-85Типовой проект 271-13-85Типовой проект 271-13-85Типовой проект 271-13-85Типовой проект 271-13-85Типовой проект 271-13-85Типовой проект 271-13-85Типовой проект 271-13-85Типовой проект 271-13-85

© 2013 Ёшкин Кот :-) Карта сайта