Скачать Типовой проект 224-6-4 Альбом II. Чертежи санитарно-технические, электрооборудования, устройства связиДата актуализации: 10.08.2017 Типовой проект 224-6-4
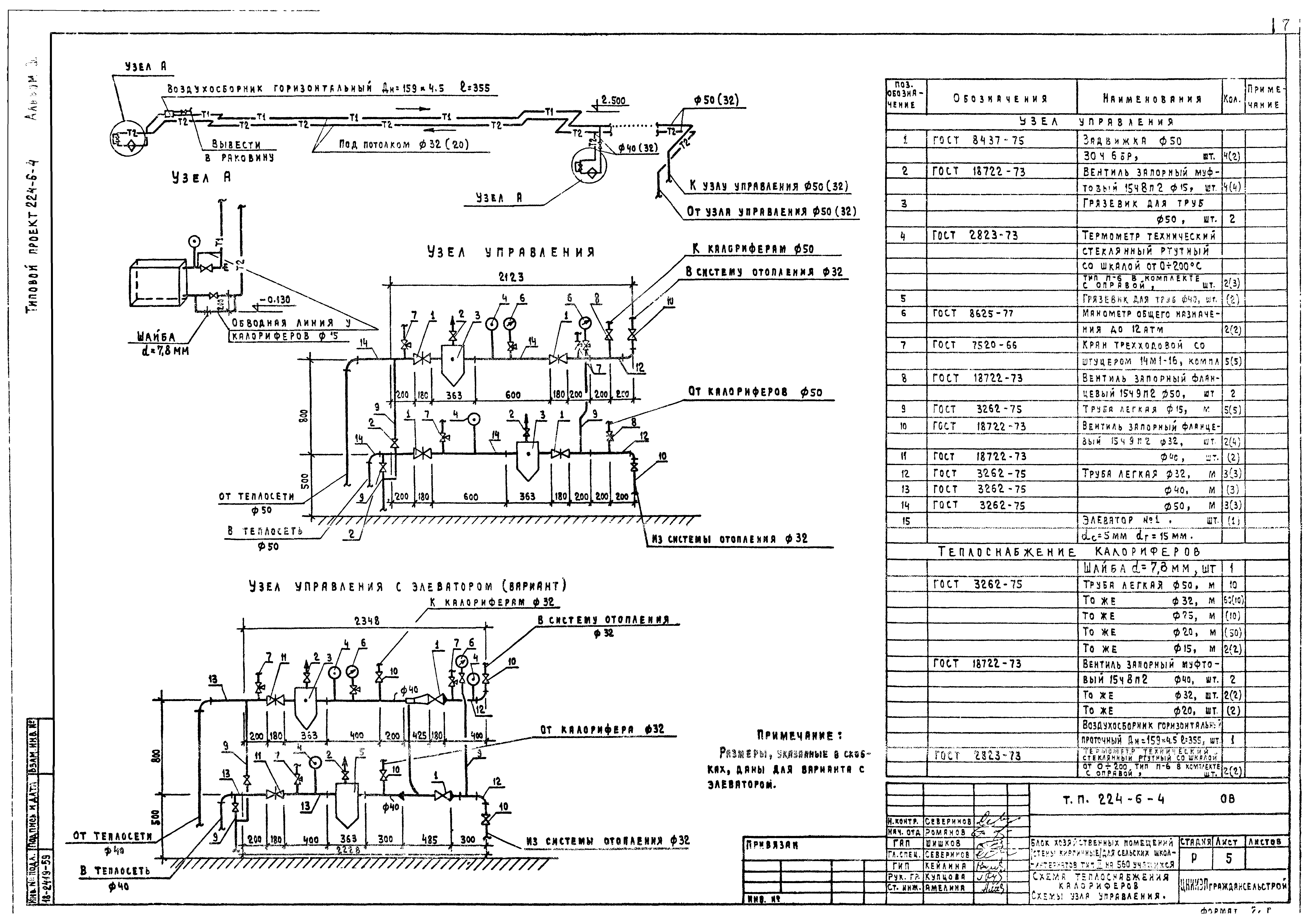
Альбом II. Чертежи санитарно-технические, электрооборудования, устройства связиОбозначение: | Типовой проект 224-6-4 | Обозначение англ: | 224-6-4 | Статус: | не определен законодательством | Название рус.: | Альбом II. Чертежи санитарно-технические, электрооборудования, устройства связи | Дата добавления в базу: | 01.09.2013 | Дата актуализации: | 05.05.2017 | Дата введения: | 21.10.1980 | Оглавление: | Титульный лист Ведомость чертежей Отопление и вентиляция Заглавный лист Спецификация План этажа. Схема отопления Схема теплоснабжения калориферов. Схема узла управления Схема систем вентиляции: П-1; П-2; В-1; ВТУ-1; ВТУ-2 Установочный чертеж системы П-1; П-2. Спецификация Звено прямого участка шовного асбестоцементного воздуховода. Нетиповые детали Водопровод и канализация Заглавный лист План 1 этажа. Спецификация Схемы Электрооборудование Заглавный лист Силовое электрооборудование Электроосвещение Распределительные схемы Опросный лист Устройства связи Заглавный лист План этажа. Схема расположения устройств связи. План кровли. Условные обозначения | Разработан: | ЦНИИЭП граждансельстрой
| Утверждён: | 02.11.1979 Госгражданстрой (Gosgrazhdanstroy 236)
| Расположен в: |
|
                    
|