Информационная система
«Ёшкин Кот»

Скачать базу одним архивом
Скачать обновления
История создания базы
Карта сайта

Скачать Типовой проект 802-5-47м.13.86 Альбом 1. Общая пояснительная записка. Архитектурно-строительные решения (варианты I и II)

Дата актуализации: 10.08.2017

Типовой проект 802-5-47м.13.86

Альбом 1. Общая пояснительная записка. Архитектурно-строительные решения (варианты I и II)

Обозначение: Типовой проект 802-5-47м.13.86
Обозначение англ: 802-5-47м.13.86
Статус:не определен законодательством
Название рус.:Альбом 1. Общая пояснительная записка. Архитектурно-строительные решения (варианты I и II)
Дата добавления в базу:01.09.2013
Дата актуализации:05.05.2017
Дата введения:23.12.1985
Оглавление:Титульный лист
Содержание альбома
Пояснительная записка
Схема генплана
Основной комплект рабочих чертежей марки АС
   Общие данные
   Фасады в осях 1-28; 28-1; А-К; К-А. Вариант I
   План на отм. 0.000. Вариант I
   Фрагменты 1, 2. Вариант I
   Фрагмент 3. Разрез 1-1. Вариант I
   План с отверстиями. Венткамера (элемент)
   Узлы плана 1 - 4. Свая-колонна. Сжимы
   Узлы 1 - 5
   План свайного поля. Вариант I
   Схема расположения прогонов и обвязки цокольного перекрытия. Сечения А-А - Д-Д. Вариант I
   Сечения Е-Е: Ж-Ж. Узлы 1, 2. Вариант I
   Схема расположения балок цокольного перекрытия. Вариант I
   Узлы 1, 2. Вариант I
   План полов. Вариант I. План кровли. Экспликация полов. Вариант I
   Разрез пола 1-1, 2-2. Вариант I
   Разрез 3-3. Спецификация пиломатериалов на полы. Вариант I
   Схема расположения балок и прогонов чердачного перекрытия. Разрезы 1-1 - 3-3
   Схема расположения стропил
   Разрезы 1-1 - 3-3
   Узлы 1 - 3
   Разрезы А-А; Б-Б
   Слуховое окно. Подкарнизный щит
   Осушающий продух. Элемент продуха вентилируемого подполья. Вариант I
   План крыльца. Разрезы 1-1; 2-2. Вариант I
   План разгрузочной рампы. Сечения 1-1; 2-2. Вариант I
   План канала навозоудаления и путей кормораздатчика. Вариант I
   Узлы 1 - 5. Вариант I
   Сечения 1-1 - 5-5. Вариант I
   Утепленный короб. Вариант I
   Схема расстановки станков
   Детали крепления стен станков. Деревянный подвесной короб для кабеля кормораздатчика
   Металлические изделия МИ1 - МИ12
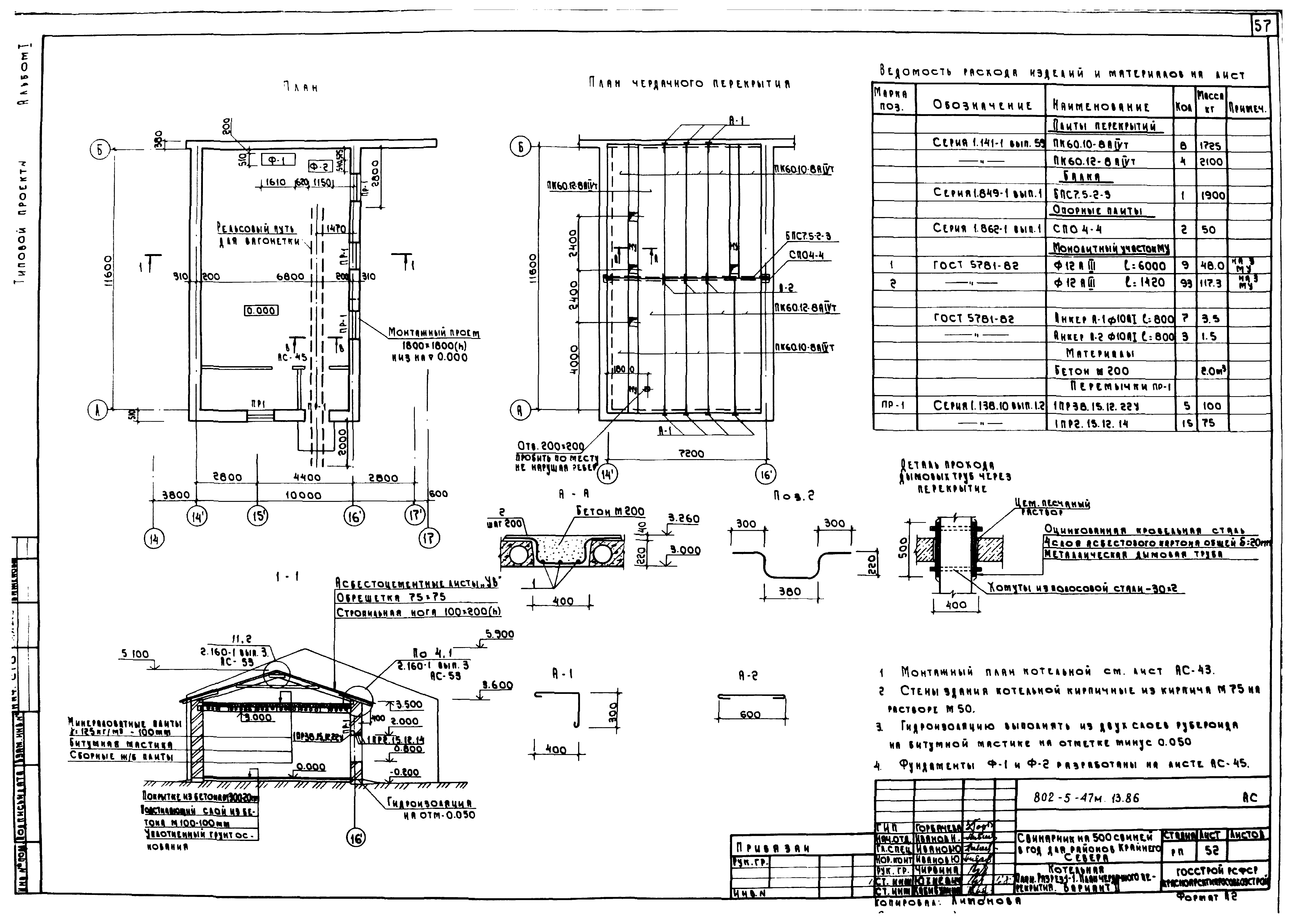
   Котельная. План. Разрез 1-1. Планы перекрытий. Вариант I
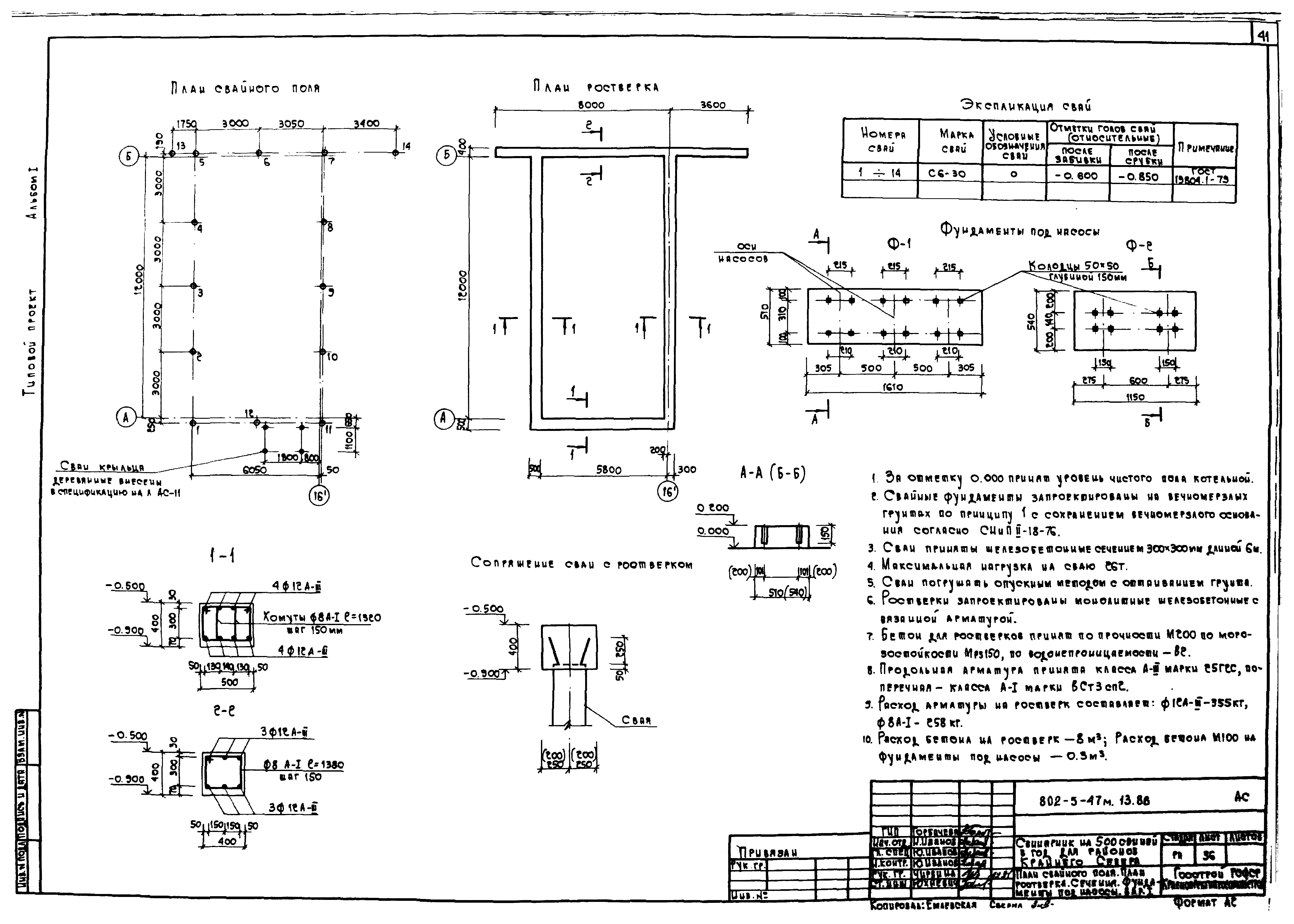
   План свайного поля. План ростверка. Сечения. Фундаменты под насосы. Вариант I
   Схема расположения стропил. Разрезы 1-1; 2-2. Узлы 1- 3. Вариант I
   Свайные спецификации. Вариант I
   Фасады в осях 1 - 28; 28 - 1; А - К; К - А. Вариант II
   План на отм. 0.000. Вариант II
   Фрагменты 1, 2. Вариант II
   Фрагмент 3. Разрез 1-1. Вариант II
   План фундаментов. Вариант II
   Сечения 1-1 - 5-; В-В; Г-Г. Фундаменты Ф-1, Ф-2. Вариант II
   План полов. Экспликация полов. Вариант II
   План каналов навозоудаления и путей кормораздатчика. Вариант II
   Узлы 1 - 3. Вариант II
   Узлы 4; 5; А; Б. Сечения 1-1 - 6-6. Вариант II
   Утепленный короб. Вариант II
   Схема расположения фундаментов под стойки ограждения станков. Фундамент Ф1. Вариант II
   Котельная. План. Разрез 1-1. План чердачного перекрытия. Вариант II
   Схема расположения стропил. Разрезы 1-1; 2-2. Узлы 1 - 3. Вариант II
   Сводные спецификации. Вариант II
   План выгульных дворов
Разработан: Красноярскгипросовхозстрой
Утверждён:26.11.1985 Минсельхоз СССР (USSR Minselkhoz 80-ЭГ)
Расположен в:Техническая документация Строительство Справочные документы Типовые строительные конструкции, изделия и узлы Общероссийский строительный каталог Сельскохозяйственные предприятия, здания и сооружения Предприятия, здания и сооружения свиноводческие Свинарники для подсобных хозяйств предприятий
Типовой проект 802-5-47м.13.86Типовой проект 802-5-47м.13.86Типовой проект 802-5-47м.13.86Типовой проект 802-5-47м.13.86Типовой проект 802-5-47м.13.86Типовой проект 802-5-47м.13.86Типовой проект 802-5-47м.13.86Типовой проект 802-5-47м.13.86Типовой проект 802-5-47м.13.86Типовой проект 802-5-47м.13.86Типовой проект 802-5-47м.13.86Типовой проект 802-5-47м.13.86Типовой проект 802-5-47м.13.86Типовой проект 802-5-47м.13.86Типовой проект 802-5-47м.13.86Типовой проект 802-5-47м.13.86Типовой проект 802-5-47м.13.86Типовой проект 802-5-47м.13.86Типовой проект 802-5-47м.13.86Типовой проект 802-5-47м.13.86Типовой проект 802-5-47м.13.86Типовой проект 802-5-47м.13.86Типовой проект 802-5-47м.13.86Типовой проект 802-5-47м.13.86Типовой проект 802-5-47м.13.86Типовой проект 802-5-47м.13.86Типовой проект 802-5-47м.13.86Типовой проект 802-5-47м.13.86Типовой проект 802-5-47м.13.86Типовой проект 802-5-47м.13.86Типовой проект 802-5-47м.13.86Типовой проект 802-5-47м.13.86Типовой проект 802-5-47м.13.86Типовой проект 802-5-47м.13.86Типовой проект 802-5-47м.13.86Типовой проект 802-5-47м.13.86Типовой проект 802-5-47м.13.86Типовой проект 802-5-47м.13.86Типовой проект 802-5-47м.13.86Типовой проект 802-5-47м.13.86Типовой проект 802-5-47м.13.86Типовой проект 802-5-47м.13.86Типовой проект 802-5-47м.13.86Типовой проект 802-5-47м.13.86Типовой проект 802-5-47м.13.86Типовой проект 802-5-47м.13.86Типовой проект 802-5-47м.13.86Типовой проект 802-5-47м.13.86Типовой проект 802-5-47м.13.86Типовой проект 802-5-47м.13.86Типовой проект 802-5-47м.13.86Типовой проект 802-5-47м.13.86Типовой проект 802-5-47м.13.86Типовой проект 802-5-47м.13.86Типовой проект 802-5-47м.13.86Типовой проект 802-5-47м.13.86Типовой проект 802-5-47м.13.86Типовой проект 802-5-47м.13.86Типовой проект 802-5-47м.13.86Типовой проект 802-5-47м.13.86Типовой проект 802-5-47м.13.86

© 2013 Ёшкин Кот :-) Карта сайта