Информационная система
«Ёшкин Кот»

Скачать базу одним архивом
Скачать обновления
История создания базы
Карта сайта

Скачать Типовой проект 708-43.89 Альбом 1. Пояснительная записка. Технология производства. Общие виды нетиповых технологических конструкций. Связь и сигнализация

Дата актуализации: 10.08.2017

Типовой проект 708-43.89

Альбом 1. Пояснительная записка. Технология производства. Общие виды нетиповых технологических конструкций. Связь и сигнализация

Обозначение: Типовой проект 708-43.89
Обозначение англ: 708-43.89
Статус:не определен законодательством
Название рус.:Альбом 1. Пояснительная записка. Технология производства. Общие виды нетиповых технологических конструкций. Связь и сигнализация
Дата добавления в базу:01.09.2013
Дата актуализации:05.05.2017
Дата введения:17.03.1989
Оглавление:Пояснительная записка
Чертежи основного комплекта марки ТХ
   Общие данные
   Разрез А-А
   План на отм. 0.000. Схемы №1, 2, 3, 4
   Разрезы 6-6; 8-8; Г-Г; Д-Д
   План на отм. - 5.000. Схемы №1, 2
   План на отм. - 5.000. Схемы №3, 4
   План закладных элементов на отм. 0.000 и на отм. - 5.000. Схема №1
   План закладных элементов на отм. - 5.000. Схемы №2, 3, 4
   Ленточный конвейер
   Станина приводного барабана
   Станина устройства натяжного
   Ограждение устройства натяжного
   Воронка головная
   Воронка нижняя
   Станина привода редукторного
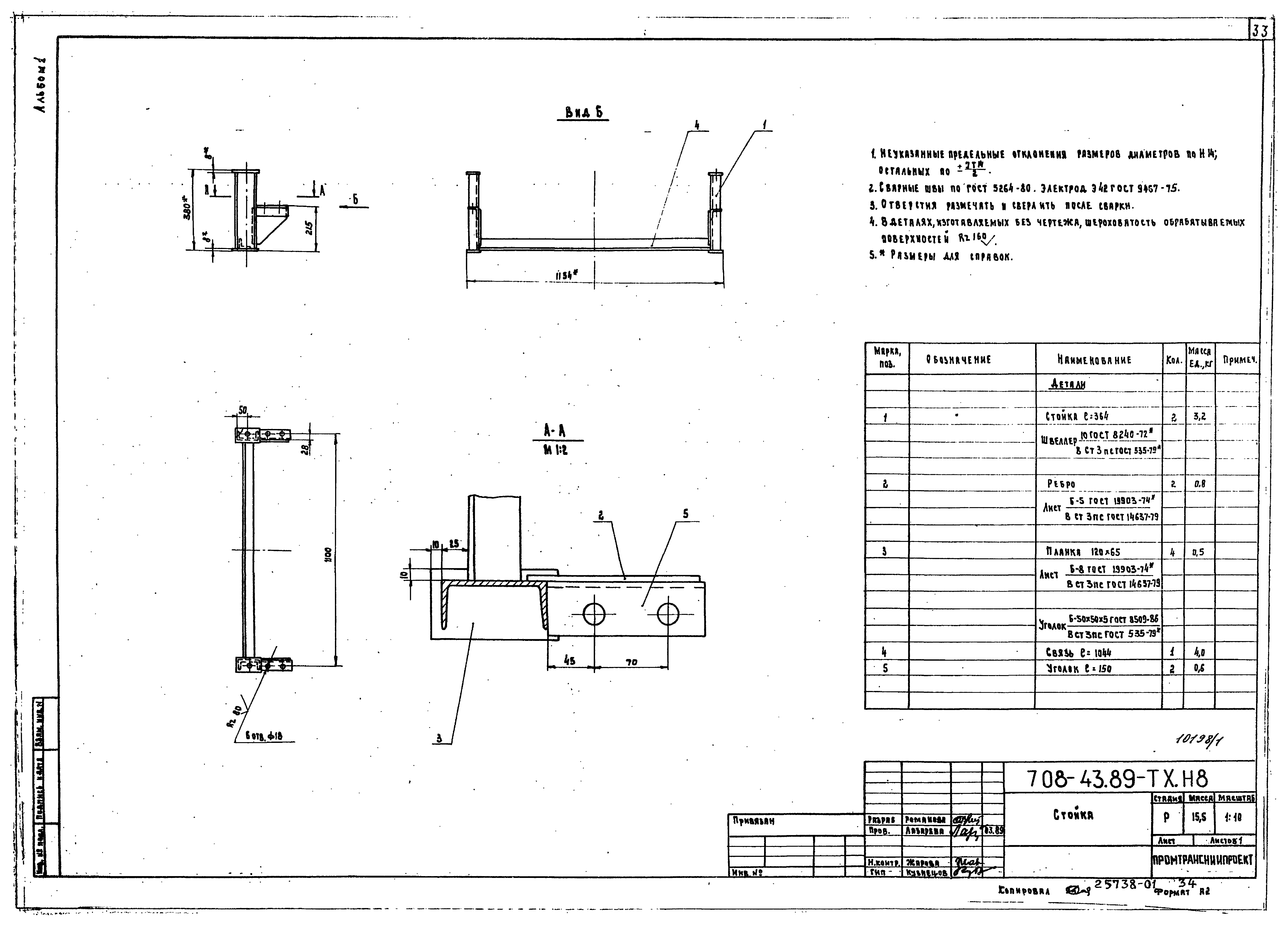
   Стойка
   Лоток аспирационный
   Лоток проходной
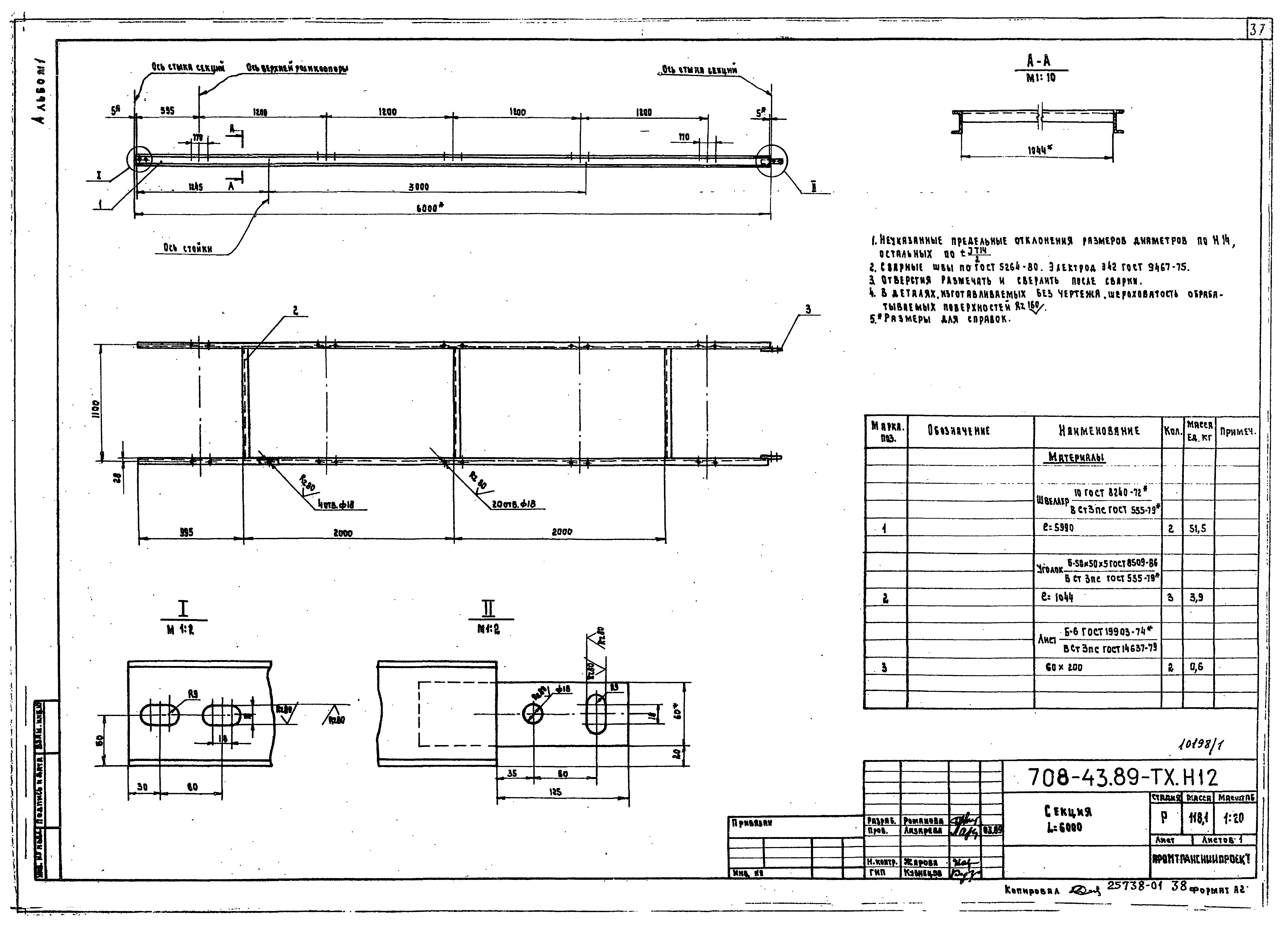
   Секция L = 6000
   Секция L = 4795
   Ограждение
   Ленточный питатель
   Станина приводного барабана
   Ограждение устройства натяжного
   Воронка головная
   Воронка нижняя
   Панель
   Станина привода редукторного
   Стенка торцевая
   Задвижка
Чертежи основного комплекта марки СС
   Общие данные
   Связь и сигнализация
Разработан: Харьковский Промстройниипроект
Тяжпромэлектропроект
Промтрансниипроект
Утверждён:27.10.1988 Госстрой СССР (Государственный комитет Совета Министров СССР по делам строительства) (USSR Gosstroy )
Расположен в:Техническая документация Строительство Справочные документы Типовые строительные конструкции, изделия и узлы Общероссийский строительный каталог Промышленные предприятия, здания и сооружения Предприятия, здания и сооружения складские Склады строительных материалов и изделий
Типовой проект 708-43.89Типовой проект 708-43.89Типовой проект 708-43.89Типовой проект 708-43.89Типовой проект 708-43.89Типовой проект 708-43.89Типовой проект 708-43.89Типовой проект 708-43.89Типовой проект 708-43.89Типовой проект 708-43.89Типовой проект 708-43.89Типовой проект 708-43.89Типовой проект 708-43.89Типовой проект 708-43.89Типовой проект 708-43.89Типовой проект 708-43.89Типовой проект 708-43.89Типовой проект 708-43.89Типовой проект 708-43.89Типовой проект 708-43.89Типовой проект 708-43.89Типовой проект 708-43.89Типовой проект 708-43.89Типовой проект 708-43.89Типовой проект 708-43.89Типовой проект 708-43.89Типовой проект 708-43.89Типовой проект 708-43.89Типовой проект 708-43.89Типовой проект 708-43.89Типовой проект 708-43.89Типовой проект 708-43.89Типовой проект 708-43.89Типовой проект 708-43.89Типовой проект 708-43.89Типовой проект 708-43.89Типовой проект 708-43.89Типовой проект 708-43.89Типовой проект 708-43.89Типовой проект 708-43.89Типовой проект 708-43.89Типовой проект 708-43.89Типовой проект 708-43.89Типовой проект 708-43.89Типовой проект 708-43.89Типовой проект 708-43.89Типовой проект 708-43.89Типовой проект 708-43.89Типовой проект 708-43.89Типовой проект 708-43.89Типовой проект 708-43.89Типовой проект 708-43.89

© 2013 Ёшкин Кот :-) Карта сайта