Информационная система
«Ёшкин Кот»

Скачать базу одним архивом
Скачать обновления
История создания базы
Карта сайта

Скачать Серия 3.505.1-15 Выпуск 2. Сборные железобетонные изделия (без предварительного напряжения)

Дата актуализации: 10.08.2017

Серия 3.505.1-15

Выпуск 2. Сборные железобетонные изделия (без предварительного напряжения)

Обозначение: Серия 3.505.1-15
Обозначение англ: Series 3.505.1-15
Статус:не действует
Название рус.:Выпуск 2. Сборные железобетонные изделия (без предварительного напряжения)
Дата добавления в базу:01.09.2013
Дата актуализации:05.05.2017
Дата введения:01.04.1980
Дата окончания срока действия:01.11.1991
Оглавление:3.505.1-15.2 00000ПЗ Пояснительная записка
3.505.1-15.2 00000ВД Ведомость ссылочных документов
3.505.1-15.2 14000 Шпунт тавровый (без предварительного напряжения) для погружения в грунт вибратором ШТВ
3.505.1-15.2 15000 Шпунт тавровый (без предварительного напряжения) для погружения в грунт подмывом ШТП
3.505.1-15.2 16000 Шпунт тавровый (без предварительного напряжения) для погружения в грунт вибратором ШТВ-1
3.505.1-15.2 17000 Шпунт тавровый (без предварительного напряжения) для погружения в грунт подмывом ШТП-1
3.505.1-15.2 18000 Шпунт прямоугольный (без предварительного напряжения) ШП
3.505.1-15.2 19000 Элемент вертикальный (без предварительного напряжения) для монтажа насухо 1ВЭН
3.505.1-15.2 20000 Элемент вертикальный (без предварительного напряжения) для монтажа в воду собранными блоками 1ВЭБ
3.505.1-15.2 21000 Элемент вертикальный (без предварительного напряжения) для монтажа в воду отдельными элементами 1ВЭО
3.505.1-15.2 22000 Элемент надстройки (без предварительного напряжения) ЭН
3.505.1-15.2 23000 Элемент вертикальный (без предварительного напряжения) для монтажа насухо 2ВЭН
3.505.1-15.2 24000 Элемент вертикальный (без предварительного напряжения) для монтажа в воду собранными блоками 2ВЭБ
3.505.1-15.2 25000 Элемент вертикальный (без предварительного напряжения) для монтажа в воду отдельными элементами 2ВЭО
3.505.1-15.2 26000 Плита фундаментная для монтажа насухо 1ФПН
3.505.1-15.2 27000 Плита фундаментная для монтажа в воду собранными блоками 1ФПБ
3.505.1-15.2 28000 Плита фундаментная для монтажа в воду отдельными элементами 1ФПО
3.505.1-15.2 29000 Плита фундаментная для монтажа насухо 2ФПН
3.505.1-15.2 30000 Плита фундаментная для монтажа в воду собранными блоками 2ФПБ
3.505.1-15.2 31000 Плита фундаментная для монтажа в воду отдельными элементами 2ФПО
3.505.1-15.2 32000 Плита фундаментная для монтажа насухо ФКН
3.505.1-15.2 33000 Плита фундаментная для монтажа в воду собранными блоками ФКБ
3.505.1-15.2 34000 Плита фундаментная для монтажа в воду отдельными элементами ФКО
3.505.1-15.2 35000 Плита анкерная 1АП10.2
3.505.1-15.2 36000 Плита анкерная 2АП10.2
3.505.1-15.2 37000 Плиты анкерные 1АП15.2, 1АП15.3
3.505.1-15.2 38000 Плиты анкерные 1АП20.3, 1АП25.3
3.505.1-15.2 39000 Плиты анкерные 1АП25.4, 1АП30.4
3.505.1-15.2 40000 Плиты анкерные 2АП15.2, 2АП15.3
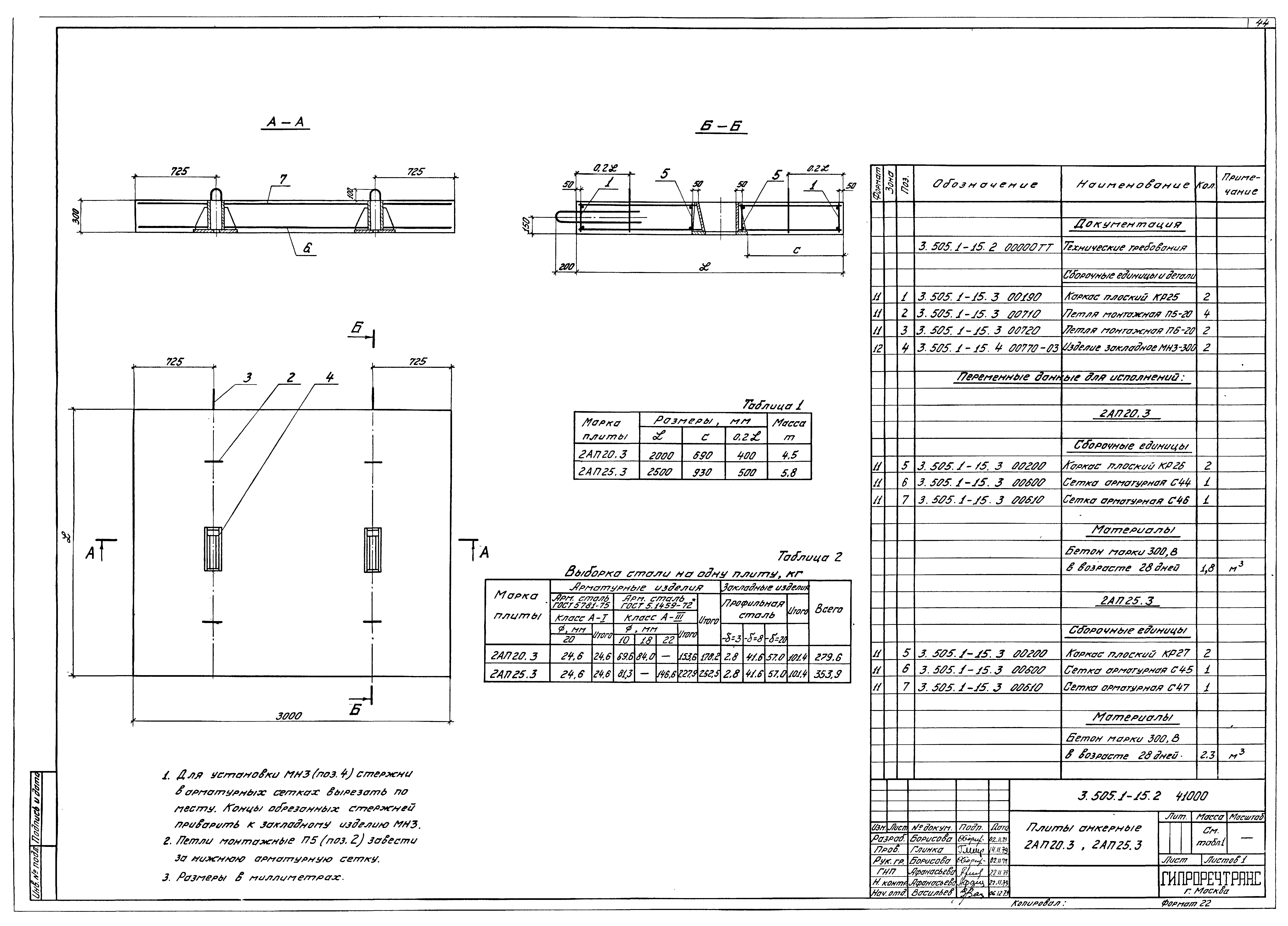
3.505.1-15.2 41000 Плиты анкерные 2АП20.3, 2АП25.3
3.505.1-15.2 42000 Плиты анкерные 2АП25.4, 2АП30.4
3.505.1-15.2 43000 Плиты ниш ПН22.10, ПН22.10-1, ПН22.14, ПН22.14-1, ПН22.20
3.505.1-15.2 44000 Плиты ниш ПН26.10, ПН26.10-1, ПН26.14, ПН26.14-1, ПН26.20
3.505.1-15.2 45000 Плиты ниш ПН22.31, ПН26.31
3.505.1-15.2 46000 Плиты ниш ПН26.20-1, ПН26.20-2
3.505.1-15.2 00000ТТ Технические требования
3.505.1-15.2 00000ТБ Шпунт тавровый (без предварительного напряжения). Таблицы
3.505.1-15.2 00000ТБ Элементы вертикальные (без предварительного напряжения). Таблицы
3.505.1-15.2 00000ГР Шпунт тавровый, элементы вертикальные (без предварительного напряжения). Графики
3.505.1-15.2 00000ТБ Элементы надстройки (без предварительного напряжения). Таблицы
3.505.1-15.2 00000ТБ Шпунт прямоугольный (без предварительного напряжения). Таблицы
3.505.1-15.2 00000ТБ Плиты фундаментные 1ФНП, 1ФПБ, 1ФПО, ФКН, ФКБ, ФКО. Таблицы
3.505.1-15.2 00000ТБ Плиты фундаментные 2ФНП, 2ФПБ, 2ФПО. Таблицы
Разработан: Гипроречтранс
Утверждён:28.03.1980 Министерство речного флота СССР
Расположен в:Техническая документация Строительство Справочные документы Типовые строительные конструкции, изделия и узлы Общероссийский строительный каталог Строительные конструкции, изделия и узлы зданий и сооружений для всех видов строительства Конструкции и изделия сооружений и оборудования зданий Надземные сооружения Конструкции и сооружения транспорта Набережные и портовые сооружения, навигационные знаки
Серия 3.505.1-15Серия 3.505.1-15Серия 3.505.1-15Серия 3.505.1-15Серия 3.505.1-15Серия 3.505.1-15Серия 3.505.1-15Серия 3.505.1-15Серия 3.505.1-15Серия 3.505.1-15Серия 3.505.1-15Серия 3.505.1-15Серия 3.505.1-15Серия 3.505.1-15Серия 3.505.1-15Серия 3.505.1-15Серия 3.505.1-15Серия 3.505.1-15Серия 3.505.1-15Серия 3.505.1-15Серия 3.505.1-15Серия 3.505.1-15Серия 3.505.1-15Серия 3.505.1-15Серия 3.505.1-15Серия 3.505.1-15Серия 3.505.1-15Серия 3.505.1-15Серия 3.505.1-15Серия 3.505.1-15Серия 3.505.1-15Серия 3.505.1-15Серия 3.505.1-15Серия 3.505.1-15Серия 3.505.1-15Серия 3.505.1-15Серия 3.505.1-15Серия 3.505.1-15Серия 3.505.1-15Серия 3.505.1-15Серия 3.505.1-15Серия 3.505.1-15Серия 3.505.1-15Серия 3.505.1-15Серия 3.505.1-15Серия 3.505.1-15Серия 3.505.1-15Серия 3.505.1-15Серия 3.505.1-15Серия 3.505.1-15Серия 3.505.1-15Серия 3.505.1-15Серия 3.505.1-15Серия 3.505.1-15Серия 3.505.1-15Серия 3.505.1-15Серия 3.505.1-15Серия 3.505.1-15Серия 3.505.1-15Серия 3.505.1-15Серия 3.505.1-15

© 2013 Ёшкин Кот :-) Карта сайта