Скачать Типовой проект 501-5 Часть III. Раздел 4. Пролетные строения для автодорожных и городских мостов и путепроводов. Балочные бездиафрагменные пролетные строения составные по длине от 15 до 42 м, армированные полигональными пучкамиДата актуализации: 10.08.2017 Типовой проект 501-5
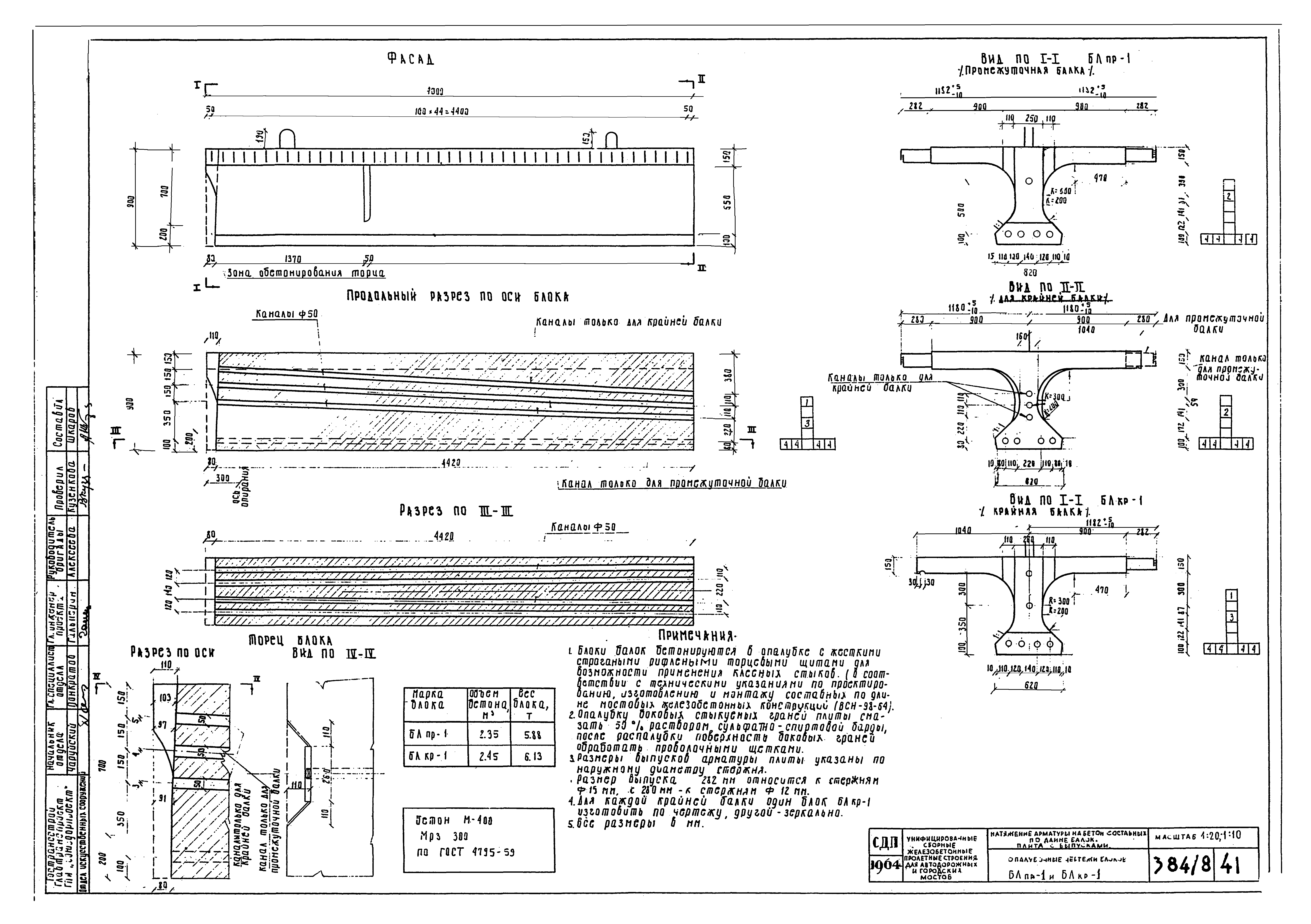
Часть III. Раздел 4. Пролетные строения для автодорожных и городских мостов и путепроводов. Балочные бездиафрагменные пролетные строения составные по длине от 15 до 42 м, армированные полигональными пучкамиОбозначение: | Типовой проект 501-5 | Обозначение англ: | 501-5 | Статус: | действует | Название рус.: | Часть III. Раздел 4. Пролетные строения для автодорожных и городских мостов и путепроводов. Балочные бездиафрагменные пролетные строения составные по длине от 15 до 42 м, армированные полигональными пучками | Дата добавления в базу: | 01.09.2013 | Дата актуализации: | 05.05.2017 | Дата введения: | 01.09.1965 | Оглавление: | Пояснения Расчетные листы Сводные таблицы расхода материалов Общий вид пролетного строения длиной 15 м. Поперечные разрезы Общий вид пролетного строения длиной 15 м. Фасад и таблицы показателей Армирование высокопрочной проволокой крайней балки длиной 15 м Кр-15СБ Армирование высокопрочной проволокой промежуточной балки длиной 15 м Пр-15СБ Общий вид пролетных строений длиной 18 и 24 м. Поперечные разрезы Общий вид пролетных строений длиной 18 и 24 м. Фасад и таблицы показателей Армирование высокопрочной проволокой крайней балки длиной 18 м Кр-18СБ Армирование высокопрочной проволокой промежуточной балки длиной 18 м Пр-18СБ Общий вид пролетного строения длиной 24 м. Фасад и таблицы показателей Армирование высокопрочной проволокой крайней балки длиной 24 м Кр-24СБ Армирование высокопрочной проволокой промежуточной балки длиной 24 м Пр-24СБ Общий вид пролетного строения длиной 33 м. Поперечные разрезы Общий вид пролетного строения длиной 33 м. Фасад и таблицы показателей Армирование высокопрочной проволокой крайней балки длиной 33 м Кр-33СБ Армирование высокопрочной проволокой промежуточной балки длиной 33 м Пр-33СБ Общий вид пролетного строения длиной 42 м. Поперечные разрезы Общий вид пролетного строения длиной 42 м. Фасад и таблицы показателей Армирование высокопрочной проволокой крайней балки длиной 42 м Кр-42СБ Армирование высокопрочной проволокой промежуточной балки длиной 42 м Пр-42СБ Конструкция пучков продольного натяжения, анкеров и схемы расположения организованных участков пучков Опалубочные чертежи блоков от БЛпр-1 и БЛкр-1 до БЛпр-12 и БЛкр-12 Конструкция блоков от БЛпр-1 и БЛкр-1 до БЛпр-12 и БЛкр-12 Конструкция и расположение фиксаторов между сетками Конструкция сеток плиты блоков от СП-1 до СП-6 Конструкция сеток плиты блоков от СР-1 до СР-10 Конструкция сеток торцов блоков от СТ-1 до СТ-12 Конструкция каркасов нижнего пояса от К-1 до К-10 и сеток вутов от СВ-1 до СВ-3 Конструкция закладных деталей. Монтажные петли и отдельные стержни Конструкция закладных шайб Расход стали на закладные детали и отдельные стержни в блоках Поперечное соединение балок пролетных строений Опорные части Схема разбивки тротуарных блоков и подтротуарных балок для пролета длиной 15 м Схема разбивки тротуарных блоков и подтротуарных балок для пролета длиной 18 м Схема разбивки тротуарных блоков и подтротуарных балок для пролета длиной 24 м Схема разбивки тротуарных блоков и подтротуарных балок для пролета длиной 33 м Схема разбивки тротуарных блоков и подтротуарных балок для пролета длиной 42 м Детали крепления тротуарных блоков и перильного ограждения Схема установки балок стреловыми кранами Схемы монтажа агрегатом АМК-20Г-7 Схемы монтажа балок пролетных строений шлюзовым краном Схемы монтажа пролетных строений портальными (козловыми кранами) Схема продольно-поперечной перекатки балок на тележках в уровне верха опор по эстакадам Схемы перевозки блоков пролетных строений автотранспортом | Разработан: | ГПИ Союздорпроект
| Утверждён: | 06.05.1965 Государственный производственный комитет по транспортному строительству (110)
| Расположен в: |
|
                                                                                              
|