Информационная система
«Ёшкин Кот»

Скачать базу одним архивом
Скачать обновления
История создания базы
Карта сайта

Скачать Типовой проект 802-5-39.85 Альбом IV. Строительные изделия

Дата актуализации: 10.08.2017

Типовой проект 802-5-39.85

Альбом IV. Строительные изделия

Обозначение: Типовой проект 802-5-39.85
Обозначение англ: 802-5-39.85
Статус:не определен законодательством
Название рус.:Альбом IV. Строительные изделия
Дата добавления в базу:01.09.2013
Дата актуализации:05.05.2017
Дата введения:13.03.1985
Оглавление:Содержание альбома
Технические условия
Рамка металлическая (РМ-2, РМ-3, РМ-4)
Перемычка БПЗ-2А
Изделие закладное МД-2
Изделие закладное МД-1
Крышка бункера КБ-1
МН-1
МН-2
Анкер А-2
Закладная деталь ЗД-4
Рама РМ-1
Закладная деталь ЗД-2
Закладная деталь (ЗД-1, ЗД-3, ЗД-5)
Монолитная плита П-1
Сетка арматурная С-1
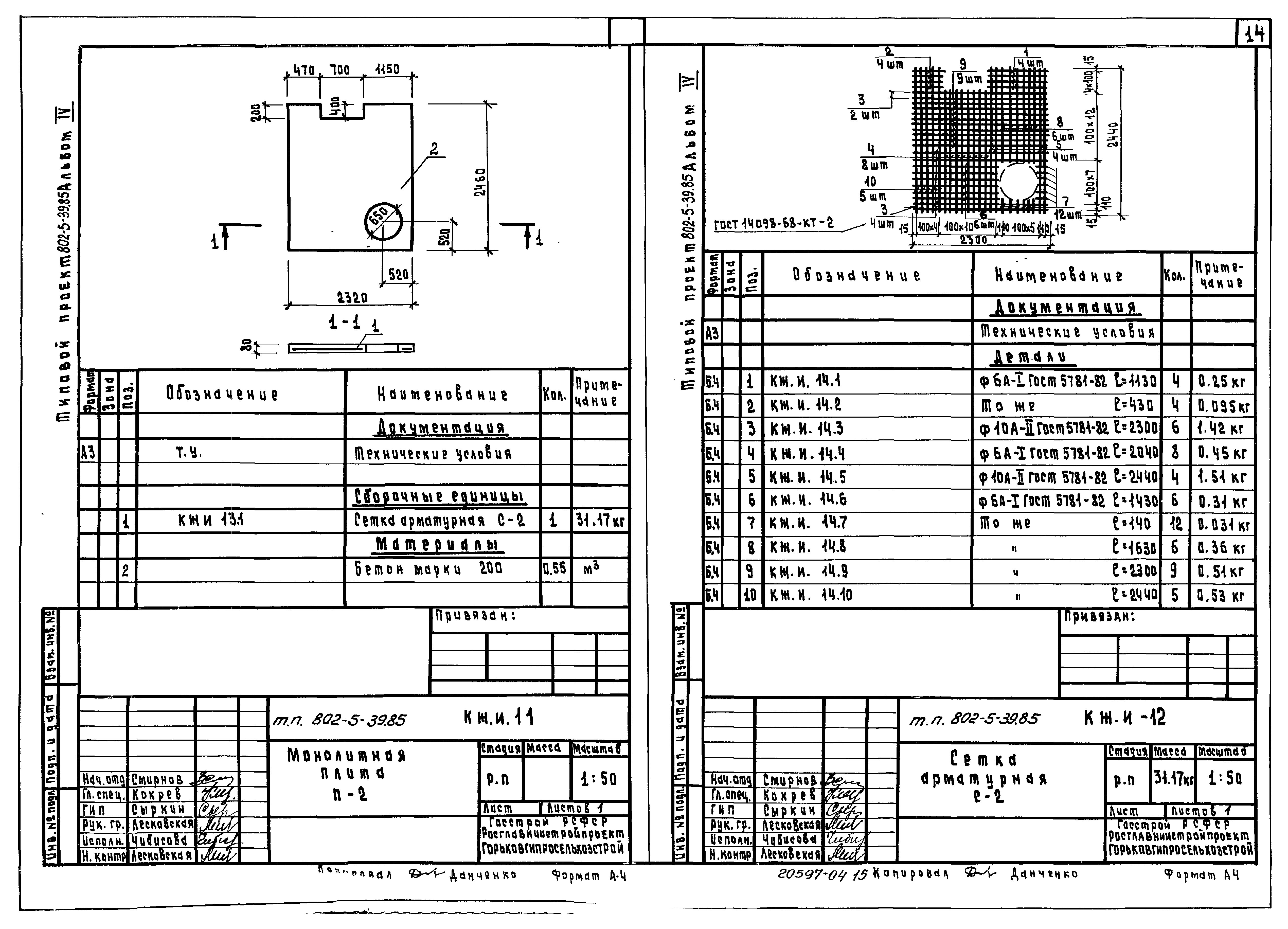
Монолитная плита П-2
Сетка арматурная С-2
Сетка арматурная (С-3, С-4)
Ведомость расхода стали на 1 элемент (П-1, П-2, С-3, С-4)
Анкер А-3
Соединительный элемент (МС-3, МС-4)
Ферма деревянная ФД-1. Сборочный чертеж
Ферма деревянная ФД-1
Анкер А-4
Соединительный элемент (МС-1, МС-2)
Изоляция трубопровода dн 57 мм
Установка термометра ртутного на воздуховоде
Установка термометра углового на воздуховоде. Сборочный чертеж
Фланец с бобышкой
Фланец с бобышкой. Сборочный чертеж
Фланец
Прокладка
Полоса
Фланец
Изоляция трубопровода
Разработан: Горьковгипросельхозстрой
Утверждён:06.03.1985 Главсельстройпроект Минсельхоза СССР (Glavselstroyproject, USSR Minselkhoz 9ЭГ)
Расположен в:Техническая документация Строительство Справочные документы Типовые строительные конструкции, изделия и узлы Общероссийский строительный каталог Сельскохозяйственные предприятия, здания и сооружения Предприятия, здания и сооружения свиноводческие Свинарники для подсобных хозяйств предприятий
Типовой проект 802-5-39.85Типовой проект 802-5-39.85Типовой проект 802-5-39.85Типовой проект 802-5-39.85Типовой проект 802-5-39.85Типовой проект 802-5-39.85Типовой проект 802-5-39.85Типовой проект 802-5-39.85Типовой проект 802-5-39.85Типовой проект 802-5-39.85Типовой проект 802-5-39.85Типовой проект 802-5-39.85Типовой проект 802-5-39.85Типовой проект 802-5-39.85Типовой проект 802-5-39.85Типовой проект 802-5-39.85Типовой проект 802-5-39.85Типовой проект 802-5-39.85Типовой проект 802-5-39.85Типовой проект 802-5-39.85Типовой проект 802-5-39.85Типовой проект 802-5-39.85Типовой проект 802-5-39.85Типовой проект 802-5-39.85Типовой проект 802-5-39.85Типовой проект 802-5-39.85Типовой проект 802-5-39.85Типовой проект 802-5-39.85

© 2013 Ёшкин Кот :-) Карта сайта