Информационная система
«Ёшкин Кот»

Скачать базу одним архивом
Скачать обновления
История создания базы
Карта сайта

Скачать РМГ 101-2010 Государственная система обеспечения единства измерений. Системы измерений количества и показателей качества нефти. Метрологические и технические требования к проектированию

Дата актуализации: 10.08.2017

РМГ 101-2010

Государственная система обеспечения единства измерений. Системы измерений количества и показателей качества нефти. Метрологические и технические требования к проектированию

Обозначение: РМГ 101-2010
Обозначение англ: RMG 101-2010
Статус:действует
Название рус.:Государственная система обеспечения единства измерений. Системы измерений количества и показателей качества нефти. Метрологические и технические требования к проектированию
Название англ.:State system for ensuring the uniformity of measurements. Petroleum quantity and parameters of quality measurements systems. Metrological and technical specifications to the designing
Дата добавления в базу:01.09.2013
Дата актуализации:05.05.2017
Дата введения:01.01.2012
Область применения:Рекомендации распространяются на процесс проектирования систем измерений количества и показателей качества нефти и предназначаются для применения: - предприятиями добычи, транспортировки, переработки и хранения нефти независимо от организационно-правовых форм; - проектными организациями.
Оглавление:1 Область применения
2 Нормативные ссылки
3 Сокращения
4 Общие положения
5 Техническое задание
6 Общие требования к проектированию
7 Требования к проектированию составляющих систем измерений количества и показателей качества нефти
8 Эксплуатационные требования
9 Требования к обеспечению надежности
Приложение А (рекомендуемое) Перечень документов, представляемых на метрологическую экспертизу проекта
Приложение Б (рекомендуемое) Типовая форма технических требований
Приложение В (рекомендуемое) Типовая форма технического задания на проектирование системы измерений количества и показателей качества нефти
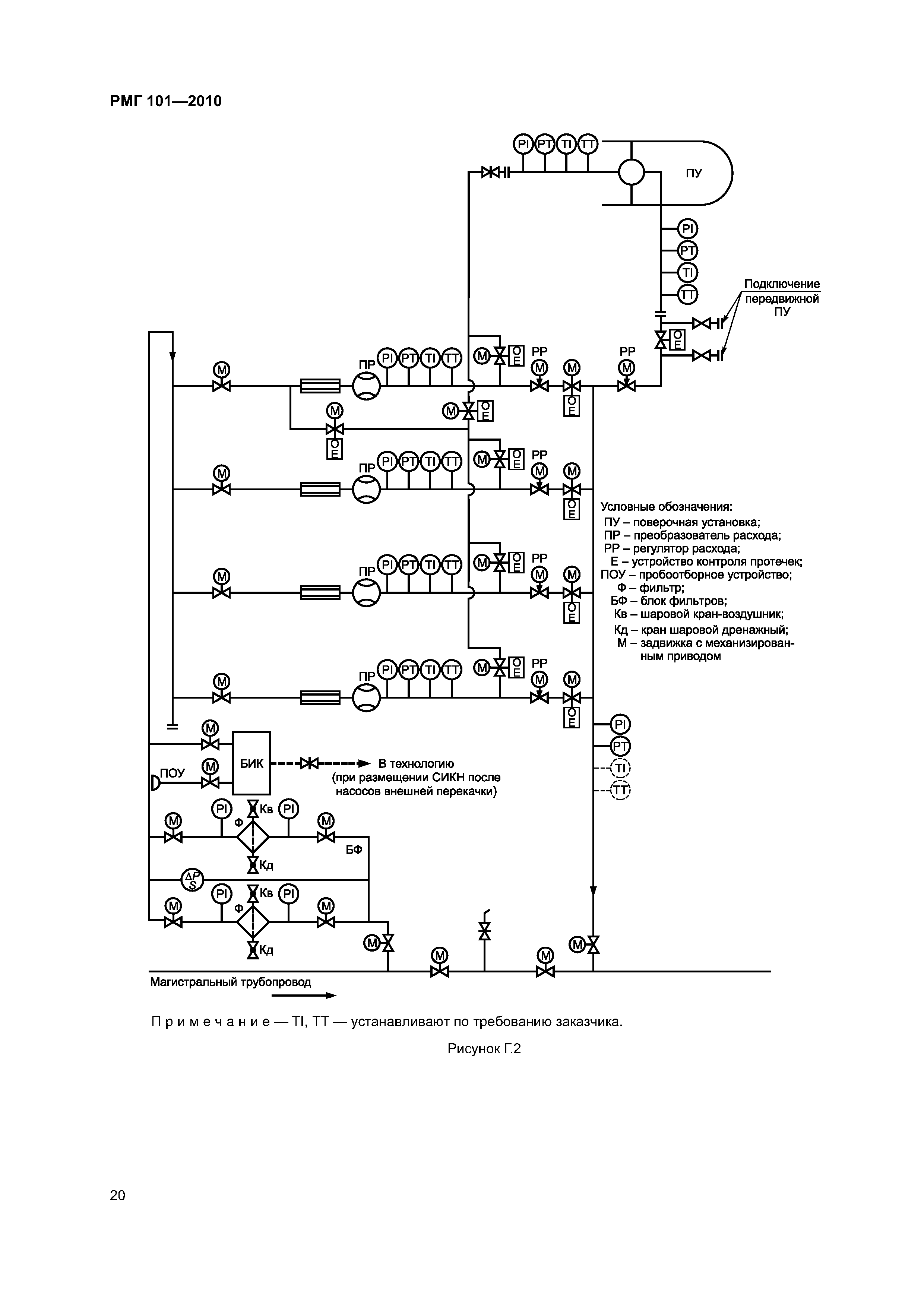
Приложение Г (рекомендуемое) Технологические схемы системы измерений количества и показателей качества нефти
Приложение Д (рекомендуемое) Пример расчета числа измерительных линий
Приложение Е (рекомендуемое) Технологические схемы блока измерений показателей качества нефти
Приложение Ж (рекомендуемое) Методика расчета расхода нефти через пробоотборное устройство
Библиография
Разработан: ФГУП ВНИИР
Утверждён:10.06.2010 Межгосударственный Совет по стандартизации, метрологии и сертификации (Inter-Governmental Council on Standardization, Metrology, and Certification 37)
23.12.2010 Федеральное агентство по техническому регулированию и метрологии (1002-ст)
Издан: Стандартинформ (2012 г. )
Расположен в:Техническая документация Экология МЕТРОЛОГИЯ И ИЗМЕРЕНИЯ. ФИЗИЧЕСКИЕ ЯВЛЕНИЯ Метрология и измерения в целом
Нормативные ссылки:
РМГ 101-2010РМГ 101-2010РМГ 101-2010РМГ 101-2010РМГ 101-2010РМГ 101-2010РМГ 101-2010РМГ 101-2010РМГ 101-2010РМГ 101-2010РМГ 101-2010РМГ 101-2010РМГ 101-2010РМГ 101-2010РМГ 101-2010РМГ 101-2010РМГ 101-2010РМГ 101-2010РМГ 101-2010РМГ 101-2010РМГ 101-2010РМГ 101-2010РМГ 101-2010РМГ 101-2010РМГ 101-2010РМГ 101-2010РМГ 101-2010РМГ 101-2010РМГ 101-2010РМГ 101-2010РМГ 101-2010

© 2013 Ёшкин Кот :-) Карта сайта