Скачать Серия ТДК-Н-1-75/2 Выпуск 1. Конструктивно-планировочные решения входов убежищ II - V классов вместимостью 150, 300, 600, 900, 1200, 1500 и 1800 человек. Рабочие чертежиДата актуализации: 10.08.2017 Серия ТДК-Н-1-75/2
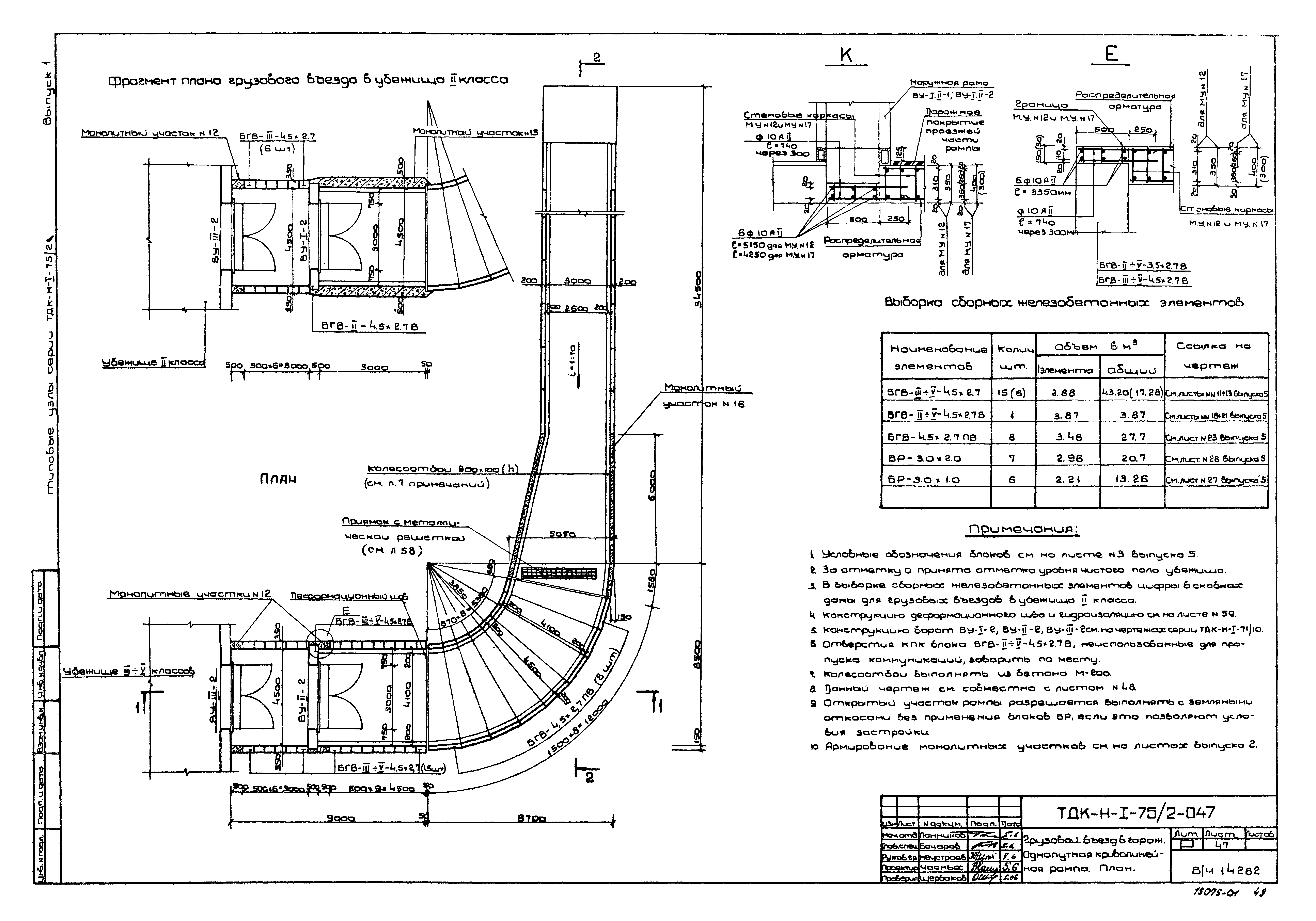
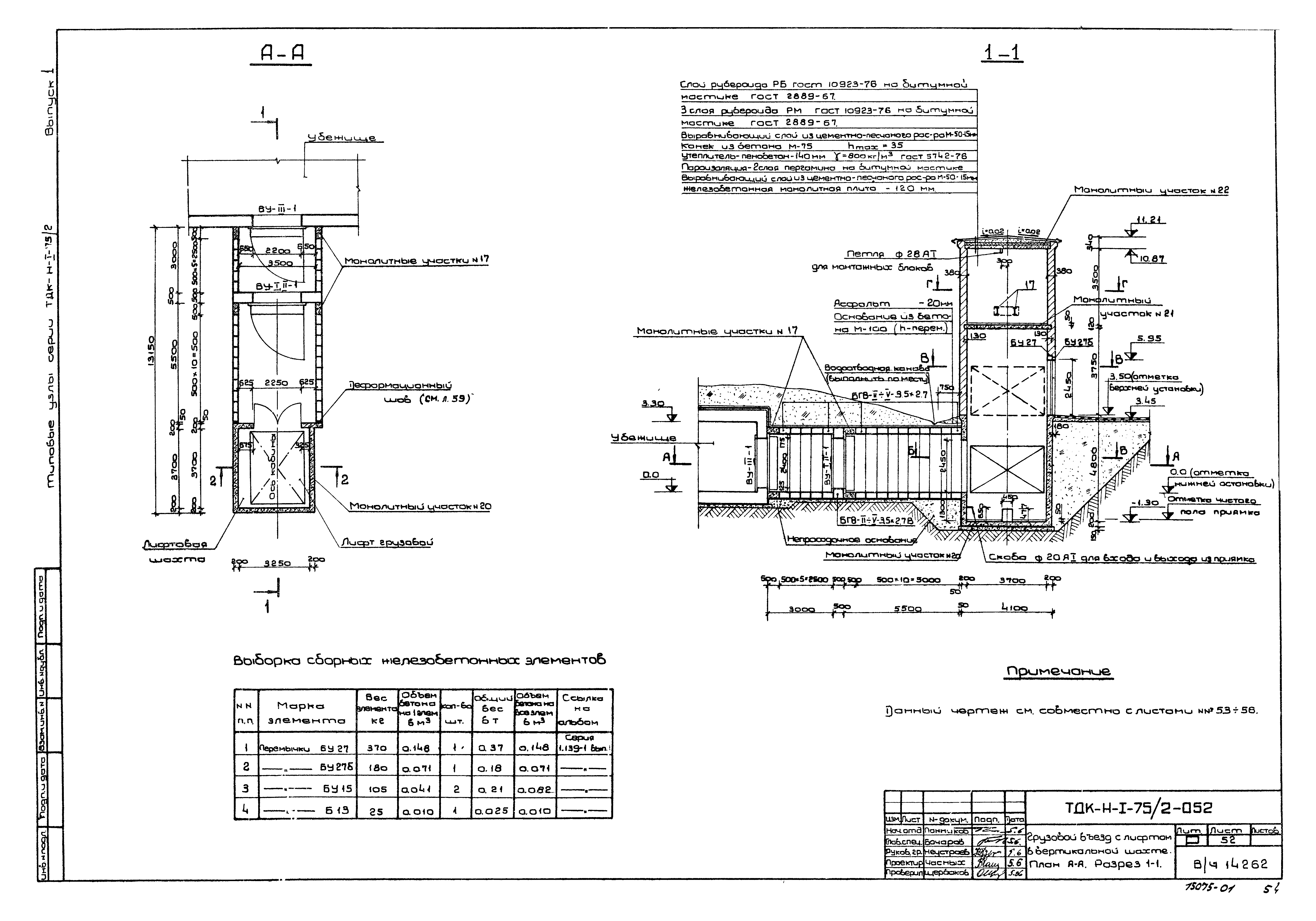
Выпуск 1. Конструктивно-планировочные решения входов убежищ II - V классов вместимостью 150, 300, 600, 900, 1200, 1500 и 1800 человек. Рабочие чертежиОбозначение: | Серия ТДК-Н-1-75/2 | Обозначение англ: | Series ТДК-Н-1-75/2 | Статус: | действует | Название рус.: | Выпуск 1. Конструктивно-планировочные решения входов убежищ II - V классов вместимостью 150, 300, 600, 900, 1200, 1500 и 1800 человек. Рабочие чертежи | Дата добавления в базу: | 01.09.2013 | Дата актуализации: | 05.05.2017 | Дата введения: | 30.11.1977 | Оглавление: | Титульный лист Ведомость чертежей выпуска 1 Пояснительная записка Таблица сочетаний входов Вход сквозниковый наклонный с тамбуром для убежищ вместимостью 150 человек Вход сквозниковый наклонный с тамбуром, с лестничным маршем внутри сооружения для убежищ вместимостью 150 человек Вход тупиковый наклонный прямой с тамбуром для убежищ вместимостью 150 человек Вход тупиковый наклонный коленчатый с тамбуром для убежищ вместимостью 150 человек Вход тупиковый наклонный прямой с тамбуром, с лестничным маршем внутри сооружения для убежищ вместимостью 150 человек Вход тупиковый наклонный коленчатый с тамбуром, с лестничным маршем внутри сооружения для убежищ вместимостью 150 человек Вход сквозниковый наклонный с тамбуром-шлюзом для убежищ вместимостью 300 и 600 человек Вход сквозниковый наклонный с тамбуром-шлюзом, с лестничным маршем внутри сооружения для убежищ вместимостью 300, 600 человек Вход сквозниковый наклонный с тамбуром для убежищ вместимостью 300 и 600 человек Вход сквозниковый наклонный с тамбуром, с лестничным маршем внутри сооружения для убежищ вместимостью 300 и 600 человек Вход тупиковый наклонный прямой с тамбуром-шлюзом для убежищ вместимостью 300 и 600 человек Вход тупиковый наклонный прямой с тамбуром-шлюзом, с лестничным маршем внутри сооружения для убежищ вместимостью 300 и 600 человек Вход тупиковый наклонный коленчатый с тамбуром-шлюзом для убежищ вместимостью 300 и 600 человек Вход тупиковый наклонный коленчатый с тамбуром-шлюзом, с лестничным маршем внутри сооружения для убежищ вместимостью 300 и 600 человек Вход тупиковый наклонный прямой с тамбуром для убежищ вместимостью 300 и 600 человек Вход тупиковый наклонный прямой с тамбуром, с лестничным маршем внутри сооружения для убежищ вместимостью 300 и 600 человек Вход тупиковый наклонный коленчатый с тамбуром для убежищ вместимостью 300 и 600 человек Вход тупиковый наклонный коленчатый с тамбуром, с лестничным маршем внутри сооружения для убежищ вместимостью 300 и 600 человек Вход сквозниковый наклонный с тамбуром-шлюзом для убежищ вместимостью 900, 1200, 1500, 1800 человек Вход сквозниковый наклонный с тамбуром-шлюзом, с лестничным маршем внутри сооружения для убежищ вместимостью 900, 1200, 1500 1800 человек Вход тупиковый наклонный прямой с тамбуром-шлюзом для убежищ вместимостью 900, 1200, 1500, 1800 человек Вход тупиковый наклонный прямой с тамбуром-шлюзом, с лестничным маршем внутри сооружения для убежищ вместимостью 900, 1200, 1500, 1800 человек Вход тупиковый наклонный коленчатый с тамбуром-шлюзом для убежищ вместимостью 900, 1200, 1500, 1800 человек Вход тупиковый наклонный коленчатый с тамбуром-шлюзом, с лестничным маршем внутри сооружения для убежищ вместимостью 900, 1200, 1500, 1800 человек Вход сквозниковый наклонный с тамбуром для убежищ вместимостью 900, 1200, 1500, 1800 человек Вход сквозниковый наклонный с тамбуром, с лестничным маршем внутри сооружения для убежищ вместимостью 900, 1200, 1500, 1800 человек Вход тупиковый наклонный прямой с тамбуром для убежищ вместимостью 900, 1200, 1500, 1800 человек Вход тупиковый наклонный прямой с тамбуром, с лестничным маршем внутри сооружения для убежищ вместимостью 900, 1200, 1500, 1800 человек Вход тупиковый наклонный коленчатый с тамбуром для убежищ вместимостью 900, 1200, 1500, 1800 человек Вход тупиковый наклонный коленчатый с тамбуром, с лестничным маршем внутри сооружения для убежищ вместимостью 900, 1200, 1500, 1800 человек Вход сквозниковый наклонный с тамбуром-шлюзом для убежищ лечебных учреждений вместимостью до 200 человек Вход тупиковый наклонный прямой с тамбуром-шлюзом для убежищ лечебных учреждений вместимостью до 200 человек Вход тупиковый наклонный коленчатый с тамбуром-шлюзом для убежищ лечебных учреждений вместимостью до 200 человек Вход сквозниковый наклонный с тамбуром-шлюзом для убежищ лечебных учреждений вместимостью более 200 человек Вход тупиковый наклонный прямой с тамбуром-шлюзом для убежищ лечебных учреждений вместимостью свыше 200 человек Вход тупиковый наклонный коленчатый с тамбуром-шлюзом для убежищ лечебных учреждений вместимостью свыше 200 человек Выход аварийный и эвакуационный с тамбуром Выход аварийный шахтный, примыкающий к сооружению Выход аварийный шахтный с галереей Грузовой въезд в гараж. Однопутная прямолинейная рампа. План. Разрез Грузовой въезд в гараж. Однопутная криволинейная рампа. План Грузовой въезд в гараж. Однопутная криволинейная рампа. Разрезы 1-1 и 2-2 Складской грузовой въезд. Однопутная прямолинейная рампа. План. Разрез Складской грузовой въезд. Однопутная криволинейная рампа. План Складской грузовой въезд. Однопутная криволинейная рампа. Разрезы 1-1, 2-2 Грузовой въезд с лифтом в вертикальной шахте. План А-А, разрез 1-1 Грузовой въезд с лифтом в вертикальной шахте. Планы, разрез 2-2 Грузовой въезд с лифтом в вертикальной шахте. Перила лестницы. Металлическое ограждение площадки Грузовой въезд с лифтом в вертикальной шахте. Металлическая лестница и узлы Грузовой въезд с лифтом в вертикальной шахте. Развертка стен Узлы А, Б, В, Г Металлическая решетка. Узел Д Гидроизоляция и конструкция деформационного шва | Разработан: | В/ч 14262
| Утверждён: | 31.01.1977 Госстрой СССР (Государственный комитет Совета Министров СССР по делам строительства) (USSR Gosstroy 1)
| Расположен в: |
|
                                                            
|